Trong bối cảnh đô thị hóa nhanh chóng và quỹ đất ngày càng hạn hẹp, bản vẽ thiết kế nhà ống 1 tầng trở thành giải pháp không gian sống lý tưởng, đặc biệt tại các khu vực đông dân cư. Mẫu nhà này không chỉ tối ưu diện tích mà còn mang đến sự tiện nghi, hiện đại và tiết kiệm chi phí xây dựng. Bài viết này của Interstellas sẽ đi sâu phân tích các yếu tố quan trọng, các mẫu thiết kế phổ biến và những lời khuyên chuyên môn giúp gia chủ lựa chọn được bản vẽ ưng ý nhất cho ngôi nhà mơ ước của mình.
Có thể bạn quan tâm: Khám Phá Các Mẫu Bản Vẽ Nhà Ống Đẹp & Giải Pháp Thiết Kế Tối Ưu
Những Điểm Cốt Lõi Khi Lựa Chọn Bản Vẽ Thiết Kế Nhà Ống 1 Tầng
Khi đứng trước quyết định thiết kế một căn nhà ống 1 tầng, việc nắm vững các yếu tố cốt lõi là vô cùng quan trọng để đảm bảo ngôi nhà không chỉ đẹp về mặt thẩm mỹ mà còn tối ưu về công năng và chi phí. Gia chủ cần xem xét kỹ lưỡng về diện tích khu đất, số lượng thành viên trong gia đình, phong cách sống và ngân sách đầu tư. Việc xác định rõ những yếu tố này từ ban đầu sẽ giúp kiến trúc sư phác thảo được bản vẽ phù hợp nhất, tránh những thay đổi tốn kém về sau. Một bản vẽ thiết kế nhà ống 1 tầng hoàn chỉnh phải giải quyết được bài toán về ánh sáng, thông gió tự nhiên, bố trí các khu vực chức năng khoa học và đảm bảo tính riêng tư cho từng thành viên, đồng thời phản ánh được cá tính và mong muốn của gia chủ.
Khái Niệm Nhà Ống 1 Tầng và Đặc Trưng Kiến Trúc
Nhà ống 1 tầng là một loại hình nhà ở phổ biến, đặc trưng bởi mặt tiền hẹp và chiều sâu dài, được xây dựng trên những lô đất có hình dạng tương tự, thường là hình chữ nhật. Cấu trúc này rất phù hợp với quy hoạch đô thị tại Việt Nam, nơi đất đai thường được phân chia thành các lô liền kề theo dạng hình ống. Sự đơn giản trong kết cấu và khả năng tối ưu hóa diện tích là những ưu điểm nổi bật, giúp nhà ống 1 tầng trở thành lựa chọn hàng đầu cho nhiều gia đình, đặc biệt là các cặp vợ chồng trẻ hoặc những người muốn sở hữu không gian sống tiện nghi với mức đầu tư hợp lý.
Đặc điểm nổi bật của nhà ống 1 tầng
Một trong những đặc trưng dễ nhận thấy của nhà ống 1 tầng là sự tối giản trong thiết kế mặt bằng, tập trung vào việc bố trí không gian liên thông và hiệu quả. Chiều cao của nhà thường thấp, chỉ có một tầng trệt, đôi khi có thể kết hợp thêm gác lửng để tăng diện tích sử dụng. Cấu trúc này giúp giảm thiểu vật liệu và nhân công, từ đó rút ngắn thời gian thi công đáng kể. Với bản vẽ thiết kế nhà ống 1 tầng, các kiến trúc sư thường chú trọng đến việc tạo ra các giải pháp thông gió và chiếu sáng tự nhiên thông qua giếng trời, sân trong hoặc hệ thống cửa sổ hợp lý để khắc phục nhược điểm về chiều rộng.
Tại sao nhà ống 1 tầng được ưa chuộng ở Việt Nam?
Nhà ống 1 tầng đặc biệt được ưa chuộng tại Việt Nam bởi nhiều lý do thiết thực, phản ánh đúng nhu cầu và điều kiện sinh hoạt của người dân. Trước hết, với đặc điểm quy hoạch đất đai phổ biến là các lô đất dài và hẹp, nhà ống là giải pháp kiến trúc tối ưu nhất để tận dụng triệt để diện tích. Hơn nữa, chi phí xây dựng và thời gian thi công của nhà ống 1 tầng thường thấp hơn đáng kể so với các mẫu nhà nhiều tầng hoặc biệt thự. Điều này phù hợp với khả năng tài chính của nhiều gia đình trẻ hoặc những gia đình đang trong giai đoạn tích lũy kinh tế, giúp họ sớm có được không gian sống riêng. Cuối cùng, sự linh hoạt trong thiết kế, từ phong cách hiện đại, tối giản đến cổ điển, cũng là một yếu tố khiến loại hình này được yêu thích, đáp ứng đa dạng sở thích và cá tính của gia chủ.
<>Xem Thêm Bài Viết:<>- Tuyến Yên Nằm Ở Đâu: Giải Mã Vị Trí Và Chức Năng Trung Tâm Của Hệ Nội Tiết
- Hướng dẫn về văn bản đề nghị điều chỉnh dự án đầu tư BĐS
- Thảo Milan Là Ai? Khám Phá Hành Trình Từ TikToker Đến KOL Đa Tài
- Nhu Cầu Tuyển Dụng Khu Công Nghiệp Bình Hòa An Giang Hiện Nay
- Hướng dẫn chọn và lắp đặt đèn led rgb trang trí pc đẹp, bền, tiết kiệm điện
Ưu và Nhược Điểm của Thiết Kế Nhà Ống 1 Tầng
Mỗi loại hình kiến trúc đều có những ưu và nhược điểm riêng, và nhà ống 1 tầng cũng không ngoại lệ. Việc hiểu rõ những khía cạnh này sẽ giúp gia chủ đưa ra quyết định sáng suốt và chuẩn bị tốt nhất cho quá trình thiết kế, thi công ngôi nhà của mình. Đặc biệt, với những đặc trưng riêng của bản vẽ thiết kế nhà ống 1 tầng, việc cân nhắc kỹ lưỡng các ưu điểm để tối đa hóa và tìm cách khắc phục nhược điểm là rất cần thiết.
Ưu điểm vượt trội
Thiết kế nhà ống 1 tầng mang lại nhiều lợi ích đáng kể, khiến nó trở thành lựa chọn hấp dẫn cho nhiều gia đình. Đầu tiên, chi phí xây dựng thường thấp hơn so với nhà nhiều tầng, do không cần nền móng quá phức tạp hay hệ thống kết cấu chịu lực lớn. Thời gian thi công cũng được rút ngắn, giúp gia chủ sớm ổn định cuộc sống. Thứ hai, việc bố trí công năng trên một mặt bằng duy nhất tạo sự thuận tiện trong sinh hoạt, đặc biệt phù hợp với gia đình có người già hoặc trẻ nhỏ, tránh việc di chuyển nhiều bằng cầu thang. Bên cạnh đó, nhà ống 1 tầng dễ dàng thích nghi với nhiều phong cách kiến trúc khác nhau, từ hiện đại, tối giản đến truyền thống, mang đến sự đa dạng trong lựa chọn cho gia chủ.

Có thể bạn quan tâm: 20+ Ý Tưởng Giường Ngủ Kết Hợp Bàn Trang Điểm Tối Ưu Không Gian
Nhược điểm cần lưu ý
Mặc dù có nhiều ưu điểm, nhà ống 1 tầng cũng tồn tại một số nhược điểm mà gia chủ cần lưu ý. Hạn chế lớn nhất thường là về ánh sáng và thông gió tự nhiên, đặc biệt ở các khu vực trung tâm nhà. Với mặt tiền hẹp và chiều sâu dài, các phòng nằm sâu bên trong có thể bị thiếu sáng và bí bách. Vấn đề về tiếng ồn từ bên ngoài cũng có thể ảnh hưởng đến không gian sống nếu không có giải pháp cách âm hiệu quả. Ngoài ra, việc mở rộng hoặc cơi nới trong tương lai có thể gặp khó khăn do giới hạn về chiều cao và diện tích. Cuối cùng, việc bố trí cây xanh hoặc tạo không gian xanh mát có thể bị hạn chế do diện tích đất nhỏ hẹp.
Giải pháp tối ưu hóa không gian và ánh sáng cho nhà ống 1 tầng
Để khắc phục những nhược điểm của nhà ống 1 tầng, các kiến trúc sư của Interstellas đã phát triển nhiều giải pháp sáng tạo và hiệu quả. Một trong những phương pháp phổ biến nhất là thiết kế giếng trời, đặt ở giữa hoặc cuối nhà, giúp đưa ánh sáng và không khí tươi vào sâu bên trong. Sử dụng vật liệu kính cho các vách ngăn hoặc cửa trượt cũng là cách hiệu quả để tạo cảm giác không gian mở và tăng cường sự lưu thông ánh sáng. Hơn nữa, việc bố trí sân trong nhỏ hoặc các khe thông tầng không chỉ mang lại nguồn sáng mà còn tạo điểm nhấn kiến trúc độc đáo. Đối với nội thất, lựa chọn gam màu sáng, đồ nội thất đa năng và thiết kế âm tường sẽ giúp không gian trở nên rộng rãi và thoáng đãng hơn.
Các Yếu Tố Quan Trọng Trong Bản Vẽ Thiết Kế Nhà Ống 1 Tầng
Một bản vẽ thiết kế nhà ống 1 tầng chất lượng cao không chỉ là những đường nét trên giấy mà còn là sự kết hợp hài hòa của nhiều yếu tố chuyên môn, đảm bảo công năng, thẩm mỹ và sự bền vững cho công trình. Để tạo nên một không gian sống lý tưởng, việc xem xét và tích hợp các yếu tố dưới đây vào bản vẽ là điều cực kỳ cần thiết. Từ việc phân tích khu đất đến lựa chọn phong cách, mỗi chi tiết đều đóng vai trò quan trọng trong việc định hình ngôi nhà.
Phân tích diện tích và hình dạng khu đất
Yếu tố đầu tiên và quan trọng nhất khi bắt đầu thiết kế là phân tích kỹ lưỡng diện tích và hình dạng thực tế của khu đất. Nhà ống thường có chiều ngang hạn chế (phổ biến từ 4m đến 7m) và chiều sâu lớn. Kiến trúc sư cần đo đạc chính xác, xem xét các yếu tố xung quanh như hướng nắng, hướng gió, vị trí các công trình lân cận để đưa ra phương án bố trí mặt bằng hợp lý nhất. Việc hiểu rõ những đặc điểm này giúp tối ưu hóa việc tận dụng ánh sáng tự nhiên, thông gió và tạo cảnh quan phù hợp. Chẳng hạn, với khu đất 5x20m, việc bố trí giếng trời và không gian xanh sẽ khác biệt so với lô đất 4x15m.
Bố cục công năng khoa học
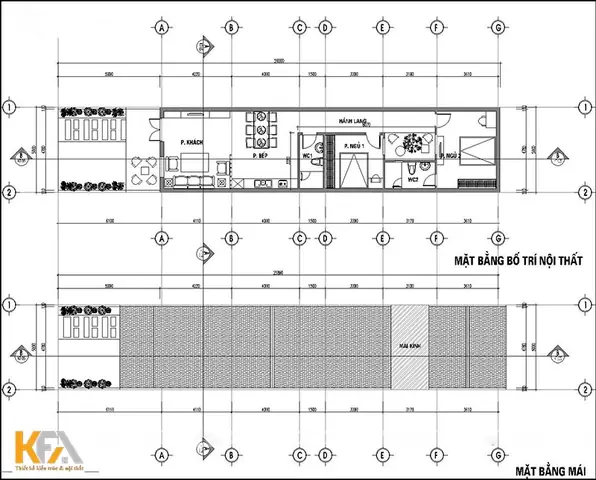
Bố cục công năng là linh hồn của mọi bản vẽ thiết kế nhà ống 1 tầng. Một bố cục khoa học phải đảm bảo các khu vực chức năng được sắp xếp hợp lý, thuận tiện cho sinh hoạt hàng ngày mà vẫn giữ được sự riêng tư cần thiết. Các không gian như phòng khách, phòng bếp – ăn thường được bố trí liên thông để tạo cảm giác rộng rãi và kết nối. Phòng ngủ nên được đặt ở những vị trí yên tĩnh, có đủ ánh sáng và thông gió. Khu vực vệ sinh và kho thường được bố trí gọn gàng, khuất tầm nhìn. Đặc biệt, với nhà ống 1 tầng, việc tích hợp các chức năng đa năng (ví dụ: phòng khách kết hợp khu làm việc nhỏ) là giải pháp thông minh để tối ưu từng mét vuông.
Giải pháp thông gió và chiếu sáng tự nhiên
Do đặc thù chiều ngang hẹp và chiều sâu dài, nhà ống 1 tầng rất dễ bị thiếu sáng và bí bách ở các khu vực giữa nhà. Vì vậy, các giải pháp thông gió và chiếu sáng tự nhiên cần được ưu tiên hàng đầu trong thiết kế. Giếng trời là giải pháp hiệu quả nhất, có thể bố trí ở giữa nhà hoặc cuối nhà, không chỉ mang lại ánh sáng mà còn giúp đối lưu không khí. Cửa sổ lớn ở mặt tiền và mặt sau (nếu có) cũng đóng vai trò quan trọng. Ngoài ra, việc sử dụng các vật liệu nhẹ, xuyên sáng như gạch kính, vách ngăn kính cường lực cũng góp phần phân bổ ánh sáng đều khắp không gian.
Lựa chọn phong cách kiến trúc phù hợp
Phong cách kiến trúc là yếu tố định hình vẻ đẹp và cá tính của ngôi nhà. Với nhà ống 1 tầng, các phong cách hiện đại, tối giản, Scandinavian hoặc công nghiệp thường được ưa chuộng bởi sự tinh tế, đường nét gọn gàng và khả năng tối ưu không gian. Phong cách hiện đại mang đến sự trẻ trung, năng động với các khối hình học và vật liệu mới. Tối giản tập trung vào công năng, lược bỏ chi tiết thừa. Scandinavian tạo cảm giác ấm cúng, gần gũi với thiên nhiên. Dù lựa chọn phong cách nào, điều quan trọng là phải đảm bảo sự thống nhất từ ngoại thất đến nội thất để tạo nên một tổng thể hài hòa.
Yếu tố phong thủy trong thiết kế nhà ống

Có thể bạn quan tâm: Kích Thước Kệ Tivi Gỗ Gụ: Cẩm Nang Chi Tiết Cho Không Gian Sống Đẳng Cấp
Phong thủy là một khía cạnh quan trọng đối với nhiều gia chủ Việt Nam khi xây nhà. Trong bản vẽ thiết kế nhà ống 1 tầng, các yếu tố phong thủy như hướng nhà, vị trí cửa chính, bếp, phòng ngủ, và vệ sinh cần được cân nhắc kỹ lưỡng. Ví dụ, tránh đặt cửa chính đối diện với cửa hậu để không khí và tài lộc không bị thất thoát. Bếp không nên đặt đối diện cửa nhà vệ sinh. Giếng trời nên đặt ở vị trí vượng khí để thu hút năng lượng tốt. Việc tham khảo ý kiến chuyên gia phong thủy ngay từ giai đoạn thiết kế ban đầu sẽ giúp đảm bảo ngôi nhà mang lại may mắn, sức khỏe và tài lộc cho gia đình.
Tổng Hợp Các Mẫu Bản Vẽ Thiết Kế Nhà Ống 1 Tầng Phổ Biến và Tiện Nghi
Với sự đa dạng về diện tích và nhu cầu sử dụng, các bản vẽ thiết kế nhà ống 1 tầng cũng được phát triển thành nhiều mẫu mã khác nhau, đáp ứng linh hoạt các yêu cầu của gia chủ. Từ những mẫu nhà cấp 4 truyền thống đến các thiết kế hiện đại với nhiều phòng ngủ, mỗi loại hình đều có những ưu điểm và cách bố trí không gian riêng biệt, mang lại sự tiện nghi tối đa trong khuôn khổ diện tích hạn chế.
Bản vẽ nhà ống 1 tầng cấp 4 hiện đại

Có thể bạn quan tâm: Làm Thế Nào Để Chọn Kệ Gỗ Đẹp Đơn Giản Cho Ngôi Nhà Bạn?
Mẫu nhà ống 1 tầng cấp 4 hiện đại là sự kết hợp giữa nét truyền thống của nhà cấp 4 và phong cách thiết kế đương đại. Đặc trưng của mẫu nhà này là sự đơn giản, gọn gàng trong kiến trúc nhưng vẫn đảm bảo đầy đủ công năng. Về mặt bằng, các KTS thường bố trí không gian mở cho phòng khách và bếp, tạo cảm giác rộng rãi. Các phòng ngủ được đặt ở phía sau hoặc hai bên, đảm bảo sự yên tĩnh. Vật liệu hiện đại như mái tôn giả ngói, cửa kính lớn, gạch ốp tường trang trí được sử dụng để tạo điểm nhấn thẩm mỹ. Mẫu nhà này rất phù hợp với các gia đình nhỏ ở nông thôn hoặc ngoại ô, nơi có quỹ đất vừa phải và mong muốn một không gian sống tiện nghi, tiết kiệm chi phí.
Bản vẽ nhà ống 1 tầng với 1 phòng ngủ: Giải pháp cho người độc thân hoặc cặp đôi
Đối với người độc thân, các cặp vợ chồng trẻ hoặc gia đình có ít thành viên, mẫu nhà ống 1 tầng với 1 phòng ngủ là lựa chọn tối ưu. Với thiết kế này, không gian sinh hoạt chung như phòng khách, bếp ăn sẽ được ưu tiên mở rộng, tạo sự thoáng đãng và thoải mái. Phòng ngủ chính thường được đặt ở cuối nhà để đảm bảo sự yên tĩnh và riêng tư. Kiến trúc sư có thể tích hợp các giải pháp nội thất đa năng như giường gấp, tủ âm tường hoặc vách ngăn di động để linh hoạt thay đổi không gian khi cần. Việc giảm số lượng phòng ngủ giúp tối ưu hóa diện tích cho các khu vực khác, mang lại trải nghiệm sống rộng rãi hơn so với thực tế.
Bản vẽ nhà ống 1 tầng với 2 phòng ngủ: Lý tưởng cho gia đình nhỏ
Bản vẽ thiết kế nhà ống 1 tầng với 2 phòng ngủ là một trong những lựa chọn phổ biến nhất, phù hợp với phần lớn các gia đình nhỏ có 3-4 thành viên, bao gồm vợ chồng và một hoặc hai con. Trong bố cục này, hai phòng ngủ thường được bố trí song song hoặc đối diện qua một hành lang nhỏ. Phòng khách và bếp ăn vẫn giữ nguyên thiết kế mở để tạo sự liên kết. Một giếng trời ở giữa nhà hoặc cuối nhà sẽ giúp cung cấp ánh sáng và thông gió cho cả hai phòng ngủ và các khu vực chức năng khác. Việc tối ưu hóa không gian lưu trữ và sử dụng đồ nội thất thông minh sẽ giúp căn nhà trở nên gọn gàng và tiện nghi hơn.
Bản vẽ nhà ống 1 tầng với 3 phòng ngủ: Tối ưu không gian hẹp
Việc bố trí 3 phòng ngủ trong một căn nhà ống 1 tầng, đặc biệt với diện tích hạn chế như 5x20m, đòi hỏi sự tính toán rất tỉ mỉ và chuyên nghiệp từ kiến trúc sư. Để đảm bảo đủ không gian cho cả 3 phòng ngủ mà vẫn giữ được sự thoải mái cho khu vực sinh hoạt chung, các KTS thường áp dụng giải pháp phân chia không gian rõ ràng: một phía dành cho các phòng ngủ và phía còn lại dành cho phòng khách, bếp và ăn. Giếng trời hoặc khoảng sân nhỏ ở giữa là yếu tố cực kỳ quan trọng để đảm bảo ánh sáng và thông gió cho các phòng ngủ nằm sâu bên trong. Lựa chọn nội thất đa năng, kích thước nhỏ gọn và tông màu sáng là chìa khóa để tạo cảm giác rộng rãi cho không gian.
Bản vẽ nhà ống 1 tầng có sân vườn nhỏ / giếng trời
Để tăng cường chất lượng sống và khắc phục nhược điểm của nhà ống, nhiều gia chủ lựa chọn thiết kế thêm sân vườn nhỏ hoặc giếng trời. Một khu vườn mini ở mặt tiền hoặc sân sau không chỉ mang lại không gian xanh mát mà còn giúp điều hòa không khí, tạo cảnh quan thư giãn. Giếng trời, dù là nhỏ, cũng có thể biến thành một khu vườn thẳng đứng hoặc không gian tiểu cảnh, vừa đón sáng vừa làm điểm nhấn kiến trúc độc đáo. Sự kết hợp này không chỉ nâng cao tính thẩm mỹ mà còn cải thiện đáng kể chất lượng không khí và ánh sáng tự nhiên cho toàn bộ ngôi nhà, mang lại một không gian sống gần gũi với thiên nhiên hơn.
Bản vẽ nhà ống 1 tầng kết hợp kinh doanh
Đối với những gia đình muốn tận dụng lợi thế mặt tiền để kinh doanh, bản vẽ thiết kế nhà ống 1 tầng kết hợp kinh doanh là một giải pháp thông minh. Tầng trệt sẽ được phân chia thành hai khu vực rõ ràng: một phần dành cho mục đích kinh doanh (cửa hàng, văn phòng nhỏ) và phần còn lại dành cho không gian sinh hoạt của gia đình. Lối đi riêng biệt cho khu vực kinh doanh và khu vực ở là yếu tố quan trọng để đảm bảo sự riêng tư và tiện lợi. Các vật liệu mặt tiền cũng cần được lựa chọn kỹ lưỡng để vừa thu hút khách hàng vừa thể hiện phong cách của ngôi nhà. Việc thiết kế linh hoạt cho phép chuyển đổi mục đích sử dụng dễ dàng trong tương lai nếu nhu cầu thay đổi.
Quy Trình Thiết Kế Bản Vẽ Nhà Ống 1 Tầng Chuyên Nghiệp Tại Interstellas
Tại Interstellas, chúng tôi hiểu rằng một ngôi nhà không chỉ là nơi để ở mà còn là không gian phản ánh cá tính và mang lại hạnh phúc cho gia chủ. Vì vậy, quy trình thiết kế bản vẽ thiết kế nhà ống 1 tầng của chúng tôi được xây dựng một cách tỉ mỉ, chuyên nghiệp, đặt khách hàng làm trọng tâm và hướng đến sự hoàn hảo trong từng chi tiết. Với đội ngũ kiến trúc sư giàu kinh nghiệm, chúng tôi cam kết mang đến những giải pháp không gian sống sáng tạo, tối ưu và bền vững.
Giai đoạn 1: Tiếp nhận thông tin và tư vấn sơ bộ
Giai đoạn đầu tiên là lắng nghe và thấu hiểu. Chúng tôi sẽ gặp gỡ gia chủ để tìm hiểu kỹ lưỡng về mong muốn, nhu cầu, phong cách sống, số lượng thành viên, ngân sách đầu tư và các yêu cầu đặc biệt khác. Đội ngũ Interstellas cũng sẽ tiến hành khảo sát thực địa khu đất, đánh giá các yếu tố về địa hình, hướng nắng, hướng gió, và quy hoạch để có cái nhìn tổng quan nhất. Mục tiêu của giai đoạn này là thu thập đầy đủ thông tin để định hình ý tưởng ban đầu và đưa ra những tư vấn chuyên môn sơ bộ, giúp gia chủ hình dung rõ hơn về tiềm năng của công trình.
Giai đoạn 2: Lên ý tưởng và thiết kế bản vẽ concept
Dựa trên thông tin đã thu thập, các kiến trúc sư của Interstellas sẽ bắt đầu lên ý tưởng và phác thảo bản vẽ concept. Bản vẽ này bao gồm mặt bằng công năng sơ bộ, hình ảnh phối cảnh 3D các không gian chính để gia chủ có thể hình dung rõ ràng về ngôi nhà trong tương lai. Ở giai đoạn này, chúng tôi sẽ trình bày các phương án thiết kế khác nhau, phân tích ưu nhược điểm và cùng gia chủ điều chỉnh để tìm ra phương án tối ưu nhất. Mục tiêu là tạo ra một concept kiến trúc độc đáo, phản ánh đúng mong muốn của gia chủ và phù hợp với đặc điểm của khu đất.
Giai đoạn 3: Hoàn thiện bản vẽ kỹ thuật chi tiết
Sau khi concept thiết kế được duyệt, chúng tôi sẽ tiến hành triển khai các bản vẽ kỹ thuật chi tiết. Giai đoạn này bao gồm bản vẽ kiến trúc (mặt bằng, mặt cắt, mặt đứng), bản vẽ kết cấu (móng, cột, dầm, sàn), bản vẽ hệ thống điện nước (MEP), và bản vẽ chi tiết nội thất (nếu có yêu cầu). Các bản vẽ này được thể hiện rõ ràng, chính xác từng kích thước, vật liệu, chi tiết kỹ thuật, đảm bảo đáp ứng các tiêu chuẩn xây dựng hiện hành. Đây là cơ sở quan trọng để nhà thầu thi công có thể triển khai công trình một cách thuận lợi và chính xác nhất, tránh các sai sót không đáng có.
Giai đoạn 4: Giám sát và hỗ trợ thi công
Quy trình của Interstellas không dừng lại ở việc bàn giao bản vẽ. Chúng tôi còn cung cấp dịch vụ giám sát tác giả và hỗ trợ kỹ thuật trong suốt quá trình thi công. Kiến trúc sư sẽ thường xuyên đến công trường để kiểm tra, đảm bảo công trình được xây dựng đúng theo bản vẽ thiết kế, đúng kỹ thuật và đạt chất lượng cao nhất. Chúng tôi cũng sẽ kịp thời giải quyết các vấn đề phát sinh, tư vấn về vật liệu và kỹ thuật thi công, giúp gia chủ yên tâm và hài lòng với thành quả cuối cùng. Sự đồng hành này khẳng định cam kết của chúng tôi về một ngôi nhà hoàn thiện đúng như mong đợi.
Lời Khuyên Từ Chuyên Gia Khi Lựa Chọn và Triển Khai Bản Vẽ Nhà Ống 1 Tầng
Để sở hữu một ngôi nhà ống 1 tầng không chỉ đẹp mà còn tối ưu về công năng và bền vững theo thời gian, gia chủ cần trang bị cho mình những kiến thức và lời khuyên từ các chuyên gia. Việc chuẩn bị kỹ lưỡng ngay từ đầu sẽ giúp bạn tránh được những sai lầm đáng tiếc và đảm bảo quá trình xây dựng diễn ra suôn sẻ.
Đừng bỏ qua khảo sát địa hình và hướng nhà
Trước khi bắt tay vào thiết kế, việc khảo sát kỹ lưỡng địa hình, thổ nhưỡng và hướng của khu đất là vô cùng quan trọng. Địa chất yếu có thể yêu cầu giải pháp móng phức tạp hơn, làm tăng chi phí. Hướng nhà và các yếu tố tự nhiên xung quanh (hướng nắng, hướng gió, cây xanh lớn) sẽ ảnh hưởng trực tiếp đến việc bố trí cửa sổ, giếng trời và các không gian chức năng. Một bản vẽ thiết kế nhà ống 1 tầng thông minh phải biết cách tận dụng tối đa ánh sáng và thông gió tự nhiên, đồng thời hạn chế những tác động tiêu cực từ môi trường, mang lại không gian sống mát mẻ vào mùa hè và ấm áp vào mùa đông.
Tầm quan trọng của dự toán chi phí chi tiết
Dự toán chi phí chi tiết là bước không thể thiếu để kiểm soát ngân sách và tránh phát sinh ngoài ý muốn. Dự toán cần bao gồm tất cả các hạng mục từ chi phí thiết kế, chi phí vật liệu thô, vật liệu hoàn thiện, nhân công, đến chi phí nội thất và các khoản dự phòng. Việc lập kế hoạch tài chính rõ ràng ngay từ đầu giúp gia chủ chủ động trong việc lựa chọn vật liệu và phương án thi công phù hợp. Hãy luôn chuẩn bị một khoản dự phòng khoảng 10-15% tổng chi phí để đối phó với những tình huống bất ngờ có thể xảy ra trong quá trình xây dựng.
Chọn đơn vị thiết kế uy tín và kinh nghiệm
Việc lựa chọn một đơn vị thiết kế uy tín và có kinh nghiệm là yếu tố then chốt quyết định chất lượng của bản vẽ thiết kế nhà ống 1 tầng và toàn bộ công trình. Một công ty kiến trúc chuyên nghiệp sẽ có đội ngũ kiến trúc sư tài năng, am hiểu sâu sắc về loại hình nhà ống, đưa ra những giải pháp sáng tạo và thực tế. Họ không chỉ giúp bạn có một bản vẽ đẹp mà còn tư vấn về vật liệu, công năng, phong thủy và hỗ trợ giám sát thi công, đảm bảo mọi thứ diễn ra đúng kế hoạch. Hãy tham khảo các dự án đã thực hiện của họ, đọc các đánh giá từ khách hàng và thảo luận kỹ lưỡng trước khi đưa ra quyết định cuối cùng.
Với những kiến thức và lời khuyên trên, hy vọng bạn đã có cái nhìn toàn diện hơn về bản vẽ thiết kế nhà ống 1 tầng và những yếu tố cần thiết để kiến tạo nên không gian sống mơ ước. Từ việc hiểu rõ khái niệm, ưu nhược điểm, đến các yếu tố quan trọng trong thiết kế và quy trình chuyên nghiệp, mỗi bước đều đóng góp vào sự thành công của công trình. Một bản vẽ được nghiên cứu kỹ lưỡng sẽ là nền tảng vững chắc cho một ngôi nhà không chỉ đẹp, tiện nghi mà còn bền vững theo thời gian.
















