Trong bối cảnh đô thị hóa ngày càng phát triển, những mẫu thiết kế nhà 6x14m đang trở thành lựa chọn ưu việt cho nhiều gia đình Việt Nam. Với kích thước mặt tiền 6m và chiều sâu 14m, tổng diện tích 84m² mỗi sàn, loại hình nhà này mang đến sự cân bằng lý tưởng giữa tính thẩm mỹ, công năng sử dụng và khả năng tối ưu không gian sống. Nó không chỉ đáp ứng nhu cầu về một tổ ấm tiện nghi mà còn thể hiện phong cách kiến trúc hiện đại, tinh tế. Bài viết này của Interstellas sẽ đi sâu phân tích những đặc điểm nổi bật, nguyên tắc thiết kế và các giải pháp sáng tạo để biến một căn nhà 6x14m thành không gian sống mơ ước, tràn đầy cảm hứng.
Tổng quan về các mẫu thiết kế nhà 6x14m
Nhà 6x14m đại diện cho một loại hình kiến trúc phổ biến, đặc biệt ở các khu vực đô thị với quỹ đất hạn chế. Kích thước này tạo ra một không gian có chiều rộng vừa đủ để bố trí các khu vực chức năng thoải mái, đồng thời chiều sâu 14m cho phép linh hoạt trong việc tạo ra các giếng trời, sân trong hoặc khu vực thư giãn phía sau. Sự cân đối này giúp các kiến trúc sư dễ dàng áp dụng nhiều phong cách thiết kế khác nhau, từ hiện đại, tối giản đến tân cổ điển, nhằm mang lại một tổ ấm không chỉ đẹp mắt mà còn tối ưu về công năng, đáp ứng đầy đủ nhu cầu sinh hoạt của các thành viên trong gia đình.
Tại sao mẫu nhà 6x14m lại được ưa chuộng?
Sự phổ biến của những căn nhà có kích thước 6x14m không phải ngẫu nhiên mà đến từ nhiều ưu điểm vượt trội. Diện tích 84m² mỗi sàn được xem là “khuôn vàng thước ngọc” cho việc quy hoạch không gian sống, đặc biệt trong các đô thị lớn nơi đất đai đắt đỏ. Kích thước này đủ rộng để các kiến trúc sư có thể sáng tạo ra nhiều phương án bố trí nội thất, đảm bảo mỗi khu vực chức năng đều có đủ diện tích và sự riêng tư cần thiết. Hơn nữa, với mặt tiền 6m, ngôi nhà có thể dễ dàng tiếp cận ánh sáng tự nhiên và luồng gió, tạo nên môi trường sống thoáng đãng, trong lành.
Bên cạnh đó, khả năng tối ưu hóa công năng là một điểm cộng lớn. Với chiều sâu 14m, việc sắp xếp các phòng liên thông hoặc tách biệt, kết hợp giếng trời, sân vườn nhỏ đều trở nên khả thi. Điều này không chỉ giúp căn nhà thêm phần sinh động mà còn nâng cao chất lượng cuộc sống cho gia chủ. Về mặt kiến trúc, mẫu thiết kế nhà 6x14m cho phép ứng dụng đa dạng các phong cách, từ những đường nét tối giản của hiện đại đến sự cầu kỳ của tân cổ điển, hay nét mộc mạc của phong cách nhiệt đới. Do đó, đây là lựa chọn lý tưởng cho những ai mong muốn sở hữu một không gian sống độc đáo, phản ánh cá tính riêng.
Nguyên tắc vàng khi thiết kế nhà 6x14m
<>Xem Thêm Bài Viết:<>- Khám Phá Toàn Diện Về **Dự Án Long Hậu** Tiềm Năng
- Bán chung cư Hoàng Anh Gia Lai 1: Thông tin chi tiết & Tiện ích vượt trội
- Bán Chung Cư Hà Thành Plaza: Cơ Hội Đầu Tư Lý Tưởng Tại Hà Nội
- Địa Chỉ và Thông Tin Liên Hệ Công An Quận Bình Thạnh Ở Đâu Cập Nhật Mới Nhất
- Tổng Quan Các Khu Công Nghiệp Bình Dương Quan Trọng

Có thể bạn quan tâm: 25+ Ý Tưởng Thiết Kế Nhà Nhỏ Đẹp Đơn Giản, Tiện Nghi
Để biến một mảnh đất 6x14m thành một ngôi nhà lý tưởng, việc tuân thủ các nguyên tắc thiết kế cơ bản là vô cùng quan trọng. Sự sáng tạo cần đi đôi với tính khoa học để đảm bảo không gian vừa đẹp vừa tiện nghi, thoáng đãng.
Tối ưu hóa không gian sống

Có thể bạn quan tâm: Tuyển Chọn Những Ngôi Nhà 3 Tầng Đẹp Nhất Việt Nam
Trong một ngôi nhà có diện tích giới hạn như 6x14m, việc tối ưu hóa không gian là yếu tố then chốt. Giải pháp phổ biến nhất là áp dụng thiết kế mở, nơi phòng khách, bếp và phòng ăn được kết nối liền mạch. Cách bố trí này không chỉ tạo cảm giác rộng rãi hơn mà còn tăng cường sự tương tác giữa các thành viên trong gia đình. Bên cạnh đó, việc tận dụng chiều cao của ngôi nhà thông qua các thiết kế gác lửng hay giếng trời không chỉ mang lại giá trị thẩm mỹ mà còn tạo thêm không gian chức năng hiệu quả.
Các giải pháp lưu trữ thông minh như tủ âm tường, kệ treo tường đa năng hoặc các ngăn kéo dưới gầm cầu thang sẽ giúp giữ cho ngôi nhà luôn gọn gàng, ngăn nắp. Việc lựa chọn màu sắc và vật liệu cũng đóng vai trò quan trọng. Các tông màu sáng như trắng, be, ghi nhạt có khả năng phản xạ ánh sáng tốt, khiến không gian có cảm giác rộng và thoáng hơn. Kết hợp với vật liệu có bề mặt nhẵn bóng hoặc gương, hiệu ứng thị giác sẽ được nâng cao đáng kể.

Có thể bạn quan tâm: Nhà Cấp 4 Phong Cách Nhật Bản: Hướng Dẫn Tạo Lập Không Gian Sống Thanh Bình
Đảm bảo ánh sáng tự nhiên và thông gió
Ánh sáng tự nhiên và thông gió là hai yếu tố không thể thiếu để tạo nên một không gian sống khỏe mạnh và tràn đầy năng lượng. Với đặc thù của nhà phố, việc bố trí giếng trời là giải pháp tuyệt vời để dẫn sáng và gió vào sâu bên trong ngôi nhà. Giếng trời có thể được đặt ở giữa nhà hoặc cuối nhà, tùy thuộc vào bố cục tổng thể, nhằm đảm bảo mọi khu vực đều nhận đủ ánh sáng.

Có thể bạn quan tâm: Thiết Kế Nhà Mái Thái 2 Tầng 2 Mặt Tiền: Giải Pháp Tối Ưu Cho Kiến Trúc Đô Thị
Bên cạnh giếng trời, việc thiết kế cửa sổ lớn, cửa ra vào rộng hoặc các ban công ở mặt tiền 6m sẽ giúp tận dụng tối đa ánh sáng và gió trời. Việc sử dụng kính cường lực cho các ô cửa không chỉ tăng tính thẩm mỹ mà còn giúp không gian luôn sáng bừng. Hệ thống thông gió thụ động, bao gồm các khe thoáng hay cửa chớp, cũng cần được tính toán kỹ lưỡng để duy trì luồng không khí lưu thông liên tục, hạn chế ẩm mốc và mùi khó chịu, đặc biệt trong điều kiện khí hậu nhiệt đới gió mùa của Việt Nam.
Bố cục công năng khoa học

Một bố cục công năng khoa học sẽ đảm bảo mọi hoạt động sinh hoạt diễn ra thuận tiện và thoải mái. Việc phân chia rõ ràng các khu vực công cộng (phòng khách, bếp, ăn) và khu vực riêng tư (phòng ngủ, phòng làm việc) là cần thiết. Thông thường, tầng trệt sẽ được dành cho không gian sinh hoạt chung, trong khi các tầng trên sẽ là nơi bố trí phòng ngủ, phòng thờ và các không gian riêng tư khác.
Cầu thang, hành lang cần được thiết kế hợp lý, không quá chiếm diện tích nhưng vẫn đảm bảo sự an toàn và thoải mái khi di chuyển. Tối ưu hóa không gian dưới gầm cầu thang bằng cách biến nó thành kho lưu trữ, tủ trưng bày hoặc tiểu cảnh nhỏ cũng là một ý tưởng hay. Mục tiêu cuối cùng là tạo ra một dòng chảy không gian liền mạch, logic, nơi mỗi mét vuông đều được sử dụng một cách hiệu quả nhất, đáp ứng tối đa nhu cầu của gia đình.

Các phong cách kiến trúc phù hợp cho mẫu nhà 6x14m
Với kích thước 6x14m, các kiến trúc sư có thể linh hoạt ứng dụng nhiều phong cách khác nhau, mỗi phong cách mang một vẻ đẹp và cá tính riêng. Việc lựa chọn phong cách phù hợp không chỉ thể hiện gu thẩm mỹ của gia chủ mà còn tối ưu hóa được các yếu tố về công năng và ánh sáng.

Phong cách hiện đại (Modern Style)
Phong cách hiện đại là một trong những lựa chọn hàng đầu cho các mẫu thiết kế nhà 6x14m bởi sự tinh gọn, tập trung vào công năng và tính thẩm mỹ không cầu kỳ. Đặc trưng bởi các đường nét kiến trúc mạnh mẽ, dứt khoát, ít chi tiết rườm rà, phong cách này thường sử dụng các vật liệu công nghiệp như kính, thép, bê tông, cùng với gam màu trung tính như trắng, đen, xám, be.

Ưu điểm nổi bật của phong cách hiện đại là khả năng tối ưu không gian hiệu quả, tạo cảm giác thông thoáng và rộng rãi hơn so với diện tích thực. Việc sử dụng hệ cửa kính lớn, ban công tối giản và các khối kiến trúc giật cấp giúp ngôi nhà đón được nhiều ánh sáng tự nhiên và gió trời. Nội thất cũng được thiết kế đơn giản, đa năng, giúp không gian luôn gọn gàng và tiện nghi, rất phù hợp với nhịp sống đô thị năng động.
Phong cách tối giản (Minimalist Style)

Lấy triết lý “Less is more” làm kim chỉ nam, phong cách tối giản là sự lựa chọn lý tưởng cho những ai yêu thích sự thanh tịnh, tinh tế và không gian thoáng đạt. Trong một căn nhà 6x14m, phong cách này giúp lược bỏ mọi chi tiết thừa thãi, tập trung vào công năng cốt lõi và vẻ đẹp của hình khối.
Cách ứng dụng phong cách tối giản thường bao gồm việc sử dụng bảng màu đơn sắc, chủ yếu là trắng, xám, đen, kết hợp với các vật liệu tự nhiên như gỗ, đá để tạo điểm nhấn ấm áp. Nội thất được chọn lọc kỹ lưỡng, ưu tiên các món đồ đa năng, có thiết kế tinh gọn. Không gian được tổ chức mở, thông thoáng, ít vách ngăn và tận dụng tối đa ánh sáng tự nhiên, giúp căn nhà 6x14m trở nên rộng rãi và dễ chịu hơn rất nhiều.

Phong cách Tân cổ điển (Neoclassical Style)
Đối với những gia chủ ưa chuộng vẻ đẹp sang trọng, lãng mạn nhưng vẫn muốn giữ nét hiện đại, phong cách tân cổ điển là một lựa chọn đáng cân nhắc cho nhà 6x14m. Phong cách này là sự kết hợp tinh tế giữa những đường nét kiến trúc cổ điển (như phào chỉ, cột trụ, mái Mansard) và sự tối giản, tiện nghi của kiến trúc hiện đại.

Khi áp dụng cho nhà phố 6x14m, tân cổ điển cần được tiết chế một cách khéo léo để tránh cảm giác nặng nề. Các chi tiết phào chỉ được lược bỏ bớt, chỉ giữ lại những đường nét thanh thoát. Màu sắc thường là các gam nhẹ nhàng như trắng kem, vàng nhạt, kết hợp với vật liệu cao cấp như đá hoa cương, gỗ tự nhiên. Mái Mansard (như trong bài gốc) không chỉ tăng thêm vẻ bề thế mà còn giúp tạo không gian sử dụng trên tum thang, nâng cao giá trị thẩm mỹ và công năng cho ngôi nhà.
Phong cách Tropical (Nhiệt đới)

Nếu bạn là người yêu thích sự giao hòa với thiên nhiên và mong muốn một không gian sống thư thái, gần gũi, phong cách Tropical sẽ là lựa chọn tuyệt vời cho căn nhà 6x14m. Phong cách này chú trọng đến việc đưa cây xanh, ánh sáng và vật liệu tự nhiên vào trong không gian sống.
Việc thiết kế giếng trời lớn, sân vườn nhỏ phía trước hoặc sau nhà, hay các ban công tràn ngập cây xanh là đặc trưng của phong cách Tropical. Vật liệu chủ đạo thường là gỗ, tre, nứa, đá tự nhiên, kết hợp với các gam màu xanh lá, xanh dương và màu đất. Phong cách này không chỉ mang lại bầu không khí trong lành, mát mẻ mà còn tạo nên một không gian sống đầy sức sống và thư giãn, giúp gia chủ tìm thấy sự bình yên giữa lòng đô thị ồn ào.

Khám phá các mẫu thiết kế nhà 6x14m theo số tầng
Việc lựa chọn số tầng cho mẫu thiết kế nhà 6x14m phụ thuộc vào nhu cầu sử dụng, số lượng thành viên và ngân sách của mỗi gia đình. Mỗi loại hình sẽ có những ưu điểm và cách bố trí công năng đặc trưng.

Mẫu nhà cấp 4 (1 tầng) 6x14m: Ấm cúng và tiện lợi
Nhà cấp 4 6x14m là lựa chọn lý tưởng cho những gia đình nhỏ, người lớn tuổi hoặc những ai yêu thích sự đơn giản, ấm cúng. Ưu điểm nổi bật của loại hình này là chi phí xây dựng thấp, thời gian thi công nhanh chóng và dễ dàng trong việc di chuyển, sinh hoạt trên một mặt sàn.

Với diện tích 84m², một ngôi nhà cấp 4 có thể bố trí từ 2 đến 3 phòng ngủ, một phòng khách, bếp và phòng ăn liên thông, cùng một khu vực vệ sinh chung. Việc thiết kế mái Thái hoặc mái Nhật không chỉ tăng tính thẩm mỹ mà còn giúp thoát nước hiệu quả và tạo không gian trần cao ráo, thoáng đãng. Để tối ưu ánh sáng và gió, cửa sổ lớn ở mặt tiền và có thể thêm một khoảng sân nhỏ phía sau là rất cần thiết, giúp ngôi nhà luôn tràn ngập sức sống.
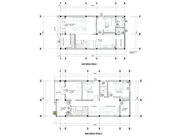
Mẫu nhà 2 tầng 6x14m: Lựa chọn phổ biến cho gia đình hiện đại

Đây là một trong những mẫu thiết kế nhà 6x14m phổ biến nhất, đáp ứng nhu cầu của đa số gia đình có 3-5 thành viên. Nhà 2 tầng cung cấp không gian sống rộng rãi hơn, cho phép phân chia rõ ràng khu vực sinh hoạt chung ở tầng trệt và khu vực riêng tư ở tầng lầu.
- Tầng trệt: Thường được bố trí phòng khách, phòng ăn, bếp liên thông để tạo không gian mở, một phòng ngủ nhỏ (hoặc phòng làm việc/khách) và một vệ sinh chung. Có thể tích hợp thêm sân trước để đậu xe hoặc sân sau làm giếng trời, khu giặt phơi.
- Tầng lầu: Bố trí 2-3 phòng ngủ, có thể có thêm phòng thờ, phòng sinh hoạt chung hoặc một góc đọc sách yên tĩnh. Các ban công ở mặt tiền không chỉ làm đẹp ngoại thất mà còn là nơi thư giãn, trồng cây xanh lý tưởng. Các mẫu nhà mái ngói đỏ hoặc kết hợp không gian xanh như trong bài gốc là những gợi ý tuyệt vời cho sự kết hợp giữa truyền thống và hiện đại.
Mẫu nhà 3 tầng 6x14m: Mở rộng không gian sống đa thế hệ

Đối với các gia đình đông thành viên, nhiều thế hệ cùng chung sống hoặc có nhu cầu kinh doanh, cho thuê, nhà 3 tầng 6x14m là giải pháp tối ưu. Việc tăng số tầng giúp mở rộng đáng kể diện tích sử dụng, tạo ra nhiều không gian riêng tư hơn cho mỗi thành viên.
- Tầng trệt: Tương tự như nhà 2 tầng, dành cho không gian công cộng.
- Tầng 1 & 2: Bố trí các phòng ngủ, phòng làm việc, phòng thờ, khu giặt phơi và có thể là một sân thượng nhỏ để thư giãn hoặc trồng rau. Việc sử dụng gam màu trắng – xám chủ đạo kết hợp với vật liệu hiện đại sẽ mang lại vẻ ngoài tinh tế, sang trọng cho ngôi nhà 3 tầng. Cần chú trọng thiết kế cầu thang và giếng trời để đảm bảo ánh sáng và thông gió cho tất cả các tầng.
Mẫu nhà 6x14m có gác lửng: Tối ưu diện tích theo chiều cao

Thiết kế gác lửng là một giải pháp sáng tạo để tối ưu hóa diện tích theo chiều cao, đặc biệt hữu ích cho những căn nhà có trần cao. Một tầng lửng có thể được biến thành phòng làm việc, thư viện, khu vui chơi cho trẻ em, hoặc thậm chí là một phòng ngủ phụ, mà không cần phải xây dựng thêm một tầng hoàn chỉnh.
Ưu điểm của gác lửng là tạo ra không gian mở, kết nối với tầng trệt nhưng vẫn có sự riêng tư tương đối. Khi thiết kế gác lửng, cần lưu ý đến chiều cao trần nhà để đảm bảo không gian không bị chật chội. Cầu thang lên gác lửng nên được thiết kế gọn gàng, có thể kết hợp làm kệ sách hoặc tủ đồ để tiết kiệm diện tích.

Mẫu nhà 6x14m có tầng hầm: Giải pháp cho không gian tiện ích
Nhà có tầng hầm là lựa chọn thông minh cho những gia đình cần thêm không gian để đậu xe, làm kho chứa đồ, hoặc thậm chí là phòng giải trí, phòng gym. Tầng hầm giúp giải quyết vấn đề thiếu chỗ đậu xe ở các khu đô thị đông đúc, đồng thời giữ cho không gian sống trên mặt đất luôn thông thoáng và gọn gàng.

Khi thiết kế tầng hầm, cần đặc biệt chú ý đến hệ thống chống thấm, thông gió và chiếu sáng để đảm bảo tầng hầm luôn khô ráo, sạch sẽ và an toàn. Lối vào tầng hầm thường được thiết kế thoải nhẹ, thuận tiện cho việc di chuyển xe cộ. Sự kết hợp giữa tầng hầm và tầng lửng (như trong bài gốc) có thể tạo ra một cấu trúc nhà đa năng, tối đa hóa mọi mét vuông sử dụng, mang lại sự tiện nghi vượt trội cho gia chủ.
Lựa chọn vật liệu và hoàn thiện cho ngôi nhà 6x14m

Việc lựa chọn vật liệu xây dựng và hoàn thiện không chỉ ảnh hưởng đến chi phí mà còn quyết định đến vẻ đẹp, độ bền và tính bền vững của ngôi nhà. Đối với mẫu thiết kế nhà 6x14m, việc cân nhắc kỹ lưỡng sẽ giúp tạo nên một không gian sống hài hòa và chất lượng.
Vật liệu ngoại thất

Ngoại thất là bộ mặt của ngôi nhà, vì vậy vật liệu sử dụng cần đảm bảo tính thẩm mỹ và khả năng chống chịu tốt với điều kiện thời tiết.
- Sơn ngoại thất: Nên chọn loại sơn có khả năng chống thấm, chống bám bẩn và chống phai màu để giữ cho ngôi nhà luôn mới mẻ. Màu sắc sơn cần phù hợp với phong cách kiến trúc tổng thể, ưu tiên các gam trung tính để tạo sự thanh lịch.
- Gạch ốp, đá tự nhiên: Được sử dụng để tạo điểm nhấn ở mặt tiền, cột hoặc tường rào. Gạch và đá mang lại vẻ đẹp sang trọng, vững chãi và có độ bền cao.
- Kính cường lực: Là vật liệu không thể thiếu trong các thiết kế hiện đại, được dùng cho cửa chính, cửa sổ, lan can ban công hay giếng trời. Kính giúp tối ưu ánh sáng tự nhiên và mở rộng tầm nhìn.
- Lam gỗ, bê tông trang trí: Các thanh lam gỗ hoặc bê tông có thể được dùng để trang trí mặt tiền, vừa tạo hiệu ứng thị giác độc đáo, vừa có tác dụng che nắng, cản bụi.
Vật liệu nội thất

Nội thất không chỉ mang tính công năng mà còn định hình phong cách và tạo cảm giác thoải mái cho không gian bên trong.
- Sàn: Các lựa chọn phổ biến bao gồm sàn gỗ công nghiệp (đẹp, ấm áp, dễ lắp đặt), gạch men (đa dạng mẫu mã, dễ vệ sinh, bền) hoặc đá tự nhiên (sang trọng, mát mẻ). Tùy thuộc vào từng khu vực mà lựa chọn vật liệu sàn phù hợp.
- Tường: Sơn nước là lựa chọn cơ bản và linh hoạt nhất. Ngoài ra, giấy dán tường, ốp gỗ hoặc nhựa có thể được sử dụng để tạo điểm nhấn hoặc tăng tính ấm cúng cho không gian.
- Trần: Trần thạch cao phổ biến với nhiều kiểu dáng, giúp che đi hệ thống kỹ thuật và tạo hiệu ứng ánh sáng độc đáo. Trần gỗ hoặc các vật liệu trang trí khác cũng có thể được cân nhắc để tăng tính thẩm mỹ.
- Nội thất: Gỗ tự nhiên hoặc gỗ công nghiệp là vật liệu chủ đạo cho đồ nội thất như bàn, ghế, tủ. Các vật liệu khác như kim loại, vải bọc, kính cũng được sử dụng để tạo sự đa dạng và phong phú. Interstellas cam kết cung cấp các giải pháp vật liệu và nội thất cao cấp, đồng hành cùng gia chủ kiến tạo không gian sống mơ ước, đảm bảo chất lượng và tính thẩm mỹ vượt trội cho từng chi tiết.
Dự toán chi phí xây dựng mẫu nhà 6x14m

Chi phí xây dựng là một trong những yếu tố quan trọng nhất mà mọi gia chủ cần cân nhắc khi lên kế hoạch xây nhà 6x14m. Việc dự toán chi phí chính xác giúp quản lý ngân sách hiệu quả và tránh phát sinh ngoài dự kiến. Dưới đây là các yếu tố chính ảnh hưởng đến tổng chi phí:
- Loại hình nhà và số tầng: Đây là yếu tố quyết định lớn nhất. Nhà cấp 4 (1 tầng) sẽ có chi phí thấp nhất, sau đó đến nhà 2 tầng, 3 tầng và cao hơn. Mỗi tầng tăng thêm đồng nghĩa với chi phí vật liệu, nhân công và thời gian thi công tăng theo.
- Phong cách kiến trúc và mức độ phức tạp: Các phong cách đơn giản như hiện đại, tối giản thường có chi phí thấp hơn so với phong cách tân cổ điển với nhiều chi tiết phào chỉ, hoa văn cầu kỳ. Thiết kế có giếng trời lớn, tầng hầm hoặc gác lửng cũng sẽ làm tăng độ phức tạp và chi phí xây dựng.
- Chất lượng vật liệu thô và hoàn thiện: Vật liệu thô (xi măng, sắt thép, gạch, cát, đá) và vật liệu hoàn thiện (sơn, gạch ốp lát, thiết bị vệ sinh, nội thất) có nhiều phân khúc giá khác nhau. Việc lựa chọn vật liệu cao cấp sẽ kéo theo chi phí tăng lên.
- Chi phí nhân công và thiết kế: Chi phí nhân công phụ thuộc vào đơn giá tại từng địa phương và thời điểm xây dựng. Chi phí thiết kế kiến trúc, nội thất cũng là một khoản đáng kể, đặc biệt nếu thuê các kiến trúc sư, nhà thiết kế uy tín.
- Vị trí địa lý và điều kiện thi công: Xây dựng ở các thành phố lớn thường đắt hơn ở nông thôn. Điều kiện địa chất, mặt bằng thi công khó khăn cũng có thể làm tăng chi phí móng và thi công.
Dưới đây là bảng tham khảo chi phí xây dựng trọn gói cho nhà 6x14m, được tổng hợp từ khảo sát thị trường, mang tính chất ước lượng và có thể thay đổi tùy theo nhiều yếu tố:

| Loại hình | Chi phí xây dựng trọn gói (tham khảo) |
|---|---|
| Chi phí xây nhà 1 tầng 6x14m | 550.000.000 đến 700.000.000 đồng |
| Giá xây nhà 2 tầng ngang 6m dài 14m | 1.150.000.000 đến 1.500.000.000 đồng |
| Chi phí xây nhà 6x14m 3 tầng | 1.700.000.000 đến 2.200.000.000 đồng |
| Chi phí xây nhà rộng 6m sâu 14m 4 tầng | 2.300.000.000 đến 2.900.000.000 đồng |
Lưu ý rằng đây chỉ là chi phí tham khảo. Để có dự toán chính xác nhất, gia chủ nên liên hệ trực tiếp với các đơn vị thi công uy tín để được tư vấn, khảo sát thực tế và lập bảng dự toán chi tiết dựa trên bản vẽ thiết kế cụ thể. Việc lập kế hoạch tài chính rõ ràng ngay từ đầu sẽ giúp quá trình xây dựng diễn ra suôn sẻ, tránh các vấn đề phát sinh không mong muốn.
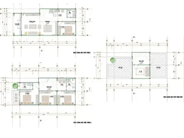
Gợi ý thiết kế nội thất tối ưu cho không gian 6x14m

Sau khi hoàn thiện phần kiến trúc, việc thiết kế nội thất đóng vai trò quan trọng trong việc định hình phong cách và tạo nên sự thoải mái, tiện nghi cho không gian sống. Đối với những căn nhà 6x14m, việc tối ưu hóa nội thất càng trở nên cần thiết để tận dụng mọi góc nhỏ và tạo cảm giác rộng rãi.
Chọn nội thất đa năng, kích thước phù hợp

Đây là nguyên tắc hàng đầu khi thiết kế nội thất cho không gian hẹp. Thay vì sử dụng những món đồ cồng kềnh, hãy ưu tiên các sản phẩm đa chức năng như sofa giường (sofa bed) cho phòng khách, bàn ăn có thể gấp gọn hoặc mở rộng, giường ngủ có ngăn kéo lưu trữ bên dưới, hay tủ âm tường. Những món đồ này không chỉ tiết kiệm diện tích mà còn tăng cường công năng sử dụng.
Kích thước của nội thất cũng cần được lựa chọn cẩn thận, cân đối với tỷ lệ của căn phòng. Tránh sử dụng đồ quá lớn so với diện tích, điều này sẽ khiến không gian trở nên chật chội và bí bách. Thay vào đó, những món đồ nhỏ gọn, có chân cao hoặc thiết kế thanh mảnh sẽ giúp tạo cảm giác thoáng đãng hơn.

Phối màu sắc và ánh sáng hài hòa
Màu sắc và ánh sáng là hai yếu tố có khả năng “đánh lừa” thị giác, giúp không gian có cảm giác rộng hơn.

- Màu sắc: Ưu tiên các tông màu sáng, pastel như trắng, kem, be, xám nhạt cho tường và trần nhà. Những màu sắc này có khả năng phản xạ ánh sáng tốt, tạo cảm giác mở rộng không gian. Có thể sử dụng một vài gam màu đậm hơn làm điểm nhấn thông qua các vật dụng trang trí nhỏ.
- Ánh sáng: Tận dụng tối đa ánh sáng tự nhiên từ giếng trời, cửa sổ, ban công. Bên cạnh đó, hệ thống chiếu sáng nhân tạo cũng cần được thiết kế thông minh. Đèn âm trần, đèn hắt tường, đèn ray sẽ giúp phân bổ ánh sáng đều khắp phòng, tránh tạo ra các góc tối gây cảm giác tù túng. Gương lớn cũng là một “thủ thuật” tuyệt vời để nhân đôi không gian và tăng cường ánh sáng cho căn phòng.
Tận dụng không gian xanh và điểm nhấn trang trí
Việc đưa yếu tố xanh vào trong nhà không chỉ mang lại vẻ đẹp tự nhiên mà còn cải thiện chất lượng không khí và tinh thần của gia chủ. Các chậu cây cảnh nhỏ, cây treo ban công, hoặc một bức tường cây giả sẽ tạo điểm nhấn sinh động cho không gian.

Các vật dụng trang trí như tranh ảnh, tượng nhỏ, đèn trang trí hay thảm trải sàn cũng góp phần định hình phong cách và cá tính của ngôi nhà. Tuy nhiên, cần tiết chế số lượng và chọn lọc kỹ càng để tránh làm rối mắt hoặc khiến không gian trở nên chật chội hơn. Mục tiêu là tạo ra những điểm nhấn tinh tế, giúp không gian 6x14m trở nên sống động và có chiều sâu.
Những câu hỏi thường gặp về mẫu nhà 6x14m

Để giúp gia chủ có cái nhìn toàn diện hơn, dưới đây là một số câu hỏi thường gặp liên quan đến việc thiết kế và xây dựng nhà 6x14m:
-
Nhà 6x14m có cần giếng trời không?

Một Số Bản Vẽ Nhà 6×14 Tối Ưu Công Năng Và Tiện Nghi - Có, giếng trời là giải pháp rất cần thiết cho nhà phố 6x14m. Với đặc thù chiều sâu lớn và hai mặt bên thường bị che chắn, giếng trời giúp đưa ánh sáng tự nhiên và luồng không khí vào sâu bên trong ngôi nhà, đảm bảo sự thông thoáng và giảm thiểu ẩm mốc, bí bách. Vị trí giếng trời có thể ở giữa nhà hoặc cuối nhà tùy theo bố cục thiết kế.
-
Có nên làm tầng hầm cho nhà 6x14m không?
- Việc có nên làm tầng hầm hay không phụ thuộc vào nhu cầu sử dụng và ngân sách của gia đình. Tầng hầm rất hữu ích để làm chỗ đậu xe, kho chứa đồ, hoặc phòng đa năng. Tuy nhiên, chi phí xây dựng tầng hầm cao hơn so với các tầng trên mặt đất do yêu cầu về chống thấm, thông gió và kết cấu phức tạp hơn. Cần cân nhắc kỹ lưỡng và tham khảo ý kiến chuyên gia.
-
Phòng ngủ chính nên đặt ở đâu trong nhà 6x14m?

Một Số Bản Vẽ Nhà 6×14 Tối Ưu Công Năng Và Tiện Nghi - Vị trí phòng ngủ chính thường được ưu tiên ở những nơi yên tĩnh nhất và có khả năng đón sáng, đón gió tốt. Trong nhà 6x14m, phòng ngủ chính có thể được đặt ở tầng 1 hoặc tầng 2, thường là ở mặt tiền hoặc phía sau nhà để tận dụng tối đa ánh sáng và sự riêng tư. Nếu đặt ở mặt tiền, có thể kết hợp với ban công để tăng thêm không gian thư giãn.
Nhìn chung, việc lựa chọn vị trí và thiết kế các không gian chức năng cần dựa trên thói quen sinh hoạt và sở thích của gia đình, đồng thời đảm bảo yếu tố phong thủy để mang lại may mắn và tài lộc.
Những mẫu thiết kế nhà 6x14m đã chứng minh được tính ưu việt trong việc kiến tạo một không gian sống hiện đại, tiện nghi và đầy đủ công năng. Với diện tích 84m² mỗi sàn, loại hình nhà này mang đến tiềm năng lớn cho sự sáng tạo trong kiến trúc và nội thất, từ việc tối ưu hóa ánh sáng, thông gió đến việc lựa chọn phong cách và vật liệu phù hợp. Dù là nhà cấp 4 ấm cúng, nhà 2 tầng hiện đại, hay nhà 3 tầng đa năng, sự cân nhắc kỹ lưỡng trong từng chi tiết thiết kế sẽ biến ngôi nhà 6x14m thành tổ ấm mơ ước của mọi gia đình. Hãy để Interstellas đồng hành cùng bạn trong hành trình kiến tạo không gian sống lý tưởng, nơi mỗi khoảnh khắc đều trở nên đáng giá. Khám phá các giải pháp nội thất sáng tạo và tư vấn chuyên sâu tại Interstellas.com.vn ngay hôm nay!




















