Thiết kế nhà 5x15m có gác lửng đang trở thành một giải pháp kiến trúc được nhiều gia đình ưa chuộng, đặc biệt tại các đô thị lớn nơi quỹ đất hạn chế. Với diện tích 5x15m, việc tích hợp gác lửng không chỉ mở rộng không gian sử dụng mà còn tạo nên những điểm nhấn độc đáo, mang đến sự thông thoáng và đa năng cho ngôi nhà. Bài viết này sẽ đi sâu vào các yếu tố cần lưu ý, những ưu điểm vượt trội và các phương án bố trí công năng khoa học để bạn có thể kiến tạo một không gian sống lý tưởng, đầy đủ tiện nghi và tính thẩm mỹ.
Tóm Tắt Các Bước Quan Trọng Khi Thiết Kế Nhà 5x15m Có Gác Lửng
Để có một ngôi nhà 5x15m với gác lửng đẹp và tối ưu công năng, quá trình thiết kế cần được thực hiện một cách bài bản và khoa học. Dưới đây là các bước chính mà gia chủ và kiến trúc sư cần lưu tâm:

Có thể bạn quan tâm: Thước Lỗ Ban 42.9 Cm Dương Trạch: Ứng Dụng Trong Nội Thất
- Xác định Công Năng và Mục Đích Sử Dụng của Gác Lửng: Quyết định rõ ràng gác lửng sẽ dùng làm gì (phòng ngủ, phòng thờ, phòng làm việc, không gian sinh hoạt chung) để lên kế hoạch bố trí không gian và kết cấu phù hợp, tránh ảnh hưởng đến phong thủy tổng thể.
- Lưu Ý Bố Trí Cầu Thang: Cầu thang là yếu tố kết nối quan trọng, cần được đặt ở vị trí hợp lý để tối ưu diện tích, đảm bảo an toàn, dễ dàng di chuyển và không phá vỡ mỹ quan kiến trúc.
- Đảm Bảo Tỷ Lệ Chiều Cao Hài Hòa: Tỷ lệ giữa chiều cao tầng trệt và gác lửng, cũng như chiều cao tổng thể ngôi nhà, phải được tính toán kỹ lưỡng để tạo cảm giác thông thoáng, không bị bí bách hay mất cân đối.
- Thiết Kế Kết Cấu Sàn Gác Lửng Chống Rung: Đảm bảo sàn gác lửng có kết cấu vững chắc, giảm thiểu rung lắc và cách âm tốt để mang lại trải nghiệm thoải mái và an toàn cho người sử dụng.
Những Lưu Ý Cốt Lõi Khi Thiết Kế Nhà 5x15m Có Gác Lửng
Thiết kế kiến trúc nhà ở, đặc biệt là loại hình nhà 5x15m có gác lửng, đòi hỏi sự cân nhắc kỹ lưỡng về nhiều yếu tố để đảm bảo cả công năng và tính thẩm mỹ. Trong đó, việc tổ chức không gian và bố trí công năng sử dụng một cách hợp lý luôn là ưu tiên hàng đầu của các kiến trúc sư. Một gác lửng được thiết kế đúng chuẩn sẽ không chỉ tăng diện tích mà còn nâng tầm giá trị sống.
Việc xác định công năng của gác lửng đóng vai trò then chốt. Gác lửng có thể được biến hóa thành nhiều không gian khác nhau như phòng ngủ phụ, phòng làm việc, thư viện nhỏ, phòng thờ hoặc khu vực sinh hoạt chung ấm cúng. Tuy nhiên, việc lựa chọn công năng cần phải hài hòa với tổng thể ngôi nhà và quan trọng hơn là không phạm vào các nguyên tắc phong thủy. Một phòng thờ trên gác lửng cần được đặt ở vị trí trang trọng, yên tĩnh, trong khi một phòng làm việc cần đủ ánh sáng và sự riêng tư.
<>Xem Thêm Bài Viết:<>- Khám Phá **Khu Công Nghiệp Tân Hương Châu Thành Tiền Giang**: Tiềm Năng Bứt Phá Và Cơ Hội Đầu Tư
- Biển số xe 20 là biển ở đâu? Giải mã ý nghĩa từ Thái Nguyên
- TiTi là ai? Hành trình sự nghiệp và những góc khuất của cựu nhóm trưởng HKT
- Nấm Linh Chi Mọc Ở Đâu? Giải Mã Môi Trường Sống Thần Dược
- Kinh nghiệm thuê chung cư Giai Việt Quận 8: Lựa chọn lý tưởng cho cuộc sống hiện đại

Có thể bạn quan tâm: Làm Thế Nào Để Tạo Điểm Nhấn Cho Phòng Khách Cuốn Hút?

Có thể bạn quan tâm: Kính Lấy Sáng Cầu Thang: Hướng Dẫn Lựa Chọn Và Ứng Dụng Hiệu Quả

Bên cạnh đó, vị trí và thiết kế cầu thang dẫn lên gác lửng cũng là một yếu tố không thể bỏ qua. Cầu thang không chỉ là lối đi mà còn là một phần của kiến trúc nội thất, cần được bố trí sao cho tiện lợi, an toàn và không chiếm quá nhiều diện tích. Các giải pháp cầu thang xoắn ốc, cầu thang dạng hộp hoặc cầu thang tích hợp không gian lưu trữ đang ngày càng được ưa chuộng cho những ngôi nhà có diện tích khiêm tốn. Việc tính toán độ dốc, chiều rộng và chiều cao bậc thang là cực kỳ quan trọng để đảm bảo sự thoải mái khi di chuyển.
Tỷ lệ chiều cao của gác lửng so với không gian tổng thể của ngôi nhà cần được cân nhắc kỹ lưỡng. Gác lửng quá thấp có thể gây cảm giác bí bách, ngột ngạt, trong khi quá cao lại làm mất đi sự kết nối và ấm cúng giữa các không gian. Thông thường, chiều cao của tầng trệt nên từ 3.6m đến 4.5m để có thể bố trí một gác lửng với chiều cao phù hợp, thường là khoảng 2.2m đến 2.5m từ sàn gác lửng lên trần. Điều này giúp đảm bảo không gian dưới gác lửng vẫn đủ thoáng và gác lửng cũng không bị tù túng.
Cuối cùng, kết cấu sàn gác lửng là một yếu tố kỹ thuật không thể xem nhẹ. Sàn gác lửng cần được thiết kế vững chắc để chống rung, đảm bảo an toàn và sự ổn định cho toàn bộ công trình. Việc lựa chọn vật liệu như bê tông cốt thép, sàn gỗ công nghiệp cao cấp hoặc sàn panel nhẹ đều cần được tính toán cẩn thận bởi các kỹ sư kết cấu. Đảm bảo sàn gác lửng có khả năng chịu lực tốt và cách âm hiệu quả sẽ nâng cao chất lượng sống cho gia đình.
5 Ưu Điểm Nổi Bật Khi Thiết Kế Nhà 5x15m Có Gác Lửng




Việc lựa chọn thiết kế nhà 5x15m có gác lửng mang lại nhiều lợi ích thiết thực, biến những hạn chế về diện tích thành những ưu thế độc đáo. Dưới đây là 5 ưu điểm nổi bật giúp kiểu nhà này trở thành lựa chọn hàng đầu cho nhiều gia đình hiện đại.
1. Tối ưu hóa không gian sống hiệu quả
Gác lửng là giải pháp lý tưởng để nhân đôi diện tích sử dụng mà không cần mở rộng thêm mặt bằng. Với một ngôi nhà 5x15m, mỗi mét vuông đều quý giá. Gác lửng cho phép tạo thêm một tầng chức năng, có thể là phòng ngủ, phòng làm việc, phòng thờ, hoặc không gian sinh hoạt chung, giúp gia đình có thêm không gian riêng tư mà vẫn duy trì sự thông thoáng ở tầng trệt. Điều này đặc biệt hữu ích cho các gia đình đông thành viên hoặc có nhu cầu sử dụng đa dạng.
2. Tiết kiệm chi phí xây dựng đáng kể
So với việc xây dựng thêm một tầng lầu hoàn chỉnh, việc làm gác lửng có chi phí thấp hơn đáng kể. Gác lửng không đòi hỏi nền móng riêng hay hệ thống tường bao quanh phức tạp. Các vật liệu xây dựng cho gác lửng thường nhẹ hơn và quá trình thi công cũng nhanh gọn hơn, giúp gia chủ tiết kiệm được một khoản đầu tư lớn trong khi vẫn đạt được mục tiêu mở rộng không gian. Đây là một lợi thế tài chính quan trọng, đặc biệt khi ngân sách xây dựng có hạn.
3. Không gian nội thất thông thoáng và linh hoạt

Một trong những ưu điểm lớn nhất của nhà có gác lửng là khả năng duy trì sự thông thoáng và kết nối thị giác giữa các tầng. Thay vì chia cắt hoàn toàn, gác lửng thường có thiết kế mở, nhìn xuống tầng trệt, tạo cảm giác rộng rãi và liên thông cho toàn bộ ngôi nhà. Trần nhà cao ở khu vực thông tầng cũng giúp ánh sáng tự nhiên và luồng khí lưu thông tốt hơn, mang lại không gian sống trong lành và dễ chịu. Sự linh hoạt trong việc bố trí nội thất cũng được tăng cường nhờ không gian mở này.
4. Dễ dàng bố trí và phân khu công năng
Gác lửng cung cấp một “tầng” bổ sung để phân chia các khu vực chức năng một cách rõ ràng nhưng vẫn hài hòa. Tầng trệt có thể dành cho các không gian công cộng như phòng khách, bếp ăn, trong khi gác lửng là nơi riêng tư hơn. Điều này giúp sắp xếp không gian hợp lý, tạo sự thuận tiện trong sinh hoạt hàng ngày và tối ưu hóa trải nghiệm người dùng. Việc phân khu rõ ràng nhưng không cứng nhắc giúp mỗi không gian phát huy tối đa công năng của mình.
5. Phù hợp với nhiều thế đất và phong cách thiết kế
Kiến trúc gác lửng đặc biệt phù hợp với những khu đất có diện tích nhỏ hoặc hình dạng không vuông vức, giúp tận dụng tối đa lợi thế của mặt bằng. Hơn nữa, nó có thể được tích hợp vào nhiều phong cách thiết kế khác nhau, từ hiện đại, tối giản đến công nghiệp hay scandinavian. Sự linh hoạt trong thiết kế cho phép kiến trúc sư và gia chủ tạo ra những không gian độc đáo, thể hiện cá tính riêng mà vẫn đảm bảo tính ứng dụng cao. Gác lửng không chỉ là một giải pháp công năng mà còn là một yếu tố thẩm mỹ mạnh mẽ.




Các Yếu Tố Ảnh Hưởng Đến Thiết Kế Gác Lửng Trong Nhà 5x15m
Việc thiết kế gác lửng không chỉ đơn thuần là thêm một sàn phụ vào ngôi nhà mà còn cần xem xét nhiều yếu tố kỹ thuật, thẩm mỹ và công năng. Với diện tích 5x15m, mỗi quyết định thiết kế đều có tác động lớn đến trải nghiệm sống.
Chiều cao trần nhà
Chiều cao trần nhà là yếu tố quan trọng nhất quyết định sự thành công của gác lửng. Một ngôi nhà 5x15m cần có chiều cao trần đủ lớn ở tầng trệt, thường từ 3.6m đến 4.5m, để có thể chia thành hai không gian chức năng mà không gây cảm giác chật chội. Nếu trần quá thấp, gác lửng sẽ trở nên bí bách, làm giảm giá trị sử dụng và thẩm mỹ của cả hai tầng. Chiều cao tối thiểu cho gác lửng thường là 2.2m để đảm bảo người trưởng thành có thể đứng thẳng thoải mái.
Kết cấu và vật liệu xây dựng
Kết cấu gác lửng phải được tính toán kỹ lưỡng để đảm bảo an toàn chịu lực. Các lựa chọn vật liệu phổ biến bao gồm bê tông cốt thép, sàn gỗ hoặc kết cấu thép nhẹ. Mỗi loại vật liệu có ưu nhược điểm riêng về chi phí, trọng lượng và khả năng thi công. Sàn bê tông cốt thép mang lại sự vững chắc tối đa nhưng có thể nặng và tốn thời gian thi công hơn. Sàn gỗ hoặc thép nhẹ linh hoạt hơn, phù hợp với các giải pháp nhanh gọn và có thể giảm tải trọng cho móng nhà. Việc lựa chọn vật liệu còn ảnh hưởng đến khả năng cách âm và chống rung.
Ánh sáng tự nhiên và thông gió
Gác lửng thường nằm ở vị trí trung tâm hoặc cuối nhà, có thể bị hạn chế về ánh sáng và thông gió tự nhiên. Do đó, trong quá trình thiết kế, cần đặc biệt chú ý đến việc tạo ra các ô cửa sổ lớn, giếng trời hoặc các khe thông gió để đảm bảo không gian luôn sáng sủa và thoáng đãng. Việc sử dụng vách ngăn bằng kính hoặc lan can kính cường lực thay vì tường đặc cũng giúp ánh sáng dễ dàng lan tỏa khắp các không gian, tạo cảm giác mở và rộng hơn cho ngôi nhà.
Vị trí và loại hình cầu thang
Cầu thang là cầu nối không gian giữa tầng trệt và gác lửng, đồng thời cũng là một điểm nhấn kiến trúc. Với diện tích 5x15m, việc tối ưu hóa vị trí cầu thang là rất quan trọng để không chiếm dụng quá nhiều không gian. Các lựa chọn như cầu thang thẳng dọc theo tường, cầu thang xoắn ốc hoặc cầu thang chữ L được thiết kế gọn gàng có thể giúp tiết kiệm diện tích hiệu quả. Ngoài ra, việc tích hợp không gian lưu trữ dưới gầm cầu thang cũng là một giải pháp thông minh để tăng cường công năng.
Mục đích sử dụng của gác lửng
Mục đích sử dụng của gác lửng sẽ định hình thiết kế chi tiết. Nếu là phòng ngủ, cần đảm bảo sự riêng tư và cách âm. Nếu là phòng làm việc, cần đủ ánh sáng và không gian yên tĩnh. Nếu là không gian sinh hoạt chung, cần sự linh hoạt trong bố trí nội thất. Việc xác định rõ ràng công năng ngay từ đầu giúp kiến trúc sư đưa ra các giải pháp thiết kế phù hợp về bố cục, vật liệu và hệ thống chiếu sáng, đảm bảo gác lửng thực sự phát huy giá trị của nó.
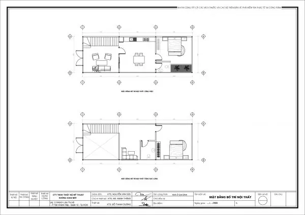
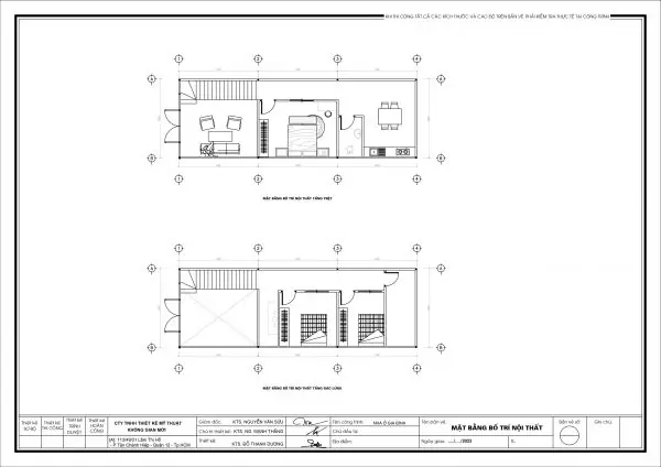
04 Phương Án Thiết Kế Bố Trí Công Năng Nhà 5x15m Có Gác Lửng Tối Ưu
Đối với một ngôi nhà có kích thước 5x15m và có gác lửng, việc bố trí công năng một cách thông minh là chìa khóa để tạo nên một không gian sống tiện nghi, thoáng đãng và đáp ứng đầy đủ nhu cầu của gia đình. Dưới đây là 04 phương án bố trí công năng thường gặp, được nhiều gia chủ lựa chọn và đã chứng minh hiệu quả trong thực tế.
Phương án 01: Thiết kế tối ưu cho gia đình 3-4 thành viên
Với phương án này, tầng trệt sẽ được quy hoạch một cách mở và linh hoạt để phục vụ các hoạt động chung. Một phòng khách rộng rãi sẽ được đặt ở phía trước, tận dụng ánh sáng tự nhiên. Kế đến là khu vực bếp và phòng ăn được thiết kế liên thông, tạo sự kết nối trong sinh hoạt gia đình. Phía sau có thể là một phòng ngủ nhỏ hoặc phòng thờ yên tĩnh, kèm theo một nhà vệ sinh chung tiện lợi. Gác lửng sẽ là không gian riêng tư hơn, được bố trí hai phòng ngủ và một nhà vệ sinh chung, phù hợp cho trẻ em hoặc khách.
Phương án 02: Ưu tiên không gian sinh hoạt chung và riêng tư
Phương án này nhấn mạnh sự cân bằng giữa không gian sinh hoạt chung và các phòng riêng. Tầng trệt được dành cho phòng khách và bếp ăn, tạo thành một không gian mở lớn. Một phòng ngủ nhỏ có thể được bố trí ở phía sau để tăng tính linh hoạt. Trên gác lửng, một phòng ngủ lớn (phòng master) sẽ có không gian rộng rãi hơn, kèm theo một phòng sinh hoạt chung nhỏ và một phòng thờ trang nghiêm. Phương án này thường có hai nhà vệ sinh, một ở tầng trệt và một trên gác lửng để thuận tiện.
Phương án 03: Đề cao số lượng phòng ngủ
Nếu gia đình có nhu cầu về nhiều phòng ngủ, phương án này sẽ là lựa chọn lý tưởng. Tầng trệt sẽ bao gồm một phòng khách và khu vực bếp ăn, cùng với một phòng ngủ phụ tiện nghi. Gác lửng được tận dụng tối đa để bố trí hai phòng ngủ còn lại, đảm bảo mỗi thành viên đều có không gian riêng tư. Tổng cộng sẽ có ba phòng ngủ, đáp ứng nhu cầu của gia đình có từ 4-5 thành viên. Hai nhà vệ sinh được phân bổ hợp lý ở mỗi tầng để phục vụ chung. Bố cục này đòi hỏi sự tối giản trong các không gian khác để không gian phòng ngủ được ưu tiên.
Phương án 04: Linh hoạt với phòng làm việc hoặc học tập
Phương án này tập trung vào việc tạo ra các không gian đa năng. Tầng trệt bao gồm phòng khách, bếp và phòng ăn, cùng với một nhà vệ sinh chung. Gác lửng sẽ được thiết kế với hai phòng ngủ và một phòng sinh hoạt chung có thể kiêm chức năng phòng làm việc hoặc phòng học. Điều này cho phép gia đình có sự linh hoạt trong việc sử dụng không gian, đáp ứng nhu cầu làm việc tại nhà hoặc học tập của các thành viên. Đây là một giải pháp thông minh cho những gia đình hiện đại, muốn tối ưu hóa từng mét vuông không gian.
Các phương án trên chỉ là gợi ý ban đầu. Điều quan trọng là phải có sự tư vấn chuyên nghiệp từ các kiến trúc sư để điều chỉnh và cá nhân hóa thiết kế sao cho phù hợp nhất với phong cách sống, sở thích và ngân sách của gia đình bạn.
Các Phong Cách Thiết Kế Nội Thất Phù Hợp Với Nhà 5x15m Có Gác Lửng
Việc lựa chọn phong cách thiết kế nội thất phù hợp không chỉ giúp tối ưu hóa không gian mà còn thể hiện cá tính của gia chủ. Với thiết kế nhà 5x15m có gác lửng, những phong cách ưu tiên sự đơn giản, hiện đại và tận dụng ánh sáng tự nhiên sẽ là lựa chọn lý tưởng.
Phong cách Hiện đại (Modern)
Phong cách hiện đại là sự lựa chọn hàng đầu cho nhà có diện tích khiêm tốn. Đặc trưng bởi các đường nét gọn gàng, màu sắc trung tính (trắng, xám, be), và vật liệu như kính, kim loại, gỗ công nghiệp. Phong cách này chú trọng vào công năng, loại bỏ các chi tiết rườm rà, giúp không gian trở nên rộng rãi và thông thoáng hơn. Nội thất đa năng, tích hợp là điểm cộng lớn, chẳng hạn như kệ sách ẩn dưới cầu thang hoặc sofa giường. Gác lửng trong phong cách hiện đại thường có lan can kính hoặc thanh thép mảnh để không cản tầm nhìn, tạo sự liền mạch.
Phong cách Tối giản (Minimalist)
Tối giản là xu hướng “Less is more”, rất phù hợp với nhà 5x15m có gác lửng. Phong cách này tập trung vào những đồ nội thất thiết yếu, có đường nét tinh tế, màu sắc đơn sắc và ít hoa văn. Mục tiêu là tạo ra không gian thanh lịch, gọn gàng và thư thái. Gác lửng sẽ được thiết kế đơn giản nhất có thể, tập trung vào ánh sáng tự nhiên và không gian trống. Việc hạn chế đồ đạc không cần thiết giúp ngôi nhà luôn ngăn nắp và thoáng đãng, đồng thời làm nổi bật vẻ đẹp của kiến trúc tổng thể.
Phong cách Bắc Âu (Scandinavian)
Phong cách Scandinavian mang đến sự ấm cúng, tươi sáng và gần gũi với thiên nhiên. Với việc sử dụng tông màu trắng chủ đạo, kết hợp với các vật liệu gỗ tự nhiên, vải lanh, lông thú và cây xanh, không gian sẽ trở nên nhẹ nhàng, dễ chịu. Ánh sáng tự nhiên được tối đa hóa, rất phù hợp với khu vực gác lửng vốn cần nhiều ánh sáng. Nội thất thường có thiết kế đơn giản, tiện dụng, tập trung vào sự thoải mái và chức năng. Gác lửng theo phong cách này có thể là một góc đọc sách lý tưởng hoặc phòng ngủ ấm áp.
Phong cách Công nghiệp (Industrial)
Nếu bạn yêu thích sự mạnh mẽ, cá tính và độc đáo, phong cách công nghiệp có thể là một lựa chọn thú vị. Đặc trưng bởi các yếu tố thô mộc như tường gạch không trát, trần bê tông, đường ống dẫn lộ thiên, và vật liệu kim loại, gỗ thô. Với nhà có gác lửng, phong cách này tạo ra một không gian ấn tượng, đầy phá cách. Lan can gác lửng bằng thép đen, cầu thang sắt với bậc gỗ sẽ là điểm nhấn mạnh mẽ. Tuy nhiên, cần khéo léo kết hợp với ánh sáng ấm và cây xanh để tránh cảm giác quá lạnh lẽo.
Phong cách Japandi (Japanese + Scandinavian)
Japandi là sự kết hợp tinh tế giữa vẻ đẹp tối giản của Nhật Bản và sự ấm áp của Scandinavian. Phong cách này tập trung vào các vật liệu tự nhiên, sự cân bằng, hài hòa và công năng. Màu sắc chủ đạo là các tông màu đất, be, trắng, xám kết hợp với gỗ sáng màu. Japandi tạo ra một không gian yên bình, thanh tịnh và gọn gàng, rất thích hợp cho những ngôi nhà có diện tích hạn chế và cần sự tối ưu. Gác lửng trong phong cách Japandi sẽ là một không gian thiền định, thư giãn hoặc phòng trà yên tĩnh.
Vật Liệu Hoàn Thiện Tối Ưu Cho Nhà 5x15m Có Gác Lửng
Việc lựa chọn vật liệu hoàn thiện không chỉ ảnh hưởng đến thẩm mỹ mà còn quyết định độ bền, khả năng chống chịu và cảm giác chung của không gian. Đối với thiết kế nhà 5x15m có gác lửng, việc cân nhắc kỹ lưỡng về vật liệu là cực kỳ quan trọng để tối ưu hóa không gian và chi phí.
Sàn nhà
- Sàn gỗ công nghiệp: Là lựa chọn phổ biến nhờ vẻ đẹp tự nhiên, đa dạng mẫu mã, chi phí hợp lý và dễ dàng lắp đặt. Sàn gỗ tạo cảm giác ấm cúng, sang trọng, và có khả năng cách âm tương đối. Tuy nhiên, cần chọn loại có khả năng chống ẩm tốt, đặc biệt ở tầng trệt.
- Gạch men/Porcelain: Bền, dễ vệ sinh, chống thấm tốt và có nhiều lựa chọn về màu sắc, họa tiết. Phù hợp cho khu vực tầng trệt, bếp và nhà vệ sinh. Có thể chọn gạch vân gỗ để tạo sự đồng điệu với không gian sử dụng gỗ.
- Sàn bê tông mài/đánh bóng: Mang lại vẻ đẹp hiện đại, công nghiệp, chi phí thấp và độ bền cao. Phù hợp cho những gia chủ yêu thích sự tối giản và cá tính. Sàn bê tông cũng có khả năng giữ nhiệt tốt.
Trần nhà
- Trần thạch cao: Linh hoạt trong thiết kế, có thể tạo nhiều kiểu dáng, hiệu ứng ánh sáng. Thạch cao giúp che đi hệ thống kỹ thuật, cách âm và cách nhiệt tốt. Có thể kết hợp đèn LED âm trần để tạo không gian hiện đại.
- Trần gỗ/gỗ công nghiệp: Mang lại vẻ đẹp ấm cúng, sang trọng và gần gũi. Thường được sử dụng cho khu vực gác lửng hoặc các điểm nhấn trang trí.
- Trần để thô (bê tông/ống dẫn): Phù hợp với phong cách công nghiệp, tạo vẻ đẹp mạnh mẽ, độc đáo. Giúp tiết kiệm chi phí vật liệu và thi công.
Lan can gác lửng
Lan can không chỉ đảm bảo an toàn mà còn là yếu tố thẩm mỹ quan trọng, đặc biệt khi gác lửng là không gian mở.
- Kính cường lực: Mang lại vẻ đẹp hiện đại, sang trọng, giúp không gian mở rộng tối đa và không cản tầm nhìn. Dễ vệ sinh và tạo cảm giác nhẹ nhàng, thanh thoát.
- Thép/Sắt mỹ thuật: Phù hợp với nhiều phong cách, từ hiện đại đến công nghiệp. Có thể tạo ra các hoa văn độc đáo, tăng tính nghệ thuật cho không gian.
- Gỗ: Tạo cảm giác ấm cúng, tự nhiên. Thích hợp với phong cách Scandinavian, Japandi hoặc những ai yêu thích vẻ đẹp truyền thống.
Cầu thang
Cầu thang là điểm nhấn kiến trúc và là yếu tố kết nối.
- Gỗ tự nhiên/công nghiệp: Bền đẹp, tạo cảm giác ấm áp. Có thể kết hợp với khung thép hoặc kính để tạo sự hiện đại.
- Thép: Cầu thang thép mang vẻ đẹp mạnh mẽ, hiện đại, thường được sơn tĩnh điện. Phù hợp với phong cách công nghiệp hoặc tối giản. Có thể là bậc thang không tay vịn hoặc dạng xoắn ốc để tiết kiệm diện tích.
- Bê tông: Bền chắc, chi phí hợp lý. Có thể ốp thêm vật liệu khác như gỗ, đá hoặc sơn màu để tăng tính thẩm mỹ.
Việc lựa chọn vật liệu nên dựa trên ngân sách, phong cách mong muốn và các yếu tố kỹ thuật của ngôi nhà. Sự phối hợp hài hòa giữa các vật liệu sẽ tạo nên một không gian sống thống nhất, đẹp mắt và tiện nghi.
Giải Pháp Nội Thất Thông Minh Cho Nhà 5x15m Có Gác Lửng
Với không gian 5x15m và sự hiện diện của gác lửng, việc áp dụng nội thất thông minh là chìa khóa để tối đa hóa công năng và mang lại sự tiện nghi vượt trội. Các giải pháp này không chỉ giúp tiết kiệm diện tích mà còn tạo nên một không gian sống đa chức năng và hiện đại.
Nội thất đa năng và tích hợp
Đây là giải pháp cốt lõi cho mọi không gian nhỏ. Ví dụ điển hình là giường ngủ kết hợp ngăn kéo lưu trữ, sofa bed (sofa kiêm giường ngủ), bàn ăn gấp gọn, hoặc tủ quần áo âm tường. Các món đồ này giúp chuyển đổi công năng linh hoạt khi cần thiết, giải phóng không gian khi không sử dụng. Tại Interstellas, chúng tôi luôn ưu tiên các thiết kế này để mang lại sự tiện ích tối đa cho gia chủ.
Tận dụng không gian theo chiều dọc
Nhà có gác lửng đã là một minh chứng cho việc tận dụng chiều cao. Tiếp tục áp dụng nguyên tắc này với các hệ tủ kịch trần, kệ sách cao, hoặc giá treo đồ trang trí. Điều này không chỉ tăng cường khả năng lưu trữ mà còn tạo cảm giác trần nhà cao hơn, không gian thoáng đãng hơn. Các hệ thống kệ âm tường cũng là một cách hiệu quả để giữ cho không gian gọn gàng.
Nội thất di động và có thể xếp gọn
Bàn trà có bánh xe, ghế đẩu có thể xếp chồng, hoặc các module nội thất có thể tháo rời và lắp ghép linh hoạt. Những món đồ này cho phép gia chủ dễ dàng thay đổi bố cục không gian theo nhu cầu sử dụng, từ khu vực tiếp khách sang không gian vui chơi cho trẻ em chỉ trong vài phút.
Giải pháp lưu trữ thông minh
Ngoài các tủ âm tường, hãy nghĩ đến các hộc tủ dưới gầm cầu thang, ngăn kéo dưới sàn gác lửng hoặc các hộp lưu trữ đa năng. Tận dụng mọi ngóc ngách để cất giữ đồ đạc sẽ giúp ngôi nhà luôn ngăn nắp và tránh tình trạng bừa bộn. Hệ tủ bếp thiết kế khoa học với nhiều ngăn kéo, giá treo cũng là yếu tố quan trọng.
Ánh sáng nhân tạo linh hoạt
Sử dụng hệ thống chiếu sáng đa lớp, bao gồm đèn trần, đèn tường, đèn sàn và đèn trang trí, để tạo ra các kịch bản chiếu sáng khác nhau. Đèn downlight âm trần, đèn LED dây hoặc đèn rọi điểm giúp làm nổi bật các khu vực chức năng, đồng thời tạo cảm giác ấm cúng và chiều sâu cho không gian. Điều khiển ánh sáng thông minh cũng giúp điều chỉnh cường độ và màu sắc theo từng thời điểm.
Vách ngăn di động hoặc bằng kính
Thay vì các bức tường cố định, sử dụng vách ngăn di động, rèm cửa, hoặc các tấm kính cường lực để phân chia không gian. Điều này giúp duy trì sự kết nối thị giác, cho phép ánh sáng tự nhiên lan tỏa khắp nhà, đồng thời vẫn đảm bảo sự riêng tư khi cần thiết. Vách ngăn kính cường lực đặc biệt hiệu quả trong việc tạo cảm giác mở và hiện đại cho gác lửng.
Bằng cách tích hợp các giải pháp nội thất thông minh này, ngôi nhà 5x15m có gác lửng sẽ trở thành một không gian sống không chỉ đẹp mắt, hiện đại mà còn vô cùng tiện nghi và linh hoạt, đáp ứng mọi nhu cầu của gia đình.
Tối Ưu Ánh Sáng Tự Nhiên và Thông Gió Trong Nhà 5x15m Có Gác Lửng
Ánh sáng tự nhiên và thông gió là hai yếu tố cực kỳ quan trọng, đặc biệt đối với những ngôi nhà phố có diện tích hẹp và dài như 5x15m, lại có thêm gác lửng. Việc tối ưu hóa chúng không chỉ giúp tiết kiệm năng lượng mà còn cải thiện chất lượng không khí, mang lại sức khỏe và tinh thần tốt cho cư dân.
Thiết kế giếng trời
Giếng trời là một giải pháp hiệu quả để đưa ánh sáng và gió tươi vào sâu bên trong ngôi nhà. Với nhà 5x15m có gác lửng, giếng trời thường được đặt ở khu vực cầu thang hoặc giữa nhà, xuyên suốt từ mái xuống tầng trệt. Điều này không chỉ chiếu sáng cho khu vực gác lửng mà còn lan tỏa xuống các không gian bên dưới, tạo hiệu ứng thị giác ấn tượng và tăng cường sự thông thoáng. Việc thiết kế mái che giếng trời cần có cơ chế đóng mở hoặc thông gió tự nhiên để điều chỉnh lượng gió và tránh mưa hắt.
Tận dụng mặt tiền và mặt hậu
Đối với nhà phố, mặt tiền và mặt hậu là hai nguồn cung cấp ánh sáng và gió chính. Cần thiết kế các hệ cửa sổ lớn, cửa đi rộng ở cả hai mặt để tối đa hóa lượng ánh sáng đi vào và tạo ra luồng đối lưu không khí. Cửa sổ có thể là dạng trượt, quay lật hoặc xếp trượt để mở rộng tối đa diện tích tiếp xúc với bên ngoài. Việc sử dụng kính cường lực trong suốt hoặc có khả năng cản tia UV tốt sẽ giúp điều hòa nhiệt độ bên trong.
Sử dụng vật liệu trong suốt hoặc bán trong suốt
Lan can gác lửng bằng kính cường lực là một ví dụ điển hình. Thay vì lan can gỗ hoặc tường đặc, kính giúp ánh sáng từ giếng trời hoặc mặt tiền dễ dàng xuyên qua, làm sáng bừng cả khu vực gác lửng và tầng trệt. Vách ngăn bằng kính cho các phòng trên gác lửng (ví dụ: phòng làm việc) cũng là một lựa chọn thông minh để duy trì sự kết nối không gian và ánh sáng.
Thiết kế không gian mở và liên thông
Các khu vực chức năng ở tầng trệt như phòng khách, bếp và phòng ăn nên được thiết kế liên thông, không có vách ngăn cứng nhắc. Điều này tạo ra một không gian rộng lớn, giúp ánh sáng và gió lưu thông tự do hơn. Sự kết nối giữa tầng trệt và gác lửng qua khoảng thông tầng cũng đóng vai trò quan trọng trong việc truyền dẫn ánh sáng và không khí.
Lựa chọn màu sắc và nội thất
Màu sắc sáng như trắng, be, xám nhạt không chỉ tạo cảm giác rộng rãi mà còn có khả năng phản xạ ánh sáng tốt, giúp ngôi nhà trông sáng sủa hơn. Nội thất tối giản, có thiết kế thanh mảnh cũng góp phần giảm bớt sự nặng nề, tạo cảm giác nhẹ nhàng và thông thoáng. Tránh sử dụng quá nhiều đồ đạc cồng kềnh hoặc các vật dụng chắn sáng.
Bằng cách tích hợp các giải pháp này, ngôi nhà 5x15m có gác lửng sẽ không chỉ đẹp về mặt kiến trúc mà còn mang lại một môi trường sống trong lành, đầy đủ ánh sáng và năng lượng tích cực cho gia đình.
Chi Phí Thiết Kế & Thi Công Nhà 5x15m Có Gác Lửng và Các Yếu Tố Ảnh Hưởng
Chi phí là một trong những yếu tố hàng đầu mà mọi gia chủ quan tâm khi quyết định xây dựng một ngôi nhà, đặc biệt là loại hình thiết kế nhà 5x15m có gác lửng. Để có một cái nhìn tổng quan và chuẩn bị ngân sách hiệu quả, cần hiểu rõ các yếu tố ảnh hưởng đến chi phí thiết kế và thi công.
Chi phí thiết kế kiến trúc
Chi phí thiết kế thường được tính theo mét vuông hoặc theo gói trọn gói, tùy thuộc vào độ phức tạp của dự án và kinh nghiệm của đơn vị thiết kế. Thông thường, một hồ sơ thiết kế đầy đủ bao gồm kiến trúc, kết cấu, điện nước (MEP) có giá dao động từ 150.000 VNĐ đến 250.000 VNĐ/m². Đối với nhà có gác lửng, việc tính toán kết cấu sẽ phức tạp hơn một chút, có thể ảnh hưởng nhẹ đến chi phí. Tuy nhiên, việc đầu tư vào thiết kế chuyên nghiệp là vô cùng quan trọng. Một bản vẽ chi tiết, khoa học sẽ giúp gia chủ hình dung rõ ràng về không gian, tối ưu công năng, và quan trọng nhất là tiết kiệm chi phí phát sinh trong quá trình thi công. Nó giúp kiểm soát khối lượng vật tư, chất lượng công trình và dự trù được kinh phí tài chính đầu tư một cách chính xác.
Chi phí thi công phần thô
Phần thô bao gồm móng, khung sườn, sàn, tường, mái và các hạng mục kết cấu cơ bản. Chi phí này dao động từ 3.500.000 VNĐ đến 4.500.000 VNĐ/m² tùy thuộc vào chất lượng vật tư, phương pháp thi công và địa hình. Nhà có gác lửng sẽ có thêm chi phí cho kết cấu sàn gác lửng và cầu thang, nhưng bù lại, phần diện tích gác lửng thường có đơn giá thấp hơn so với sàn bê tông cốt thép thông thường nếu sử dụng vật liệu nhẹ.
Chi phí hoàn thiện
Đây là phần chi phí có sự biến động lớn nhất, phụ thuộc vào lựa chọn vật liệu và phong cách nội thất của gia chủ. Các hạng mục bao gồm lát sàn, ốp tường, sơn, lắp đặt cửa, thiết bị vệ sinh, thiết bị điện, và các vật liệu trang trí khác. Chi phí hoàn thiện có thể từ 2.000.000 VNĐ đến 5.000.000 VNĐ/m² hoặc cao hơn. Ví dụ, việc sử dụng gỗ tự nhiên cao cấp, đá marble, hoặc thiết bị thông minh nhập khẩu sẽ làm tăng đáng kể tổng mức đầu tư.
Chi phí nội thất
Bao gồm tất cả đồ đạc bên trong nhà như bàn ghế, giường tủ, sofa, rèm cửa, đồ trang trí… Chi phí nội thất có thể linh hoạt từ vài chục triệu đến vài trăm triệu, tùy thuộc vào thương hiệu, chất liệu và mức độ tùy chỉnh. Các giải pháp nội thất thông minh, đa năng thường có giá cao hơn nhưng lại mang lại giá trị sử dụng lâu dài và tối ưu hóa không gian hiệu quả.
Các yếu tố khác ảnh hưởng đến chi phí
- Địa điểm xây dựng: Chi phí vận chuyển vật tư, nhân công có thể khác nhau giữa các khu vực.
- Thời điểm xây dựng: Giá vật liệu và nhân công có thể thay đổi theo thị trường và mùa vụ.
- Độ phức tạp của thiết kế: Các thiết kế có nhiều chi tiết kiến trúc độc đáo, hình khối phức tạp sẽ đòi hỏi kỹ thuật thi công cao hơn và chi phí lớn hơn.
- Chất lượng vật liệu: Từ vật liệu xây dựng cơ bản đến vật liệu hoàn thiện và nội thất, việc lựa chọn chất lượng cao hơn đồng nghĩa với chi phí cao hơn.
- Đơn vị thi công: Các đơn vị uy tín, có kinh nghiệm thường có chi phí cao hơn nhưng đảm bảo chất lượng và tiến độ.
Để có kế hoạch tài chính vững chắc, gia chủ nên làm việc chặt chẽ với kiến trúc sư và nhà thầu để có bảng dự toán chi tiết, minh bạch ngay từ đầu. Điều này giúp tránh phát sinh chi phí không mong muốn và đảm bảo công trình hoàn thành đúng như mong đợi.
Phong Thủy Cho Nhà 5x15m Có Gác Lửng: Hóa Giải Bất Lợi, Tăng Cát Khí
Trong kiến trúc nhà ở truyền thống Việt Nam, phong thủy luôn đóng vai trò quan trọng, đặc biệt với những cấu trúc đặc biệt như nhà 5x15m có gác lửng. Việc áp dụng các nguyên tắc phong thủy một cách khoa học sẽ giúp hóa giải những điểm bất lợi, thu hút cát khí, mang lại may mắn và thịnh vượng cho gia chủ.
Vị trí và công năng của gác lửng
Theo phong thủy, gác lửng không nên chiếm quá 2/3 diện tích tầng trệt để tránh tạo cảm giác đè nén, tù túng cho không gian bên dưới. Nó cần được thiết kế thông thoáng, có đủ ánh sáng để năng lượng có thể lưu chuyển hài hòa.
- Phòng thờ: Nếu đặt phòng thờ trên gác lửng, cần đảm bảo không gian yên tĩnh, sạch sẽ, hướng bàn thờ phải hợp mệnh gia chủ và không đối diện nhà vệ sinh hay giường ngủ. Tốt nhất là có một bức tường vững chắc ở phía sau.
- Phòng ngủ: Tránh đặt giường ngủ ngay dưới dầm hoặc xà ngang của trần gác lửng, điều này có thể gây áp lực tâm lý và ảnh hưởng sức khỏe. Giường cũng không nên đối diện cửa ra vào hoặc nhà vệ sinh.
- Phòng làm việc/học tập: Nên đặt ở vị trí có ánh sáng tự nhiên tốt, tránh quay lưng ra cửa sổ hoặc cửa ra vào để tạo sự ổn định và tập trung.
- Tránh đặt nhà vệ sinh trên gác lửng ngay phía trên phòng khách, bếp hoặc bàn thờ: Đây là điều tối kỵ trong phong thủy, vì năng lượng tiêu cực từ nhà vệ sinh có thể ảnh hưởng đến các không gian quan trọng bên dưới.
Cầu thang dẫn lên gác lửng
Cầu thang là huyết mạch kết nối năng lượng giữa các tầng.
- Vị trí: Tránh đặt cầu thang ở trung tâm nhà (khu vực Thái Cực) vì có thể làm xáo trộn năng lượng. Nên đặt ở vị trí lệch sang một bên, thuận tiện cho việc di chuyển nhưng không ảnh hưởng đến sự lưu thông khí.
- Số bậc: Tuân theo quy tắc “sinh – lão – bệnh – tử”, số bậc thang nên rơi vào cung “sinh” (thường là các số chia 4 dư 1 hoặc 2, ví dụ: 17, 21, 25…).
- Hình dáng: Cầu thang nên có độ dốc vừa phải, bậc thang rộng rãi, tránh quá dốc hoặc hẹp gây khó khăn khi đi lại và cản trở dòng chảy năng lượng. Cầu thang xoắn ốc cần được cân nhắc kỹ, nếu sử dụng nên đảm bảo độ an toàn và không quá gắt.
Ánh sáng và thông gió
Ánh sáng và gió tự nhiên là yếu tố quan trọng nhất trong phong thủy.
- Giếng trời: Nếu có giếng trời, cần đảm bảo thông thoáng, sạch sẽ và không bị che chắn. Giếng trời giúp dẫn khí và ánh sáng vào sâu trong nhà, đặc biệt là khu vực gác lửng.
- Cửa sổ, cửa đi: Tối đa hóa việc sử dụng cửa sổ lớn ở mặt tiền và mặt hậu để đón ánh sáng và gió. Cần có rèm cửa hoặc vật liệu che chắn phù hợp để điều hòa ánh sáng quá mạnh và giữ sự riêng tư.
Màu sắc và vật liệu
- Màu sắc: Ưu tiên các tông màu sáng, nhẹ nhàng để tạo cảm giác rộng rãi và tươi mới, giúp năng lượng lưu thông tốt. Màu sắc cần hợp mệnh gia chủ để tăng cường cát khí.
- Vật liệu: Gỗ tự nhiên mang lại sự ấm áp, mộc mạc và năng lượng tốt. Kính giúp mở rộng không gian, tăng cường ánh sáng. Kim loại tạo sự vững chắc. Cần có sự cân bằng giữa các yếu tố để tạo ra không gian hài hòa.
Việc kết hợp hài hòa giữa kiến trúc hiện đại và các nguyên tắc phong thủy không chỉ giúp gia chủ sở hữu một ngôi nhà đẹp, tiện nghi mà còn mang lại cuộc sống an lành, thịnh vượng. Hãy tham khảo ý kiến chuyên gia để có một thiết kế hoàn hảo nhất.
Câu Hỏi Thường Gặp Khi Thiết Kế Nhà 5x15m Có Gác Lửng
Khi lên kế hoạch xây dựng thiết kế nhà 5x15m có gác lửng, nhiều gia chủ thường có những băn khoăn và câu hỏi chung. Dưới đây là tổng hợp các câu hỏi thường gặp, giúp bạn có cái nhìn rõ ràng hơn về loại hình kiến trúc này.
1. Chiều cao tối thiểu của tầng trệt để làm gác lửng là bao nhiêu?
Để có một gác lửng đủ công năng và không gây cảm giác bí bách, chiều cao tối thiểu của tầng trệt (từ sàn đến trần) nên là 3.6m. Lý tưởng nhất là từ 3.8m đến 4.5m, giúp phân chia không gian dưới gác lửng và trên gác lửng một cách thoải mái. Chiều cao của gác lửng thường dao động từ 2.2m đến 2.5m.
2. Gác lửng có cần xin phép xây dựng riêng không?
Việc xây dựng gác lửng thường không yêu cầu xin giấy phép xây dựng riêng nếu nó nằm trong tổng diện tích sàn đã được cấp phép. Tuy nhiên, nếu gác lửng làm tăng tổng diện tích xây dựng vượt quá quy định ban đầu hoặc thay đổi kết cấu chính của ngôi nhà, bạn có thể cần điều chỉnh giấy phép hoặc xin phép lại. Tốt nhất là tham khảo ý kiến của cơ quan quản lý xây dựng địa phương hoặc kiến trúc sư để đảm bảo tuân thủ pháp luật.
3. Vật liệu nào thường được sử dụng cho sàn gác lửng?
Các vật liệu phổ biến cho sàn gác lửng bao gồm:
- Bê tông cốt thép: Bền chắc, chịu lực tốt, nhưng nặng và tốn thời gian thi công.
- Sàn gỗ công nghiệp/tự nhiên: Mang lại vẻ đẹp ấm cúng, nhẹ hơn bê tông, nhưng cần xử lý chống mối mọt và ẩm mốc.
- Sàn panel nhẹ/cemboard: Trọng lượng nhẹ, thi công nhanh, chịu lực khá tốt, phù hợp cho gác lửng có công năng không quá nặng nề.
Lựa chọn vật liệu cần dựa trên khả năng chịu lực, chi phí, thẩm mỹ và yêu cầu về cách âm.
4. Làm thế nào để giải quyết vấn đề ánh sáng và thông gió cho gác lửng?
Đối với nhà 5x15m, gác lửng có thể thiếu sáng và bí khí. Các giải pháp bao gồm:
- Thiết kế giếng trời: Đặt ở khu vực cầu thang hoặc giữa nhà để lấy sáng và gió từ trên cao.
- Sử dụng lan can kính: Thay vì tường đặc để ánh sáng xuyên qua.
- Cửa sổ lớn: Tận dụng mặt tiền và mặt hậu.
- Không gian mở: Hạn chế vách ngăn cố định, tạo sự liên thông giữa các tầng.
- Hệ thống chiếu sáng nhân tạo: Sử dụng đèn downlight, đèn LED để bổ sung ánh sáng.
5. Gác lửng có ảnh hưởng đến phong thủy của ngôi nhà không?
Có, gác lửng có thể ảnh hưởng đến phong thủy. Một số lưu ý quan trọng:
- Không chiếm quá 2/3 diện tích tầng trệt: Tránh gây cảm giác đè nén.
- Tránh đặt nhà vệ sinh phía trên phòng khách, bếp hoặc bàn thờ: Gây năng lượng tiêu cực.
- Cầu thang hợp lý: Vị trí, số bậc theo quy tắc phong thủy.
- Đảm bảo thông thoáng, đủ ánh sáng: Giúp năng lượng lưu chuyển tốt.
Việc tham khảo ý kiến chuyên gia phong thủy trong quá trình thiết kế là rất nên làm.
6. Có thể biến gác lửng thành những không gian nào?
Gác lửng có thể được biến hóa thành nhiều không gian đa năng:
- Phòng ngủ phụ
- Phòng làm việc, thư viện
- Phòng thờ
- Phòng sinh hoạt chung, khu vực giải trí
- Kho chứa đồ
Việc xác định rõ công năng sẽ giúp thiết kế tối ưu và hiệu quả hơn.
Kết Luận
Thiết kế nhà 5x15m có gác lửng là một giải pháp kiến trúc thông minh và linh hoạt, mang lại nhiều ưu điểm vượt trội cho không gian sống hiện đại. Từ việc tối ưu hóa diện tích sử dụng, tiết kiệm chi phí xây dựng đến việc tạo ra không gian thông thoáng, đa năng và giàu tính thẩm mỹ, gác lửng đã khẳng định vị thế là một lựa chọn đáng cân nhắc cho nhiều gia đình. Tuy nhiên, để đạt được một công trình hoàn hảo, việc chú trọng đến các yếu tố như tỷ lệ chiều cao, kết cấu vững chắc, ánh sáng tự nhiên, thông gió và các nguyên tắc phong thủy là điều tối quan trọng. Bằng sự kết hợp giữa kiến thức chuyên môn và sự sáng tạo, bạn hoàn toàn có thể kiến tạo một ngôi nhà 5x15m có gác lửng không chỉ đẹp mà còn tiện nghi, phản ánh đúng phong cách sống và mang lại giá trị bền vững cho gia đình.
















