Trong bối cảnh đô thị hóa nhanh chóng, nhu cầu về một không gian sống tiện nghi, thẩm mỹ và bền vững ngày càng trở nên thiết yếu. Mẫu nhà phố 2 tầng hiện đại đã và đang trở thành lựa chọn ưu tiên của nhiều gia đình Việt, đặc biệt là những người mong muốn sự kết hợp hài hòa giữa công năng sử dụng tối ưu và vẻ đẹp kiến trúc tinh tế. Bài viết này của Interstellas sẽ đi sâu phân tích những yếu tố then chốt, từ quy hoạch mặt bằng đến lựa chọn vật liệu, giúp bạn kiến tạo nên ngôi nhà mơ ước không chỉ đẹp về hình thức mà còn hoàn hảo về chất lượng sống.
Tổng quan về Mẫu Nhà Phố 2 Tầng Hiện Đại
Mẫu nhà phố 2 tầng hiện đại được định hình bởi sự tối giản trong đường nét, tập trung vào công năng sử dụng và khả năng kết nối linh hoạt giữa các không gian. Kiến trúc này thường ưu tiên vật liệu hiện đại như kính, thép, bê tông và gỗ công nghiệp, tạo nên vẻ ngoài thanh lịch, sang trọng nhưng không kém phần ấm cúng. Đặc trưng của nhà phố 2 tầng là khả năng tối ưu hóa diện tích mặt bằng hạn chế, đặc biệt phù hợp với các khu đất có chiều rộng từ 5m đến 10m, mang lại không gian sống đầy đủ tiện nghi cho gia đình từ 3-5 thành viên. Mục tiêu là tạo ra một tổ ấm vừa thể hiện cá tính gia chủ, vừa đáp ứng mọi nhu cầu sinh hoạt một cách khoa học và tiện lợi.
Mẫu Nhà Phố 2 Tầng Hiện Đại: Đặc Trưng Kiến Trúc và Phong Cách Sống
Kiến trúc hiện đại cho mẫu nhà phố 2 tầng hiện đại không chỉ là việc sử dụng các vật liệu mới mà còn là một triết lý thiết kế, đề cao sự tinh giản, công năng và khả năng thích ứng với lối sống đương đại. Đây là phong cách mang đến sự phóng khoáng, mở rộng tầm nhìn và tối đa hóa trải nghiệm sống cho gia chủ.
Thẩm Mỹ Hiện Đại: Sự Tinh Tế trong Hình Khối và Màu Sắc
Điểm đặc trưng của phong cách hiện đại là sự chú trọng vào các hình khối mạnh mẽ, đường nét dứt khoát và tối giản. Thay vì các chi tiết trang trí cầu kỳ, kiến trúc hiện đại tập trung vào sự tinh tế của bản thân vật liệu và cách chúng được sắp đặt. Gam màu chủ đạo thường là trắng sứ, xám ghi, và nâu gỗ, tạo nên một bảng màu thanh lịch, sang trọng. Sự kết hợp giữa các sắc thái này không chỉ làm nổi bật hình khối của ngôi nhà mà còn mang đến cảm giác thư thái, dễ chịu. Những mảng tường ốp đá xám hoặc gỗ nâu tạo điểm nhấn ấn tượng, phá vỡ sự đơn điệu của màu trắng và làm tăng chiều sâu cho mặt tiền. Bên cạnh đó, các chi tiết như hệ lam chắn nắng, ban công kính cường lực hay những đường gờ chạy ngang cũng góp phần tạo nên vẻ đẹp độc đáo, cá tính mà vẫn giữ được sự hài hòa tổng thể.
Tối Ưu Không Gian và Ánh Sáng Tự Nhiên
Một trong những ưu điểm vượt trội của mẫu nhà phố 2 tầng hiện đại là khả năng tối ưu không gian và tận dụng tối đa ánh sáng tự nhiên. Với đặc thù là nhà phố, việc đưa ánh sáng và gió trời vào không gian nội thất là một thách thức lớn. Tuy nhiên, kiến trúc hiện đại đã giải quyết bài toán này một cách khéo léo thông qua việc sử dụng hệ thống cửa kính lớn, vách kính cường lực và các khoảng thông tầng. Những ô cửa kính không chỉ giúp không gian bên trong luôn sáng sủa, thoáng đãng mà còn mở rộng tầm nhìn, kết nối con người với thiên nhiên bên ngoài. Việc bố trí giếng trời hoặc các khu vực sân trong nhỏ cũng là giải pháp hiệu quả để đưa ánh sáng và không khí trong lành đến mọi ngóc ngách của ngôi nhà, giảm thiểu sự phụ thuộc vào ánh sáng nhân tạo và điều hòa, góp phần tiết kiệm năng lượng.
Vật Liệu Hiện Đại và Bền Vững
Việc lựa chọn vật liệu đóng vai trò quan trọng trong việc định hình phong cách và đảm bảo chất lượng cho một mẫu nhà phố 2 tầng hiện đại. Các vật liệu được ưu tiên sử dụng thường là những loại có độ bền cao, tính thẩm mỹ vượt trội và thân thiện với môi trường. Kính cường lực khung nhôm Xingfa cao cấp là lựa chọn hàng đầu cho hệ thống cửa và vách kính, không chỉ mang lại vẻ đẹp sang trọng mà còn có khả năng cách âm, cách nhiệt hiệu quả, đồng thời chống chịu tốt với điều kiện thời tiết khắc nghiệt. Bên cạnh đó, việc sử dụng các loại đá ốp tự nhiên hoặc nhân tạo cho mặt tiền, gạch ốp tường với họa tiết vân đá, vân gỗ, hay gỗ công nghiệp cao cấp cho nội thất đều góp phần tạo nên sự bền vững và vẻ đẹp trường tồn cho công trình. Các vật liệu này không chỉ dễ dàng vệ sinh, bảo dưỡng mà còn mang đến cảm giác hiện đại, tiện nghi cho không gian sống.
<>Xem Thêm Bài Viết:<>- Bán Chung Cư Tân Tây Đô: Hướng Dẫn Chi Tiết Và Cơ Hội Đầu Tư
- Mua Chung Cư Hà Nội Dưới 1.5 Tỷ Quận Cầu Giấy: Cẩm Nang Chi Tiết
- Cơ Hội Việc Làm Hấp Dẫn Tại **Khu Công Nghiệp Thăng Long Tuyển Dụng**
- Nhà Gỗ Cổ 2 Tầng: Thiết Kế Độc Đáo và Những Điều Cần Biết
- Khám Phá Phan Rang Tháp Chàm Ở Đâu: Điểm Đến Hấp Dẫn Không Thể Bỏ Lỡ

Có thể bạn quan tâm: Làm Sao Để Thiết Kế Mẫu Nhà Cấp 4 160m2 Đẹp Và Tiện Nghi?
Quy Hoạch Mặt Bằng Công Năng Mẫu Nhà Phố 2 Tầng Tối Ưu
Việc bố trí mặt bằng công năng là yếu tố cốt lõi quyết định sự tiện nghi và thoải mái của một mẫu nhà phố 2 tầng hiện đại. Với diện tích sử dụng thường từ 100m² đến 200m², các kiến trúc sư cần phải tính toán tỉ mỉ để tận dụng từng mét vuông, đảm bảo mỗi không gian đều phát huy tối đa công năng và kết nối hài hòa với tổng thể.
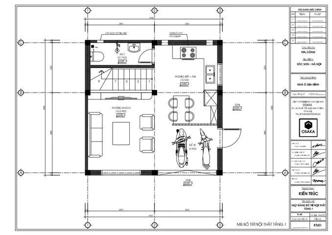
Thiết Kế Tầng 1: Không Gian Chung và Cá Nhân Linh Hoạt
Tầng 1 của mẫu nhà phố 2 tầng hiện đại thường được xem là trái tim của ngôi nhà, nơi diễn ra các hoạt động chung của gia đình và tiếp đón khách. Với mặt tiền có chiều rộng 5m và chiều sâu 20m, như dự án ở Hòa Bình, việc bố trí không gian cần sự khéo léo để đảm bảo sự riêng tư mà vẫn giữ được sự thông thoáng.
Không gian phòng khách (khoảng 10.05 m2) thường được đặt ngay sau tiền sảnh, tạo ấn tượng đầu tiên về sự sang trọng và tiện nghi. Phòng khách nên có cửa sổ hoặc cửa chính lớn để đón ánh sáng và gió tự nhiên. Tiếp theo là khu vực bếp và phòng ăn (khoảng 10 m2), được thiết kế liên thông để tạo cảm giác rộng rãi, gắn kết. Bếp cần được bố trí khoa học, đầy đủ tiện nghi với hệ thống tủ kệ âm tường, đảo bếp đa năng.
Một điểm đặc biệt ở tầng 1 của một số mẫu nhà phố 2 tầng hiện đại là sự hiện diện của một phòng ngủ (khoảng 12.5 m2). Phòng ngủ này rất phù hợp cho người lớn tuổi trong gia đình, giúp họ thuận tiện di chuyển mà không cần lên xuống cầu thang. Việc bố trí một phòng vệ sinh chung (khoảng 2.7 m2) tiện lợi gần khu vực sinh hoạt chung và phòng ngủ tầng 1 là điều cần thiết, đảm bảo sự riêng tư và thuận tiện. Cầu thang thường được đặt ở giữa nhà hoặc cuối nhà, vừa làm lối lên tầng trên, vừa có thể trở thành điểm nhấn kiến trúc hoặc được tận dụng làm không gian lưu trữ thông minh.

Có thể bạn quan tâm: Thiết Kế & Xây Dựng Nhà Cấp 4 Nông Thôn Rẻ Đẹp Từ 250 Triệu Đồng
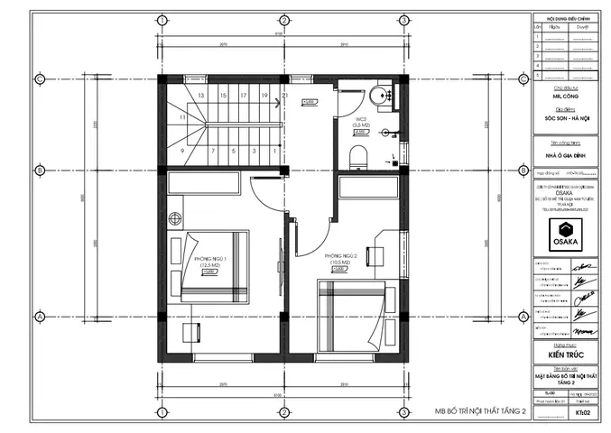
Bố Trí Tầng 2: Khu Vực Nghỉ Ngơi và Riêng Tư
Tầng 2 của mẫu nhà phố 2 tầng hiện đại là khu vực dành riêng cho sự nghỉ ngơi và không gian cá nhân của các thành viên. Thông thường, tầng này sẽ bao gồm các phòng ngủ còn lại và một số không gian chức năng phụ trợ khác.
Trong thiết kế nhà phố 5x20m, có thể bố trí 2 phòng ngủ riêng biệt trên tầng 2, mỗi phòng có diện tích từ 10.5 m2 đến 12.5 m2. Việc này đảm bảo sự thoải mái và riêng tư cho từng thành viên. Mỗi phòng ngủ nên được thiết kế có cửa sổ lớn để đón ánh sáng và thông gió, tạo không gian thư giãn lý tưởng. Một phòng vệ sinh chung (khoảng 3.5 m2) được bố trí ở vị trí thuận tiện để phục vụ cả hai phòng ngủ, thường là gần khu vực hành lang chung.
Ngoài các phòng ngủ, tầng 2 cũng có thể bao gồm một không gian đa năng như phòng sinh hoạt chung nhỏ, phòng thờ, hoặc một khu vực đọc sách, làm việc tùy theo nhu cầu của gia đình. Ban công ở tầng 2, nếu có, sẽ là nơi lý tưởng để hóng mát, thư giãn hoặc tạo thêm mảng xanh cho ngôi nhà, tăng cường tính kết nối với không gian bên ngoài.
Nguyên Tắc Bố Trí Không Gian Đảm Bảo Đối Lưu Khí và Ánh Sáng
Để một mẫu nhà phố 2 tầng hiện đại thực sự tiện nghi và thoải mái, việc đảm bảo nguyên tắc đối lưu khí và ánh sáng là vô cùng quan trọng. Nhà phố thường có mặt tiền hẹp, dễ bị bí bách. Do đó, các kiến trúc sư tại Interstellas luôn chú trọng đến việc tạo ra các “lõi” thông gió và lấy sáng tự nhiên.
Giải pháp phổ biến là bố trí giếng trời ở giữa hoặc cuối nhà, kết hợp với các khoảng lùi ở mặt tiền và mặt sau để tạo ra các khe hút gió tự nhiên. Hệ thống cửa sổ và cửa đi lớn bằng kính cường lực được đặt ở các vị trí chiến lược, giúp không khí lưu thông xuyên suốt từ trước ra sau, từ dưới lên trên. Đặc biệt, việc mở rộng không gian bằng cách thiết kế các khu vực liên thông như phòng khách – bếp – ăn không chỉ tạo cảm giác rộng rãi mà còn hỗ trợ việc lưu chuyển không khí và ánh sáng hiệu quả. Sự kết hợp này giúp ngôi nhà luôn mát mẻ vào mùa hè, ấm áp vào mùa đông và tràn ngập sinh khí, mang lại lợi ích lớn cho sức khỏe và tinh thần của các thành viên.

Có thể bạn quan tâm: Các Mẫu Nhà Ống Lệch Tầng Đẹp: Giải Pháp Thiết Kế Ấn Tượng Cho Gia Chủ
Yếu Tố Quan Trọng Khi Thiết Kế Ngoại Thất Mẫu Nhà Phố 2 Tầng
Ngoại thất của mẫu nhà phố 2 tầng hiện đại không chỉ là “bộ mặt” của ngôi nhà mà còn thể hiện gu thẩm mỹ và cá tính của gia chủ. Một thiết kế ngoại thất ấn tượng sẽ tạo nên sức hút mạnh mẽ và góp phần nâng tầm giá trị cho công trình.
Giải Pháp Mặt Tiền Ấn Tượng: Tương Quan Giữa Thẩm Mỹ và Công Năng
Mặt tiền là yếu tố đầu tiên thu hút ánh nhìn và là điểm nhấn quan trọng nhất của một mẫu nhà phố 2 tầng hiện đại. Để tạo nên một mặt tiền độc đáo và sang trọng, kiến trúc sư thường kết hợp nhiều loại vật liệu và thủ pháp thiết kế. Việc sử dụng gam màu trắng sứ làm chủ đạo giúp ngôi nhà toát lên vẻ thanh lịch, trang nhã. Sau đó, kết hợp với các mảng ốp đá xám ghi hoặc gỗ nâu sang trọng, tạo điểm nhấn và chiều sâu cho không gian.
Các chi tiết như lam chắn nắng bằng gỗ hoặc bê tông, hệ thống ban công kính, hoặc các khối hộp lùi vào/nhô ra cũng góp phần tạo nên sự phá cách, hiện đại. Cổng chính cũng được thiết kế vững chắc, hài hòa với tổng thể kiến trúc, vừa đảm bảo an ninh, vừa là một phần không thể thiếu của vẻ đẹp ngoại thất. Sự cân bằng giữa tính thẩm mỹ và công năng (ví dụ: các mảng ốp không chỉ đẹp mà còn chống thấm, cách nhiệt) là điều mà Interstellas luôn hướng tới.

Có thể bạn quan tâm: Quy Định Bàn Giao Nhà Chung Cư: Hướng Dẫn Chi Tiết Cho Gia Chủ
Hệ Thống Cửa Kính: Tận Dụng Ánh Sáng và Mở Rộng Tầm Nhìn
Hệ thống cửa kính cường lực khung nhôm Xingfa cao cấp màu đen là một lựa chọn phổ biến và hiệu quả cho mẫu nhà phố 2 tầng hiện đại. Các ô cửa kính lớn không chỉ mang đến sự tương phản màu sắc cần thiết, tạo điểm nhấn hiện đại cho mặt tiền, mà còn đóng vai trò quan trọng trong việc thu hút ánh sáng tự nhiên vào bên trong ngôi nhà. Đặc biệt đối với nhà phố, nơi ánh sáng thường bị hạn chế bởi các công trình lân cận, cửa kính là giải pháp lý tưởng giúp không gian nội thất luôn tràn ngập ánh sáng, tạo cảm giác rộng rãi và thoáng đãng hơn. Ngoài ra, cửa kính còn giúp mở rộng tầm nhìn từ bên trong, kết nối không gian sống với cảnh quan bên ngoài, mang lại nguồn năng lượng tích cực và sự thư thái cho các thành viên.
Thiết Kế Mái Bằng Hiện Đại: Thẩm Mỹ và Khả Năng Chống Nóng, Chống Thấm
Đối với mẫu nhà phố 2 tầng hiện đại, hệ mái bằng là một lựa chọn phổ biến, phù hợp với phong cách kiến trúc tinh gọn, mạnh mẽ. Mái bằng không chỉ mang lại vẻ đẹp hiện đại, dứt khoát cho ngôi nhà mà còn có những ưu điểm vượt trội về công năng. Hệ mái bằng thường được xây dựng bằng phương pháp đổ phẳng, bao gồm nhiều lớp để đảm bảo chất lượng và độ bền. Cụ thể, cấu tạo mái bằng thường gồm: lớp kết cấu chịu lực (bê tông cốt thép), lớp tạo độ dốc (để thoát nước), lớp chống thấm (đảm bảo không bị dột, ẩm mốc), và lớp cách nhiệt (giúp chống nóng hiệu quả, đặc biệt quan trọng trong điều kiện khí hậu nhiệt đới). Sự kết hợp khéo léo và tính toán tỉ mỉ của các kiến trúc sư giúp mái bằng không chỉ đạt tính thẩm mỹ cao mà còn đảm bảo chất lượng, sự bền vững và khả năng chống chịu tốt với thời gian và điều kiện thời tiết.

Tiểu Cảnh Xanh và Hệ Thống Chiếu Sáng Ngoại Thất
Để tăng thêm sức sống và sự tươi mới cho mẫu nhà phố 2 tầng hiện đại, việc bố trí tiểu cảnh xanh mát xung quanh nhà là một yếu tố không thể bỏ qua. Những chậu cây xanh, bồn hoa nhỏ ở ban công, sân trước hay khu vực giếng trời không chỉ làm đẹp không gian mà còn mang lại bầu không khí trong lành, dễ chịu. Mảng xanh còn giúp điều hòa nhiệt độ, tạo cảm giác gần gũi với thiên nhiên.
Bên cạnh đó, hệ thống chiếu sáng ngoại thất cũng đóng vai trò quan trọng trong việc tạo điểm nhấn và đảm bảo an toàn cho ngôi nhà vào buổi tối. Đèn LED âm trần, đèn hắt tường, đèn pha tiểu cảnh được bố trí một cách có chủ đích sẽ làm nổi bật các đường nét kiến trúc, các mảng vật liệu đặc biệt, và tạo ra hiệu ứng ánh sáng lung linh, thu hút. Ánh sáng không chỉ làm cho ngôi nhà trở nên rực rỡ hơn mà còn tăng cường tính an toàn, chiếu sáng lối đi và các khu vực quan trọng. Sự kết hợp hài hòa giữa cây xanh và ánh sáng sẽ biến ngôi nhà thành một tác phẩm nghệ thuật sống động vào ban đêm.
Lựa Chọn Vật Liệu Cho Mẫu Nhà Phố 2 Tầng Hiện Đại
Việc chọn lựa vật liệu không chỉ ảnh hưởng đến vẻ đẹp thẩm mỹ mà còn quyết định đến độ bền, tính năng và chi phí của mẫu nhà phố 2 tầng hiện đại. Một sự lựa chọn thông minh sẽ mang lại hiệu quả dài lâu và giá trị bền vững cho ngôi nhà.
Vật Liệu Hoàn Thiện Bề Mặt
Đối với mặt tiền, sơn nước ngoại thất cao cấp là lựa chọn phổ biến, với ưu điểm đa dạng màu sắc, dễ thi công và chống chịu tốt với thời tiết. Các gam màu trung tính như trắng, xám, be thường được ưu tiên để tạo vẻ hiện đại, thanh lịch. Để tạo điểm nhấn, các kiến trúc sư thường kết hợp ốp đá tự nhiên (granite, marble) hoặc đá nhân tạo cao cấp cho một số mảng tường. Đá không chỉ mang lại vẻ sang trọng, bền bỉ mà còn có khả năng chống thấm, chống bám bẩn tốt. Ngoài ra, việc sử dụng gỗ ốp tường (gỗ tự nhiên hoặc gỗ nhựa composite) cũng là một giải pháp hiệu quả để tạo sự ấm áp, gần gũi với thiên nhiên, cân bằng với nét cứng cáp của vật liệu khác. Đối với nội thất, gạch ceramic, porcelain khổ lớn hoặc sàn gỗ công nghiệp là lựa chọn hàng đầu, dễ dàng vệ sinh và mang lại vẻ đẹp hiện đại, tinh tế.
Cửa và Cửa Sổ
Hệ thống cửa và cửa sổ là yếu tố không thể thiếu trong kiến trúc mẫu nhà phố 2 tầng hiện đại. Kính cường lực là vật liệu chính, không chỉ đảm bảo an toàn mà còn tối đa hóa ánh sáng tự nhiên. Khung nhôm Xingfa được ưa chuộng bởi độ bền cao, khả năng chống ăn mòn tốt và tính thẩm mỹ với nhiều màu sắc (đen, xám ghi, trắng) phù hợp với phong cách hiện đại. Ngoài ra, cửa gỗ công nghiệp hoặc gỗ tự nhiên cho cửa phòng ngủ cũng là lựa chọn phổ biến, mang lại sự ấm cúng và sang trọng. Đối với các khu vực như vệ sinh, cửa nhôm kính hoặc cửa nhựa lõi thép cũng là giải pháp kinh tế và bền bỉ. Việc lựa chọn cửa cần cân nhắc kỹ lưỡng về khả năng cách âm, cách nhiệt, đảm bảo sự riêng tư và tiện nghi cho từng không gian.
Sàn và Trần
Sàn nhà trong mẫu nhà phố 2 tầng hiện đại thường sử dụng gạch men cao cấp hoặc sàn gỗ công nghiệp. Gạch men với đa dạng mẫu mã, màu sắc, từ vân đá đến vân gỗ, dễ dàng vệ sinh và phù hợp với nhiều phong cách nội thất. Sàn gỗ công nghiệp mang lại cảm giác ấm cúng, sang trọng và có khả năng cách âm tốt, lý tưởng cho phòng ngủ và các không gian sinh hoạt chung. Với trần nhà, trần thạch cao là lựa chọn phổ biến nhất. Trần thạch cao có khả năng tạo hình linh hoạt, dễ dàng tích hợp hệ thống đèn âm trần, điều hòa, và các thiết bị khác, mang lại vẻ đẹp phẳng phiu, hiện đại. Ngoài ra, trần thạch cao còn có khả năng cách âm, cách nhiệt, góp phần nâng cao chất lượng không gian sống.
Các Câu Hỏi Thường Gặp Khi Thiết Kế Mẫu Nhà Phố 2 Tầng Hiện Đại
Khi quyết định xây dựng mẫu nhà phố 2 tầng hiện đại, gia chủ thường có rất nhiều băn khoăn. Dưới đây là những câu hỏi thường gặp nhất, được Interstellas tổng hợp và giải đáp để giúp bạn có cái nhìn toàn diện hơn.
Chi phí thiết kế và thi công mẫu nhà phố 2 tầng hiện đại là bao nhiêu?
Chi phí thiết kế và thi công mẫu nhà phố 2 tầng hiện đại phụ thuộc vào nhiều yếu tố như diện tích xây dựng, phong cách thiết kế cụ thể, vật liệu sử dụng, địa điểm thi công, và mức độ hoàn thiện. Chi phí thiết kế thường dao động từ 100.000 VNĐ đến 250.000 VNĐ/m² tùy theo độ phức tạp và uy tín của đơn vị. Về thi công, gói thô thường khoảng 3.5 – 4.5 triệu VNĐ/m², còn gói hoàn thiện trọn gói có thể từ 5.5 – 8 triệu VNĐ/m² hoặc hơn, tùy thuộc vào chủng loại vật liệu (tầm trung, khá, cao cấp). Để có báo giá chính xác nhất, gia chủ nên liên hệ trực tiếp với các đơn vị thiết kế và thi công để được tư vấn và lên dự toán chi tiết dựa trên nhu cầu cụ thể của mình.
Cần lưu ý gì khi chọn đơn vị thiết kế nhà phố 2 tầng?
Khi lựa chọn đơn vị thiết kế mẫu nhà phố 2 tầng hiện đại, gia chủ nên ưu tiên những công ty có kinh nghiệm, uy tín đã được khẳng định trên thị trường, với danh mục dự án đa dạng và hồ sơ năng lực rõ ràng. Đội ngũ kiến trúc sư cần có chuyên môn cao, tư duy sáng tạo và khả năng lắng nghe, thấu hiểu mong muốn của khách hàng. Ngoài ra, việc tham khảo các đánh giá từ khách hàng trước đó, xem xét phong cách thiết kế mà công ty theo đuổi có phù hợp với gu thẩm mỹ của mình hay không cũng là yếu tố quan trọng. Một đơn vị chuyên nghiệp sẽ không chỉ cung cấp bản vẽ đẹp mà còn đưa ra các giải pháp công năng tối ưu, tư vấn vật liệu hiệu quả và hỗ trợ xuyên suốt quá trình từ thiết kế đến thi công.
Làm thế nào để đảm bảo tính pháp lý khi xây dựng nhà phố?
Để đảm bảo tính pháp lý khi xây dựng mẫu nhà phố 2 tầng hiện đại, gia chủ cần tuân thủ nghiêm ngặt các quy định của pháp luật về xây dựng. Bước đầu tiên và quan trọng nhất là xin giấy phép xây dựng từ cơ quan chức năng có thẩm quyền. Hồ sơ xin phép cần đầy đủ các bản vẽ thiết kế, giấy tờ chứng minh quyền sử dụng đất, và các giấy tờ liên quan khác. Trong quá trình thi công, cần đảm bảo đúng với bản vẽ đã được cấp phép, tuân thủ các quy định về an toàn lao động, vệ sinh môi trường, và không lấn chiếm không gian công cộng hoặc ảnh hưởng đến các công trình lân cận. Sau khi hoàn thành, cần thực hiện thủ tục nghiệm thu công trình và hoàn công để được cấp giấy chứng nhận quyền sở hữu nhà ở và các tài sản khác gắn liền với đất. Việc tìm đến các đơn vị tư vấn thiết kế và thi công uy tín như Interstellas sẽ giúp bạn đơn giản hóa các thủ tục pháp lý này.
Việc thiết kế và xây dựng một mẫu nhà phố 2 tầng hiện đại không chỉ đơn thuần là tạo ra một nơi ở, mà còn là hành trình kiến tạo một không gian sống lý tưởng, nơi mỗi thành viên tìm thấy sự thoải mái, tiện nghi và cảm hứng mỗi ngày. Từ việc lựa chọn phong cách kiến trúc, bố trí mặt bằng công năng, đến các giải pháp về vật liệu và ngoại thất, mọi chi tiết đều cần được cân nhắc tỉ mỉ để tạo nên một tổng thể hài hòa và bền vững. Với những chia sẻ chuyên sâu từ Interstellas, hy vọng bạn đã có thêm kiến thức và tự tin hơn trong việc hiện thực hóa ngôi nhà mơ ước của mình. Khám phá các giải pháp nội thất và kiến trúc sáng tạo tại Interstellas.com.vn để biến ý tưởng thành hiện thực!
















