Mái nhà không chỉ đơn thuần là lớp che chắn bảo vệ ngôi nhà khỏi nắng mưa, mà còn là yếu tố kiến trúc quan trọng định hình phong cách, tạo điểm nhấn thẩm mỹ và ảnh hưởng trực tiếp đến công năng sử dụng cũng như không gian sống bên trong. Trong bối cảnh kiến trúc hiện đại, thiết kế mái nhà cấp 4 đang nhận được sự quan tâm đặc biệt từ các gia chủ và kiến trúc sư nhờ sự kết hợp hài hòa giữa vẻ đẹp truyền thống và tiện nghi đương đại. Một thiết kế mái nhà cấp 4 thông minh có thể biến một không gian đơn giản trở thành tổ ấm lý tưởng, bền vững và tràn đầy cảm hứng.
Tổng quan về thiết kế mái nhà cấp 4
Thiết kế mái nhà cấp 4 không chỉ dừng lại ở việc lựa chọn kiểu dáng mà còn bao gồm nhiều yếu tố phức tạp khác như vật liệu, cấu tạo, khả năng chống nóng, thoát nước và hòa hợp với tổng thể kiến trúc. Mục tiêu cuối cùng là tạo ra một hệ mái vững chắc, bền đẹp và tối ưu hiệu quả sử dụng. Các gia chủ thường tìm kiếm những giải pháp mái nhà cấp 4 vừa đáp ứng tính thẩm mỹ, vừa đảm bảo công năng, đồng thời phù hợp với điều kiện khí hậu và ngân sách. Sự đa dạng về kiểu dáng từ mái Thái, mái Nhật đến mái bằng hay mái lệch mang đến nhiều lựa chọn phong phú, cho phép mỗi ngôi nhà cấp 4 thể hiện một cá tính riêng biệt.
Các loại mái nhà cấp 4 phổ biến trong thiết kế hiện đại
Khi nói đến thiết kế mái nhà cấp 4, sự lựa chọn đa dạng về kiểu dáng luôn là điều khiến nhiều gia chủ băn khoăn. Mỗi loại mái không chỉ mang một vẻ đẹp riêng mà còn có những ưu nhược điểm về công năng và chi phí. Việc hiểu rõ các đặc trưng này sẽ giúp bạn đưa ra quyết định phù hợp nhất cho tổ ấm của mình.

Có thể bạn quan tâm: Hướng Dẫn Thiết Kế Tiểu Cảnh Sân Vườn Đẹp Và Phù Hợp
Mái Thái: Nét đẹp truyền thống và công năng vượt trội
<>Xem Thêm Bài Viết:<>- Hướng Dẫn Toàn Diện về Dự Án Interlink Network
- Tối Ưu Không Gian: Tranh Cổ Động Slogan Mua Ở Đâu Chất Lượng?
- Khám Phá Tiềm Năng Bất Động Sản Quanh Sì Thâu Chải Ở Đâu?
- Tháp Eiffel Trang Trí Nhà Cửa: 10 Ý Tưởng Sáng Tạo Độc Đáo
- Nguyễn Hoàng Đoan: Người Đàn Ông Thầm Lặng Đằng Sau Thành Công Vĩ Đại Của Danh Ca Khánh Ly

Có thể bạn quan tâm: Hướng Dẫn Thiết Kế Nhà Cấp 4 Đơn Giản, Đẹp Mắt Và Tối Ưu Chi Phí
Mái Thái từ lâu đã trở thành biểu tượng kiến trúc quen thuộc và được ưa chuộng tại Việt Nam. Đặc trưng bởi độ dốc cao, phần chóp nhọn và các lớp ngói xếp chồng lên nhau, mái Thái mang đến vẻ đẹp thanh thoát, cao ráo và bề thế cho ngôi nhà cấp 4. Kiến trúc mái Thái không chỉ tạo ấn tượng về mặt thị giác mà còn sở hữu những ưu điểm vượt trội về công năng. Độ dốc lớn giúp mái Thái thoát nước mưa cực nhanh, hạn chế tình trạng ứ đọng và thấm dột, đặc biệt phù hợp với khí hậu nhiệt đới ẩm gió mùa của Việt Nam. Hơn nữa, khoảng không gian phía dưới mái (gọi là tum) đóng vai trò như một lớp đệm không khí, giúp cách nhiệt hiệu quả, giữ cho không gian bên trong nhà luôn mát mẻ vào mùa hè và ấm áp vào mùa đông.
Tuy nhiên, thi công mái Thái đòi hỏi kỹ thuật cao và thời gian thực hiện lâu hơn so với một số loại mái khác, từ đó có thể làm tăng chi phí xây dựng. Vật liệu ngói đa dạng về màu sắc và chất liệu (ngói sóng, ngói vảy cá, ngói mũi hài) cho phép gia chủ cá nhân hóa ngôi nhà theo sở thích. Mặc dù chi phí đầu tư ban đầu có thể cao hơn, nhưng với độ bền vượt trội và khả năng bảo vệ tối ưu, mái Thái vẫn là một lựa chọn đáng giá cho những ai tìm kiếm sự bền vững và thẩm mỹ lâu dài.
Mái Nhật: Sự giao thoa tinh tế giữa Á Đông và hiện đại
Trong những năm gần đây, thiết kế mái nhà cấp 4 kiểu Nhật đang trở thành xu hướng được nhiều gia đình Việt Nam yêu thích. Khác với mái Thái có độ dốc lớn, mái Nhật nổi bật với độ dốc nhẹ nhàng, các lớp mái chồng lên nhau tạo thành một khối kiến trúc phẳng phiu, thanh thoát và không quá cầu kỳ. Nguồn gốc từ xứ sở mặt trời mọc, mái Nhật thể hiện triết lý thiết kế tối giản, gần gũi với thiên nhiên và đề cao sự hài hòa.
Sự tinh tế của mái Nhật nằm ở những đường nét đơn giản, không phô trương nhưng vẫn toát lên vẻ sang trọng và hiện đại. Phần mái thường được thiết kế vươn rộng ra các phía, tạo thành những hiên nhà rộng rãi, không chỉ có tác dụng che nắng mưa mà còn là không gian chuyển tiếp lý tưởng giữa bên trong và bên ngoài, giúp ngôi nhà luôn thông thoáng và mát mẻ. Mái Nhật dễ dàng kết hợp với nhiều phong cách kiến trúc khác nhau, từ hiện đại, tối giản đến tân cổ điển, mang lại sự linh hoạt trong thiết kế. Đặc biệt, chi phí thi công mái Nhật thường thấp hơn mái Thái một chút do cấu tạo đơn giản hơn, làm cho nó trở thành lựa chọn hấp dẫn cho nhiều đối tượng gia chủ.
Mái Bằng: Phong cách tối giản và hiệu quả không gian

Có thể bạn quan tâm: Thiết Kế Nhà Nhỏ 5×6: Tối Ưu Từng Mét Vuông Cho Cuộc Sống Tiện Nghi
Mái bằng là kiểu mái phẳng, thường được đổ bê tông cốt thép, mang đến vẻ đẹp hiện đại, mạnh mẽ và tối giản cho các công trình. Thiết kế mái nhà cấp 4 với mái bằng phù hợp với những gia chủ yêu thích sự đơn giản, tiện nghi và muốn tận dụng tối đa không gian. Một trong những ưu điểm lớn nhất của mái bằng là khả năng tận dụng bề mặt mái để tạo thành sân thượng, khu vườn trên mái hoặc không gian phơi đồ, thư giãn, mang lại giá trị sử dụng cao.
Mái bằng có độ bền vượt trội nhờ cấu tạo bê tông cốt thép chắc chắn, khả năng chống chịu tốt với gió bão. Tuy nhiên, mái bằng cũng có nhược điểm là khả năng thoát nước kém hơn so với mái dốc, đòi hỏi hệ thống chống thấm kỹ lưỡng để tránh tình trạng thấm dột. Hơn nữa, mái bằng có thể hấp thụ nhiệt nhiều hơn vào mùa hè, vì vậy cần có các giải pháp cách nhiệt hiệu quả như sử dụng vật liệu chống nóng hoặc trồng cây xanh trên mái để giảm nhiệt độ bên trong. Dù vậy, với vẻ đẹp hiện đại và khả năng tối ưu không gian, mái bằng vẫn là một lựa chọn phổ biến cho những ngôi nhà cấp 4 tại khu vực đô thị hoặc những nơi có diện tích đất hạn chế.


Mái lệch: Đột phá trong kiến trúc đương đại
Mái lệch là một biến thể hiện đại, mang đến sự phá cách và độc đáo cho ngôi nhà cấp 4. Đặc điểm nổi bật của mái lệch là hai hoặc nhiều mặt phẳng mái có độ dốc khác nhau, không đối xứng, tạo nên một hình khối kiến trúc ấn tượng và cá tính. Kiểu mái này thường được sử dụng trong các thiết kế nhà cấp 4 hiện đại, đề cao sự sáng tạo và độc đáo.


Ưu điểm của mái lệch bao gồm khả năng tạo hình kiến trúc độc đáo, thu hút ánh nhìn. Bên cạnh đó, độ dốc khác nhau có thể giúp tối ưu việc thu sáng và thông gió tự nhiên cho các không gian bên trong, tùy thuộc vào hướng nhà và hướng gió. Mái lệch cũng có khả năng thoát nước tốt nếu được tính toán độ dốc phù hợp. Tuy nhiên, thi công mái lệch đòi hỏi kỹ thuật phức tạp hơn, yêu cầu kiến trúc sư phải có kinh nghiệm và chuyên môn cao để đảm bảo tính thẩm mỹ, công năng và kết cấu an toàn. Chi phí xây dựng mái lệch có thể cao hơn so với mái bằng hoặc mái Nhật truyền thống do sự phức tạp trong thiết kế và thi công.
Đặc điểm nổi bật của thiết kế mái Nhật cho nhà cấp 4

Thiết kế mái nhà cấp 4 kiểu Nhật không chỉ là một trào lưu kiến trúc mà còn là một phong cách sống, mang đến sự bình yên, tinh tế và gần gũi với thiên nhiên. Để hiểu rõ hơn về sức hút của kiểu mái này, chúng ta cần tìm hiểu sâu về các đặc điểm nổi bật đã làm nên tên tuổi của nó.
Nguồn gốc và triết lý thiết kế

Mái Nhật, hay còn gọi là mái lùn hoặc mái xếp lớp, có nguồn gốc từ kiến trúc truyền thống Nhật Bản, nơi mà sự hài hòa với thiên nhiên và triết lý tối giản được đề cao. Trong văn hóa Nhật Bản, kiến trúc không chỉ là nơi ở mà còn là không gian để con người kết nối với môi trường xung quanh. Mái Nhật ra đời từ nhu cầu chống lại điều kiện khí hậu khắc nghiệt, đồng thời tạo ra một vẻ đẹp thanh bình, tĩnh tại.
Triết lý “wabi-sabi” – tôn vinh vẻ đẹp của sự không hoàn hảo và sự giản dị – được thể hiện rõ nét trong thiết kế mái Nhật. Các đường nét thẳng, ít chi tiết cầu kỳ, màu sắc trung tính và sự hòa quyện với cảnh quan xung quanh là những yếu tố cốt lõi. Khi áp dụng vào nhà cấp 4, mái Nhật mang đến một diện mạo hiện đại nhưng vẫn giữ được nét Á Đông quen thuộc, tạo cảm giác ấm cúng và an yên.

Độ dốc và cấu tạo mái
Điểm khác biệt rõ rệt nhất của mái Nhật so với mái Thái là độ dốc. Mái Nhật có độ dốc thấp hơn nhiều, chỉ khoảng 20-30 độ, tạo cảm giác bề thế và vững chãi hơn. Cấu tạo mái thường gồm nhiều lớp, được xếp chồng lên nhau hoặc giật cấp, tạo thành các khối kiến trúc tinh tế và độc đáo. Phần mái thường được thiết kế vươn rộng ra khỏi tường nhà, tạo thành những diềm mái lớn, không chỉ có tác dụng che mưa, nắng mà còn góp phần tạo bóng mát và giảm nhiệt cho ngôi nhà.

Cấu trúc mái Nhật thường sử dụng hệ thống vì kèo gỗ hoặc thép, sau đó lợp ngói hoặc tấm lợp giả ngói. Sự tính toán kỹ lưỡng về độ dốc và các lớp vật liệu đảm bảo khả năng thoát nước hiệu quả, đồng thời tăng cường độ bền và tuổi thọ cho công trình. Sự kết hợp giữa cấu trúc chắc chắn và vẻ ngoài nhẹ nhàng, thanh thoát chính là yếu tố làm nên giá trị của mái Nhật.
Khả năng thoát nước và chống nóng

Mặc dù có độ dốc thấp hơn mái Thái, mái Nhật vẫn đảm bảo khả năng thoát nước mưa hiệu quả nhờ thiết kế hệ thống máng xối và thoát nước thông minh. Các lớp mái chồng lên nhau giúp nước mưa chảy xuống nhanh chóng, tránh tình trạng ứ đọng và thấm dột, bảo vệ kết cấu ngôi nhà khỏi các tác động của thời tiết. Điều này đặc biệt quan trọng trong điều kiện khí hậu nhiệt đới ẩm của Việt Nam.
Bên cạnh đó, phần mái được thiết kế rộng và nhô ra tạo bóng mát cho các ô cửa và tường nhà, giúp giảm thiểu lượng nhiệt hấp thụ trực tiếp vào bên trong. Khoảng không gian giữa trần nhà và mái cũng đóng vai trò như một lớp đệm không khí, giúp cách nhiệt hiệu quả, giữ cho ngôi nhà mát mẻ vào mùa hè và ấm áp vào mùa đông. Các vật liệu lợp mái như ngói đất nung hoặc ngói bê tông phủ màu cũng có khả năng cách nhiệt tốt, góp phần tạo nên một không gian sống dễ chịu và tiết kiệm năng lượng.


Tính thẩm mỹ và hòa nhập thiên nhiên
Vẻ đẹp của mái Nhật nằm ở sự tối giản, thanh thoát và khả năng hòa nhập tuyệt vời với cảnh quan xung quanh. Những đường nét thẳng, dứt khoát kết hợp với độ dốc nhẹ tạo nên một tổng thể cân đối, hiện đại nhưng vẫn mang đậm dấu ấn Á Đông. Mái Nhật dễ dàng kết hợp với các vật liệu tự nhiên như gỗ, đá, kính, tạo nên một không gian sống gần gũi, giao hòa với thiên nhiên.


Khi nhìn từ xa, ngôi nhà cấp 4 mái Nhật toát lên vẻ trang nhã, không quá phô trương nhưng vẫn để lại ấn tượng sâu sắc. Phần mái rộng lớn tạo cảm giác vững chãi, an toàn, đồng thời mở ra những góc nhìn đẹp ra sân vườn hoặc cảnh quan bên ngoài. Đây là lý do tại sao mái Nhật rất được ưa chuộng trong thiết kế mái nhà cấp 4 ở cả thành thị và nông thôn, nơi mà con người tìm kiếm sự bình yên và kết nối với tự nhiên.
Xu hướng thiết kế mái nhà cấp 4 mái Nhật được ưa chuộng nhất

Thiết kế mái nhà cấp 4 mái Nhật luôn biến đổi để phù hợp với nhiều nhu cầu và phong cách sống khác nhau. Dưới đây là những xu hướng phổ biến nhất mà các gia chủ có thể tham khảo để tìm kiếm cảm hứng cho ngôi nhà mơ ước của mình.
Mái Nhật cấp 4 phong cách hiện đại và tối giản
Phong cách hiện đại và tối giản là lựa chọn hàng đầu cho những ngôi nhà cấp 4 mái Nhật. Đặc trưng của xu hướng này là việc lược bỏ các chi tiết rườm rà, tập trung vào công năng và sự tinh tế trong từng đường nét. Mái Nhật với độ dốc nhẹ, các mảng khối rõ ràng, kết hợp cùng vật liệu hiện đại như kính, thép, bê tông trần tạo nên một tổng thể sang trọng, thanh lịch.

Ngôi nhà thường có gam màu trung tính như trắng, xám, be, kết hợp với màu gỗ tự nhiên để tạo cảm giác ấm áp. Các cửa sổ lớn, vách kính cường lực giúp tối đa hóa ánh sáng tự nhiên và mở rộng không gian, mang lại cảm giác thoáng đãng và rộng rãi. Sự đơn giản trong thiết kế không chỉ mang lại vẻ đẹp bền vững theo thời gian mà còn giúp gia chủ dễ dàng bảo trì và chăm sóc ngôi nhà.
Mái Nhật cấp 4 sang trọng và tinh tế

Không chỉ dừng lại ở sự tối giản, mái Nhật còn có thể được nâng tầm thành không gian sống sang trọng và tinh tế. Sự kết hợp hài hòa giữa nét truyền thống Á Đông và vật liệu cao cấp, cùng với những điểm nhấn kiến trúc độc đáo, tạo nên một vẻ đẹp đẳng cấp. Các chi tiết như hệ cột trụ vững chãi, vật liệu ốp tường cao cấp như đá tự nhiên, gạch inax, hoặc gỗ công nghiệp ngoài trời, đều góp phần tạo nên sự bề thế và giá trị cho ngôi nhà.
Màu sắc trong phong cách này thường là những gam trầm, ấm như nâu, xám đậm, kết hợp với ánh sáng vàng để tạo cảm giác ấm cúng và quyền quý. Không gian nội thất được thiết kế mở, liên thông giữa các khu vực chức năng, sử dụng đồ nội thất cao cấp, có đường nét tinh xảo. Một ngôi nhà cấp 4 mái Nhật sang trọng không chỉ là nơi ở mà còn là biểu tượng của phong cách sống, thể hiện gu thẩm mỹ và cá tính của gia chủ.





Mái Nhật cấp 4 cho không gian nông thôn bình yên
Mái Nhật đặc biệt phù hợp với không gian nông thôn nhờ khả năng hòa mình vào cảnh quan thiên nhiên. Thiết kế đơn giản, gần gũi giúp ngôi nhà không bị lạc lõng giữa môi trường xanh mát của làng quê. Các mẫu nhà này thường tận dụng tối đa ánh sáng và gió tự nhiên, tạo không gian sống thoáng đãng, dễ chịu.

Vật liệu được ưu tiên sử dụng là những loại gần gũi như gỗ, gạch mộc, đá tự nhiên, kết hợp với hệ mái ngói truyền thống. Sân vườn rộng rãi, tiểu cảnh xanh mát bao quanh ngôi nhà là điểm nhấn không thể thiếu, mang đến cảm giác bình yên và thư thái. Mái Nhật cấp 4 ở nông thôn không chỉ đáp ứng nhu cầu sinh hoạt tiện nghi mà còn tạo ra một tổ ấm lý tưởng, nơi con người có thể tìm thấy sự cân bằng giữa cuộc sống hiện đại và vẻ đẹp mộc mạc của tự nhiên.
Giải pháp mái Nhật cấp 4 với ngân sách tối ưu (Dưới 500 triệu)

Với khoản đầu tư khoảng 500 triệu đồng, gia chủ hoàn toàn có thể sở hữu một mẫu nhà cấp 4 mái Nhật tiện nghi và thẩm mỹ. Bí quyết nằm ở việc tối ưu hóa thiết kế, lựa chọn vật liệu thông minh và quản lý chi phí xây dựng chặt chẽ. Các kiến trúc sư sẽ tập trung vào việc tạo ra một không gian sống hiệu quả, lược bỏ những chi tiết không cần thiết để giảm thiểu chi phí.
Thiết kế mái Nhật với cấu tạo không quá phức tạp so với mái Thái, giúp tiết kiệm chi phí nhân công và vật liệu. Việc lựa chọn vật liệu địa phương, hoặc các loại vật liệu có giá thành phải chăng nhưng vẫn đảm bảo chất lượng và độ bền, là yếu tố then chốt. Ngôi nhà có thể được thiết kế với diện tích vừa phải, bố cục công năng khoa học, tận dụng tối đa ánh sáng và thông gió tự nhiên để giảm chi phí vận hành. Giải pháp này chứng minh rằng một ngôi nhà đẹp và chất lượng không nhất thiết phải tốn kém, mà cần sự tính toán và tư vấn chuyên nghiệp.
Thiết kế mái Nhật cấp 4 chữ L: Tối ưu diện tích và ánh sáng
Kiến trúc chữ L là một trong những lựa chọn phổ biến cho nhà cấp 4, đặc biệt khi kết hợp với mái Nhật. Ưu điểm nổi bật của kiểu nhà này là khả năng tối ưu hóa diện tích đất, tạo ra khoảng sân trong hoặc sân vườn rộng rãi, đồng thời giúp các phòng chức năng đều có thể tiếp cận ánh sáng tự nhiên và thông gió tốt. Phần góc chữ L thường được tận dụng để bố trí sảnh phụ, khu vực giặt phơi hoặc tiểu cảnh, mang lại sự tiện nghi và sinh động.
Thiết kế mái nhà cấp 4 chữ L mái Nhật giúp phân chia không gian rõ ràng giữa khu vực sinh hoạt chung và khu vực riêng tư. Ví dụ, một cánh của chữ L có thể dành cho phòng khách, bếp ăn, trong khi cánh còn lại là các phòng ngủ, tạo sự riêng tư cần thiết. Mái Nhật với độ dốc nhẹ nhàng ôm lấy hình khối chữ L, tạo nên vẻ đẹp cân đối và hài hòa, giúp ngôi nhà trở nên bề thế hơn mà không mất đi sự thanh thoát vốn có.
Mái Nhật cấp 4 với số phòng ngủ đa dạng
Nhu cầu về số lượng phòng ngủ là yếu tố quan trọng quyết định bố cục và diện tích của ngôi nhà cấp 4 mái Nhật. Dù là gia đình nhỏ hay gia đình đa thế hệ, mái Nhật đều có thể đáp ứng linh hoạt.
2 phòng ngủ: Giải pháp cho gia đình nhỏ
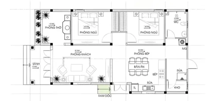
Nhà cấp 4 mái Nhật 2 phòng ngủ là lựa chọn lý tưởng cho các gia đình trẻ, vợ chồng mới cưới hoặc gia đình có 1-2 con nhỏ. Với diện tích vừa phải, bố cục được tối ưu hóa để tạo ra không gian sống tiện nghi, ấm cúng. Phòng khách, bếp và phòng ăn thường được thiết kế mở để tăng cảm giác rộng rãi, trong khi 2 phòng ngủ được bố trí riêng tư, yên tĩnh. Mái Nhật thanh thoát giúp ngôi nhà trông gọn gàng, hiện đại mà vẫn đầy đủ công năng.
3 phòng ngủ: Không gian lý tưởng cho gia đình trung bình
Đối với gia đình có từ 3-5 thành viên, nhà cấp 4 mái Nhật 3 phòng ngủ là giải pháp tối ưu. Với diện tích khoảng 100m2 đến 120m2, ngôi nhà có thể bố trí linh hoạt các phòng ngủ, đảm bảo sự thoải mái và riêng tư cho mỗi thành viên. Một phòng thờ có thể được tích hợp khéo léo để gìn giữ nét văn hóa truyền thống. Không gian sống chung vẫn được duy trì rộng rãi, thoáng đãng, tạo nên nơi quây quần ấm áp cho cả gia đình. Mái Nhật nhẹ nhàng làm bật lên nét hiện đại nhưng tinh tế của ngôi nhà. Với diện tích 150m2, thiết kế mái Nhật dốc thoai thoải kết hợp hiên rộng và bố cục cân đối sẽ tạo nên vẻ ngoài sang trọng mà êm dịu, với từng chi tiết kiến trúc được chăm chút tỉ mỉ.
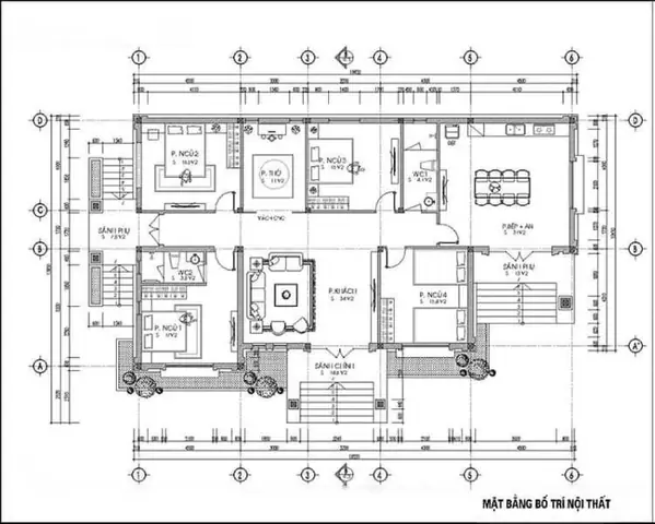
4 phòng ngủ: Đáp ứng nhu cầu gia đình đa thế hệ
Nhà cấp 4 mái Nhật 4 phòng ngủ là lựa chọn hoàn hảo cho những gia đình đông thành viên hoặc gia đình đa thế hệ. Để không gian sinh hoạt rộng rãi, ngôi nhà thường cần quỹ đất đủ lớn. Trong trường hợp diện tích đất hạn chế, giải pháp tích hợp gác lửng là một ý tưởng tuyệt vời. Gác lửng không chỉ tăng thêm không gian sử dụng mà còn giữ được sự thông thoáng và hiện đại cho ngôi nhà. Các phòng ngủ được bố trí khoa học, đảm bảo sự riêng tư nhưng vẫn giữ được sự kết nối giữa các thành viên.
Mái Nhật cấp 4 kết hợp gác lửng: Tăng cường không gian sống
Gác lửng là giải pháp kiến trúc thông minh giúp tối ưu diện tích sử dụng, đặc biệt phù hợp với những ngôi nhà cấp 4 có diện tích đất hạn chế hoặc gia đình đông thành viên. Khi kết hợp với mái Nhật, gác lửng tạo ra một không gian sống rộng rãi, thoáng đãng mà vẫn giữ được vẻ đẹp thanh thoát của tổng thể.
Gác lửng có thể được tận dụng để bố trí thêm phòng ngủ, phòng làm việc, phòng đọc sách hoặc khu vực sinh hoạt chung thứ hai, tùy thuộc vào nhu cầu của gia chủ. Việc thiết kế gác lửng cần đảm bảo yếu tố chiều cao trần phù hợp để tránh cảm giác bí bách. Ánh sáng tự nhiên và thông gió cũng cần được chú trọng để không gian gác lửng luôn dễ chịu. Thiết kế mái nhà cấp 4 có gác lửng mang lại giá trị sử dụng cao, đồng thời tạo điểm nhấn kiến trúc độc đáo, hiện đại.
Mái Nhật cấp 4 tích hợp sân vườn: Hòa mình vào thiên nhiên
Sự kết hợp giữa nhà cấp 4 mái Nhật và sân vườn xanh mát là một công thức hoàn hảo để tạo nên không gian sống lý tưởng, giao hòa với thiên nhiên. Thiết kế tinh giản của mái Nhật dễ dàng hòa hợp với cảnh quan cây xanh, hoa lá, tạo tổng thể thanh thoát và đầy sức sống.
Không gian mở với hiên rộng, cửa sổ lớn và cửa trượt kính giúp ánh sáng tự nhiên lan tỏa khắp nhà, đồng thời xóa nhòa ranh giới giữa không gian nội thất và ngoại thất. Gia chủ có thể tận hưởng không khí trong lành, ngắm nhìn cây cối xanh tươi ngay từ bên trong ngôi nhà. Sân vườn không chỉ mang lại giá trị thẩm mỹ mà còn cải thiện chất lượng không khí, tạo môi trường sống trong lành, thư thái, giúp gia chủ tìm thấy sự bình yên sau những giờ làm việc căng thẳng.
Mái Nhật cấp 4 có gara: Tiện ích cho cuộc sống hiện đại
Trong cuộc sống hiện đại, việc sở hữu ô tô ngày càng phổ biến, và việc tích hợp gara vào thiết kế nhà cấp 4 mái Nhật trở thành một nhu cầu thiết yếu. Mẫu nhà này mang đến giải pháp tiện lợi, đảm bảo an toàn cho phương tiện và góp phần hoàn thiện công năng cho ngôi nhà.
Gara thường được bố trí bên hông hoặc phía trước nhà, có thể thiết kế âm bán hầm hoặc nổi hoàn toàn tùy theo điều kiện địa hình và sở thích của gia chủ. Quan trọng nhất là sự hài hòa với tổng thể kiến trúc, không làm mất đi vẻ đẹp thanh thoát của mái Nhật. Thiết kế gara cần tính toán kỹ lưỡng về diện tích, lối ra vào thuận tiện và hệ thống thông gió để tránh tích tụ mùi xăng dầu. Mái Nhật cấp 4 có gara là sự kết hợp thông minh giữa tiện ích và thẩm mỹ, mang đến một không gian sống hoàn chỉnh và hiện đại.
Bản vẽ và phối cảnh mẫu mái nhà cấp 4 mái Nhật ấn tượng
Bản vẽ kiến trúc và phối cảnh 3D đóng vai trò cực kỳ quan trọng trong quá trình thiết kế mái nhà cấp 4 mái Nhật. Đây là bước hiện thực hóa ý tưởng, giúp gia chủ hình dung rõ ràng về ngôi nhà tương lai của mình. Những bản vẽ chi tiết không chỉ thể hiện cấu trúc, bố cục mà còn phác họa vẻ đẹp thẩm mỹ, sự hài hòa giữa các yếu tố.
Các bản vẽ nhà cấp 4 mái Nhật ấn tượng thường tập trung vào việc tối ưu hóa công năng trên một diện tích vừa phải. Sự tinh tế nằm ở cách kiến trúc sư bố trí các không gian chức năng như phòng khách, phòng bếp, phòng ngủ sao cho hợp lý, khoa học và vẫn đảm bảo sự riêng tư cần thiết. Phối cảnh 3D sẽ lột tả chân thực vẻ ngoài của ngôi nhà, từ màu sắc, vật liệu đến ánh sáng tự nhiên và cảnh quan xung quanh. Những hình ảnh này giúp gia chủ dễ dàng điều chỉnh, bổ sung ý tưởng trước khi tiến hành thi công, đảm bảo công trình cuối cùng hoàn hảo nhất.
Ví dụ, một bản vẽ ấn tượng có thể thể hiện rõ hệ mái Nhật dốc nhẹ nhàng ôm trọn các khối nhà, tạo điểm nhấn cho phần mặt tiền. Các chi tiết như hệ thống cửa sổ lớn, ban công nhỏ (nếu có gác lửng), hay phần hiên nhà rộng rãi đều được thể hiện rõ ràng. Bản vẽ cũng có thể mô tả cách ánh sáng tự nhiên len lỏi vào từng không gian, tạo cảm giác thoáng đãng và dễ chịu. Sự tỉ mỉ trong từng chi tiết của bản vẽ chính là yếu tố tạo nên một ngôi nhà cấp 4 mái Nhật không chỉ đẹp mắt mà còn tối ưu về công năng.
Lợi ích vượt trội khi lựa chọn mái Nhật cho nhà cấp 4
Việc lựa chọn thiết kế mái nhà cấp 4 mái Nhật mang lại nhiều lợi ích đáng kể, giải thích lý do tại sao kiểu kiến trúc này lại được nhiều gia chủ ưa chuộng đến vậy. Từ thẩm mỹ đến công năng và chi phí, mái Nhật đều thể hiện những ưu điểm vượt trội.
Vẻ đẹp thẩm mỹ độc đáo và tinh tế
Mái Nhật nổi bật với đường nét đơn giản, thanh thoát, mang lại vẻ đẹp hiện đại nhưng vẫn giữ được sự hài hòa, tinh tế. Không quá cầu kỳ như mái Thái hay quá đơn điệu như mái bằng, mái Nhật tạo nên một phong cách riêng biệt, không bị lỗi thời theo thời gian. Sự kết hợp giữa độ dốc nhẹ và các lớp mái giật cấp tạo nên chiều sâu và điểm nhấn kiến trúc độc đáo cho ngôi nhà. Vẻ đẹp này phù hợp với nhiều phong cách khác nhau, từ tối giản, hiện đại đến tân cổ điển, giúp ngôi nhà toát lên sự sang trọng và đẳng cấp một cách tự nhiên.
Tối ưu công năng và không gian sống
Thiết kế mái Nhật giúp tối ưu hóa công năng và không gian sống bên trong ngôi nhà. Phần mái rộng, vươn ra ngoài tạo thành hiên nhà không chỉ che chắn mưa nắng mà còn mở rộng không gian sử dụng, có thể làm nơi thư giãn, đọc sách hay đặt bàn trà. Bên cạnh đó, hệ mái Nhật có thể dễ dàng kết hợp với các giải pháp kiến trúc khác như gác lửng, sân vườn hay gara, giúp tăng thêm diện tích sử dụng và tiện ích cho gia đình. Bố trí công năng khoa học, phù hợp với nhu cầu sinh hoạt của gia đình Việt, mang đến sự thoải mái và tiện nghi tối đa.
Khả năng thích ứng với điều kiện khí hậu Việt Nam
Với đặc điểm khí hậu nhiệt đới ẩm gió mùa, mái Nhật là một lựa chọn lý tưởng. Độ dốc nhẹ của mái giúp thoát nước mưa nhanh chóng, tránh tình trạng ứ đọng và thấm dột, bảo vệ ngôi nhà khỏi ẩm mốc. Đồng thời, khoảng không gian đệm giữa trần và mái, cùng với phần diềm mái rộng, tạo bóng mát và giảm thiểu lượng nhiệt hấp thụ trực tiếp, giúp chống nóng hiệu quả vào mùa hè. Ngôi nhà cấp 4 mái Nhật luôn giữ được sự thông thoáng, mát mẻ, mang lại cảm giác dễ chịu cho các thành viên.
Hiệu quả kinh tế trong xây dựng
So với các kiểu biệt thự hay nhà tầng phức tạp, nhà cấp 4 mái Nhật có chi phí xây dựng hợp lý hơn mà vẫn đảm bảo được tính thẩm mỹ và sang trọng. Cấu tạo không quá phức tạp của mái Nhật giúp tiết kiệm chi phí vật liệu và nhân công. Hơn nữa, với thiết kế tối giản, gia chủ có thể dễ dàng lựa chọn vật liệu phù hợp với ngân sách mà vẫn đảm bảo chất lượng công trình. Sự cân đối giữa chi phí đầu tư và giá trị nhận được là một trong những yếu tố khiến mái Nhật trở thành lựa chọn ưu tiên của nhiều gia đình.
Gắn kết với thiên nhiên và tạo không gian xanh
Mái Nhật khuyến khích sự giao hòa giữa không gian sống và thiên nhiên bên ngoài. Phần mái rộng tạo ra những khoảng hiên, ban công lý tưởng để gia chủ có thể tận hưởng không khí trong lành và ngắm nhìn cảnh quan. Khi kết hợp với sân vườn hoặc các yếu tố xanh khác, ngôi nhà cấp 4 mái Nhật trở thành một tổ ấm bình yên, nơi con người có thể tìm thấy sự cân bằng và thư giãn. Không gian mở với ánh sáng tự nhiên và luồng gió mát giúp cải thiện sức khỏe thể chất lẫn tinh thần.
Đa dạng phong cách, linh hoạt trong thiết kế
Một trong những ưu điểm lớn của mái Nhật là khả năng linh hoạt trong thiết kế, có thể kết hợp với nhiều phong cách kiến trúc khác nhau. Từ hiện đại, tối giản, đến phong cách Indochine, tân cổ điển, mái Nhật đều có thể thích ứng một cách hài hòa. Sự đa dạng này cho phép kiến trúc sư và gia chủ thỏa sức sáng tạo, thể hiện cá tính riêng mà vẫn giữ được nét đặc trưng của mái Nhật. Kiểu mái này cũng phù hợp với nhiều diện tích đất khác nhau, từ những lô đất nhỏ hẹp ở đô thị đến những khu đất rộng lớn ở nông thôn.
Kinh nghiệm và lưu ý quan trọng khi thiết kế mái nhà cấp 4 mái Nhật
Để có được một ngôi nhà cấp 4 mái Nhật hoàn hảo, việc nắm vững các kinh nghiệm và lưu ý quan trọng trong quá trình thiết kế mái nhà cấp 4 là điều cần thiết. Những yếu tố này sẽ đảm bảo công trình không chỉ đẹp mà còn bền vững và tối ưu công năng.
Xác định rõ nhu cầu sử dụng và diện tích xây dựng
Trước khi bắt tay vào thiết kế, gia chủ cần xác định rõ ràng về số lượng thành viên trong gia đình, thói quen sinh hoạt và các không gian chức năng cần thiết (số phòng ngủ, phòng khách, bếp, phòng thờ, gara…). Điều này giúp kiến trúc sư có cơ sở để bố trí mặt bằng công năng một cách khoa học, tránh lãng phí diện tích hoặc thiếu hụt không gian. Việc tính toán diện tích đất hiện có và diện tích xây dựng mong muốn cũng là yếu tố then chốt để đảm bảo ngôi nhà phù hợp với quy định xây dựng và đáp ứng đầy đủ nhu cầu của gia đình.
Lựa chọn phong cách và kiểu mái phù hợp
Mái Nhật có nhiều biến thể như mái đơn, mái kép, mái thái Nhật, mái dốc thấp… Mỗi kiểu mái mang một vẻ đẹp và đặc điểm riêng. Gia chủ cần trao đổi kỹ với kiến trúc sư để lựa chọn kiểu mái phù hợp với tổng thể phong cách kiến trúc mong muốn (hiện đại, tối giản, tân cổ điển…), cũng như điều kiện địa hình và khí hậu khu vực. Sự lựa chọn đúng đắn sẽ tạo nên sự cân đối, hài hòa và nâng cao giá trị thẩm mỹ cho toàn bộ công trình.
Lập kế hoạch tài chính và dự trù ngân sách chi tiết
Ngân sách là yếu tố quan trọng ảnh hưởng đến mọi quyết định trong quá trình xây dựng. Việc lập kế hoạch tài chính chi tiết, bao gồm chi phí thiết kế, vật liệu thô, vật liệu hoàn thiện, nhân công và các chi phí phát sinh, sẽ giúp gia chủ kiểm soát tốt dòng tiền và tránh những rủi ro tài chính không mong muốn. Nên dự trù một khoản chi phí phát sinh khoảng 10-15% tổng ngân sách để phòng trường hợp cần thiết. Lựa chọn vật liệu phù hợp với ngân sách nhưng vẫn đảm bảo chất lượng là điều cần ưu tiên.
Đảm bảo yếu tố phong thủy hài hòa
Phong thủy là một yếu tố tâm linh được nhiều gia chủ quan tâm khi xây dựng nhà ở. Hướng nhà, hướng mái, vị trí cửa chính, cửa sổ, cũng như cách bố trí phòng khách, phòng ngủ, bếp và phòng thờ cần được tính toán kỹ lưỡng theo nguyên tắc phong thủy. Một không gian sống hài hòa về phong thủy được tin là sẽ mang lại may mắn, sức khỏe và tài lộc cho gia đình. Việc tham khảo ý kiến chuyên gia phong thủy hoặc kiến trúc sư có kinh nghiệm trong lĩnh vực này là rất hữu ích.
Hợp tác với đơn vị thiết kế và thi công uy tín
Đây là yếu tố then chốt quyết định chất lượng và sự thành công của công trình. Một đơn vị thiết kế và thi công uy tín như Interstellas với đội ngũ kiến trúc sư, kỹ sư giàu kinh nghiệm, quy trình làm việc minh bạch và hợp đồng rõ ràng sẽ mang đến giải pháp tối ưu, đảm bảo kỹ thuật, chất lượng vật liệu và bảo vệ tối đa quyền lợi khách hàng. Họ không chỉ giúp bạn hiện thực hóa ý tưởng mà còn tư vấn những giải pháp hiệu quả, tối ưu chi phí và hạn chế rủi ro trong suốt quá trình xây dựng.
Phân tích vật liệu và kỹ thuật thi công mái Nhật nhà cấp 4
Để thiết kế mái nhà cấp 4 mái Nhật đạt được cả vẻ đẹp thẩm mỹ và độ bền vững, việc lựa chọn vật liệu và áp dụng kỹ thuật thi công chuẩn xác là cực kỳ quan trọng. Sự kết hợp đúng đắn giữa hai yếu tố này sẽ đảm bảo ngôi nhà có thể chống chịu tốt với thời tiết và duy trì giá trị lâu dài.
Các loại vật liệu lợp mái phổ biến
Lựa chọn vật liệu lợp mái ảnh hưởng trực tiếp đến vẻ ngoài, độ bền và chi phí của mái Nhật.
Ngói: Truyền thống và hiện đại
Ngói là vật liệu truyền thống và phổ biến nhất cho mái Nhật. Các loại ngói đất nung mang vẻ đẹp mộc mạc, gần gũi, có khả năng cách nhiệt tốt. Ngói tráng men hoặc ngói bê tông phủ màu hiện đại hơn, đa dạng về màu sắc và kiểu dáng, giúp tạo điểm nhấn thẩm mỹ cho ngôi nhà. Ngói có độ bền cao, chống chịu tốt với thời tiết khắc nghiệt. Tuy nhiên, ngói tương đối nặng, đòi hỏi kết cấu khung mái chắc chắn và quy trình lợp ngói phải tỉ mỉ, chính xác để tránh thấm dột.
Tấm lợp kim loại: Bền bỉ và linh hoạt
Tấm lợp kim loại như tôn lạnh, tôn sóng giả ngói đang ngày càng được ưa chuộng nhờ ưu điểm về trọng lượng nhẹ, độ bền cao, khả năng chống cháy và chống thấm tốt. Tấm lợp kim loại có nhiều màu sắc và kiểu dáng, dễ dàng thi công và ít tốn kém hơn so với ngói truyền thống. Đặc biệt, tôn sóng giả ngói mang lại vẻ đẹp gần giống ngói nhưng với chi phí thấp hơn. Tuy nhiên, tấm lợp kim loại có thể hấp thụ nhiệt nhiều hơn vào mùa hè và tạo tiếng ồn khi mưa lớn, do đó cần kết hợp với vật liệu cách nhiệt và cách âm hiệu quả.
Cấu tạo và quy trình thi công mái Nhật
Quy trình thi công mái Nhật cần được thực hiện bởi đội ngũ thợ lành nghề, tuân thủ các tiêu chuẩn kỹ thuật để đảm bảo chất lượng và an toàn.
Hệ thống vì kèo và xà gồ
Khung mái là bộ phận chịu lực chính, thường được làm bằng thép hộp hoặc gỗ đã qua xử lý chống mối mọt. Hệ thống vì kèo (khung chịu lực chính) và xà gồ (thanh đỡ nằm ngang) phải được tính toán kỹ lưỡng về khả năng chịu tải, độ dốc và khoảng cách giữa các thanh đỡ để đảm bảo sự vững chắc cho toàn bộ hệ mái. Việc lắp đặt khung mái cần chính xác, vuông vắn và đúng theo bản vẽ thiết kế.
Lớp cách nhiệt và chống thấm
Đây là hai lớp cực kỳ quan trọng để đảm bảo công năng của mái Nhật. Lớp cách nhiệt thường sử dụng vật liệu như tấm xốp XPS, bông thủy tinh, hoặc tấm cách nhiệt PU, giúp ngăn chặn sự truyền nhiệt từ bên ngoài vào trong nhà, giữ cho không gian sống mát mẻ. Lớp chống thấm, thường là màng chống thấm bitum hoặc hóa chất chống thấm gốc polymer, được thi công cẩn thận trên bề mặt mái (đặc biệt là ở các vị trí tiếp giáp, khe nối) để ngăn nước mưa thấm qua, bảo vệ kết cấu bên trong.
Lợp ngói/tấm lợp đúng kỹ thuật
Bước lợp ngói hoặc tấm lợp cần được thực hiện đúng kỹ thuật, theo thứ tự từ dưới lên trên, từ ngoài vào trong, đảm bảo các viên ngói hoặc tấm lợp chồng mí đúng quy cách, không bị hở. Các chi tiết như ngói rìa, ngói nóc, ngói cuối cũng cần được lắp đặt cẩn thận và cố định chắc chắn bằng vữa hoặc vít. Đối với tấm lợp kim loại, cần chú ý đến việc bắt vít đúng vị trí và sử dụng gioăng cao su chống thấm để đảm bảo độ kín khít.
Tối ưu không gian nội thất dưới mái Nhật cấp 4
Thiết kế mái nhà cấp 4 mái Nhật không chỉ ảnh hưởng đến vẻ ngoài mà còn định hình không gian nội thất bên trong. Việc tối ưu hóa các yếu tố nội thất dưới mái Nhật sẽ tạo ra một tổ ấm tiện nghi, thoáng đãng và hài hòa.
Thiết kế trần nhà phù hợp
Trần nhà là một phần quan trọng để hoàn thiện không gian dưới mái Nhật. Gia chủ có thể lựa chọn trần phẳng với thạch cao để tạo vẻ đẹp hiện đại, tinh tế và dễ dàng tích hợp hệ thống chiếu sáng âm trần. Nếu muốn tạo điểm nhấn, trần giật cấp nhẹ hoặc trần gỗ có thể mang lại cảm giác ấm cúng và sang trọng hơn. Đối với những ngôi nhà có gác lửng hoặc mái dốc cao, việc để lộ một phần kết cấu mái (như vì kèo gỗ) cũng là một ý tưởng độc đáo, tạo cảm giác không gian rộng mở và ấn tượng.
Tận dụng ánh sáng tự nhiên
Một trong những ưu điểm của mái Nhật là khả năng tạo ra các cửa sổ lớn hoặc ô lấy sáng trên mái (nếu thiết kế phù hợp) để tận dụng tối đa ánh sáng tự nhiên. Ánh sáng tự nhiên không chỉ giúp tiết kiệm năng lượng mà còn tạo cảm giác thông thoáng, dễ chịu và làm tăng tính thẩm mỹ cho không gian. Gia chủ nên bố trí cửa sổ ở những vị trí chiến lược để đón sáng tốt nhất và kết hợp với rèm cửa phù hợp để điều chỉnh lượng ánh sáng khi cần.
Giải pháp thông gió hiệu quả
Để đảm bảo không khí trong lành và mát mẻ, hệ thống thông gió dưới mái Nhật cần được chú trọng. Việc thiết kế các cửa sổ đối xứng, cửa đi có lam gió hoặc sử dụng quạt trần, hệ thống thông gió cơ học sẽ giúp không khí lưu thông liên tục, đẩy khí nóng ra ngoài và đưa khí tươi vào trong. Điều này đặc biệt quan trọng để chống lại cái nóng của mùa hè và giữ cho không gian không bị ẩm thấp vào mùa mưa.
Lựa chọn nội thất hài hòa với phong cách mái Nhật
Nội thất nên được lựa chọn sao cho hài hòa với phong cách kiến trúc tổng thể của ngôi nhà cấp 4 mái Nhật. Đối với phong cách hiện đại tối giản, đồ nội thất có đường nét đơn giản, màu sắc trung tính sẽ là lựa chọn phù hợp. Vật liệu gỗ tự nhiên, tre, nứa hoặc các vật liệu có kết cấu thô mộc sẽ tăng cường vẻ đẹp gần gũi với thiên nhiên. Tránh sử dụng quá nhiều đồ đạc rườm rà, tập trung vào công năng và sự thoải mái để tạo nên một không gian sống tiện nghi, thư thái và đúng chất mái Nhật.
Mái nhà cấp 4 mái Nhật không chỉ là một kiểu kiến trúc đơn thuần mà còn là biểu tượng của sự tinh tế, hài hòa và bền vững. Với những ưu điểm vượt trội về thẩm mỹ, công năng và khả năng thích ứng, mái Nhật đã và đang trở thành lựa chọn hàng đầu cho những ai mong muốn xây dựng một tổ ấm lý tưởng. Qua bài viết này, hy vọng bạn đã có cái nhìn toàn diện về thiết kế mái nhà cấp 4 mái Nhật, từ đặc điểm, xu hướng đến những lưu ý quan trọng. Việc lựa chọn một đơn vị thiết kế và thi công uy tín sẽ là chìa khóa để hiện thực hóa ngôi nhà mơ ước của bạn, nơi mỗi khoảnh khắc đều tràn đầy bình yên và hạnh phúc.
















