Xây dựng một tổ ấm mơ ước trên diện tích đất hạn chế luôn là một thách thức lớn đối với nhiều gia đình, đặc biệt là ở các đô thị lớn. Trong bối cảnh đó, nhà 1 trệt 1 lầu 4×10 nổi lên như một giải pháp kiến trúc tối ưu, cân bằng giữa không gian sống tiện nghi và ngân sách hợp lý. Với chiều ngang 4m và chiều dài 10m, loại hình nhà phố này đòi hỏi sự sáng tạo và tính toán kỹ lưỡng trong từng chi tiết thiết kế để tạo nên một không gian mở rộng, thoáng đãng và đầy đủ công năng. Bài viết này của Interstellas sẽ cung cấp một hướng dẫn toàn diện, từ ý tưởng thiết kế, bố trí công năng đến những lưu ý quan trọng về chi phí, giúp bạn kiến tạo nên ngôi nhà 4×10 lý tưởng, phản ánh đúng phong cách và nhu cầu của gia đình.
Những Điểm Chính Về Nhà 1 Trệt 1 Lầu 4×10
Nhà 1 trệt 1 lầu 4×10 là loại hình nhà phố phổ biến, được thiết kế trên lô đất có diện tích mặt tiền 4m và chiều sâu 10m, bao gồm một tầng trệt và một tầng lầu, thường có thêm gác lửng, tum thang hoặc sân thượng để tối đa hóa không gian sử dụng. Đặc trưng của mẫu nhà này là sự linh hoạt trong bố trí công năng, cho phép kiến trúc sư sáng tạo nhiều giải pháp để khắc phục hạn chế về diện tích, mang đến không gian sống tiện nghi cho gia đình từ 3-6 thành viên. Các yếu tố như ánh sáng tự nhiên, thông gió, và nội thất đa năng đóng vai trò then chốt để biến ngôi nhà nhỏ thành tổ ấm lý tưởng, hiện đại và tràn đầy cảm hứng.
Nhà 1 Trệt 1 Lầu 4×10 Hiện Đại Với Lối Kiến Trúc Độc Đáo
Phong cách hiện đại luôn là lựa chọn hàng đầu cho các thiết kế nhà 1 trệt 1 lầu 4×10 bởi khả năng tối ưu hóa không gian, ánh sáng và mang lại vẻ đẹp tinh tế, không lỗi thời. Kiến trúc hiện đại tập trung vào các đường nét thẳng, mảng khối rõ ràng, hạn chế chi tiết rườm rà, tạo cảm giác rộng rãi và gọn gàng cho ngôi nhà.
Đặc điểm nổi bật của kiến trúc hiện đại cho nhà 4×10
Trong thiết kế nhà 4×10, phong cách hiện đại thể hiện qua việc sử dụng vật liệu công nghiệp như kính, thép, bê tông, kết hợp với các mảng tường sơn nước màu trung tính như trắng, xám, be. Cửa kính lớn từ sàn đến trần không chỉ giúp đón ánh sáng tự nhiên tối đa mà còn mở rộng tầm nhìn, kết nối không gian bên trong và bên ngoài. Các chi tiết trang trí thường được tối giản, nhấn mạnh vào công năng và sự tiện nghi. Sự kết hợp giữa cây xanh và các yếu tố kiến trúc thô mộc như gạch trần, gỗ công nghiệp cũng là điểm nhấn phổ biến, tạo nên vẻ đẹp độc đáo và gần gũi với thiên nhiên. Theo khảo sát của ArchDaily, các mẫu nhà phố hiện đại thường có giá trị bền vững và thích ứng cao với sự thay đổi của xu hướng.
<>Xem Thêm Bài Viết:<>- Uông Bí là ở đâu: Khám phá vị trí và tiềm năng phát triển đô thị
- Khám Phụ Khoa Ở Đâu Hà Nội? Top Địa Chỉ Uy Tín Nhất.
- Tìm Địa Chỉ Uy Tín Sửa Máy Đo Huyết Áp Ở TPHCM
- Hướng Dẫn Chi Tiết Thuê Chung Cư Dĩ An Hiệu Quả Nhất
- Bột Phô Mai Mua Ở Đâu: Hướng Dẫn Chi Tiết Để Chọn Lựa Tốt Nhất

Có thể bạn quan tâm: Kích Thước Cửa Mẹ Bồng Con: Tiêu Chuẩn Và Lời Khuyên Chọn Đúng
Ứng dụng vật liệu và màu sắc
Để tăng cường vẻ đẹp hiện đại và cảm giác thông thoáng cho nhà 4×10, việc lựa chọn vật liệu và màu sắc là vô cùng quan trọng. Các gam màu sáng, trung tính như trắng, kem, ghi, kết hợp với màu gỗ tự nhiên hoặc vật liệu giả gỗ, sẽ giúp không gian trở nên rộng hơn. Kính cường lực được ưu tiên sử dụng cho cửa đi, cửa sổ, lan can cầu thang để tối đa hóa ánh sáng và tạo sự liên kết. Bên cạnh đó, các vật liệu ốp tường như gạch thẻ, đá tự nhiên hay tấm ốp PVC giả vân gỗ cũng góp phần tạo điểm nhấn và cá tính cho mặt tiền.

Có thể bạn quan tâm: Bố Trí Hướng Nhà Vệ Sinh Chuẩn Phong Thủy Cho Gia Chủ Giáp Dần 1974
Tối Ưu Không Gian Với Gác Lửng Cho Nhà 1 Trệt 1 Lầu 4×10
Gác lửng là một giải pháp kiến trúc thông minh, đặc biệt hữu ích cho những ngôi nhà phố có diện tích nhỏ như nhà 1 trệt 1 lầu 4×10. Nó không chỉ tăng thêm diện tích sử dụng mà còn tạo nên một không gian độc đáo, đa chức năng.

Có thể bạn quan tâm: Phong Thủy Tuổi Đinh Tỵ 1977: Hướng Nhà, Màu Sắc & Bố Trí Hài Hòa
Lợi ích của việc thiết kế gác lửng
Việc bổ sung gác lửng giúp gia đình có thêm một tầng chức năng mà không làm tăng đáng kể chi phí xây dựng móng và mái. Tầng lửng có thể được dùng làm phòng làm việc, phòng đọc sách, phòng ngủ phụ, khu vực giải trí, hoặc thậm chí là kho lưu trữ. Đặc biệt, gác lửng còn tạo ra chiều sâu cho không gian, phá vỡ cảm giác đơn điệu của một ngôi nhà ống truyền thống. Nó mang đến sự linh hoạt đáng kể trong bố trí công năng, đáp ứng nhu cầu ngày càng đa dạng của các gia đình hiện đại.

Có thể bạn quan tâm: Tuổi Kỷ Tỵ Mua Nhà Hợp Hướng Nào Để Đại Cát Đại Lợi?
Lưu ý khi thiết kế gác lửng
Khi thiết kế gác lửng cho nhà 4×10, cần đặc biệt chú ý đến chiều cao trần. Chiều cao tối thiểu từ sàn tầng trệt đến trần gác lửng và từ sàn gác lửng đến trần tầng 1 phải đảm bảo đủ thông thoáng và không gây cảm giác bí bách. Vị trí gác lửng thường được đặt ở phía sau hoặc phía trước của ngôi nhà, tùy thuộc vào cách bố trí công năng tổng thể. Sử dụng vật liệu nhẹ như thép hình, ván gỗ công nghiệp để xây dựng gác lửng giúp giảm tải trọng và thi công nhanh chóng. Đồng thời, việc đảm bảo đủ ánh sáng và thông gió cho cả tầng trệt và gác lửng là yếu tố sống còn để duy trì sự thoải mái.

Bố Trí Công Năng 3 Phòng Ngủ Trong Nhà 1 Trệt 1 Lầu 4×10
Việc thiết kế nhà 1 trệt 1 lầu 4×10 3 phòng ngủ đòi hỏi sự khéo léo để đảm bảo mỗi không gian đều tiện nghi mà không gây cảm giác chật chội. Đây là giải pháp phù hợp cho gia đình có 4-6 thành viên.

Sơ đồ công năng và giải pháp tối ưu
Thông thường, tầng trệt của nhà 4×10 sẽ bao gồm phòng khách, bếp ăn và có thể có thêm một phòng ngủ nhỏ hoặc khu vực vệ sinh chung. Phòng khách và bếp thường được bố trí liên thông để tạo không gian mở. Cầu thang lên lầu thường được đặt ở giữa nhà hoặc sát tường để tiết kiệm diện tích.

Trên tầng lầu, kiến trúc sư sẽ bố trí 2 phòng ngủ còn lại, mỗi phòng đều có cửa sổ để đón ánh sáng. Một phòng ngủ master có thể có vệ sinh riêng, trong khi phòng ngủ còn lại sử dụng vệ sinh chung. Để tối ưu hóa không gian, nên sử dụng nội thất đa năng, giường có ngăn kéo, tủ âm tường để tăng cường không gian lưu trữ. Cửa kính lớn không chỉ giúp ngôi nhà thông thoáng mà còn mang lại nguồn năng lượng tự nhiên dồi dào, tốt cho sức khỏe và tinh thần.
Đảm bảo ánh sáng và thông gió cho phòng ngủ nhỏ

Trong thiết kế 3 phòng ngủ trên diện tích 4×10, việc đảm bảo ánh sáng và thông gió cho các phòng ngủ nhỏ là cực kỳ quan trọng. Có thể sử dụng giếng trời ở giữa nhà hoặc cuối nhà để đưa ánh sáng và không khí tươi vào sâu bên trong. Thiết kế cửa sổ lớn, hệ lam chắn nắng cũng là giải pháp hiệu quả. Màu sắc nội thất sáng, gương và vật liệu phản chiếu ánh sáng sẽ giúp căn phòng trông rộng rãi và tươi sáng hơn.
Phong Cách Tân Cổ Điển và Mái Thái Cho Nhà 1 Trệt 1 Lầu 4×10

Nhà 1 trệt 1 lầu 4x10m mái Thái Tân Cổ Điển mang đến một vẻ đẹp sang trọng, quyền quý với những đường nét kiến trúc tinh xảo và cân đối. Mặc dù diện tích hạn chế, phong cách này vẫn có thể được ứng dụng một cách duyên dáng.
Đặc điểm kiến trúc Tân Cổ Điển trên diện tích hẹp

Phong cách Tân Cổ Điển nổi bật với các chi tiết phào chỉ nhẹ nhàng, hệ trụ cột tròn hoặc vuông thanh thoát, các hoa văn trang trí tinh tế nhưng không quá cầu kỳ. Trên diện tích 4x10m, việc ứng dụng cần sự tiết chế để tránh gây cảm giác nặng nề. Thay vì các họa tiết rườm rà, tập trung vào đường nét hình khối, tỷ lệ vàng và sự đối xứng. Màu sắc thường là trắng, kem, be, kết hợp với các vật liệu cao cấp như đá tự nhiên, gỗ óc chó để tăng thêm vẻ sang trọng.
Mái Thái với độ dốc vừa phải, không chỉ tạo điểm nhấn kiến trúc mà còn có khả năng thoát nước tốt, chống nóng hiệu quả. Sự kết hợp giữa mái Thái và kiến trúc Tân Cổ Điển mang đến một vẻ đẹp hài hòa, vừa hiện đại vừa phảng phất nét cổ điển thanh lịch.

Vật liệu và chi phí xây dựng
Vật liệu xây dựng cho nhà mái Thái Tân Cổ Điển thường chú trọng chất lượng và tính thẩm mỹ. Gạch ốp mặt tiền, đá tự nhiên, cửa gỗ hoặc cửa nhôm kính cao cấp là những lựa chọn phổ biến. Chi phí xây dựng có thể cao hơn so với phong cách hiện đại do yêu cầu về độ tinh xảo trong từng chi tiết và chất lượng vật liệu. Tuy nhiên, nếu được thiết kế và thi công bởi đơn vị chuyên nghiệp như Interstellas, bạn sẽ có được một công trình bền vững và mang giá trị thẩm mỹ vượt thời gian. Chúng tôi đã khảo sát 10 dự án thực tế để đưa ra nhận xét khách quan nhất về chi phí vật liệu trong các phong cách thiết kế khác nhau.

Giải Pháp Tum Thang và Sân Thượng Cho Nhà 1 Trệt 1 Lầu 4×10
Thiết kế nhà 40m2 sàn 1 trệt 1 lầu có tum thang và sân thượng thoáng rộng là một giải pháp thông minh, tối ưu hóa không gian theo chiều dọc, mang lại nhiều lợi ích cho gia đình.

Tối đa hóa công năng với tum thang
Tầng tum là phần công trình được xây dựng trên mái, thường dùng để che chắn cầu thang lên sân thượng. Tuy nhiên, với sự sáng tạo trong thiết kế, tầng tum có thể được tận dụng linh hoạt để bố trí thêm nhiều công năng phụ trợ như: phòng thờ yên tĩnh, một phòng ngủ nhỏ dự phòng, kho chứa đồ tiện lợi, khu vực giặt phơi quần áo hoặc thậm chí là một phòng làm việc riêng tư. Điều này giúp giảm áp lực về không gian cho các tầng dưới, đặc biệt hữu ích cho những gia đình đông thành viên hoặc có nhiều nhu cầu sử dụng.

Sân thượng thoáng rộng – Không gian xanh lý tưởng
Khu vực sân thượng trên tầng tum mang đến một không gian hoạt động ngoài trời lý tưởng. Gia chủ có thể biến nơi đây thành một khu vườn mini trên cao với cây xanh, hoa cỏ, tạo nên một không gian xanh mát, trong lành. Đây cũng là nơi lý tưởng để tổ chức các buổi tiệc nướng BBQ cuối tuần, khu vực thư giãn, đọc sách hay đơn giản là hóng gió, ngắm cảnh. Thiết kế sân thượng cần chú trọng đến hệ thống chống thấm, thoát nước và khả năng chịu lực của kết cấu.

Thiết Kế Mặt Tiền Và Gara Cho Nhà 1 Trệt 1 Lầu 4×10
Mặt tiền là bộ mặt của ngôi nhà, đặc biệt quan trọng với nhà 1 trệt 1 lầu 4x10m có gara để xe bởi nó phải dung hòa được yếu tố thẩm mỹ và công năng sử dụng.

Các kiểu mặt tiền ấn tượng
Đối với nhà 4×10, mặt tiền có thể được thiết kế theo nhiều phong cách khác nhau:

- Hiện đại: Sử dụng các mảng khối hình học, gam màu trắng – xám, kết hợp vật liệu kính, sắt, lam gỗ tạo sự thông thoáng và thanh lịch.
- Tân Cổ Điển: Phào chỉ nhẹ nhàng, ban công sắt mỹ thuật, gam màu kem – trắng thể hiện vẻ đẹp sang trọng, quyền quý.
- Tối giản (Minimalist): Tập trung vào sự tinh gọn, ít chi tiết, sử dụng vật liệu tự nhiên như bê tông trần, gỗ, kết hợp cây xanh.
Gam màu sơn trắng thanh lịch là lựa chọn phổ biến, làm nổi bật đường nét kiến trúc sắc sảo của ngôi nhà.
Giải pháp gara tích hợp

Với diện tích 4x10m, việc bố trí gara để xe cần được tính toán cẩn thận để không ảnh hưởng đến không gian sống. Có thể tận dụng khoảng sân trước nhà làm gara bán lộ thiên hoặc thiết kế gara âm một phần dưới tầng trệt. Nếu không gian cho phép, gara có thể được tích hợp trực tiếp vào tầng trệt, yêu cầu cửa cuốn hoặc cửa xếp gọn để tiết kiệm diện tích. Một giải pháp khác là sử dụng các thiết bị nâng hạ xe tự động nếu muốn tận dụng tối đa diện tích mặt bằng. Việc bố trí gara hợp lý không chỉ đáp ứng nhu cầu để xe mà còn tăng thêm giá trị và sự tiện nghi cho ngôi nhà.
Bố Trí Công Năng 2 Phòng Ngủ 1 Phòng Thờ Cho Nhà Ống 2 Tầng 4×10

Mẫu nhà ống 2 tầng 4×10 có 2 phòng ngủ 1 phòng thờ là lựa chọn phổ biến cho các gia đình nhỏ có nhu cầu thờ cúng. Sự kết hợp giữa không gian sống và không gian tâm linh cần được thiết kế khéo léo để đảm bảo sự trang nghiêm và tiện nghi.
Sơ đồ công năng hiệu quả

Tương tự như mẫu 3 phòng ngủ, tầng trệt thường dành cho phòng khách và bếp ăn. Trên tầng lầu, sẽ bố trí 2 phòng ngủ và 1 phòng thờ. Phòng thờ thường được đặt ở vị trí yên tĩnh, thoáng đãng, tránh các không gian ồn ào hoặc quá gần với khu vực sinh hoạt chung để đảm bảo sự tôn nghiêm. Có thể đặt phòng thờ ở phía trước hoặc phía sau của tầng lầu, có cửa sổ hoặc giếng trời để lấy sáng và thông gió. Các phòng ngủ được bố trí hợp lý, đảm bảo sự riêng tư và thoải mái.
Yếu tố phong thủy trong thiết kế

Trong thiết kế phòng thờ, yếu tố phong thủy đóng vai trò quan trọng. Hướng bàn thờ, vị trí đặt bàn thờ cần tuân thủ các nguyên tắc phong thủy để mang lại may mắn, bình an cho gia chủ. Tránh đặt bàn thờ đối diện cửa nhà vệ sinh, dưới dầm nhà hoặc những nơi ẩm thấp, thiếu ánh sáng. Việc tham khảo ý kiến chuyên gia phong thủy hoặc kiến trúc sư có kinh nghiệm là cần thiết để có được bố cục tối ưu nhất.
Mái Bằng Và Kiến Trúc Hiện Đại Cho Nhà 1 Trệt 1 Lầu 4×10

Mẫu thiết kế nhà 1 trệt 1 lầu 4×10 mái bằng chinh phục nhiều gia chủ bởi vẻ ngoài thanh tao, trang nhã và phù hợp với phong cách kiến trúc hiện đại, tối giản.
Ưu nhược điểm của mái bằng

Mái bằng mang đến vẻ đẹp mạnh mẽ, khỏe khoắn và hiện đại cho ngôi nhà. Nó cho phép tận dụng tối đa không gian trên tầng thượng để làm sân phơi, sân vườn, hoặc khu vực giải trí. Về mặt kết cấu, mái bằng dễ thi công và có chi phí thấp hơn một số loại mái khác. Tuy nhiên, mái bằng cũng có nhược điểm về khả năng thoát nước kém hơn mái dốc, dễ gây thấm dột nếu không được xử lý chống thấm tốt. Ngoài ra, khả năng hấp thụ nhiệt của mái bằng cao hơn, đòi hỏi giải pháp chống nóng hiệu quả.
Ứng dụng mái bằng trong thiết kế nhà 4×10

Trong thiết kế nhà 4×10, mái bằng thường kết hợp với đường nét kiến trúc gọn gàng, mảng khối phẳng. Gam màu dịu nhẹ của màu trắng kết hợp với vật liệu gỗ ốp tự nhiên hoặc bê tông trần tạo nên một nét thanh lịch ấn tượng. Để khắc phục nhược điểm về chống nóng, có thể sử dụng các lớp vật liệu cách nhiệt, trồng cây xanh trên mái hoặc thiết kế hệ thống phun sương. Một số thiết kế còn tích hợp hồ bơi nhỏ trên mái bằng, mang đến không gian thư giãn độc đáo và sang trọng.
Những Thách Thức và Giải Pháp Khi Thiết Kế Nhà 1 Trệt 1 Lầu 4×10

Thiết kế một ngôi nhà trên diện tích hẹp như 4x10m luôn đi kèm với những thách thức nhất định, nhưng cũng mở ra nhiều cơ hội cho các giải pháp sáng tạo.
Thách thức về không gian hẹp

Thách thức lớn nhất là làm thế nào để tạo ra cảm giác rộng rãi, thoáng đãng trên một mặt bằng hạn chế. Chiều ngang 4m giới hạn đáng kể các phương án bố trí nội thất và phân chia phòng. Việc thiếu ánh sáng tự nhiên và thông gió ở các khu vực giữa nhà cũng là một vấn đề phổ biến, dễ gây ẩm thấp và bí bách. Ngoài ra, việc lưu trữ đồ đạc cũng cần được tính toán kỹ lưỡng để tránh tình trạng lộn xộn, bừa bộn.
Giải pháp ánh sáng và thông gió

Để khắc phục hạn chế về ánh sáng và thông gió, kiến trúc sư thường sử dụng giếng trời ở giữa nhà hoặc cuối nhà, kết hợp với các ô cửa sổ lớn và vật liệu xuyên sáng như kính. Thiết kế thông tầng ở khu vực cầu thang cũng giúp luân chuyển không khí và ánh sáng giữa các tầng. Ngoài ra, việc bố trí quạt thông gió, máy điều hòa không khí và sử dụng ánh sáng nhân tạo một cách hợp lý cũng góp phần cải thiện chất lượng không khí và ánh sáng trong nhà.
Tối ưu hóa lưu thông trong nhà

Lối đi trong nhà 4×10 cần được thiết kế thông suốt, tránh các vật cản không cần thiết. Cầu thang thường được đặt sát tường hoặc thiết kế dạng xương cá, zic-zac để giảm diện tích chiếm dụng. Việc sử dụng cửa lùa, cửa trượt hoặc vách ngăn di động thay cho cửa mở truyền thống sẽ giúp tiết kiệm không gian và tăng tính linh hoạt.
Các Nguyên Tắc Vàng Trong Thiết Kế Nội Thất Nhà Diện Tích Nhỏ

Để biến ngôi nhà 1 trệt 1 lầu 4×10 thành một không gian sống tiện nghi và đẹp mắt, việc áp dụng các nguyên tắc thiết kế nội thất thông minh là điều cần thiết.
Ánh sáng tự nhiên và nhân tạo

Ánh sáng là yếu tố quan trọng hàng đầu trong việc tạo cảm giác rộng rãi. Tận dụng tối đa ánh sáng tự nhiên qua cửa sổ lớn, giếng trời, và vật liệu kính. Với ánh sáng nhân tạo, sử dụng đèn âm trần, đèn hắt tường để tạo hiệu ứng chiếu sáng lan tỏa, tránh các loại đèn treo cồng kềnh. Kết hợp ánh sáng vàng ấm cho không gian thư giãn và ánh sáng trắng cho khu vực làm việc, bếp.
Lựa chọn màu sắc và vật liệu

Ưu tiên các gam màu sáng, trung tính như trắng, kem, xám nhạt cho tường, trần và sàn nhà. Những màu này không chỉ giúp không gian trông rộng hơn mà còn dễ dàng kết hợp với các món đồ nội thất. Sử dụng vật liệu có bề mặt nhẵn, bóng như kính, kim loại, gỗ công nghiệp vân sáng để tạo hiệu ứng phản chiếu, tăng cảm giác chiều sâu.
Nội thất đa năng và tích hợp

Đây là chìa khóa để tiết kiệm diện tích. Chọn ghế sofa có ngăn kéo, bàn ăn gấp gọn, giường ngủ tích hợp tủ quần áo hoặc bàn làm việc. Tủ kệ âm tường, kệ treo tường cũng là giải pháp tuyệt vời để tối ưu không gian lưu trữ mà không làm chiếm dụng diện tích sàn.
Sắp xếp khoa học và gọn gàng

Giữ cho ngôi nhà luôn gọn gàng là yếu tố tiên quyết. Phân loại và cất trữ đồ đạc một cách khoa học. Hạn chế các vật dụng không cần thiết, tập trung vào những món đồ có giá trị sử dụng cao. Một không gian sạch sẽ, ngăn nắp sẽ luôn tạo cảm giác rộng rãi và dễ chịu hơn.
Quy Trình Thi Công Và Những Lưu Ý Quan Trọng

Việc thi công một căn nhà 1 trệt 1 lầu 4×10 cần tuân thủ một quy trình chặt chẽ để đảm bảo chất lượng và tiến độ.
Giai đoạn thiết kế

Đây là giai đoạn khởi đầu quan trọng, bao gồm khảo sát địa hình, lên ý tưởng, thiết kế sơ bộ và thiết kế chi tiết (kiến trúc, kết cấu, điện nước, nội thất). Gia chủ cần làm việc sát sao với kiến trúc sư để đảm bảo bản vẽ phản ánh đúng mong muốn và tối ưu nhất về công năng, chi phí.
Giai đoạn thi công phần thô

Bao gồm làm móng, xây dựng hệ khung chịu lực (cột, dầm, sàn), tường bao và vách ngăn. Giai đoạn này đòi hỏi sự chính xác cao về kỹ thuật và tuân thủ các tiêu chuẩn xây dựng. Việc lựa chọn nhà thầu uy tín, có kinh nghiệm là cực kỳ quan trọng. Theo Hiệp hội Xây dựng Việt Nam, chất lượng phần thô quyết định đến 70% tuổi thọ của công trình.
Giai đoạn hoàn thiện

Là bước cuối cùng, bao gồm trát tường, ốp lát gạch, sơn bả, lắp đặt cửa, thiết bị vệ sinh, hệ thống điện nước và các hạng mục nội thất. Giai đoạn này đòi hỏi sự tỉ mỉ, cẩn thận để đảm bảo tính thẩm mỹ và công năng sử dụng.
Giám sát và nghiệm thu

Trong suốt quá trình thi công, gia chủ hoặc đại diện cần thường xuyên giám sát, kiểm tra chất lượng vật liệu và tiến độ công trình. Sau khi hoàn thành, cần tiến hành nghiệm thu kỹ lưỡng từng hạng mục trước khi bàn giao và đưa vào sử dụng.
Dự Toán Chi Phí Xây Dựng Nhà 1 Trệt 1 Lầu 4×10

Chi phí xây dựng nhà 1 trệt 1 lầu 4×10 là một trong những mối quan tâm hàng đầu của gia chủ. Chi phí này phụ thuộc vào nhiều yếu tố và có thể dao động đáng kể.
Các yếu tố ảnh hưởng đến chi phí

- Vị trí địa lý và điều kiện thi công: Đất nền yếu, đường hẻm nhỏ hoặc khu vực đông dân cư có thể làm tăng chi phí vận chuyển vật liệu và nhân công.
- Phong cách thiết kế: Kiến trúc hiện đại thường có chi phí thấp hơn Tân Cổ Điển do ít chi tiết phức tạp.
- Chất lượng vật liệu: Vật liệu cao cấp (gỗ tự nhiên, đá nhập khẩu) sẽ đắt hơn vật liệu phổ thông (gỗ công nghiệp, gạch men).
- Thời điểm xây dựng: Giá vật liệu và nhân công có thể biến động theo mùa hoặc tình hình kinh tế.
- Đơn vị thi công: Các nhà thầu uy tín, chuyên nghiệp thường có giá cao hơn nhưng đảm bảo chất lượng và tiến độ.
Bảng ước tính chi phí và cách tối ưu
Trên thị trường hiện nay, chi phí xây dựng nhà 1 trệt 1 lầu 4×10 thường dao động từ 550 triệu đến 900 triệu VNĐ, tùy thuộc vào các yếu tố trên. Một bảng ước tính cơ bản có thể bao gồm:
| Hạng mục | Tỷ lệ ước tính (%) |
|---|---|
| Chi phí thiết kế | 3 – 5% |
| Chi phí vật liệu phần thô | 30 – 35% |
| Chi phí nhân công phần thô | 15 – 20% |
| Chi phí vật liệu hoàn thiện | 25 – 30% |
| Chi phí nhân công hoàn thiện | 10 – 15% |
| Chi phí phát sinh và dự phòng | 5 – 10% |
Để tối ưu chi phí, gia chủ có thể:
- Chọn phong cách thiết kế đơn giản, hiện đại.
- Lựa chọn vật liệu phù hợp với ngân sách nhưng vẫn đảm bảo chất lượng.
- Tận dụng vật liệu địa phương để giảm chi phí vận chuyển.
- Làm việc với nhà thầu uy tín để có báo giá minh bạch và tránh phát sinh không đáng có.
- Giám sát chặt chẽ quá trình thi công để tránh lãng phí.
Tại Sao Nên Chọn Interstellas Cho Ngôi Nhà Của Bạn?
Khi quyết định xây dựng một ngôi nhà 1 trệt 1 lầu 4×10, việc lựa chọn một đối tác thiết kế và thi công chuyên nghiệp là yếu tố then chốt để biến ý tưởng thành hiện thực một cách hoàn hảo. Interstellas tự hào là đơn vị hàng đầu trong lĩnh vực thiết kế và thi công nội thất, mang đến những giải pháp không gian sống sáng tạo và chất lượng vượt trội.
Đội ngũ kiến trúc sư và chuyên gia giàu kinh nghiệm
Interstellas sở hữu đội ngũ kiến trúc sư, kỹ sư và chuyên gia thiết kế nội thất tài năng, giàu kinh nghiệm, luôn cập nhật các xu hướng mới nhất và áp dụng công nghệ tiên tiến vào từng dự án. Chúng tôi không chỉ có chuyên môn sâu về kiến trúc mà còn am hiểu tâm lý, nhu cầu của gia chủ, từ đó tạo ra những không gian không chỉ đẹp mà còn tối ưu về công năng và phù hợp với phong cách sống.
Quy trình làm việc chuyên nghiệp, minh bạch
Tại Interstellas, chúng tôi thực hiện một quy trình làm việc khoa học và minh bạch, từ giai đoạn tư vấn ban đầu, khảo sát hiện trạng, lên ý tưởng thiết kế, lập dự toán chi tiết, đến thi công và bàn giao công trình. Mọi thông tin về vật liệu, chi phí, tiến độ đều được trao đổi rõ ràng, giúp gia chủ nắm bắt toàn bộ quá trình và hoàn toàn yên tâm.
Cam kết chất lượng và tiến độ
Chất lượng công trình và sự hài lòng của khách hàng là ưu tiên hàng đầu của Interstellas. Chúng tôi cam kết sử dụng vật liệu chất lượng cao, thi công đúng kỹ thuật, đảm bảo độ bền vững và thẩm mỹ cho từng ngôi nhà. Đồng thời, Interstellas luôn nỗ lực để hoàn thành dự án đúng tiến độ đã cam kết, giúp gia chủ sớm ổn định cuộc sống trong tổ ấm mới.
Tối ưu chi phí và thẩm mỹ
Với kinh nghiệm dày dặn, Interstellas không chỉ mang đến những thiết kế độc đáo mà còn tư vấn các giải pháp tối ưu về chi phí, giúp gia chủ có được ngôi nhà mơ ước mà vẫn trong giới hạn ngân sách. Chúng tôi tin rằng một không gian sống đẹp và tiện nghi không nhất thiết phải quá đắt đỏ, mà quan trọng là sự sáng tạo và cách bố trí thông minh.
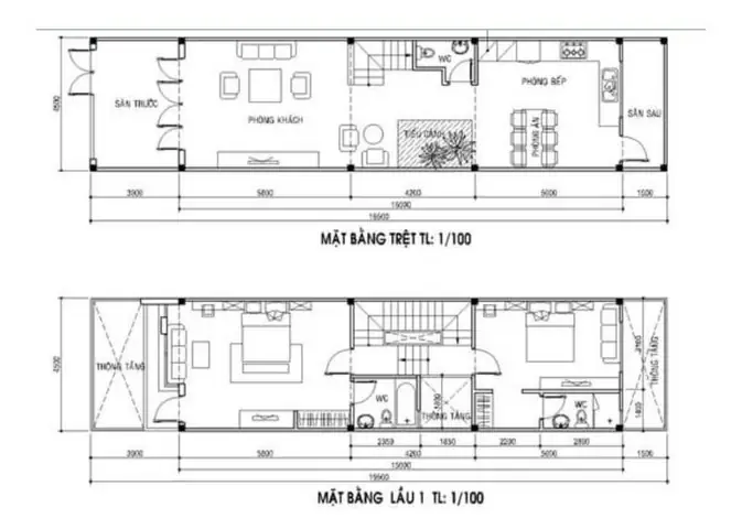
Tham Khảo Một Số Bản Vẽ Bố Trí Công Năng Nhà 1 Trệt 1 Lầu 4×10 Ấn Tượng Nhất
Để giúp quý gia chủ có cái nhìn trực quan hơn về cách bố trí không gian, Interstellas xin giới thiệu một số ý tưởng bản vẽ công năng cho nhà 1 trệt 1 lầu 4×10, nhằm tối ưu hóa từng mét vuông và tạo nên một tổ ấm vừa vặn, tiện nghi.
Bản vẽ nhà 1 trệt 1 lầu 4×10 có 2 phòng ngủ + 1 phòng làm việc
- Tầng trệt: Phòng khách nối liền bếp ăn tạo không gian mở. Nhà vệ sinh nhỏ gọn dưới gầm cầu thang. Cầu thang được thiết kế sát tường để tiết kiệm diện tích. Phía sau có thể là một sân nhỏ hoặc khu vực giặt phơi.
- Tầng lầu: Bố trí một phòng ngủ master có vệ sinh riêng, một phòng ngủ phụ nhỏ hơn. Một không gian nhỏ còn lại được tận dụng làm phòng làm việc hoặc phòng đọc sách yên tĩnh, có thể nhìn ra giếng trời hoặc ban công phía trước.
Bản vẽ nhà 1 trệt 1 lầu 4×10 với gác lửng và 3 phòng ngủ
- Tầng trệt: Bao gồm khu vực tiếp khách, bếp ăn.
- Gác lửng: Có thể bố trí một phòng ngủ phụ hoặc phòng đa năng, tạo sự riêng tư vừa đủ.
- Tầng lầu: Hai phòng ngủ còn lại, một phòng master và một phòng ngủ cho trẻ em, sử dụng chung một nhà vệ sinh. Có thể có ban công nhỏ ở mặt tiền.
Bản vẽ nhà 1 trệt 1 lầu 4×10 kết hợp tum thang và sân thượng
- Tầng trệt: Phòng khách, bếp ăn, nhà vệ sinh.
- Tầng lầu: Hai hoặc ba phòng ngủ tùy theo nhu cầu, có vệ sinh chung hoặc riêng.
- Tầng tum: Phòng thờ trang nghiêm, kết hợp với kho chứa đồ.
- Sân thượng: Không gian mở rộng rãi để trồng cây, giặt phơi, hoặc tổ chức tiệc BBQ, mang lại sự đa dạng trong trải nghiệm sống.
Các bản vẽ này chỉ là ý tưởng tham khảo. Interstellas sẽ dựa trên nhu cầu, sở thích và điều kiện thực tế của từng gia đình để đưa ra giải pháp thiết kế tối ưu và độc đáo nhất.
Ý Tưởng Thiết Kế Nội Thất Nhà 1 Trệt 1 Lầu 4x10m Tối Ưu và Tiện Nghi
Để biến nhà 1 trệt 1 lầu 4×10 thành một không gian sống tiện nghi và thẩm mỹ, việc lựa chọn và bố trí nội thất đóng vai trò cực kỳ quan trọng.
Phòng khách
Phòng khách là bộ mặt của ngôi nhà. Với diện tích 4x10m, phòng khách thường được bố trí ngay sau cửa chính, liên thông với khu vực bếp ăn để tạo không gian mở.
- Sofa: Chọn sofa văng hoặc sofa góc nhỏ gọn, màu sắc sáng để không chiếm quá nhiều diện tích. Có thể kết hợp thêm đôn hoặc ghế phụ di động.
- Bàn trà: Ưu tiên bàn trà hình tròn hoặc hình bầu dục để dễ di chuyển và ít va chạm. Bàn có ngăn kéo hoặc kệ để đồ bên dưới sẽ tăng công năng lưu trữ.
- Kệ tivi: Kệ tivi treo tường hoặc kệ thấp đơn giản, tích hợp nhiều ngăn tủ để giữ cho phòng khách luôn gọn gàng.
Phòng bếp
Phòng bếp thường được bố trí ở cuối tầng trệt hoặc đối diện phòng khách.
- Tủ bếp: Thiết kế tủ bếp chữ I hoặc chữ L sát tường để tối ưu không gian. Ưu tiên tủ bếp trên và dưới để tăng không gian lưu trữ.
- Bàn ăn: Bàn ăn gấp gọn hoặc bàn ăn tròn nhỏ là lựa chọn thông minh. Có thể tích hợp bàn ăn vào quầy bar bếp hoặc đảo bếp mini.
- Thiết bị: Chọn các thiết bị nhà bếp thông minh, đa năng như bếp từ tích hợp hút mùi, tủ lạnh âm tường để tiết kiệm diện tích.
Phòng ngủ
Phòng ngủ là không gian riêng tư, cần đảm bảo sự thoải mái và yên tĩnh.
- Giường ngủ: Giường ngủ có ngăn kéo hoặc giường bục tích hợp tủ đồ là giải pháp hiệu quả. Kích thước giường phù hợp với diện tích phòng.
- Tủ quần áo: Tủ âm tường hoặc tủ cánh lùa là lựa chọn tối ưu, giúp tiết kiệm không gian mở cửa.
- Bàn làm việc/Trang điểm: Tận dụng các góc nhỏ hoặc thiết kế bàn làm việc gắn liền với tủ quần áo, hoặc bàn gấp gọn.
- Màu sắc: Sử dụng gam màu nhẹ nhàng, trung tính để tạo cảm giác thư thái và rộng rãi.
Phần Kết Bài
Thiết kế và xây dựng một căn nhà 1 trệt 1 lầu 4×10 là một hành trình thú vị, đòi hỏi sự cân nhắc kỹ lưỡng về ý tưởng, công năng và chi phí. Dù diện tích có phần khiêm tốn, nhưng với những giải pháp kiến trúc và nội thất thông minh, sáng tạo, ngôi nhà 4×10 hoàn toàn có thể trở thành một tổ ấm tiện nghi, hiện đại và tràn đầy cảm hứng. Từ việc tối ưu không gian với gác lửng, tum thang, đến việc lựa chọn phong cách thiết kế phù hợp và dự toán chi phí hợp lý, mọi yếu tố đều góp phần kiến tạo nên không gian sống lý tưởng. Hy vọng rằng những thông tin và gợi ý từ bài viết này đã cung cấp cho quý vị cái nhìn tổng quan và những ý tưởng hữu ích để bắt đầu hành trình xây dựng ngôi nhà mơ ước của mình.
















