Tổng quan về mẫu nhà 1 tầng 3 phòng ngủ
Các mẫu nhà 1 tầng 3 phòng ngủ hiện nay đang trở thành lựa chọn hàng đầu của nhiều gia đình, đặc biệt là các cặp vợ chồng trẻ hoặc gia đình có trẻ nhỏ. Sự kết hợp giữa tính tiện lợi, chi phí hợp lý và thẩm mỹ hiện đại đã tạo nên sức hút khó cưỡng cho loại hình nhà ở này. Bài viết này sẽ cung cấp một cái nhìn chi tiết và chuyên sâu về cách lựa chọn, thiết kế và những mẫu nhà 1 tầng 3 phòng ngủ ấn tượng nhất, giúp bạn kiến tạo không gian sống mơ ước.
Tóm tắt các bước chính để có được mẫu nhà 1 tầng 3 phòng ngủ ưng ý
- Xác định nhu cầu và diện tích: Lên danh sách các phòng chức năng cần thiết (ngoài 3 phòng ngủ), ước tính diện tích sử dụng mong muốn.
- Khảo sát mặt bằng: Đo đạc chính xác diện tích, hình dáng lô đất, xem xét hướng nhà, địa hình và các yếu tố phong thủy.
- Lựa chọn phong cách thiết kế: Quyết định phong cách kiến trúc chủ đạo (hiện đại, tối giản, Địa Trung Hải,…) phù hợp với sở thích và ngân sách.
- Lập bản vẽ chi tiết: Hợp tác với kiến trúc sư để có bản vẽ mặt bằng, mặt đứng, mặt cắt và phối cảnh 3D.
- Dự trù kinh phí: Lập kế hoạch tài chính chi tiết cho từng hạng mục thi công, vật liệu.
- Chọn vật liệu xây dựng và nội thất: Ưu tiên vật liệu bền đẹp, thân thiện môi trường và phù hợp với phong cách thiết kế.
- Giám sát thi công: Đảm bảo quá trình xây dựng diễn ra đúng tiến độ, kỹ thuật và chất lượng.
Khám phá các mẫu thiết kế nhà 1 tầng 3 phòng ngủ ấn tượng
Bản vẽ thiết kế nhà ống 1 tầng 3 phòng ngủ với kích thước 5x22m
Mẫu nhà ống 1 tầng 3 phòng ngủ này đặc biệt phù hợp với những khu vực có diện tích đất hẹp về chiều ngang và có thể có những điểm gấp khúc. Kiến trúc sư đã khéo léo tận dụng phần đất bị gấp khúc để bố trí một phòng ngủ và khu vực đọc sách, vừa giải quyết hạn chế về mặt bằng, vừa tạo điểm nhấn độc đáo cho không gian. Thiết kế này thể hiện sự tối ưu hóa diện tích sử dụng một cách thông minh, mang đến một không gian sống chức năng và thẩm mỹ ngay cả trên những mảnh đất không vuông vắn.
Bản vẽ nhà ống 1 tầng 3 phòng ngủ có thiết kế vuông vắn và hiện đại

Có thể bạn quan tâm: Mái Che Bằng Tôn Đẹp: Giải Pháp Tối Ưu Cho Ngôi Nhà Của Bạn
Với những lô đất vuông vắn, có chiều dài và chiều rộng cân đối (khoảng 5x20m), thiết kế nhà ống 1 tầng 3 phòng ngủ này mang đến sự tối ưu về công năng. Từ ngoài vào là không gian phòng khách, tiếp nối là khu vực bếp ăn và cuối cùng là ba phòng ngủ được bố trí liền kề. Nếu diện tích cho phép, một khoảng sân phía trước có thể được thiết kế để làm gara và trồng cây xanh, tạo không gian xanh mát và tiện nghi.
Bản vẽ mẫu nhà ống 1 tầng 3 phòng ngủ với diện tích 100m2
Một không gian 100m2 cho phép bạn thiết kế một ngôi nhà 1 tầng 3 phòng ngủ rộng rãi và đầy đủ tiện nghi, thậm chí còn có thể tích hợp tiểu cảnh ngay trong nhà. Khoảng 30m2 có thể dành cho sân vườn nhỏ, khu vực để xe và lối đi xanh mát, trong khi 70m2 còn lại sẽ là không gian sinh hoạt chính. Điểm đặc biệt của mẫu này là các phòng ngủ có cửa hướng ra hồ nước và khu tiểu cảnh, mang đến không gian nghỉ ngơi thư thái, gần gũi với thiên nhiên.
<>Xem Thêm Bài Viết:<>- Mẫu Nhà 2 Tầng Mái Thái Đẹp: Kiến Trúc Sang Trọng và Tối Ưu Diện Tích 2018
- John D. Rockefeller Là Ai? Cuộc Đời, Sự Nghiệp Và Di Sản Của Ông Trùm Dầu Mỏ Lịch Sử
- Nẹp Nhôm Trang Trí Nội Thất: Hướng Dẫn Chọn Loại Phù Hợp & Ứng Dụng Thực Tế
- Hướng Dẫn Chi Tiết: Mua SIM Du Lịch Việt Nam Ở Đâu Hiệu Quả Nhất
- Tuyển Chọn Mẫu Tủ Bếp Đẹp Hình Chữ I Cho Không Gian Hiện Đại
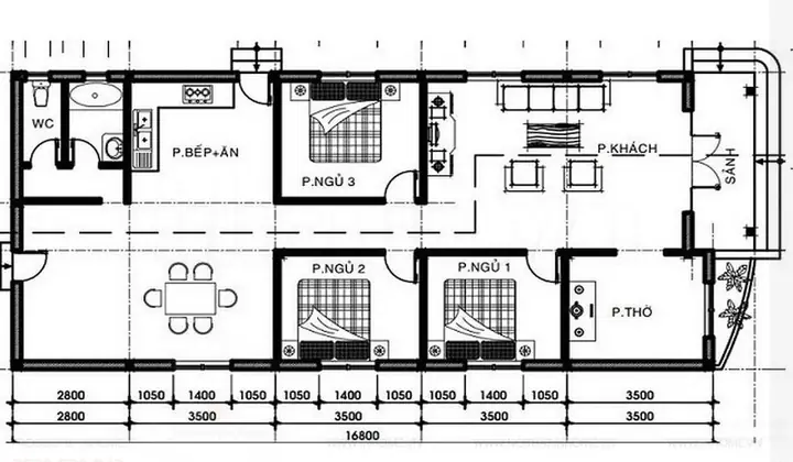
Mẫu bản vẽ nhà ống với 3 phòng ngủ đẹp và rộng rãi
Thiết kế này lý tưởng cho các gia đình ở ngoại thành hoặc nông thôn với lợi thế về diện tích mặt bằng rộng rãi. Ba phòng ngủ được bố trí tập trung ở khu vực giữa nhà, hai bên là phòng khách và bếp, tạo nên một bố cục hài hòa và thuận tiện cho sinh hoạt. Việc bổ sung cây xanh ở các khoảng trống sẽ làm tăng thêm sự tươi mát và dễ chịu cho không gian sống.
Bản vẽ thiết kế nhà ống 1 tầng – 3 phòng ngủ cho nhà bị gấp khúc
Đối với những mặt bằng có hình dáng gấp khúc phức tạp, việc thiết kế đòi hỏi sự sáng tạo và đột phá. Mẫu nhà này là một ví dụ điển hình, nơi kiến trúc sư đã khéo léo sử dụng các góc không vuông vắn để bố trí cây xanh, bàn trà hoặc các phòng ngủ một cách hợp lý. Phần không gian rộng nhất được ưu tiên cho phòng khách và bếp, tạo nên một bố cục tổng thể thông thoáng và hài hòa.
Bản vẽ mẫu nhà ống 1 tầng hình chữ L
Mẫu nhà ống chữ L là giải pháp tối ưu cho những lô đất có hình dáng tương tự. Ngôi nhà có một khoảng sân lớn lý tưởng cho việc đặt bàn ăn ngoài trời, trong khi các không gian chức năng khác được bố trí khoa học. Gia chủ hoàn toàn có thể tùy chỉnh vị trí các phòng để phù hợp với nhu cầu sử dụng. Thiết kế này mang đến sự sang trọng và tiện nghi, tận dụng tối đa diện tích của mảnh đất.
Bản vẽ mẫu thiết kế nhà ống 1 tầng 3 phòng ngủ có gara ô tô
Nếu gia đình bạn sở hữu một diện tích rộng rãi và cần không gian gara để xe, mẫu thiết kế này là một lựa chọn hoàn hảo. Với diện tích khoảng 120m2, căn nhà không chỉ có 3 phòng ngủ mà còn có thêm phòng học cho trẻ và một gara ô tô rộng rãi. Bốn cửa phòng đều hướng ra khu vườn xanh mát, tạo cảm giác thoáng đãng và trong lành cho không gian sống.
Bản vẽ mẫu thiết kế nhà ống với diện tích 120m2
Mẫu thiết kế nhà ống 120m2 này cung cấp đầy đủ không gian cho một gia đình hiện đại. Ngoài 3 phòng ngủ, còn có một phòng đọc sách hoặc học tập cho trẻ và một gara ô tô 20m2. Thiết kế này đặc biệt phù hợp với các gia đình có người già và trẻ nhỏ, đảm bảo sự thuận tiện và an toàn trong sinh hoạt hàng ngày.
Bản vẽ nhà 1 tầng 3 phòng ngủ 100m2 theo phong cách hiện đại

Có thể bạn quan tâm: Cách Làm Sạch Vách Kính Nhà Tắm Hiệu Quả, Giữ Sáng Lâu
Với mặt bằng vuông vắn 100m2, việc bố trí các phòng chức năng trở nên dễ dàng hơn. Căn hộ rộng rãi, thoải mái với 3 phòng ngủ, phòng học, phòng khách và bếp. Việc lựa chọn các kiểu mái như mái thái hoặc mái vuông cho nhà ống sẽ tăng thêm vẻ đẹp thẩm mỹ và sự hiện đại cho tổng thể ngôi nhà, tạo nên một không gian sống đầy đủ tiện nghi và phong cách.
Lời kết
Việc lựa chọn một mẫu nhà 1 tầng 3 phòng ngủ phù hợp đòi hỏi sự cân nhắc kỹ lưỡng về nhu cầu, diện tích, phong cách và ngân sách. Hy vọng với những thông tin và gợi ý chi tiết trên, bạn đã có cái nhìn toàn diện hơn để kiến tạo nên không gian sống lý tưởng cho gia đình mình.
Để đảm bảo sức khỏe và sự thoải mái tối đa cho các thành viên, việc lựa chọn các vật dụng nội thất, đặc biệt là chăn ga gối đệm, đóng vai trò quan trọng. Bạn có thể tham khảo các sản phẩm chất lượng cao, đa dạng về mẫu mã và kiểu dáng từ Interstellas, mang đến những giấc ngủ ngon và sâu cho cả gia đình.

Có thể bạn quan tâm: Mẫu Thiết Kế Nhà Nhỏ Mà Đẹp: Tối Ưu Không Gian Sống Hiện Đại






















