Thiết kế nhà cấp 4 đơn giản đang trở thành lựa chọn ưu tiên của nhiều gia đình Việt, đặc biệt là tại các khu vực nông thôn và ven đô. Với vẻ đẹp tinh tế, công năng tối ưu và chi phí hợp lý, mẫu nhà này mang đến không gian sống hài hòa, tiện nghi mà không kém phần hiện đại. Bài viết này của Interstellas sẽ cung cấp một cái nhìn toàn diện về cách kiến tạo một căn nhà cấp 4 đơn giản, từ những nguyên tắc cơ bản đến các giải pháp thiết kế thực tiễn, giúp bạn hiện thực hóa ngôi nhà mơ ước của mình một cách thông minh và hiệu quả.
Tóm tắt các bước thiết kế nhà cấp 4 đơn giản hiệu quả
Để hiện thực hóa một căn nhà cấp 4 đơn giản nhưng vẫn đảm bảo tiện nghi và thẩm mỹ, quá trình thiết kế cần được tiếp cận một cách khoa học. Dưới đây là các bước cốt lõi bạn cần nắm vững:
- Xác định Nhu cầu và Ngân sách: Phân tích kỹ lưỡng số lượng thành viên, phong cách sống và giới hạn tài chính để định hình quy mô và tiện ích cần thiết.
- Lựa chọn Phong cách Kiến trúc: Nghiên cứu các phong cách nhà cấp 4 phổ biến như mái Nhật, mái Thái, mái bằng hoặc mái lệch để tìm ra mẫu phù hợp nhất với sở thích và điều kiện khu đất.
- Bố trí Mặt bằng Tối ưu: Ưu tiên thiết kế mở, hạn chế vách ngăn không cần thiết và sắp xếp các khu vực chức năng khoa học để tạo cảm giác rộng rãi, thông thoáng.
- Lựa chọn Vật liệu và Nội thất: Ưu tiên vật liệu bền, dễ bảo trì và có giá thành hợp lý. Nội thất nên chọn những món đồ đa năng, thiết kế tối giản để tiết kiệm không gian và chi phí.
- Thiết kế Ánh sáng và Thông gió: Tận dụng tối đa ánh sáng tự nhiên và luồng gió mát, kết hợp đèn chiếu sáng hợp lý để không gian luôn sáng sủa và dễ chịu.
- Lập Dự toán và Hợp đồng Rõ ràng: Tính toán chi phí cụ thể từng hạng mục, tham khảo nhiều đơn vị thi công và đảm bảo hợp đồng chi tiết, minh bạch để tránh phát sinh ngoài ý muốn.
Nhà Cấp 4 Đơn Giản Là Gì? Định Nghĩa và Xu Hướng Hiện Đại
Nhà cấp 4 đơn giản là loại hình nhà ở phổ biến tại Việt Nam, đặc trưng bởi kết cấu chỉ có một tầng trệt, không gian được thiết kế liền mạch và tối ưu. Theo định nghĩa chuyên môn trong ngành xây dựng, nhà cấp 4 thường có chiều cao xây dựng từ 1 tầng trở xuống và được xây dựng trên diện tích không quá lớn, có kết cấu chịu lực bằng vật liệu cơ bản như gạch, gỗ, xi măng. Tuy nhiên, khái niệm “đơn giản” ở đây không chỉ dừng lại ở cấu trúc vật lý mà còn mở rộng sang triết lý thiết kế – hướng đến sự tinh gọn, ít chi tiết rườm rà nhưng vẫn đảm bảo đầy đủ công năng và tính thẩm mỹ cao.
Trong bối cảnh đô thị hóa và xu hướng sống tối giản lên ngôi, nhà cấp 4 đơn giản ngày càng được ưa chuộng. Nó không chỉ đáp ứng nhu cầu về một tổ ấm vững chãi mà còn thể hiện phong cách sống hiện đại, đề cao sự tiện nghi, thoải mái và gần gũi với thiên nhiên. Các kiến trúc sư hiện nay không ngừng sáng tạo để biến những ngôi nhà cấp 4 tưởng chừng mộc mạc trở thành những tác phẩm kiến trúc độc đáo, phản ánh cá tính của gia chủ, đồng thời tích hợp các giải pháp thông minh để tối ưu hóa không gian sống.

Có thể bạn quan tâm: Thiết Kế Nhà Nhỏ 5×6: Tối Ưu Từng Mét Vuông Cho Cuộc Sống Tiện Nghi
<>Xem Thêm Bài Viết:<>
- Simethicone có tác dụng gì? Hướng dẫn chi tiết và lưu ý quan trọng
- Thiết Kế Nhà Chiều Ngang 6m: Bí Quyết Sở Hữu Không Gian Đẹp, Tiện Nghi
- Ngày tốt đặt bàn thờ ông Táo: Cách chọn ngày đẹp hợp phong thủy
- Hoàng Hường là ai? Sự thật về “thánh scandal” của giới kinh doanh online
- Sisyphus Là Ai? Nguồn Gốc, Tội Lỗi Và Ý Nghĩa Huyền Thoại Vượt Thời Gian
Đặc trưng nổi bật của phong cách thiết kế nhà cấp 4 đơn giản
Phong cách thiết kế nhà cấp 4 đơn giản mang trong mình nhiều ưu điểm vượt trội, lý giải vì sao nó lại trở thành lựa chọn hàng đầu của nhiều gia đình hiện đại. Những đặc trưng này không chỉ giúp tối ưu hóa không gian và chi phí mà còn tạo nên một vẻ đẹp riêng biệt, hài hòa.
Thời gian xây dựng nhanh chóng
Một trong những lợi thế lớn nhất khi lựa chọn thiết kế nhà cấp 4 đơn giản là thời gian thi công được rút ngắn đáng kể. Do kết cấu một tầng không yêu cầu đổ mái và chờ khô như nhà cao tầng, quá trình xây dựng diễn ra nhanh gọn hơn. Điều này giúp gia chủ sớm ổn định cuộc sống trong ngôi nhà mới, giảm thiểu các chi phí phát sinh trong quá trình chờ đợi. Các dự án thực tế tại Interstellas cho thấy, nhiều căn nhà cấp 4 có thể hoàn thiện chỉ trong vài tháng, tùy thuộc vào quy mô và độ phức tạp của thiết kế.
Tiết kiệm chi phí xây dựng hiệu quả
Vấn đề chi phí luôn là mối quan tâm hàng đầu của mọi gia chủ. Nhà cấp 4 đơn giản nổi bật với khả năng tối ưu ngân sách vượt trội so với các loại hình nhà ở khác. Chi phí vật liệu, nhân công và thời gian thi công đều thấp hơn đáng kể do không phải chịu tải trọng lớn hay các yêu cầu kỹ thuật phức tạp của nhà nhiều tầng. Đây là giải pháp lý tưởng cho các cặp vợ chồng trẻ, những gia đình có nguồn kinh phí hạn hẹp nhưng vẫn mong muốn sở hữu một không gian sống riêng tư và chất lượng.
Kiến trúc tinh gọn, không rườm rà
Đúng như tên gọi, kiến trúc của nhà cấp 4 đơn giản tập trung vào sự tinh gọn, loại bỏ các chi tiết thừa thãi, cầu kỳ. Điều này không chỉ tạo nên vẻ đẹp thanh lịch, hiện đại mà còn giúp không gian trở nên thông thoáng, dễ chịu hơn. Sự đơn giản trong đường nét, hình khối và bố cục chính là chìa khóa để tạo nên một ngôi nhà hài hòa, không bị lỗi thời theo thời gian, đồng thời cũng dễ dàng hơn trong việc bảo trì và vệ sinh.

Có thể bạn quan tâm: Làm Sao Để Tối Ưu Thiết Kế Nhà 2 Tầng 3x10m Tiện Nghi?
Đa dạng mẫu mã, phong cách biến hóa
Mặc dù mang phong cách đơn giản, nhà cấp 4 không hề đơn điệu về mẫu mã. Nhờ sự sáng tạo của các kiến trúc sư và sự cập nhật xu hướng thiết kế toàn cầu, nhà cấp 4 hiện nay có thể biến hóa linh hoạt với nhiều phong cách khác nhau, từ hiện đại, tối giản đến phong cách Nhật Bản, Bắc Âu hay thậm chí là pha trộn giữa truyền thống và đương đại. Sự đa dạng này cho phép gia chủ thoải mái lựa chọn thiết kế phù hợp với sở thích cá nhân và bối cảnh xung quanh.
Vật liệu tối ưu, dễ tìm kiếm
Một đặc điểm nữa góp phần làm nên sự phổ biến của nhà cấp 4 là việc sử dụng các vật liệu xây dựng sẵn có và dễ tìm kiếm trên thị trường. Từ gạch, cát, đá, xi măng cho đến gỗ, ngói hay tôn, các vật liệu này không chỉ đảm bảo độ bền vững cho công trình mà còn có giá thành phải chăng. Việc lựa chọn vật liệu thông minh cũng giúp tối ưu chi phí và quá trình thi công diễn ra thuận lợi hơn, đồng thời mang lại hiệu quả thẩm mỹ cao nếu biết cách kết hợp hài hòa.
Các Phong Cách Thiết Kế Nhà Cấp 4 Đơn Giản Phổ Biến Nhất
Thế giới của thiết kế nhà cấp 4 đơn giản vô cùng phong phú, với nhiều phong cách kiến trúc độc đáo, mang đến những lựa chọn đa dạng cho gia chủ. Mỗi phong cách đều có những nét đặc trưng riêng, phù hợp với từng sở thích và điều kiện khác nhau.

Có thể bạn quan tâm: 25+ Mẫu Tiểu Cảnh Sau Nhà Ống Đẹp, Hợp Phong Thủy Và Tiện Nghi
Nhà cấp 4 mái lệch: Nét phá cách trong sự đơn giản
Nhà cấp 4 mái lệch là một lựa chọn táo bạo và đầy tính nghệ thuật cho những ai yêu thích sự phá cách. Thay vì hệ mái cân đối truyền thống, thiết kế mái lệch tạo ra những đường nét bất đối xứng, mang đến vẻ ngoài độc đáo và hiện đại. Sự chênh lệch về độ cao của mái không chỉ là điểm nhấn kiến trúc mà còn có tác dụng thoát nước tốt, chống nóng hiệu quả hơn. Đặc biệt, nhà mái lệch thường tạo ra không gian trần cao ở một số khu vực, mang lại cảm giác thoáng đãng và có thể tận dụng làm gác lửng sáng tạo.
Nhà cấp 4 mái Nhật: Thanh lịch và hài hòa

Phong cách nhà cấp 4 mái Nhật đang trở thành xu hướng được ưa chuộng nhờ vẻ đẹp thanh lịch, tinh tế và sự hài hòa với thiên nhiên. Đặc trưng bởi độ dốc vừa phải, thường xếp chồng lên nhau và có phần hiên đua rộng, mái Nhật không chỉ giúp thoát nước mưa tốt mà còn tạo ra sự cân bằng, mềm mại cho tổng thể ngôi nhà. Gam màu trung tính, vật liệu tự nhiên và sự tối giản trong trang trí là những yếu tố cốt lõi của phong cách này, mang đến một không gian sống yên bình, gần gũi với phong cách sống thiền định của người Nhật.
Nhà cấp 4 mái Thái: Vẻ đẹp truyền thống hiện đại
Nhà cấp 4 mái Thái đã khẳng định vị thế là một trong những kiểu dáng phổ biến nhất tại Việt Nam. Với độ dốc cao, tạo hình chữ A hoặc giật cấp, mái Thái không chỉ mang tính thẩm mỹ cao mà còn sở hữu nhiều ưu điểm vượt trội về công năng. Khả năng thoát nước nhanh, chống nóng hiệu quả và không gian áp mái thông thoáng giúp ngôi nhà luôn mát mẻ vào mùa hè và ấm áp vào mùa đông. Mái Thái dễ dàng kết hợp với nhiều phong cách kiến trúc khác nhau, từ hiện đại đến tân cổ điển, tạo nên vẻ đẹp sang trọng và bề thế cho căn nhà cấp 4 đơn giản.
Nhà cấp 4 mái bằng: Tối giản và bền vững
Đối với những ai yêu thích sự tối giản tuyệt đối và vẻ đẹp vững chãi, nhà cấp 4 mái bằng là lựa chọn lý tưởng. Thiết kế mái bằng mang đến một tổng thể kiến trúc vuông vắn, mạnh mẽ và hiện đại. Với kết cấu đổ bê tông kiên cố, mái bằng có độ bền cao, khả năng chống chịu tốt với thời tiết khắc nghiệt. Bên cạnh đó, phần mái bằng cũng có thể tận dụng để làm sân thượng nhỏ, vườn cây mini hoặc lắp đặt hệ thống năng lượng mặt trời, tối ưu hóa công năng sử dụng.
Nhà cấp 4 có gác lửng: Giải pháp tối ưu không gian nhỏ
Trong bối cảnh đất đai ngày càng khan hiếm, nhà cấp 4 có gác lửng là một giải pháp thông minh để tăng diện tích sử dụng mà không cần xây thêm tầng. Phần gác lửng thường được bố trí làm phòng ngủ phụ, khu vực làm việc hoặc không gian sinh hoạt chung, giúp tối ưu hóa từng mét vuông đất. Mẫu nhà này đặc biệt phù hợp với các gia đình trẻ hoặc những ai muốn sở hữu một căn nhà nhỏ gọn nhưng vẫn đầy đủ tiện nghi, mang đến sự linh hoạt và cá tính trong thiết kế.

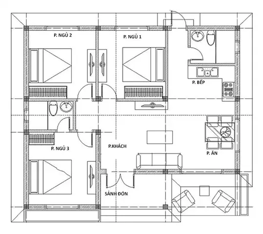
Nhà cấp 4 chữ L: Linh hoạt và tiện nghi
Kiến trúc nhà cấp 4 chữ L là lựa chọn phổ biến, đặc biệt là ở khu vực nông thôn, nhờ khả năng tối ưu hóa không gian và tạo ra nhiều mặt thoáng. Hình dáng chữ L cho phép ngôi nhà ôm trọn một phần sân vườn hoặc khoảng hiên rộng, mang đến sự riêng tư và linh hoạt trong bố trí các khu vực chức năng. Phần góc chữ L thường được tận dụng làm khu vực bếp, ăn uống hoặc nhà tắm, trong khi các phòng ngủ được sắp xếp dọc theo hai nhánh của chữ L, đảm bảo sự yên tĩnh và thoải mái cho các thành viên.
Nhà cấp 4 kiểu biệt thự vườn: Sống xanh giữa thiên nhiên
Nếu bạn sở hữu diện tích đất rộng và yêu thích phong cách sống hòa mình vào thiên nhiên, nhà cấp 4 kiểu biệt thự vườn là một gợi ý tuyệt vời. Sự kết hợp giữa kiến trúc nhà cấp 4 tinh tế và không gian sân vườn rộng lớn tạo nên một tổng thể xanh mát, trong lành. Gia chủ có thể bố trí tiểu cảnh, hồ cá, khu vực BBQ hay vườn rau sạch ngay trong khuôn viên nhà, biến ngôi nhà thành một resort thu nhỏ. Phong cách này không chỉ mang lại giá trị thẩm mỹ cao mà còn cải thiện chất lượng cuộc sống, giúp thư giãn sau những bộn bề công việc.
Nguyên Tắc Vàng Trong Thiết Kế Nội Thất Nhà Cấp 4 Đơn Giản
Thiết kế nội thất đóng vai trò then chốt trong việc hoàn thiện vẻ đẹp và công năng của một căn nhà cấp 4 đơn giản. Tại Interstellas, chúng tôi tin rằng nội thất không chỉ là những món đồ trang trí mà còn là yếu tố định hình trải nghiệm sống. Áp dụng các nguyên tắc dưới đây sẽ giúp bạn tạo nên một không gian hài hòa, tiện nghi và đúng với tinh thần tối giản.


Tối ưu hóa không gian chức năng
Trong nhà cấp 4 đơn giản, mỗi mét vuông đều quý giá. Do đó, việc tối ưu hóa không gian chức năng là ưu tiên hàng đầu.
- Thiết kế mở: Liên thông phòng khách, phòng ăn và bếp để tạo cảm giác rộng rãi, thoáng đãng và tăng cường sự kết nối giữa các thành viên.
- Hạn chế vách ngăn cố định: Thay bằng vách ngăn lửng, kệ sách hoặc rèm cửa để phân chia không gian một cách linh hoạt mà vẫn giữ được độ mở cần thiết.
- Bố trí hợp lý: Sắp xếp đồ đạc theo nguyên tắc gọn gàng, khoa học, đảm bảo lối đi thông thoáng và dễ dàng di chuyển trong nhà. Tránh đặt quá nhiều đồ nội thất không cần thiết gây cảm giác chật chội.
Lựa chọn màu sắc và ánh sáng
Màu sắc và ánh sáng là hai yếu tố có khả năng “biến hóa” không gian một cách mạnh mẽ, đặc biệt quan trọng trong thiết kế nhà cấp 4 đơn giản.

- Gam màu sáng: Ưu tiên các tông màu trắng, be, pastel, hoặc các màu trung tính khác cho tường và trần nhà. Những màu này không chỉ tạo cảm giác sạch sẽ, hiện đại mà còn giúp phản chiếu ánh sáng, làm cho không gian có vẻ rộng hơn.
- Màu sắc điểm nhấn: Sử dụng màu sắc nổi bật cho một vài chi tiết nhỏ như gối tựa, tranh ảnh, thảm trải sàn hoặc một bức tường nhỏ để tạo điểm nhấn, tránh sự đơn điệu.
- Tận dụng ánh sáng tự nhiên: Thiết kế cửa sổ lớn, cửa kính trượt hoặc giếng trời để đưa ánh sáng mặt trời vào sâu bên trong nhà. Ánh sáng tự nhiên không chỉ tiết kiệm điện mà còn mang lại cảm giác tươi mới, tràn đầy năng lượng.
- Hệ thống chiếu sáng nhân tạo thông minh: Kết hợp nhiều loại đèn (đèn trần, đèn downlight, đèn bàn, đèn cây) với ánh sáng vàng ấm hoặc trắng nhẹ để tạo không khí ấm cúng và đáp ứng nhu cầu chiếu sáng cho từng khu vực chức năng.
Vật liệu và hoàn thiện bền đẹp
Lựa chọn vật liệu phù hợp không chỉ đảm bảo độ bền mà còn góp phần định hình phong cách và tạo nên vẻ đẹp riêng cho căn nhà.
- Vật liệu tự nhiên: Gỗ, đá, gạch nung, tre, nứa được ưa chuộng trong thiết kế nhà cấp 4 đơn giản vì vẻ đẹp mộc mạc, gần gũi và thân thiện với môi trường.
- Sử dụng vật liệu hiện đại: Kết hợp bê tông trần, kính, kim loại với các vật liệu tự nhiên để tạo nên sự tương phản thú vị và nét hiện đại.
- Hoàn thiện bề mặt: Ưu tiên bề mặt nhẵn, ít hoa văn, dễ vệ sinh. Sàn gỗ, sàn gạch men sáng màu hoặc sàn bê tông đánh bóng là những lựa chọn phổ biến, mang lại sự tinh tế và sạch sẽ.
Nội thất thông minh và đa năng
Nội thất trong nhà cấp 4 đơn giản cần ưu tiên tính tiện dụng và khả năng tích hợp nhiều chức năng trong một sản phẩm.


- Đồ nội thất đa năng: Ghế sofa kiêm giường ngủ, bàn trà có ngăn kéo lưu trữ, tủ âm tường, kệ treo tường là những giải pháp tuyệt vời để tiết kiệm diện tích.
- Thiết kế gọn gàng: Chọn nội thất có đường nét thanh mảnh, ít chi tiết rườm rà, màu sắc đồng bộ với tổng thể để tạo sự hài hòa và không gây cảm giác nặng nề.
- Tận dụng không gian trống: Sử dụng các kệ âm tường, tủ dưới gầm cầu thang (đối với nhà có gác lửng) để tăng không gian lưu trữ mà không làm ảnh hưởng đến diện tích sàn.
Phong cách trang trí tối giản, tinh tế
Phong cách tối giản không có nghĩa là thiếu thốn, mà là tập trung vào chất lượng hơn số lượng, loại bỏ những thứ không cần thiết để tôn vinh vẻ đẹp của không gian.
- Less is more: Chỉ giữ lại những món đồ trang trí thực sự có ý nghĩa hoặc giá trị thẩm mỹ cao.
- Điểm nhấn từ cây xanh: Đặt một vài chậu cây cảnh nhỏ trong nhà hoặc một bình hoa tươi để mang thiên nhiên vào không gian sống, tạo cảm giác tươi mát và sinh động.
- Tranh ảnh và vật dụng trang trí: Chọn các bức tranh có chủ đề nhẹ nhàng, màu sắc hài hòa. Các vật dụng trang trí như gốm sứ, đồ thủ công mỹ nghệ nên được chọn lọc kỹ lưỡng, phù hợp với phong cách chung của ngôi nhà.
Lập Kế Hoạch và Dự Toán Chi Phí Thiết Kế Nhà Cấp 4 Đơn Giản


Việc lập kế hoạch và dự toán chi phí là bước không thể thiếu để đảm bảo quá trình thiết kế và thi công nhà cấp 4 đơn giản diễn ra suôn sẻ, đúng tiến độ và nằm trong ngân sách cho phép. Một kế hoạch chi tiết không chỉ giúp kiểm soát tài chính mà còn định hình rõ ràng các hạng mục cần thực hiện.
Bước 1: Xác định nhu cầu và lên ý tưởng chi tiết
Trước khi bắt tay vào dự toán chi phí, điều quan trọng nhất là phải có một bản phác thảo ý tưởng rõ ràng về ngôi nhà mơ ước của bạn.


- Nhu cầu sử dụng: Gia đình bạn có bao nhiêu thành viên? Cần bao nhiêu phòng ngủ, phòng vệ sinh? Có cần không gian làm việc riêng, phòng thờ, hay khu vực giải trí không?
- Phong cách mong muốn: Bạn yêu thích phong cách nào (hiện đại, tối giản, Nhật Bản, v.v.)?
- Công năng đặc biệt: Có cần thiết kế gác lửng, sân vườn, hoặc các tiện ích khác không?
- Mục tiêu dài hạn: Ngôi nhà sẽ phục vụ gia đình trong bao lâu? Có kế hoạch mở rộng hay thay đổi trong tương lai không?
Việc trả lời chi tiết những câu hỏi này sẽ giúp kiến trúc sư phác thảo bản vẽ ban đầu chính xác hơn, từ đó đưa ra dự toán chi phí sát thực tế. Loại bỏ những không gian không cần thiết ngay từ đầu là cách hiệu quả để tối ưu cả không gian và ngân sách.
Bước 2: Dự toán chi phí xây dựng cơ bản
Chi phí xây dựng nhà cấp 4 đơn giản thường được tính toán dựa trên tổng diện tích sàn và đơn giá xây dựng trên mỗi mét vuông. Dưới đây là cách tiếp cận phổ biến:


Cách tính diện tích xây dựng tương đối:
Công thức tổng quát: Tổng diện tích xây dựng = Diện tích móng + Diện tích các sàn + Diện tích sân + Diện tích mái
- Phần móng: Tùy thuộc loại móng mà cách tính diện tích sẽ khác nhau:
- Móng băng: Khoảng 60% diện tích sàn.
- Móng đơn: Khoảng 30-50% diện tích sàn.
- Móng cọc: Khoảng 70% diện tích sàn.
- Phần sàn: 100% diện tích các tầng (nhà cấp 4 thường là 1 tầng).
- Phần sân: Nếu có sân trước, sân sau, tính khoảng 50% diện tích.
- Phần mái: Tùy loại mái:
- Mái bê tông cốt thép: Khoảng 50% diện tích sàn.
- Mái tôn: Khoảng 30% diện tích sàn.
- Mái ngói vì kèo sắt: Khoảng 50-70% diện tích sàn.
- Mái ngói bê tông cốt thép: 100% diện tích sàn.
Ví dụ minh họa:
Một ngôi nhà cấp 4 có diện tích đất 100m² (5x20m), với diện tích xây dựng chính là 80m² (trừ sân trước 3m, sân sau 1m). Sử dụng móng băng và mái bê tông cốt thép.
- Diện tích móng = 80m² x 60% = 48m²
- Diện tích sàn = 80m²
- Diện tích mái = 80m² x 50% = 40m²
- Tổng diện tích xây dựng tương đối = 48 + 80 + 40 = 168m²
Cách tính chi phí xây nhà cấp 4 trọn gói:
Chi phí xây dựng = Tổng diện tích xây dựng tương đối x Đơn giá/m²


- Trường hợp 1: Xây nhà trọn gói (chìa khóa trao tay): Đơn giá thường dao động từ 5.000.000 – 7.000.000 VNĐ/m² (đã bao gồm vật tư hoàn thiện như cửa, thiết bị vệ sinh, gạch lát, sơn, chưa gồm nội thất rời).
- Với ví dụ trên: 168m² x 5.500.000 VNĐ/m² (giả sử đơn giá) = 924.000.000 VNĐ.
- Trường hợp 2: Xây phần thô + nhân công hoàn thiện: Đơn giá dao động từ 2.800.000 – 3.800.000 VNĐ/m² (bao gồm vật liệu thô như sắt, đá, xi măng, cát và chi phí nhân công, chưa gồm vật tư hoàn thiện).
- Với ví dụ trên: 168m² x 3.500.000 VNĐ/m² (giả sử đơn giá) = 588.000.000 VNĐ.
- Lưu ý: Bạn sẽ phải tự mua vật tư hoàn thiện và có thể thuê nhân công riêng cho các hạng mục này.
Những con số trên chỉ mang tính tham khảo. Chi phí thực tế sẽ phụ thuộc vào vị trí, thời điểm, chất lượng vật liệu và độ phức tạp của thiết kế.
Bước 3: Kiểm soát và tối ưu ngân sách hiệu quả
Để giảm thiểu chi phí xây dựng mà vẫn đảm bảo chất lượng, gia chủ cần áp dụng những gợi ý sau:


- Lựa chọn vật liệu thông minh:
- Tìm hiểu kỹ giá cả vật liệu thô (cát, đá, xi măng) và vật liệu hoàn thiện (gạch ốp lát, sơn, thiết bị vệ sinh) từ nhiều nhà cung cấp khác nhau.
- Chọn vật liệu có độ bền cao, phù hợp với khí hậu địa phương và có sẵn trên thị trường để giảm chi phí vận chuyển. Đừng chạy theo những vật liệu quá đắt đỏ nếu không thực sự cần thiết.
- Cân nhắc sử dụng vật liệu địa phương để tiết kiệm chi phí và tăng tính bền vững.
- Tham khảo nhiều đơn vị thi công:
- Liên hệ và so sánh báo giá từ ít nhất 3-5 nhà thầu uy tín. Không chỉ nhìn vào giá, hãy đánh giá cả kinh nghiệm, chất lượng công trình đã thực hiện và thái độ làm việc của họ.
- Hợp tác chặt chẽ với kiến trúc sư và nhà thầu để tối ưu thiết kế, tránh những thay đổi đột xuất trong quá trình thi công gây phát sinh chi phí.
- Nếu có thể, chọn gói thi công trọn gói từ một đơn vị chuyên nghiệp để đảm bảo tính đồng bộ, tránh rủi ro phát sinh giữa các bên.
- Diện tích xây dựng hợp lý:
- Tránh lãng phí diện tích bằng cách tính toán số phòng và kích thước các phòng dựa trên nhu cầu thực tế của gia đình. Đừng xây quá to nếu không cần thiết, điều này chỉ làm tăng chi phí mà không mang lại hiệu quả sử dụng cao hơn.
- Cân nhắc các giải pháp như nhà có gác lửng để mở rộng không gian sử dụng trên cùng một diện tích sàn.
- Lựa chọn đồ nội thất phù hợp:
- Không cần quá cầu kỳ, rườm rà hay chạy theo những món đồ nội thất đắt tiền. Thị trường hiện nay có rất nhiều lựa chọn nội thất giá cả phải chăng mà vẫn đảm bảo chất lượng và thẩm mỹ.
- Ưu tiên đồ nội thất thiết yếu trước, sau đó bổ sung dần theo thời gian. Điều này giúp kiểm soát ngân sách ban đầu và tránh tình trạng mua sắm quá tay.
- Sử dụng đồ nội thất đa năng, tích hợp nhiều công dụng để tiết kiệm không gian và chi phí.
Những Lưu Ý Quan Trọng Khi Bắt Tay Vào Xây Dựng
Quá trình xây dựng một căn nhà cấp 4 đơn giản đòi hỏi sự chuẩn bị kỹ lưỡng và giám sát chặt chẽ. Để đảm bảo công trình đạt chất lượng mong muốn và tránh những rắc rối không đáng có, gia chủ cần lưu ý các vấn đề sau.

Lựa chọn đơn vị thiết kế và thi công uy tín
Đây là một trong những quyết định quan trọng nhất, ảnh hưởng trực tiếp đến chất lượng, tiến độ và chi phí của ngôi nhà.

- Tìm kiếm kinh nghiệm: Ưu tiên các đơn vị có kinh nghiệm lâu năm trong lĩnh vực thiết kế và thi công nhà cấp 4. Xem xét các dự án họ đã thực hiện, đánh giá về chất lượng và độ bền của công trình.
- Kiến trúc sư giỏi: Đội ngũ kiến trúc sư cần có khả năng lắng nghe, thấu hiểu ý tưởng của gia chủ và biến nó thành bản vẽ khả thi, tối ưu công năng. Họ cũng cần có kiến thức sâu rộng về vật liệu, kết cấu và các quy định xây dựng.
- Minh bạch trong báo giá: Đơn vị uy tín sẽ cung cấp báo giá chi tiết, rõ ràng từng hạng mục, không có chi phí ẩn.
- Dịch vụ hậu mãi: Chính sách bảo hành, bảo trì sau thi công cũng là một yếu tố quan trọng để đánh giá độ chuyên nghiệp của nhà thầu.
Một đơn vị như Interstellas với kinh nghiệm và đội ngũ chuyên gia tận tâm có thể hỗ trợ bạn từ khâu tư vấn thiết kế đến thi công hoàn thiện, đảm bảo mọi yếu tố đều được cân nhắc kỹ lưỡng để mang lại không gian sống ưng ý nhất.
Kiểm tra và giám sát chất lượng công trình
Ngay cả khi đã thuê một nhà thầu uy tín, việc kiểm tra và giám sát định kỳ vẫn rất cần thiết để đảm bảo công trình được xây dựng đúng theo thiết kế và tiêu chuẩn chất lượng.

- Theo dõi tiến độ: Thường xuyên ghé thăm công trường để nắm bắt tiến độ thi công, đối chiếu với lịch trình đã thống nhất.
- Kiểm tra vật liệu: Đảm bảo nhà thầu sử dụng đúng loại vật liệu, đúng chủng loại và chất lượng đã cam kết trong hợp đồng.
- Giám sát kỹ thuật: Nếu không có chuyên môn, bạn có thể thuê thêm một đơn vị giám sát độc lập hoặc nhờ người thân có kinh nghiệm hỗ trợ kiểm tra các công đoạn quan trọng như đổ móng, đổ mái, lắp đặt hệ thống điện nước.
- Nghiệm thu từng giai đoạn: Thực hiện nghiệm thu và ký xác nhận cho từng giai đoạn thi công (ví dụ: nghiệm thu móng, nghiệm thu phần thô, nghiệm thu hoàn thiện) để đảm bảo chất lượng từng phần trước khi chuyển sang giai đoạn tiếp theo.
Hiểu rõ hợp đồng và các điều khoản pháp lý
Hợp đồng xây dựng là văn bản pháp lý quan trọng nhất, bảo vệ quyền lợi của cả gia chủ và nhà thầu.

- Nội dung hợp đồng: Đảm bảo hợp đồng ghi rõ loại hình dịch vụ (thiết kế, thi công phần thô, thi công trọn gói), phạm vi công việc, chi tiết kỹ thuật, vật liệu sử dụng, tiến độ thi công và các mốc thanh toán.
- Điều khoản nghiệm thu: Quy định rõ ràng về các tiêu chuẩn nghiệm thu chất lượng, các bên tham gia nghiệm thu và thủ tục ký xác nhận.
- Thời gian hoàn thành: Xác định cụ thể thời gian khởi công, thời gian hoàn thành và các điều khoản phạt nếu chậm tiến độ (nếu có).
- Phương thức thanh toán: Liệt kê các đợt thanh toán, số tiền cho mỗi đợt và thời gian thanh toán cụ thể.
- Điều khoản phát sinh và chấm dứt hợp đồng: Quy định cách xử lý các trường hợp phát sinh chi phí ngoài dự kiến, thay đổi thiết kế, hoặc các trường hợp cần chấm dứt hợp đồng, bao gồm các khoản bồi thường thiệt hại (nếu có).
Đọc kỹ từng điều khoản, nếu có bất kỳ điểm nào chưa rõ ràng, hãy yêu cầu nhà thầu giải thích hoặc tham khảo ý kiến luật sư trước khi ký kết.
FAQ: Câu Hỏi Thường Gặp Về Thiết Kế Nhà Cấp 4 Đơn Giản

Để giúp quý gia chủ có cái nhìn rõ ràng hơn về thiết kế nhà cấp 4 đơn giản, dưới đây là những câu hỏi thường gặp cùng lời giải đáp chuyên sâu.
Chi phí xây dựng nhà cấp 4 đơn giản khoảng bao nhiêu?

Chi phí xây dựng nhà cấp 4 đơn giản phụ thuộc vào nhiều yếu tố như diện tích, phong cách thiết kế, loại vật liệu sử dụng, thời điểm xây dựng và đơn giá của nhà thầu. Thông thường, một căn nhà cấp 4 đơn giản với diện tích khoảng 80-100m² có thể có tổng chi phí dao động từ 500 triệu đến 1 tỷ đồng cho gói xây dựng trọn gói (chìa khóa trao tay), chưa bao gồm nội thất rời. Nếu chỉ tính phần thô và nhân công hoàn thiện, chi phí có thể thấp hơn, khoảng 300-600 triệu đồng. Điều quan trọng là phải lập dự toán chi tiết, tham khảo nhiều đơn vị để có cái nhìn chính xác nhất về ngân sách cần thiết cho dự án của bạn.

Nên chọn mái nào cho nhà cấp 4 đơn giản?
Việc lựa chọn loại mái cho nhà cấp 4 đơn giản phụ thuộc vào sở thích cá nhân, điều kiện khí hậu và tổng thể kiến trúc mong muốn.

- Mái Nhật: Phù hợp với phong cách hiện đại, thanh lịch, mang lại vẻ đẹp hài hòa và khả năng thoát nước tốt.
- Mái Thái: Được ưa chuộng nhờ khả năng chống nóng, thoát nước hiệu quả và vẻ ngoài bề thế, sang trọng.
- Mái bằng: Mang đến vẻ đẹp tối giản, hiện đại, vững chãi và có thể tận dụng làm sân thượng hoặc không gian xanh.
- Mái lệch: Tạo điểm nhấn kiến trúc độc đáo, phá cách, phù hợp với những gia chủ cá tính.
Mỗi loại mái đều có ưu và nhược điểm riêng. Hãy cân nhắc kỹ lưỡng và tham khảo ý kiến của kiến trúc sư để chọn loại mái phù hợp nhất với điều kiện địa lý và phong cách sống của gia đình.
Làm sao để nhà cấp 4 nhỏ trông rộng rãi hơn?
Để căn nhà cấp 4 nhỏ trở nên rộng rãi và thoáng đãng hơn, bạn có thể áp dụng các giải pháp thiết kế sau:

- Thiết kế không gian mở: Hạn chế tường ngăn, liên thông các khu vực chức năng như phòng khách, ăn, bếp.
- Sử dụng gam màu sáng: Sơn tường và trần nhà bằng các tông màu trắng, be, pastel để tạo cảm giác mở rộng không gian.
- Tận dụng ánh sáng tự nhiên: Thiết kế cửa sổ lớn, cửa kính để ánh sáng tràn vào nhà, giúp không gian sáng sủa và thông thoáng.
- Nội thất tối giản và đa năng: Chọn đồ nội thất có kích thước phù hợp, đường nét thanh mảnh, tích hợp nhiều chức năng để tiết kiệm diện tích.
- Gương và các bề mặt phản chiếu: Đặt gương ở vị trí chiến lược để tạo ảo giác không gian sâu hơn và phản chiếu ánh sáng.
- Trang trí ít chi tiết: Tránh lạm dụng đồ trang trí rườm rà, giữ cho không gian gọn gàng, ngăn nắp.
Có cần thuê kiến trúc sư cho nhà cấp 4 đơn giản không?

Mặc dù là nhà cấp 4 đơn giản, việc thuê kiến trúc sư là điều rất nên làm. Một kiến trúc sư chuyên nghiệp sẽ giúp bạn:
- Tối ưu công năng và thẩm mỹ: Đảm bảo ngôi nhà không chỉ đẹp mà còn tiện nghi, phù hợp với thói quen sinh hoạt của gia đình.
- Kiểm soát chi phí: Tư vấn lựa chọn vật liệu, giải pháp thi công hiệu quả, giúp tránh lãng phí và phát sinh chi phí không đáng có.
- Đảm bảo kỹ thuật và an toàn: Thiết kế kết cấu vững chắc, hệ thống điện nước hợp lý, an toàn và đúng quy định pháp luật.
- Tối ưu không gian: Đưa ra các giải pháp sáng tạo để biến một không gian nhỏ trở nên rộng rãi, thông thoáng hơn.
- Tiết kiệm thời gian và công sức: Giúp bạn từ khâu lên ý tưởng, xin phép xây dựng đến giám sát thi công.
Việc đầu tư vào một bản vẽ thiết kế chất lượng sẽ mang lại giá trị lâu dài cho ngôi nhà của bạn.
Việc thiết kế nhà cấp 4 đơn giản không chỉ là xây dựng một nơi ở mà còn là kiến tạo một không gian sống phản ánh phong cách và cá tính của gia chủ. Từ việc lựa chọn phong cách kiến trúc, bố trí công năng, cho đến việc kiểm soát chi phí và giám sát thi công, mỗi bước đều cần sự tỉ mỉ và chuyên nghiệp. Bằng cách áp dụng những nguyên tắc và lời khuyên chi tiết trong bài viết này, bạn hoàn toàn có thể sở hữu một căn nhà cấp 4 đẹp mắt, tiện nghi và tối ưu, mang lại cuộc sống viên mãn cho cả gia đình.








































