Phòng ngủ không chỉ là nơi nghỉ ngơi mà còn là không gian riêng tư phản ánh phong cách sống và gu thẩm mỹ của mỗi gia chủ. Trong thiết kế nội thất hiện đại, việc tích hợp giải trí như tivi vào phòng ngủ ngày càng phổ biến. Tuy nhiên, để đảm bảo trải nghiệm xem tối ưu, thoải mái và duy trì tính thẩm mỹ cho căn phòng, việc lựa chọn chiều cao kệ tivi phòng ngủ phù hợp là vô cùng quan trọng. Một chiếc kệ tivi được bố trí đúng chuẩn sẽ không chỉ phục vụ tốt công năng mà còn góp phần tạo nên một không gian hài hòa, cân đối và thư giãn.
Những yếu tố quan trọng khi xác định chiều cao kệ tivi phòng ngủ
Khi lựa chọn chiều cao kệ tivi cho phòng ngủ, có nhiều yếu tố cần được xem xét để đảm bảo sự thoải mái tối đa cho người sử dụng và sự hài hòa tổng thể của không gian. Các yếu tố chính bao gồm tư thế xem, kích thước màn hình tivi, khoảng cách từ vị trí xem đến tivi, và phong cách thiết kế nội thất của căn phòng. Sự cân nhắc kỹ lưỡng các khía cạnh này sẽ giúp gia chủ đưa ra quyết định tối ưu, biến phòng ngủ thành một nơi nghỉ ngơi và giải trí lý tưởng.
Tầm quan trọng của việc chọn chiều cao kệ tivi phòng ngủ hợp lý
Việc xác định chiều cao kệ tivi phòng ngủ không chỉ đơn thuần là đặt một thiết bị điện tử lên một mặt phẳng. Đây là một quyết định chiến lược ảnh hưởng trực tiếp đến trải nghiệm thị giác, sức khỏe người dùng và tổng thể thẩm mỹ của không gian. Một chiều cao lý tưởng sẽ đảm bảo tầm nhìn thoải mái, giảm thiểu căng thẳng cho mắt và cổ, đồng thời tạo nên sự cân bằng, hài hòa với các món đồ nội thất khác trong phòng.
Khi kệ tivi được đặt quá cao hoặc quá thấp so với vị trí người xem, mắt và cổ sẽ phải điều tiết liên tục, dẫn đến mỏi mệt, đau nhức. Về lâu dài, điều này có thể gây ra các vấn đề về thị lực và cột sống. Ngược lại, một chiều cao hợp lý sẽ giúp người dùng duy trì tư thế tự nhiên, thư giãn khi xem tivi, đặc biệt quan trọng trong phòng ngủ – nơi chúng ta thường dành nhiều thời gian để nghỉ ngơi và giải trí nhẹ nhàng.
Bên cạnh yếu tố công năng, tính thẩm mỹ cũng đóng vai trò then chốt. Kệ tivi là một phần không thể thiếu của nội thất phòng ngủ, do đó, kích thước và chiều cao của nó cần tương xứng với diện tích phòng, kích thước giường ngủ, và phong cách thiết kế chung. Một chiếc kệ tivi có chiều cao không phù hợp có thể phá vỡ sự cân bằng, khiến căn phòng trở nên chật chội hoặc trống trải, làm giảm đi vẻ đẹp tổng thể. Do đó, việc đầu tư thời gian và công sức để lựa chọn chiều cao kệ tivi đúng chuẩn là một bước đi thông minh, mang lại giá trị lâu dài cho không gian sống của bạn.
Các yếu tố xác định chiều cao kệ tivi phòng ngủ lý tưởng
<>Xem Thêm Bài Viết:<>- Bí Ẩn Công Viên Khủng Long Ở Đâu Tại Phan Thiết
- Phân Tích Chuyên Sâu: Dự Án Đông Tăng Long Tạo Đột Phá Tại Thủ Đức
- Lưu Ý Quan Trọng Khi Dùng Keo Silicon Dán Bồn Rửa Chén
- Cây Bông Lau Trang Trí: Hướng Dẫn Chi Tiết Tạo Không Gian Thiên Nhiên
- Khám phá vị trí Phố cổ **Hội An là ở đâu** trên bản đồ Việt Nam

Có thể bạn quan tâm: Kích Cỡ Giường Phổ Biến: Hướng Dẫn Chi Tiết Từ A-z
Để chọn được chiều cao kệ tivi phòng ngủ lý tưởng, cần xem xét đồng thời nhiều yếu tố. Mỗi yếu tố đều có vai trò riêng và khi kết hợp lại sẽ tạo nên một quyết định tối ưu, mang lại sự thoải mái và thẩm mỹ cao nhất.
Tư thế xem và góc nhìn tối ưu
Yếu tố quan trọng nhất khi xác định chiều cao kệ tivi là tư thế xem của người dùng trong phòng ngủ. Hầu hết chúng ta thường xem tivi khi nằm trên giường hoặc ngồi tựa lưng vào thành giường. Do đó, điểm trung tâm của màn hình tivi nên nằm ngang tầm mắt hoặc hơi thấp hơn một chút so với tầm mắt khi đang ở tư thế thoải mái nhất.

Có thể bạn quan tâm: Cách Bố Trí Bếp Trong Căn Hộ Chung Cư: Tối Ưu Không Gian Và Công Năng
- Khi nằm: Nếu bạn thường xuyên xem tivi khi nằm thẳng trên giường, điểm trung tâm màn hình nên ở vị trí mà mắt không phải cúi xuống hoặc ngửa lên quá nhiều. Điều này thường đồng nghĩa với việc kệ tivi có thể cần đặt cao hơn so với phòng khách.
- Khi ngồi tựa lưng: Nếu bạn thích ngồi tựa vào thành giường để xem, hãy điều chỉnh sao cho tầm mắt tự nhiên hướng thẳng vào giữa màn hình.
Mục tiêu là giảm thiểu chuyển động đầu và cổ, giúp mắt thư giãn tối đa. Một góc nhìn tự nhiên, không gây căng thẳng sẽ nâng cao trải nghiệm giải trí và bảo vệ sức khỏe thị giác lẫn cột sống cổ.
Kích thước màn hình tivi
Kích thước của tivi cũng ảnh hưởng đáng kể đến việc lựa chọn chiều cao kệ. Màn hình càng lớn, kệ tivi có thể cần đặt thấp hơn một chút để toàn bộ màn hình vẫn nằm trong phạm vi tầm nhìn thoải mái mà không cần phải đảo mắt quá nhiều.

Có thể bạn quan tâm: Các Kiểu Ốp Tường Đẹp: Hướng Dẫn Chọn Lựa Và Thi Công Chuẩn Chuyên Gia
- Tivi nhỏ (dưới 40 inch): Có thể đặt cao hơn một chút vì diện tích màn hình nhỏ không yêu cầu tầm nhìn rộng.
- Tivi lớn (trên 50 inch): Nên đặt thấp hơn để đảm bảo phần dưới và phần trên của màn hình đều dễ dàng quan sát mà không gây mỏi mắt.
Quy tắc chung là tâm màn hình tivi nên cách mặt đất khoảng 100-120cm khi tivi có kích thước trung bình (40-55 inch) và vị trí xem là trên giường. Đối với tivi lớn hơn, có thể điều chỉnh xuống thấp hơn một chút.
Khoảng cách từ vị trí xem đến tivi
Khoảng cách từ giường đến kệ tivi cũng là một thông số cần cân nhắc. Khoảng cách này quyết định góc nhìn và kích thước tivi phù hợp.
- Khoảng cách gần: Nếu giường gần tivi, bạn có thể chọn tivi nhỏ hơn và kệ có thể thấp hơn.
- Khoảng cách xa: Với khoảng cách xa hơn, tivi lớn hơn sẽ phù hợp để đảm bảo trải nghiệm xem tốt, và chiều cao kệ cũng cần được tính toán để tránh tình trạng màn hình bị che khuất hoặc quá nhỏ trong tầm nhìn.
Công thức ước tính khoảng cách xem lý tưởng thường là: Khoảng cách xem (cm) = Kích thước màn hình (inch) x 2.54 x 1.5 đến 2.5. Dựa vào khoảng cách này, bạn có thể điều chỉnh chiều cao kệ sao cho tâm màn hình nằm trong tầm nhìn thoải mái nhất.
Chiều cao của giường ngủ và các nội thất khác

Trong phòng ngủ, giường là trung tâm. Do đó, chiều cao kệ tivi phòng ngủ phải hài hòa với chiều cao của giường, đặc biệt là phần đệm và gối.
- Giường thấp (phong cách Nhật Bản, hiện đại tối giản): Kệ tivi có thể cần thấp hơn để đảm bảo tầm nhìn thoải mái khi nằm.
- Giường cao (phong cách cổ điển, có khung giường lớn): Kệ tivi có thể đặt cao hơn để tương xứng và phù hợp với tầm mắt.
Ngoài ra, sự cân đối với các đồ nội thất khác như tủ quần áo, bàn trang điểm cũng cần được xem xét. Một bố cục hài hòa về chiều cao sẽ tạo ra một không gian liền mạch và đẹp mắt.
Phong cách thiết kế nội thất
Phong cách thiết kế của phòng ngủ cũng đóng vai trò quan trọng trong việc lựa chọn loại kệ và chiều cao của nó.
- Phong cách hiện đại, tối giản: Thường ưa chuộng các mẫu kệ treo tường hoặc kệ âm tường, giúp tiết kiệm không gian và tạo cảm giác nhẹ nhàng, thông thoáng. Chiều cao của các loại kệ này có thể linh hoạt điều chỉnh theo ý muốn.
- Phong cách cổ điển, tân cổ điển: Các mẫu kệ tivi thường có kích thước lớn hơn, được chạm khắc tinh xảo, có chân đế vững chắc. Chiều cao của chúng thường cao hơn một chút để phù hợp với sự hoành tráng và sang trọng của không gian.
- Phong cách Rustic, Indochine: Kệ tivi thường làm từ gỗ tự nhiên, thiết kế đơn giản, ấm cúng. Chiều cao sẽ phụ thuộc vào thiết kế cụ thể và sự hài hòa với các đồ gỗ khác.
Việc tuân thủ phong cách sẽ giúp tổng thể căn phòng trở nên đồng bộ và thể hiện rõ nét cá tính của gia chủ.
Kinh nghiệm chọn chiều cao kệ tivi phòng ngủ theo phong cách thiết kế
Mỗi phong cách thiết kế nội thất đều mang một đặc trưng riêng, và việc lựa chọn chiều cao kệ tivi phòng ngủ cần phải hài hòa với tổng thể đó. Sự đồng điệu trong thiết kế không chỉ mang lại giá trị thẩm mỹ mà còn tạo nên một không gian sống có tính liên kết và cảm xúc.
Phong cách hiện đại và tối giản
Đối với các căn hộ chung cư, nhà phố hiện đại, xu hướng tối giản ngày càng được ưa chuộng. Phong cách này tập trung vào sự tinh gọn, tiện nghi và loại bỏ những chi tiết thừa thãi. Do đó, kệ tivi trong phòng ngủ theo phong cách hiện đại thường có những đặc điểm riêng biệt về chiều cao và thiết kế:
- Thiết kế: Kệ tivi thường có đường nét thanh mảnh, màu sắc trung tính (trắng, xám, gỗ sáng), ít chi tiết trang trí. Các mẫu kệ treo tường hoặc kệ âm tường là lựa chọn lý tưởng, giúp giải phóng không gian sàn, tạo cảm giác rộng rãi và thoáng đãng. Kệ đứng cũng có thể được sử dụng nhưng thường có thiết kế chân thấp, gọn gàng.
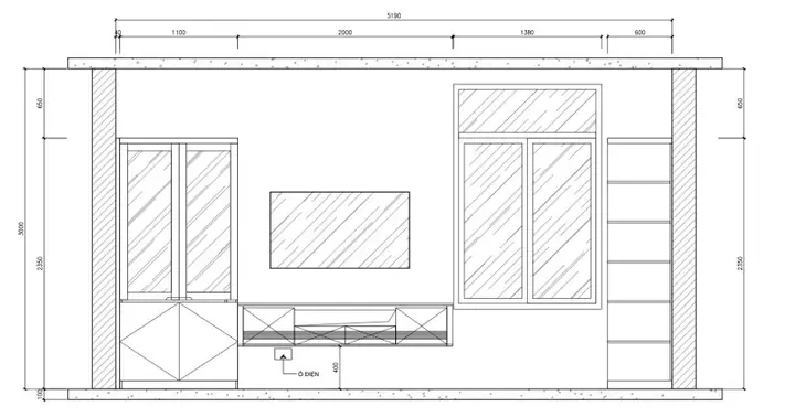
- Chiều cao tiêu chuẩn: Với kệ treo tường, gia chủ có thể linh hoạt điều chỉnh chiều cao tùy theo tầm mắt khi nằm hoặc ngồi trên giường. Tuy nhiên, một chiều cao phổ biến cho phần chân đế tivi (hoặc đáy tivi nếu treo) dao động từ 60 – 70cm so với mặt sàn. Chiều rộng của kệ thường là 40 – 45cm, còn chiều dài có thể thay đổi tùy thuộc vào kích thước tivi và bức tường. Việc giữ chiều cao trong khoảng này giúp đảm bảo tầm nhìn thoải mái và tạo sự cân đối với các nội thất khác.
Trong phòng ngủ nhỏ, kệ tivi hiện đại còn có thể tích hợp thêm các ngăn kéo hoặc hộc tủ ẩn, tối ưu hóa không gian lưu trữ mà vẫn giữ được vẻ ngoài gọn gàng.
Phong cách cổ điển và tân cổ điển
Phong cách cổ điển và tân cổ điển nổi bật với sự sang trọng, tinh tế và những đường nét chạm khắc cầu kỳ. Kệ tivi trong không gian này không chỉ là nơi đặt tivi mà còn là một tác phẩm nghệ thuật, góp phần khẳng định đẳng cấp của gia chủ.
- Thiết kế: Kệ tivi thường được làm từ gỗ tự nhiên cao cấp, có màu sắc trầm ấm (nâu cánh gián, óc chó). Các chi tiết điêu khắc, phào chỉ, và các đường cong mềm mại là đặc trưng. Kệ thường có kích thước lớn, vững chãi, tạo cảm giác bề thế.
- Chiều cao tiêu chuẩn: Với những thiết kế này, chiều cao kệ tivi phòng ngủ thường cao hơn một chút so với phong cách hiện đại, dao động từ 60 – 75cm. Chiều rộng có thể từ 45 – 70cm để tương xứng với độ sâu và sự hoành tráng của kệ. Chiều dài kệ sẽ phụ thuộc vào diện tích phòng và các món đồ nội thất đi kèm như tủ trưng bày, tủ sách. Chiều cao này giúp kệ tivi hài hòa với các món đồ nội thất cổ điển khác như giường ngủ lớn, tủ quần áo chạm khắc, tạo nên một tổng thể đồng nhất và đẳng cấp.
Phong cách này đặc biệt phù hợp với những phòng ngủ có diện tích rộng rãi, nơi các chi tiết và kích thước lớn có thể phô diễn hết vẻ đẹp của mình mà không gây cảm giác chật chội.

Kinh nghiệm chọn chiều cao kệ tivi phòng ngủ theo không gian sống
Kích thước và bố cục của phòng ngủ là yếu tố quyết định hàng đầu khi lựa chọn nội thất, bao gồm cả chiều cao kệ tivi phòng ngủ. Một chiếc kệ tivi phù hợp với diện tích sẽ tối ưu hóa không gian, đảm bảo công năng và giữ gìn tính thẩm mỹ cho căn phòng.
Kệ tivi cho phòng ngủ nhỏ
Trong các căn hộ chung cư hoặc nhà phố có diện tích phòng ngủ hạn chế, việc lựa chọn nội thất cần ưu tiên sự gọn gàng, đa năng và khả năng tối ưu hóa không gian. Kệ tivi cho phòng ngủ nhỏ cần tuân thủ những nguyên tắc sau:
- Thiết kế: Ưu tiên các mẫu kệ treo tường, kệ âm tường hoặc kệ đơn giản có thiết kế chân thấp, không chiếm nhiều diện tích sàn. Kệ đa năng tích hợp bàn làm việc, tủ lưu trữ nhỏ hoặc giá sách là lựa chọn thông minh để tận dụng tối đa không gian.
- Màu sắc: Nên chọn kệ tivi có gam màu sáng như trắng, kem, hoặc màu gỗ tự nhiên nhạt để tạo cảm giác rộng rãi, thoáng đãng cho căn phòng.
- Kích thước tiêu chuẩn:
- Chiều dài: Từ 120 – 220 cm, tùy thuộc vào chiều rộng của bức tường và khoảng trống còn lại.
- Chiều rộng (sâu): Từ 35 – 50 cm để đảm bảo không gian di chuyển thoải mái và tránh cảm giác cồng kềnh.
- Chiều cao: Đối với kệ chân đứng, chiều cao từ 50 – 60 cm là phù hợp. Nếu là kệ treo tường, chiều cao có thể linh hoạt hơn, nhưng nên đảm bảo phần đáy tivi cách mặt sàn khoảng 60-70cm để có tầm nhìn tốt từ giường.
- Lưu ý: Tránh các mẫu kệ quá đồ sộ, nhiều chi tiết hoặc màu tối, vì chúng sẽ khiến phòng ngủ nhỏ càng thêm chật chội và bí bách.
Kệ tivi cho phòng ngủ lớn hoặc master bedroom
Với những phòng ngủ master, biệt thự, hoặc không gian rộng rãi, việc lựa chọn kệ tivi có nhiều sự linh hoạt hơn. Gia chủ có thể tập trung vào việc tạo điểm nhấn, thể hiện sự sang trọng và tích hợp các chức năng giải trí toàn diện.
- Thiết kế: Có thể chọn các mẫu kệ tivi lớn, bề thế, tích hợp tủ trưng bày, tủ sách, hoặc các vách ốp tường trang trí. Kệ tivi có thể được thiết kế theo phong cách cổ điển, tân cổ điển với các chi tiết chạm khắc tinh xảo, hoặc phong cách hiện đại sang trọng với vật liệu cao cấp.
- Kích thước tiêu chuẩn:
- Chiều dài: Kệ tivi có thể dài từ 200 – 300 cm hoặc hơn, tùy theo chiều dài bức tường và ý đồ thiết kế tổng thể.
- Chiều rộng (sâu): Từ 40 – 50 cm để tạo sự vững chãi và không gian đủ cho các thiết bị phụ trợ.
- Chiều cao: Thường dao động từ 60 – 70 cm, đảm bảo sự cân đối với các món đồ nội thất lớn khác trong phòng và tạo tầm nhìn thoải mái từ giường.
- Tích hợp chức năng: Kệ tivi trong phòng ngủ lớn có thể được thiết kế như một hệ tủ giải trí tổng hợp, bao gồm cả các không gian trưng bày đồ trang trí, hệ thống âm thanh, hoặc thậm chí là lò sưởi giả để tăng thêm sự ấm cúng và sang trọng.
Với không gian rộng, việc bố trí kệ tivi không chỉ là công năng mà còn là cơ hội để tạo nên một điểm nhấn kiến trúc, nâng tầm thẩm mỹ và sự tiện nghi cho căn phòng.
Lựa chọn vật liệu kệ tivi: Bền vững và Thẩm mỹ
Vật liệu là một yếu tố then chốt quyết định độ bền, tính thẩm mỹ và giá trị của kệ tivi. Mỗi loại vật liệu mang đến một phong cách và cảm nhận khác nhau cho không gian phòng ngủ.
Gỗ tự nhiên
Ưu điểm:
- Vẻ đẹp vượt thời gian: Gỗ tự nhiên sở hữu vẻ đẹp độc đáo với các đường vân gỗ và màu sắc ấm áp, sang trọng.
- Độ bền cao: Nếu được xử lý đúng cách, gỗ tự nhiên có thể tồn tại hàng chục năm, chống chịu tốt với mối mọt và cong vênh.
- Giá trị đầu tư: Mang lại giá trị cao và là lựa chọn ưu tiên cho các không gian cao cấp, cổ điển.
- Thân thiện môi trường: Là vật liệu có nguồn gốc tự nhiên.
Nhược điểm:
- Giá thành cao: Chi phí sản xuất và chế tác gỗ tự nhiên thường đắt đỏ.
- Trọng lượng lớn: Khó khăn trong việc di chuyển và lắp đặt.
- Yêu cầu bảo quản: Cần tránh ẩm ướt và ánh nắng trực tiếp để duy trì độ bền và vẻ đẹp.
Gợi ý: Gỗ óc chó, gỗ sồi, gỗ tần bì là những lựa chọn phổ biến cho kệ tivi phòng ngủ, phù hợp với phong cách cổ điển, tân cổ điển hoặc hiện đại sang trọng.
Gỗ công nghiệp
Ưu điểm:
- Giá thành phải chăng: Rẻ hơn nhiều so với gỗ tự nhiên, phù hợp với nhiều đối tượng khách hàng.
- Đa dạng mẫu mã: Có thể sản xuất với nhiều màu sắc, vân gỗ, và kiểu dáng khác nhau (MDF, MFC, HDF), dễ dàng phù hợp với mọi phong cách.
- Dễ thi công: Trọng lượng nhẹ hơn, dễ dàng cắt gọt và lắp đặt.
- Khả năng chống ẩm: Một số loại gỗ công nghiệp cao cấp (như MDF lõi xanh chống ẩm) có khả năng chống ẩm tốt hơn.
Nhược điểm:
- Độ bền thấp hơn: Tuổi thọ thường không bằng gỗ tự nhiên.
- Chống chịu kém với nước: Dễ bị trương nở, hư hại nếu tiếp xúc trực tiếp với nước trong thời gian dài.
- Tính thẩm mỹ: Các đường vân gỗ thường là nhân tạo, không có chiều sâu như gỗ tự nhiên.
Gợi ý: Gỗ công nghiệp là lựa chọn lý tưởng cho phong cách hiện đại, tối giản, đặc biệt trong các căn hộ chung cư cần tối ưu chi phí và yêu cầu đa dạng về thiết kế.
Vật liệu khác
Ngoài gỗ, các vật liệu như kim loại, kính, đá tự nhiên hoặc đá nhân tạo cũng được sử dụng để tạo nên những chiếc kệ tivi độc đáo và hiện đại.
- Kim loại (sắt, thép không gỉ): Mang đến vẻ đẹp công nghiệp, hiện đại, bền bỉ và dễ dàng tạo hình. Thường kết hợp với gỗ hoặc kính.
- Kính: Tạo cảm giác thanh thoát, nhẹ nhàng, đặc biệt phù hợp cho những không gian nhỏ cần sự thông thoáng. Tuy nhiên, dễ bám vân tay và cần vệ sinh thường xuyên.
- Đá tự nhiên/nhân tạo: Thể hiện sự sang trọng, đẳng cấp, đặc biệt phù hợp với phong cách luxury, cổ điển. Đá có độ bền cao, chịu lực tốt nhưng giá thành đắt và nặng.
Việc kết hợp các vật liệu cũng là một xu hướng phổ biến, giúp tạo nên những chiếc kệ tivi độc đáo, kết hợp ưu điểm của từng loại vật liệu để mang đến sản phẩm tối ưu nhất cho phòng ngủ của bạn.
Các loại kệ tivi phổ biến cho phòng ngủ
Thị trường nội thất hiện nay cung cấp đa dạng các loại kệ tivi, mỗi loại có những ưu nhược điểm riêng và phù hợp với các không gian và phong cách thiết kế khác nhau. Việc hiểu rõ về các loại kệ sẽ giúp bạn đưa ra lựa chọn thông minh cho chiều cao kệ tivi phòng ngủ của mình.
Kệ tivi chân đứng
Đặc điểm: Đây là loại kệ truyền thống, có chân đế hoặc được thiết kế như một khối tủ thấp. Kệ chân đứng mang lại sự vững chãi, chắc chắn và thường có nhiều không gian lưu trữ bên dưới hoặc hai bên.
Ưu điểm:
- Vững chắc: Khả năng chịu lực tốt, an toàn khi đặt các loại tivi có kích thước lớn.
- Dễ lắp đặt: Không yêu cầu kỹ thuật phức tạp, chỉ cần đặt vào vị trí mong muốn.
- Lưu trữ: Thường tích hợp nhiều ngăn kéo, hộc tủ để đựng điều khiển, đầu thu, sách báo hoặc đồ trang trí.
Nhược điểm:
- Chiếm diện tích: Có thể làm không gian phòng ngủ trở nên chật chội, đặc biệt là với các mẫu kệ lớn.
- Khó di chuyển: Trọng lượng nặng, khó khăn khi cần thay đổi vị trí.
Phù hợp với: Phòng ngủ có diện tích vừa và lớn, các phong cách cổ điển, tân cổ điển, hoặc những ai ưu tiên sự tiện nghi và khả năng lưu trữ.
Kệ tivi treo tường
Đặc điểm: Kệ được gắn trực tiếp lên tường, không có chân chạm sàn. Loại kệ này tạo cảm giác nhẹ nhàng, hiện đại và giúp giải phóng không gian sàn.
Ưu điểm:
- Tiết kiệm không gian: Phù hợp tuyệt đối cho phòng ngủ nhỏ, tạo cảm giác thông thoáng và rộng rãi hơn.
- Thẩm mỹ hiện đại: Mang lại vẻ đẹp tinh tế, gọn gàng, phù hợp với phong cách tối giản và hiện đại.
- Dễ vệ sinh: Dễ dàng lau dọn sàn nhà phía dưới kệ.
- Linh hoạt chiều cao: Có thể điều chỉnh chiều cao kệ tivi phòng ngủ theo ý muốn để phù hợp với tầm mắt khi nằm hoặc ngồi.
Nhược điểm:
- Lắp đặt phức tạp: Yêu cầu kỹ thuật cao, cần khoan tường chắc chắn để đảm bảo an toàn.
- Khả năng chịu lực: Hạn chế hơn so với kệ chân đứng, không phù hợp để đặt quá nhiều đồ nặng.
- Không gian lưu trữ: Thường ít hơn, chủ yếu là các hộc tủ nhỏ.
Phù hợp với: Phòng ngủ nhỏ, phong cách hiện đại, tối giản, những ai yêu thích sự gọn gàng và không gian mở.
Kệ tivi âm tường hoặc hệ tủ tích hợp
Đặc điểm: Đây là giải pháp thiết kế tùy chỉnh, kệ tivi được tích hợp hoàn toàn vào vách tường hoặc là một phần của hệ tủ lớn (tủ quần áo, tủ sách).
Ưu điểm:
- Tối ưu không gian: Giải pháp tối ưu nhất cho không gian, tạo sự liền mạch và gọn gàng tuyệt đối.
- Thẩm mỹ cao: Mang lại vẻ đẹp sang trọng, đẳng cấp và độc đáo, thể hiện sự đầu tư vào thiết kế.
- Đa năng: Tích hợp nhiều chức năng khác nhau trong cùng một hệ thống.
Nhược điểm:
- Chi phí cao: Yêu cầu thiết kế và thi công phức tạp, tốn kém hơn.
- Không linh hoạt: Rất khó thay đổi vị trí hoặc cấu trúc sau khi đã hoàn thiện.
- Cần kế hoạch sớm: Phải được tính toán kỹ lưỡng từ giai đoạn thiết kế ban đầu của phòng ngủ.
Phù hợp với: Các phòng ngủ master, biệt thự, hoặc những gia chủ mong muốn một không gian được thiết kế riêng biệt, đẳng cấp và tối ưu hóa chức năng. Giải pháp này thường được thực hiện bởi các đơn vị thiết kế nội thất chuyên nghiệp như Interstellas.
Lưu ý bổ sung khi chọn kệ tivi phòng ngủ
Ngoài các yếu tố về chiều cao, phong cách và không gian, có một số lưu ý khác cũng rất quan trọng để đảm bảo bạn chọn được chiếc kệ tivi ưng ý nhất cho phòng ngủ của mình.
Sự đồng bộ với màu sắc và ánh sáng
- Màu sắc: Chọn màu kệ tivi hài hòa với màu tường, màu giường, và các đồ nội thất khác. Màu sắc trung tính (trắng, be, xám, gỗ nhạt) thường dễ phối hợp và tạo cảm giác nhẹ nhàng, thư thái cho phòng ngủ. Nếu muốn tạo điểm nhấn, có thể chọn kệ màu đậm hơn nhưng cần đảm bảo không quá tương phản.
- Ánh sáng: Đặt kệ tivi ở vị trí tránh ánh sáng trực tiếp từ cửa sổ hoặc đèn chiếu thẳng vào màn hình, gây chói mắt. Cân nhắc sử dụng đèn LED âm tủ hoặc đèn hắt nhẹ phía sau tivi để tạo hiệu ứng ánh sáng dịu mắt, tăng thêm không khí ấm cúng cho phòng ngủ.
An toàn và độ bền
- Chất liệu: Đảm bảo kệ được làm từ vật liệu chất lượng, có khả năng chịu lực tốt, đặc biệt nếu bạn đặt tivi kích thước lớn. Đối với kệ gỗ công nghiệp, nên chọn loại có khả năng chống ẩm tốt để tăng độ bền.
- Độ chắc chắn: Kệ phải vững chãi, không bị lung lay. Nếu là kệ treo tường, cần đảm bảo tường đủ chắc chắn và kỹ thuật lắp đặt đúng chuẩn để tránh nguy hiểm.
- Cạnh sắc: Kiểm tra các cạnh của kệ, đặc biệt nếu có trẻ nhỏ trong nhà. Nên chọn kệ có các góc bo tròn hoặc được mài nhẵn để đảm bảo an toàn.
Dây điện và phụ kiện
- Quản lý dây điện: Một chiếc kệ tivi đẹp cần có giải pháp quản lý dây điện gọn gàng, ẩn đi các loại dây cáp rườm rà. Nhiều mẫu kệ hiện đại có lỗ luồn dây hoặc khoang chứa dây điện tích hợp.
- Không gian cho phụ kiện: Đảm bảo kệ có đủ không gian cho các thiết bị phụ trợ như đầu thu, loa, bộ phát wifi, hoặc các thiết bị chơi game. Điều này giúp không gian luôn gọn gàng và dễ dàng sử dụng.
Vệ sinh và bảo dưỡng
- Bề mặt dễ lau chùi: Chọn kệ có bề mặt dễ dàng vệ sinh bụi bẩn. Các vật liệu như gỗ phủ melamine, laminate, hoặc kính thường dễ lau chùi hơn.
- Bảo dưỡng: Tìm hiểu cách bảo dưỡng phù hợp cho từng loại vật liệu để giữ cho kệ tivi luôn như mới và bền đẹp theo thời gian.
Việc lưu ý đến những chi tiết nhỏ này sẽ giúp bạn sở hữu một chiếc kệ tivi không chỉ đẹp mà còn tiện nghi, an toàn và bền bỉ, góp phần tạo nên một phòng ngủ hoàn hảo.
Tư vấn chuyên nghiệp từ Interstellas
Việc lựa chọn chiều cao kệ tivi phòng ngủ và thiết kế nội thất nói chung đòi hỏi sự cân nhắc kỹ lưỡng về nhiều yếu tố, từ công năng, thẩm mỹ đến phong thủy và ngân sách. Nếu bạn đang gặp khó khăn trong việc đưa ra quyết định hoặc mong muốn một không gian sống được thiết kế chuyên nghiệp, độc đáo và phù hợp với cá tính riêng, hãy tìm đến sự hỗ trợ từ các chuyên gia.
Với đội ngũ kiến trúc sư và nhà thiết kế nội thất giàu kinh nghiệm, Interstellas cam kết mang đến những giải pháp không gian sống sáng tạo, tối ưu và đáng tin cậy. Chúng tôi không chỉ tư vấn về kích thước, vật liệu mà còn kiến tạo nên những thiết kế hài hòa, phản ánh đúng phong cách và nhu cầu của từng gia chủ. Từ việc lên ý tưởng, phác thảo thiết kế 3D đến thi công hoàn thiện, Interstellas luôn đồng hành cùng bạn để biến những ước mơ về một không gian sống lý tưởng thành hiện thực.
Hãy liên hệ với chúng tôi để được tư vấn chi tiết và khám phá những giải pháp nội thất độc đáo, giúp phòng ngủ của bạn trở thành một không gian hoàn hảo về cả công năng và thẩm mỹ.
Câu hỏi thường gặp về chiều cao kệ tivi phòng ngủ
Tivi 55 inch nên đặt kệ cao bao nhiêu trong phòng ngủ?
Đối với tivi 55 inch, bạn nên đặt kệ sao cho tâm màn hình tivi cách mặt đất khoảng 100 – 110cm khi xem ở tư thế nằm hoặc ngồi tựa lưng trên giường. Chiều cao kệ tivi (tính từ sàn đến mặt kệ) thường dao động từ 50 – 65cm, tùy thuộc vào chiều cao chân đế của tivi và chiều cao giường của bạn. Mục tiêu là đảm bảo tầm nhìn thẳng, không phải cúi hoặc ngửa cổ quá nhiều.
Có nên treo tivi trong phòng ngủ thay vì dùng kệ không?
Có, treo tivi là một lựa chọn tuyệt vời cho phòng ngủ, đặc biệt là phòng ngủ nhỏ hoặc theo phong cách hiện đại, tối giản.
- Ưu điểm: Tiết kiệm không gian sàn, tạo cảm giác gọn gàng, dễ dàng điều chỉnh chiều cao và góc nhìn linh hoạt hơn so với kệ đứng.
- Nhược điểm: Yêu cầu kỹ thuật lắp đặt chắc chắn, không có không gian lưu trữ trực tiếp bên dưới (trừ khi kết hợp với kệ treo tường nhỏ).
Chiều cao kệ tivi có ảnh hưởng đến sức khỏe không?
Có, chiều cao kệ tivi ảnh hưởng trực tiếp đến sức khỏe thị giác và cột sống cổ. Nếu tivi đặt quá cao hoặc quá thấp so với tầm mắt khi xem, bạn sẽ dễ bị mỏi mắt, căng thẳng ở cổ và vai. Về lâu dài, điều này có thể dẫn đến các vấn đề như đau vai gáy mãn tính, đau đầu và giảm thị lực. Việc đặt tivi ở chiều cao tối ưu giúp duy trì tư thế tự nhiên, giảm thiểu căng thẳng cho cơ thể.
Làm thế nào để biết chiều cao kệ tivi đã phù hợp?
Cách tốt nhất để kiểm tra là ngồi hoặc nằm trên giường ở tư thế thoải mái nhất mà bạn thường xem tivi. Quan sát xem tầm mắt của bạn có thẳng hàng với 1/3 dưới hoặc chính giữa màn hình tivi hay không. Nếu bạn không cảm thấy phải cúi, ngửa, hoặc quay đầu quá nhiều để nhìn toàn bộ màn hình, thì chiều cao đó có thể được coi là phù hợp. Hãy thử xem tivi trong khoảng 15-30 phút để kiểm tra mức độ thoải mái thực sự.
Có cần cân nhắc phong thủy khi chọn chiều cao kệ tivi không?
Trong phong thủy, vị trí và chiều cao của các vật dụng nội thất đều có ý nghĩa. Mặc dù không có quy tắc cụ thể về “chiều cao kệ tivi phòng ngủ” theo phong thủy, nhưng việc tạo ra một không gian hài hòa, cân bằng và thoải mái là điều cốt lõi của phong thủy tốt. Tránh đặt tivi đối diện trực tiếp với giường nếu không gian quá hẹp, và đảm bảo sự cân đối về kích thước để không tạo cảm giác áp lực. Nếu có thể, hãy tham khảo ý kiến chuyên gia phong thủy để có những lời khuyên cá nhân hóa phù hợp với mệnh và tuổi của gia chủ.
Việc lựa chọn chiều cao kệ tivi phòng ngủ phù hợp là một yếu tố quan trọng, góp phần tạo nên một không gian nghỉ ngơi lý tưởng, vừa tiện nghi vừa đảm bảo sức khỏe và thẩm mỹ. Bằng cách cân nhắc kỹ lưỡng các yếu tố như tư thế xem, kích thước tivi, diện tích phòng, phong cách thiết kế và vật liệu, bạn có thể đưa ra quyết định tối ưu nhất. Hãy nhớ rằng, một không gian sống hoàn hảo là sự kết hợp hài hòa giữa công năng và vẻ đẹp.
Khám phá thêm các giải pháp nội thất sáng tạo và nhận tư vấn chuyên sâu cho không gian sống của bạn tại Interstellas.com.vn.
















