Việc thiết kế và cách bố trí văn phòng làm việc không chỉ đơn thuần là sắp xếp nội thất mà còn là một nghệ thuật, ảnh hưởng trực tiếp đến năng suất, tinh thần làm việc của đội ngũ và hình ảnh thương hiệu. Một không gian làm việc được bố trí khoa học, thẩm mỹ và tối ưu công năng sẽ tạo dựng môi trường chuyên nghiệp, thúc đẩy sự sáng tạo và gia tăng gắn kết. Bài viết này của Interstellas sẽ cung cấp một cái nhìn toàn diện về các nguyên tắc, yếu tố ảnh hưởng và những ý tưởng đột phá để bạn kiến tạo nên không gian văn phòng lý tưởng.
Tóm Tắt Nhanh Các Nguyên Tắc Bố Trí Văn Phòng Làm Việc Hiệu Quả
Để tối ưu hóa không gian làm việc và thúc đẩy năng suất, việc bố trí văn phòng cần tuân thủ các nguyên tắc cốt lõi sau:
- Phân tích nhu cầu và văn hóa doanh nghiệp: Xác định rõ mục đích sử dụng của từng khu vực, tính chất công việc và văn hóa đặc trưng của công ty để thiết kế không gian phù hợp nhất.
- Tối ưu hóa công năng và diện tích: Sử dụng nội thất thông minh, linh hoạt và tận dụng mọi góc nhỏ để đảm bảo không gian làm việc hiệu quả, tránh lãng phí.
- Đảm bảo sự cân bằng giữa riêng tư và tương tác: Kết hợp hài hòa giữa các khu vực làm việc tập trung, cần sự riêng tư và các không gian mở khuyến khích giao tiếp, hợp tác.
- Chú trọng yếu tố ánh sáng, âm thanh và không khí: Tận dụng ánh sáng tự nhiên, kiểm soát tiếng ồn và đảm bảo hệ thống thông gió tốt để tạo môi trường thoải mái, giảm căng thẳng.
- Phản ánh nhận diện thương hiệu và thẩm mỹ: Thiết kế không gian văn phòng không chỉ đẹp mà còn thể hiện được giá trị, tầm nhìn và bản sắc của doanh nghiệp thông qua màu sắc, vật liệu và phong cách.
03 Yếu Tố Cốt Lõi Ảnh Hưởng Đến Cách Bố Trí Văn Phòng Làm Việc
Để có một cách bố trí văn phòng làm việc tối ưu, các doanh nghiệp cần xem xét kỹ lưỡng ba yếu tố chính: nhu cầu sử dụng, đặc thù ngành nghề và thực trạng mặt bằng. Sự hài hòa giữa ba yếu tố này sẽ tạo nên một không gian không chỉ đẹp mắt mà còn cực kỳ hiệu quả.
Nhu Cầu Sử Dụng Thực Tế
Mỗi doanh nghiệp có những yêu cầu riêng biệt về không gian, phụ thuộc vào quy mô, số lượng nhân sự và loại hình công việc. Việc phân chia các khu vực chức năng cần được cân nhắc kỹ lưỡng để đáp ứng tối đa hiệu suất làm việc.
- Khu vực làm việc của nhân viên: Đây là trái tim của mọi văn phòng. Đối với các công việc đòi hỏi sự tương tác cao, trao đổi liên tục (như agency quảng cáo, phòng marketing), một không gian mở sẽ thúc đẩy giao tiếp và tạo không khí năng động. Ngược lại, nếu công việc yêu cầu sự tập trung cao độ, bảo mật thông tin (như phát triển phần mềm, phòng kế toán, nghiên cứu), các văn phòng đóng hoặc module làm việc riêng tư sẽ là lựa chọn phù hợp. Việc bố trí bàn làm việc theo nhóm, cụm hoặc dãy dài cũng cần dựa trên tính chất hợp tác của từng phòng ban.
- Khu vực làm việc của lãnh đạo: Phòng của lãnh đạo cần được thiết kế với sự riêng tư nhất định để đảm bảo các cuộc họp kín, trao đổi chiến lược và khả năng tập trung cao độ. Đồng thời, không gian này cũng cần thể hiện được vị thế, tầm nhìn và văn hóa của công ty thông qua thiết kế nội thất, vật liệu và cách bài trí. Điều này không chỉ tạo ấn tượng với đối tác mà còn là nguồn cảm hứng cho nhân viên.
- Khu vực phòng họp: Phòng họp là nơi diễn ra các buổi thảo luận, thuyết trình quan trọng. Việc sắp xếp nội thất cần đáp ứng linh hoạt cho nhiều hình thức họp khác nhau, từ họp nhóm nhỏ đến hội nghị lớn. Hệ thống âm thanh, ánh sáng, màn hình trình chiếu và các tiện ích công nghệ khác phải được tích hợp một cách liền mạch, hỗ trợ tối đa cho quá trình trao đổi thông tin.
- Các khu vực khác: Tùy thuộc vào văn hóa và nhu cầu cụ thể của từng công ty, có thể bổ sung các không gian phụ trợ như phòng nghỉ ngơi, khu vực giải trí (phòng gym mini, bàn bi-a), canteen, thư viện hoặc khu vực thiền định. Những không gian này đóng vai trò quan trọng trong việc tái tạo năng lượng, giảm căng thẳng và tăng cường gắn kết giữa các thành viên, góp phần tạo nên một môi trường làm việc toàn diện.
Đặc Thù Ngành Nghề Hoạt Động
Ngành nghề hoạt động của doanh nghiệp đóng vai trò định hình phong cách và cách bố trí văn phòng làm việc tổng thể.
<>Xem Thêm Bài Viết:<>- **Trường THPT Đỗ Mười ở đâu: Cập nhật vị trí và tiện ích**
- Hướng Đông Tứ Trạch Hợp Với Tuổi Nào? Chọn Cửa Chính Đón Vượng Khí
- Chung Cư Mễ Trì Hạ: Tổng Quan Thị Trường Và Cơ Hội An Cư Lý Tưởng
- Tuấn Cry Quê Ở Đâu? Hành Trình Âm Nhạc Của Nam Ca Sĩ
- Giải Mã **0248 Là Mạng Gì Ở Đâu** Và Cách Phòng Tránh Lừa Đảo
- Công ty công nghệ, doanh nghiệp trẻ: Các doanh nghiệp này thường hướng đến mô hình văn phòng mở, linh hoạt với thiết kế hiện đại, nhiều màu sắc và không gian tương tác sáng tạo. Mục tiêu là khuyến khích sự đổi mới, hợp tác và tạo cảm giác thoải mái, gần gũi cho nhân viên. Các khu vực giải trí, thư giãn được tích hợp để kích thích tư duy và giảm áp lực.
- Các công ty ngân hàng, tài chính hoặc lĩnh vực truyền thống: Thường ưu tiên sự nghiêm túc, chuyên nghiệp và bảo mật. Kiểu bố trí văn phòng đóng với các phòng ban riêng biệt, vách ngăn kín đáo được ưa chuộng để đảm bảo tính riêng tư và an toàn thông tin. Phong cách thiết kế thường mang tính sang trọng, tối giản và đề cao sự tin cậy.
- Văn phòng Hybrid (Làm việc kết hợp): Đây là xu hướng ngày càng phổ biến, đặc biệt sau đại dịch. Mô hình này ưu tiên không gian làm việc linh hoạt, đa chức năng, nơi nhân viên có thể lựa chọn làm việc tại nhà hoặc đến văn phòng tùy theo nhu cầu. Các khu vực co-working, phòng họp nhỏ và không gian cá nhân linh động là những đặc điểm chính, giảm sự phụ thuộc vào các tiện nghi cố định cho từng cá nhân.
Thực Trạng Mặt Bằng
Cách bố trí văn phòng làm việc cần phải hài hòa với diện tích và kết cấu của mặt bằng hiện có để đảm bảo cả công năng lẫn thẩm mỹ.
- Văn phòng có mặt bằng vuông vức: Với mặt bằng vuông vức, không gian dễ dàng chia cắt và sắp xếp. Tuy nhiên, nếu diện tích không quá lớn, việc bố trí cần tính toán kỹ lưỡng để tối ưu từng góc nhỏ. Chẳng hạn, khu vực lễ tân có thể tận dụng bức tường của phòng họp làm backdrop, giúp tiết kiệm diện tích mà vẫn tạo điểm nhấn. Phòng họp được thiết kế như một khối hộp độc đáo có thể tạo ấn tượng thị giác mạnh mẽ. Hành lang có thể biến thành “History Wall” với các không gian tương tác đặt ở lối vào và khu vực bổ trợ ở cuối để tạo sự bất ngờ, thú vị.
- Văn phòng có hình dạng đặc biệt (chữ L, chữ U, không gian không tập trung): Những mặt bằng này đòi hỏi sự sáng tạo hơn trong bố trí. Ví dụ, với mặt bằng hình chữ U, việc tách biệt khu vực làm việc chung và các khu chức năng như phòng họp, phòng đọc, phòng training ở hai nhánh chữ U sẽ rất hợp lý. Khu vực pantry hoặc co-working có thể đóng vai trò là điểm tiếp nối, tạo sự hài hòa và liên kết. Tận dụng các góc không gian để bố trí nhiều điểm tương tác giúp khuyến khích các hoạt động giao lưu, sinh hoạt chung.
- Văn phòng có diện tích nhỏ: Tập trung vào thiết kế mở, sử dụng nội thất đa năng, tối giản để không gian không bị chật chội. Sử dụng gam màu sáng, gương và vách kính để tạo cảm giác rộng rãi hơn.
- Văn phòng có diện tích lớn: Có thể chia thành nhiều khu vực chức năng rõ ràng hơn, bao gồm cả các khu vực thư giãn, giải trí. Tuy nhiên, cần chú ý đến việc tạo sự kết nối giữa các khu vực để tránh cảm giác cô lập.
Mỗi yếu tố trên đều đóng vai trò quan trọng trong việc lên kế hoạch cách bố trí văn phòng làm việc hợp lý. Để đạt hiệu quả toàn diện, việc bố trí nội thất cần đảm bảo sự cân đối, hài hòa, hướng đến mục tiêu tối ưu nhu cầu nhưng cũng phải phù hợp điều kiện thực tế của không gian.
Các Nguyên Tắc Vàng Khi Bố Trí Không Gian Văn Phòng Làm Việc Hiện Đại
Ngoài các yếu tố ảnh hưởng, để tạo nên một không gian làm việc thực sự hiệu quả và bền vững, các doanh nghiệp cần tuân thủ một số nguyên tắc thiết kế cốt lõi. Đây là những kim chỉ nam giúp định hình một môi trường làm việc chuyên nghiệp và truyền cảm hứng.
Đảm Bảo Công Năng Sử Dụng và Phù Hợp Ngành Nghề
Nguyên tắc đầu tiên và quan trọng nhất là đảm bảo mỗi khu vực trong văn phòng đều phục vụ đúng công năng đã định và phù hợp với tính chất môi trường làm việc đặc thù của từng lĩnh vực. Ví dụ, một phòng thí nghiệm cần trang bị các thiết bị chuyên dụng và hệ thống an toàn nghiêm ngặt, trong khi một văn phòng sáng tạo có thể ưu tiên các bảng viết ý tưởng di động và không gian thảo luận linh hoạt. Việc này giúp tối đa hóa hiệu suất làm việc và tránh lãng phí nguồn lực vào những tiện ích không cần thiết.
Tạo Tính Kết Nối Không Gian và Lưu Thông Hiệu Quả
Sự kết nối giữa các khu vực và phòng ban làm việc là yếu tố then chốt, đặc biệt là giữa các bộ phận có mối liên quan nghiệp vụ chặt chẽ. Cách bố trí văn phòng làm việc nên tạo ra các hành lang thông thoáng, không gian chung dễ tiếp cận để khuyến khích sự giao tiếp, trao đổi ý tưởng và tăng cường tinh thần đồng đội. Tuy nhiên, cũng cần cân bằng với nhu cầu riêng tư, đảm bảo không gian cá nhân khi cần thiết.

Có thể bạn quan tâm: Màu Vàng Đất Hợp Mệnh Gì? Giải Pháp Thiết Kế Nội Thất Phong Thủy
Tối Ưu Mặt Bằng và Sử Dụng Nội Thất Thông Minh
Trong bối cảnh chi phí thuê mặt bằng ngày càng tăng, việc tối ưu hóa diện tích là cực kỳ quan trọng. Lựa chọn nội thất thông minh, có thiết kế đa năng và khả năng di động sẽ giúp tiết kiệm không gian và dễ dàng điều chỉnh khi có nhu cầu thay đổi. Bàn làm việc có thể gấp gọn, vách ngăn di động, tủ âm tường hoặc các giải pháp lưu trữ tích hợp là những ví dụ điển hình. Mục tiêu là tạo ra một không gian linh hoạt, có thể biến đổi theo các tình huống làm việc khác nhau.
Bố Cục Hài Hòa, Thoáng Mát và Ngăn Nắp
Một văn phòng lý tưởng cần có bố cục bài trí hài hòa, tạo cảm giác thoáng mát, ngăn nắp và gọn gàng. Điều này không chỉ tăng tính thẩm mỹ mà còn ảnh hưởng trực tiếp đến tâm trạng và khả năng tập trung của nhân viên. Tránh việc nhồi nhét quá nhiều nội thất, giữ cho lối đi luôn thông thoáng và đảm bảo các vật dụng được sắp xếp có trật tự. Màu sắc và ánh sáng cũng đóng vai trò quan trọng trong việc tạo cảm giác rộng rãi và dễ chịu.
Đảm Bảo Sự Thống Nhất và Đồng Điệu Trong Phong Cách Thiết Kế
Phong cách thiết kế văn phòng nên có sự thống nhất và đồng điệu trên toàn bộ không gian. Điều này giúp tạo nên một hình ảnh chuyên nghiệp, nhất quán và thể hiện rõ nét văn hóa doanh nghiệp. Từ khu vực lễ tân đến các phòng ban làm việc, phòng họp hay khu vực giải trí, mọi chi tiết đều nên theo một chủ đề thiết kế chung. Sự đồng điệu này không chỉ mang lại giá trị thẩm mỹ mà còn củng cố nhận diện thương hiệu.
Đáp Ứng Các Tiêu Chuẩn Về Âm Thanh, Ánh Sáng và An Toàn

Có thể bạn quan tâm: Tổng Hợp Mẫu Bàn Ghế Âu Á Đẹp Nhất Được Ưa Chuộng Hiện Nay
Môi trường làm việc cần đảm bảo các tiêu chuẩn về âm thanh, ánh sáng và an toàn để tối đa hóa hiệu quả công việc và bảo vệ sức khỏe nhân viên. Ánh sáng tự nhiên nên được tận dụng tối đa, kết hợp với hệ thống chiếu sáng nhân tạo phù hợp để tránh mỏi mắt. Việc kiểm soát tiếng ồn bằng vật liệu cách âm, vách ngăn phù hợp là cần thiết, đặc biệt trong các không gian mở. Ngoài ra, các yếu tố an toàn như hệ thống phòng cháy chữa cháy, lối thoát hiểm, và tiêu chuẩn về chất lượng không khí cũng phải được ưu tiên hàng đầu.
Đề Cao Yếu Tố Trải Nghiệm và Không Gian Nghỉ Ngơi

Có thể bạn quan tâm: Lựa Chọn Bàn Tiếp Khách Nhỏ Gọn Cho Không Gian Hẹp: Hướng Dẫn Chi Tiết
Một cách bố trí văn phòng làm việc hiện đại phải đề cao trải nghiệm của con người. Cần tạo ra các không gian nghỉ ngơi, thư giãn cho nhân viên để họ có thể tái tạo sức lao động sau những giờ làm việc căng thẳng. Các khu vực lounge, phòng thiền, hoặc thậm chí là góc đọc sách yên tĩnh sẽ giúp nhân viên cảm thấy được quan tâm, từ đó tăng cường sự gắn bó và năng suất.
Kết Hợp Yếu Tố Cây Xanh Để Cải Thiện Môi Trường Làm Việc
Cây xanh không chỉ làm đẹp không gian mà còn cải thiện chất lượng không khí, giảm căng thẳng và tăng cường sự tập trung. Việc đưa cây xanh vào văn phòng, dù là cây cảnh nhỏ trên bàn làm việc, các chậu cây lớn ở góc phòng, hay một bức tường xanh thẳng đứng, đều mang lại lợi ích to lớn về mặt sức khỏe và tinh thần, tạo nên một môi trường làm việc gần gũi với thiên nhiên.
Gợi Ý Các Cách Bố Trí Văn Phòng Làm Việc Theo Diện Tích và Xu Hướng
Dựa trên đặc điểm diện tích mặt sàn và các xu hướng thiết kế hiện đại, có nhiều cách bố trí văn phòng làm việc để doanh nghiệp lựa chọn, mỗi phương án mang lại những ưu điểm và thách thức riêng.
Bố Trí Văn Phòng Làm Việc Không Gian Mở (Open-plan Office)
Văn phòng không gian mở là mô hình phổ biến, lựa chọn giản lược tường và vách ngăn phân chia để mang đến sự rộng rãi, thông thoáng cho khu vực làm việc chung.
- Ưu điểm:
- Tăng tương tác và kết nối: Mô hình này thúc đẩy giao tiếp trực tiếp, trao đổi ý tưởng nhanh chóng giữa các nhân viên và phòng ban, tạo môi trường làm việc thống nhất, đoàn kết.
- Tính linh hoạt cao: Dễ dàng điều chỉnh kết cấu khi có sự thay đổi về số lượng nhân sự hoặc yêu cầu công việc. Việc di chuyển bàn ghế, thêm/bớt khu vực làm việc trở nên đơn giản hơn.
- Tận dụng tối ưu ánh sáng tự nhiên: Giúp không gian văn phòng thông thoáng, giảm phụ thuộc vào ánh sáng nhân tạo, tiết kiệm năng lượng.
- Tiết kiệm chi phí: Giảm chi phí thi công, tu sửa do ít tường ngăn, cũng như tiết kiệm năng lượng chiếu sáng và điều hòa.
- Nhược điểm:
- Tiếng ồn: Môi trường làm việc chung với nhiều người dễ gây ra tiếng ồn, ảnh hưởng đến sự tập trung. Cần có giải pháp cách âm hoặc khu vực làm việc yên tĩnh riêng.
- Mất quyền riêng tư: Thiếu vách ngăn có thể khiến nhân viên cảm thấy thiếu riêng tư, khó tập trung vào công việc cá nhân.
- Ý tưởng bố trí: Sử dụng vách ngăn thấp, tủ tài liệu làm vách ngăn, hoặc các mô-đun làm việc linh hoạt. Bố trí các khu vực co-working, khu vực lounge để thư giãn. Sử dụng vật liệu hút âm như thảm, tấm tiêu âm để giảm tiếng ồn.
- Interstellas gợi ý: Tích hợp các “phone booth” hoặc phòng họp nhỏ cách âm để nhân viên có không gian riêng tư khi cần thực hiện cuộc gọi hoặc làm việc tập trung.
Bố Trí Văn Phòng Làm Việc Không Gian Đóng (Closed-plan Office)

Ngược lại với không gian mở, phương án bố trí văn phòng không gian đóng sử dụng tường ngăn, vách phân chia hoặc thiết kế thành phòng làm việc riêng biệt.
- Ưu điểm:
- Đảm bảo tính riêng tư và bảo mật: Ngăn chặn rủi ro lộ các tài liệu quan trọng hoặc thông tin cá nhân của khách hàng, phù hợp với các ngành nghề yêu cầu bảo mật cao.
- Kiểm soát tiếng ồn hiệu quả: Giúp nhân viên có thể tập trung hơn vào công việc mà không bị xao nhãng bởi tiếng ồn xung quanh.
- Thể hiện cấp bậc, vị thế: Dễ dàng thiết kế các phòng ban, phòng lãnh đạo riêng biệt, thể hiện rõ ràng cơ cấu tổ chức.
- Nhược điểm:
- Hạn chế tương tác: Tạo sự ngăn cách, cô lập, hạn chế các tương tác tự nhiên trong tập thể.
- Lãng phí diện tích: Việc sử dụng nhiều vách ngăn và tường có thể gây lãng phí diện tích, đặc biệt với văn phòng nhỏ.
- Khó khăn trong quản lý: Giảm khả năng giám sát và quản lý nhân viên từ xa.
- Thiếu linh hoạt: Khi cần điều chỉnh không gian sẽ mất nhiều công sức, thời gian và chi phí để sửa chữa.
- Ý tưởng bố trí: Sử dụng vách kính cường lực để vẫn đảm bảo sự riêng tư nhưng không gây cảm giác bí bách hoàn toàn. Thiết kế các cửa ra vào tiện lợi và hệ thống điều hòa không khí riêng cho từng phòng.
Bố Trí Văn Phòng Làm Việc Linh Hoạt (Hybrid Office)

Văn phòng Hybrid là ý tưởng bố trí tự do, chủ động tùy thuộc vào các nhu cầu làm việc tại chỗ, thay đổi vị trí làm việc ở công ty hoặc làm việc từ xa của nhân viên. Đây là một trong những cách bố trí văn phòng làm việc tiên tiến nhất.
- Ưu điểm:
- Tận dụng công nghệ hiện đại: Nâng cao hiệu suất và tăng độ linh hoạt, tính chủ động trong công việc.
- Tạo không gian thoải mái, linh hoạt: Gợi mở cảm hứng sáng tạo cho nhân viên, cho phép họ lựa chọn môi trường làm việc phù hợp nhất với nhiệm vụ của mình.
- Tăng sức hút với người lao động: Đặc biệt là những đối tượng có nhu cầu làm việc từ xa hoặc mong muốn sự cân bằng giữa công việc và cuộc sống.
- Tiết kiệm chi phí vận hành: Giảm diện tích sử dụng mặt bằng cố định do không phải lúc nào cũng có đủ nhân viên ở văn phòng.
- Nhược điểm:
- Hạn chế tương tác chung: Có thể làm giảm các tương tác tự nhiên, ngẫu hứng trong tập thể.
- Khó khăn trong quản lý: Yêu cầu hệ thống quản lý nhân sự và công việc hiệu quả để theo dõi hiệu suất.
- Ý tưởng bố trí: Kết hợp các khu vực co-working lớn, khu vực lounge, phòng họp nhỏ linh hoạt và các “hot desk” (bàn làm việc không cố định). Tích hợp công nghệ đặt chỗ làm việc, hệ thống hội nghị trực tuyến tiên tiến.
Bố Trí Văn Phòng Làm Việc Nhỏ Khoa Học

Với diện tích khiêm tốn, cách bố trí văn phòng làm việc nhỏ cần đặc biệt chú trọng sự khoa học và tối giản để tối ưu hóa từng mét vuông.
- Ưu điểm:
- Tăng tương tác và mức độ gắn kết: Môi trường nhỏ dễ tạo cảm giác gần gũi, thân thiện, thúc đẩy sự hợp tác.
- Thuận lợi cho quản lý: Dễ dàng quản lý nhân sự và các đội nhóm.
- Tiết kiệm thời gian di chuyển: Mọi thứ đều trong tầm với, giảm thời gian đi lại.
- Nhược điểm:
- Hạn chế về không gian: Khó bài trí quá nhiều nội thất, trang thiết bị.
- Khó khăn tổ chức sự kiện lớn: Không phù hợp cho các hoạt động tập thể quy mô lớn.
- Dễ gây cảm giác bí bách: Nếu không được thiết kế khéo léo, không gian có thể trở nên chật chội.
- Ý tưởng bố trí:
- Sử dụng nội thất đa năng: Bàn làm việc tích hợp ngăn kéo, ghế có thể xếp gọn, tủ âm tường.
- Màu sắc tươi sáng: Dùng các gam màu trắng, be, pastel để tạo cảm giác rộng rãi.
- Tận dụng ánh sáng tự nhiên: Kính lớn, cửa sổ để không gian thoáng đãng.
- Bố trí mở: Giảm tối đa vách ngăn, tường cứng. Sử dụng vách ngăn kính hoặc kệ mở để phân chia khu vực.
- Gương: Đặt gương ở vị trí hợp lý để “nhân đôi” không gian.
- Interstellas gợi ý: Hãy cân nhắc các mẫu bàn làm việc module nhỏ gọn, dễ dàng sắp xếp lại khi cần.
Bố Trí Văn Phòng Làm Việc Lớn Khoa Học

Cách bố trí văn phòng làm việc lớn đòi hỏi sự thông minh để tận dụng các khoảng không đắt giá, không chỉ giúp không gian đẹp mắt, hài hòa mà còn đảm bảo tiện nghi đầy đủ, giúp nhân viên làm việc hiệu quả.
- Ưu điểm:
- Không gian rộng rãi, thoải mái: Cho phép thiết kế nhiều khu vực đa dạng.
- Tích hợp nhiều tiện ích: Có thể bao gồm phòng gym, khu vực giải trí, thư viện, quán cà phê mini…
- Tổ chức sự kiện quy mô lớn: Dễ dàng tổ chức các buổi hội thảo, gala, họp mặt toàn công ty.
- Nhược điểm:
- Chi phí đầu tư cao: Cho thiết bị công nghệ và sản phẩm nội thất.
- Khó tạo bầu không khí thân thiện: Không gian quá rộng có thể khiến nhân viên cảm thấy cô lập.
- Dễ bị xao nhãng bởi tiếng ồn: Nếu không có giải pháp âm thanh hợp lý, tiếng ồn có thể vọng khắp không gian.
- Ý tưởng bố trí:
- Chia vùng chức năng rõ ràng: Sử dụng cây xanh lớn, vách ngăn nghệ thuật hoặc thảm để phân định các khu vực.
- Tạo “làng” hoặc “khu phố” làm việc: Chia không gian thành các khu vực nhỏ hơn, có bản sắc riêng cho từng phòng ban để tạo cảm giác gần gũi.
- Đầu tư vào acoustics: Sử dụng tấm tiêu âm, trần thạch cao tiêu âm, rèm cửa dày để kiểm soát tiếng ồn.
- Tích hợp các không gian chung: Khu vực lounge, pantry lớn, phòng họp đa chức năng để khuyến khích giao tiếp.
- Interstellas gợi ý: Cân nhắc tạo các “điểm đến” trong văn phòng như thư viện nhỏ, khu vực chơi game để khuyến khích nhân viên di chuyển và tương tác.
Gợi Ý Các Cách Bố Trí Văn Phòng Làm Việc Theo Sở Thích và Phong Cách

Ngoài các yếu tố về diện tích và xu hướng, cách bố trí văn phòng làm việc còn có thể được định hình bởi sở thích và định hướng phong cách của từng thương hiệu, tạo nên những không gian độc đáo và ấn tượng.
Bố Trí Văn Phòng Với Cây Xanh (Biophilic Design)

Lựa chọn bài trí thêm cây xanh không chỉ cải thiện chất lượng không khí mà còn mang đến sự hài hòa, thân thiện, gần gũi cho không gian văn phòng. Từ đó, giúp tập thể nhân viên thấy thoải mái, thư giãn để làm việc hiệu quả tốt hơn.
- Chi tiết: Phong cách này tích hợp các yếu tố tự nhiên như cây xanh, ánh sáng tự nhiên, vật liệu gỗ, đá vào thiết kế nội thất. Cây xanh có thể xuất hiện dưới dạng chậu cây nhỏ trên bàn, tường cây xanh lớn, giếng trời với vườn nhỏ, hoặc các hành lang xanh.
- Lợi ích: Giảm căng thẳng, tăng cường sự tập trung, cải thiện chất lượng không khí, tạo cảm giác thư thái và nguồn cảm hứng sáng tạo.
- Interstellas gợi ý: Sử dụng các loại cây dễ chăm sóc, phù hợp với môi trường văn phòng như trầu bà, lưỡi hổ, kim tiền. Đảm bảo ánh sáng và độ ẩm phù hợp cho cây phát triển.
Bố Trí Văn Phòng Với Nhiều Hình Khối Sáng Tạo, Độc Đáo

Kết cấu hình khối phá cách được ứng dụng khéo léo trong cách bố trí văn phòng làm việc có thể tạo nên dấu ấn đặc sắc, làm nổi bật phong cách cá tính, sáng tạo của thương hiệu.
- Chi tiết: Sử dụng các hình khối hình học độc đáo trong kiến trúc nội thất, đồ đạc, vách ngăn hoặc trần nhà. Các đường nét góc cạnh, bất đối xứng, hoặc các hình dạng hữu cơ có thể tạo ra hiệu ứng thị giác mạnh mẽ.
- Lợi ích: Tạo không gian năng động, hiện đại, thể hiện sự phá cách và tinh thần đổi mới của doanh nghiệp. Kích thích tư duy sáng tạo cho nhân viên.
- Interstellas gợi ý: Kết hợp các đồ nội thất có hình khối lạ mắt với ánh sáng phù hợp để tạo điểm nhấn ấn tượng.
Bố Trí Văn Phòng Theo Xu Hướng Thoải Mái, Độc Đáo (Creative & Comfort)

Lựa chọn kết cấu văn phòng bài trí theo xu hướng thoải mái, độc đáo có thể mang đến môi trường làm việc linh hoạt, tạo điều kiện nhân viên sáng tạo năng nổ hơn.
- Chi tiết: Tập trung vào việc tạo ra các khu vực làm việc không giống văn phòng truyền thống, với ghế sofa êm ái, bàn cà phê, các góc đọc sách ấm cúng. Thiết kế này khuyến khích sự tự do, phá bỏ rào cản giữa công việc và giải trí.
- Lợi ích: Tăng sự hài lòng của nhân viên, thúc đẩy sự sáng tạo và tương tác không chính thức, tạo cảm giác như làm việc ở nhà hoặc quán cà phê.
- Interstellas gợi ý: Sử dụng vật liệu thân thiện, màu sắc ấm áp, và các yếu tố trang trí cá nhân hóa để không gian trở nên gần gũi hơn.
Bố Trí Văn Phòng Theo Hướng Tập Trung, Hợp Tác (Collaborative Hub)

Phương án cách bố trí văn phòng làm việc tập trung vào hợp tác giúp tăng tính kết nối trong tập thể, đảm bảo các hoạt động trao đổi, tương tác ở công ty hiệu quả, giúp tăng năng suất làm việc nhóm.
- Chi tiết: Thiết kế tập trung vào các khu vực chung lớn, bàn làm việc nhóm, phòng họp nhỏ có thể dễ dàng chuyển đổi công năng. Mục tiêu là tạo ra nhiều cơ hội để nhân viên làm việc cùng nhau, chia sẻ ý tưởng và giải quyết vấn đề.
- Lợi ích: Nâng cao hiệu quả làm việc nhóm, thúc đẩy tinh thần đồng đội, tăng cường khả năng học hỏi lẫn nhau.
- Interstellas gợi ý: Trang bị bảng viết lớn, màn hình tương tác, và các công cụ hỗ trợ cộng tác kỹ thuật số tại các khu vực chung.
Gợi Ý Các Cách Bố Trí Không Gian Làm Việc Chức Năng Cụ Thể

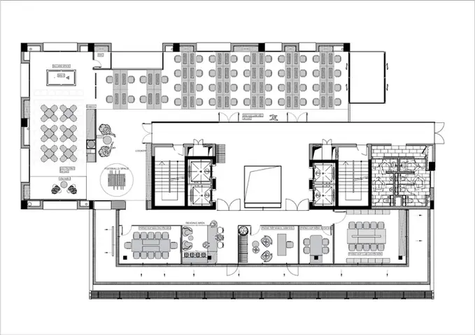
Việc bố trí các không gian chức năng cụ thể trong văn phòng đóng vai trò quan trọng trong việc đảm bảo hiệu quả làm việc, tạo ấn tượng với khách hàng và thể hiện đẳng cấp của doanh nghiệp. Mỗi khu vực cần được thiết kế tỉ mỉ, đáp ứng yêu cầu riêng biệt.
Bố Trí Sảnh Văn Phòng, Hành Lang và Quầy Lễ Tân

Sảnh văn phòng, hành lang và quầy lễ tân là những không gian đầu tiên khách hàng và đối tác tiếp xúc khi đến công ty. Cách bố trí văn phòng làm việc tại khu vực này cần hợp lý, hài hòa với nội thất tổng thể để tạo nên tính kết nối trong không gian và thể hiện dấu ấn của thương hiệu.
- Quầy lễ tân: Nên được đặt ở vị trí dễ nhìn thấy ngay khi bước vào, với thiết kế hiện đại, chuyên nghiệp, phản ánh nhận diện thương hiệu. Chất liệu, màu sắc và logo công ty cần được thể hiện tinh tế.
- Khu vực chờ: Bố trí ghế sofa thoải mái, bàn cà phê nhỏ, tài liệu giới thiệu công ty hoặc màn hình hiển thị thông tin để khách chờ có trải nghiệm dễ chịu.
- Sảnh và hành lang: Giữ không gian thông thoáng, sạch sẽ. Sử dụng ánh sáng phù hợp và trang trí nghệ thuật (tranh ảnh, cây xanh) để tạo cảm giác thân thiện và chuyên nghiệp.
- Interstellas gợi ý: Tích hợp hệ thống chiếu sáng thông minh và các vật liệu cao cấp như đá marble, gỗ tự nhiên để tăng tính sang trọng cho khu vực này.
Bố Trí Văn Phòng Lãnh Đạo Sang Trọng, Đẳng Cấp

Cách bố trí văn phòng làm việc của lãnh đạo cần sử dụng chất liệu cao cấp và tiện nghi vừa đủ để đảm bảo công năng phục vụ công việc đặc thù và vị thế của người đứng đầu trong doanh nghiệp.
- Bàn làm việc: Chọn bàn rộng rãi, làm từ chất liệu cao cấp (gỗ tự nhiên, da) thể hiện sự quyền uy và chuyên nghiệp. Vị trí bàn nên hướng ra cửa sổ hoặc có tầm nhìn bao quát.
- Ghế làm việc: Ghế giám đốc cần có thiết kế ergonomic, thoải mái và sang trọng, hỗ trợ sức khỏe khi làm việc lâu dài.
- Khu vực tiếp khách: Bố trí bộ sofa nhỏ, lịch sự để tiếp đón đối tác, khách hàng.
- Hệ thống lưu trữ: Tủ tài liệu âm tường hoặc kệ sách lớn để giữ không gian gọn gàng, ngăn nắp.
- Trang trí: Sử dụng tranh nghệ thuật, vật phẩm phong thủy hoặc các vật dụng cá nhân thể hiện phong cách của lãnh đạo, nhưng vẫn giữ được sự tinh tế, sang trọng.
- Interstellas gợi ý: Hãy chú ý đến yếu tố phong thủy trong việc sắp xếp bàn làm việc, hướng ngồi để thu hút năng lượng tích cực và may mắn.
Bố Trí Văn Phòng Họp Đẹp và Hiệu Quả

Ý tưởng cách bố trí văn phòng làm việc cho không gian phòng họp đẹp với nội thất hiện đại, màu sắc trang nhã thể hiện sự chuyên nghiệp, nghiêm túc, phù hợp với các hoạt động trao đổi, tổng kết, đánh giá nội bộ tại công ty.
- Bàn họp: Có nhiều lựa chọn về hình dạng (chữ nhật, oval, tròn) tùy theo số lượng người tham gia và tính chất cuộc họp. Bàn lớn cho các cuộc họp quan trọng, bàn nhỏ linh hoạt cho họp nhóm.
- Ghế họp: Chọn ghế thoải mái, có khả năng di chuyển linh hoạt, đồng bộ với phong cách chung của phòng.
- Hệ thống công nghệ: Trang bị màn hình trình chiếu lớn, hệ thống âm thanh chất lượng cao, camera hội nghị trực tuyến, bảng viết điện tử để hỗ trợ tối đa các buổi thuyết trình và trao đổi.
- Ánh sáng: Đảm bảo đủ ánh sáng, có thể điều chỉnh độ sáng để phù hợp với việc trình chiếu.
- Cách âm: Đầu tư vào vật liệu cách âm để đảm bảo sự riêng tư và tránh tiếng ồn làm ảnh hưởng đến các khu vực khác.
- Interstellas gợi ý: Tích hợp các cổng sạc điện thoại, máy tính ngay trên bàn họp để tăng tính tiện nghi.
Interstellas – Kiến Tạo Không Gian Văn Phòng Ưu Việt

Tại Interstellas, chúng tôi hiểu rằng cách bố trí văn phòng làm việc không chỉ là việc sắp xếp đồ đạc mà là nghệ thuật kiến tạo nên một hệ sinh thái làm việc năng động, hiệu quả và truyền cảm hứng. Mỗi dự án là một cơ hội để chúng tôi thể hiện chuyên môn sâu sắc và sự tận tâm, mang đến những giải pháp tối ưu nhất cho không gian của bạn. Chúng tôi tin rằng một văn phòng được thiết kế chu đáo sẽ góp phần nâng tầm thương hiệu, thu hút nhân tài và thúc đẩy sự phát triển bền vững.
Phần Kết

Hy vọng rằng những thông tin chi tiết về các nguyên tắc, yếu tố ảnh hưởng và ý tưởng đa dạng trong cách bố trí văn phòng làm việc đã cung cấp cho bạn cái nhìn toàn diện và sâu sắc. Từ việc phân tích nhu cầu, lựa chọn phong cách đến bố trí từng khu vực chức năng, mỗi quyết định đều góp phần kiến tạo nên một không gian làm việc không chỉ thẩm mỹ mà còn tối ưu hóa hiệu suất và truyền cảm hứng. Một văn phòng được thiết kế khoa học chính là nền tảng vững chắc cho sự phát triển của mọi doanh nghiệp.





































