Việc sở hữu một không gian sống tiện nghi, thẩm mỹ và phù hợp với nhu cầu của gia đình luôn là ước mơ của nhiều gia chủ. Trong đó, bản vẽ thiết kế nhà 3 phòng ngủ đóng vai trò nền tảng, định hình toàn bộ cấu trúc, công năng và phong cách của ngôi nhà. Bài viết này sẽ cung cấp cái nhìn toàn diện về các yếu tố cần cân nhắc, từ việc lựa chọn loại hình kiến trúc, phong cách thiết kế cho đến những phân tích chuyên sâu về mặt bằng công năng và phối cảnh, giúp bạn kiến tạo tổ ấm lý tưởng một cách khoa học và hiệu quả.
Những yếu tố cốt lõi trong thiết kế nhà 3 phòng ngủ
Để có một bản vẽ thiết kế nhà 3 phòng ngủ tối ưu, gia chủ cần xác định rõ những yêu cầu và điều kiện ban đầu. Điều này không chỉ giúp định hướng quá trình thiết kế mà còn đảm bảo công trình sau khi hoàn thiện sẽ đáp ứng đầy đủ mong đợi, tránh những phát sinh không đáng có.
Những yếu tố quan trọng nhất bao gồm diện tích và hình dáng khu đất, nhu cầu sử dụng của các thành viên, ngân sách đầu tư dự kiến và đặc biệt là các yếu tố phong thủy. Một sự chuẩn bị kỹ lưỡng sẽ là chìa khóa để kiến tạo nên một không gian sống hài hòa, tiện nghi và bền vững.

Có thể bạn quan tâm: Vẽ Phối Cảnh Căn Phòng Khách: Hướng Dẫn Chi Tiết A-z
Tầm quan trọng của bản vẽ thiết kế nhà 3 phòng ngủ chuyên nghiệp
Một bản vẽ thiết kế nhà 3 phòng ngủ không chỉ là những đường nét trên giấy mà là cầu nối giữa ý tưởng và hiện thực, đảm bảo mọi khía cạnh của ngôi nhà được tính toán kỹ lưỡng. Đây là công cụ không thể thiếu để kiến tạo một không gian sống vừa đẹp mắt, vừa tiện nghi và bền vững.
<>Xem Thêm Bài Viết:<>- Khám phá tổ ấm Lê Dương Bảo Lâm ở đầu Đồng Nai
- Giá Chung Cư Matrix One: Yếu Tố Định Giá & Cơ Hội Đầu Tư
- Tìm Hiểu Vị Trí Trường Học Viện Quốc Tế – Bộ Công An Ở Đâu
- Địa Chỉ Mua Thuốc Kích Dục Nam An Toàn Ở Đâu?
- 43 Biển Số Ở Đâu? Giải Mã Ký Hiệu Độc Đáo Của Thành Phố Đà Nẵng
Đảm bảo công năng và tiện nghi tối đa
Bản vẽ thiết kế nhà 3 phòng ngủ chi tiết sẽ phân chia không gian một cách khoa học, đảm bảo mỗi khu vực đều có công năng rõ ràng và tối ưu. Các kiến trúc sư sẽ cân nhắc vị trí phòng khách, bếp, phòng ăn, phòng ngủ, khu vệ sinh sao cho thuận tiện di chuyển, đáp ứng tối đa nhu cầu sinh hoạt của gia đình. Hơn nữa, việc bố trí hợp lý còn giúp tạo luồng không khí và ánh sáng tự nhiên tốt, mang lại môi trường sống trong lành và thoải mái.
Tối ưu chi phí và thời gian thi công
Khi có một bản vẽ rõ ràng, việc dự toán chi phí vật liệu và nhân công sẽ chính xác hơn, giúp gia chủ kiểm soát ngân sách hiệu quả và tránh lãng phí. Bên cạnh đó, các bản vẽ kỹ thuật chi tiết sẽ hướng dẫn đội ngũ thi công một cách nhất quán, giảm thiểu sai sót và rút ngắn thời gian xây dựng. Điều này đặc biệt quan trọng để đảm bảo tiến độ công trình và tránh các chi phí phát sinh không mong muốn.
Định hình phong cách và giá trị thẩm mỹ
Bản vẽ thiết kế nhà 3 phòng ngủ không chỉ giải quyết vấn đề công năng mà còn là nơi thể hiện cá tính và phong cách của gia chủ. Từ việc lựa chọn hình khối kiến trúc, màu sắc ngoại thất đến từng chi tiết nội thất, tất cả đều được thể hiện rõ ràng trên bản vẽ. Một thiết kế hài hòa, mang tính thẩm mỹ cao sẽ nâng tầm giá trị ngôi nhà, tạo ấn tượng mạnh mẽ và là niềm tự hào của mỗi gia đình.
Những yếu tố cần cân nhắc trước khi lên bản vẽ thiết kế nhà 3 phòng ngủ
Để có một bản vẽ thiết kế nhà 3 phòng ngủ thực sự phù hợp, quá trình chuẩn bị và phân tích ban đầu là vô cùng quan trọng. Việc xem xét kỹ lưỡng các yếu tố này sẽ giúp định hình rõ ràng hướng đi, đảm bảo công trình đáp ứng đúng và đủ mọi mong muốn của gia chủ.

Có thể bạn quan tâm: Ý Nghĩa Những Bức Tranh Phong Thuỷ Trong Không Gian Sống
Diện tích và hình dáng khu đất
Kích thước và hình dạng của khu đất là nền tảng quyết định bố cục tổng thể của ngôi nhà. Một mảnh đất vuông vắn sẽ dễ dàng hơn trong việc bố trí các phòng, trong khi đất méo mó, hình thang hoặc có chiều sâu lớn sẽ đòi hỏi giải pháp thiết kế sáng tạo hơn. Việc đo đạc chính xác diện tích, xác định các hướng tiếp giáp và quy định về mật độ xây dựng tại địa phương là bước không thể bỏ qua. Đối với những lô đất có diện tích hạn chế như 5x20m hay 6x12m, kiến trúc sư cần tối ưu hóa từng mét vuông để đảm bảo công năng và không gian thoáng đãng.
Nhu cầu sử dụng và số lượng thành viên

Có thể bạn quan tâm: Xây Phòng Ngủ Đơn Giản Mà Đẹp: Hướng Dẫn Chi Tiết Từ A-z
Mỗi gia đình có số lượng thành viên và lối sống khác nhau, từ đó kéo theo những yêu cầu riêng về không gian. Gia đình có trẻ nhỏ sẽ cần khu vui chơi an toàn, trong khi gia đình có người lớn tuổi cần phòng ngủ ở tầng trệt hoặc ít bậc thang. Số lượng 3 phòng ngủ cần được phân bổ hợp lý cho các thành viên, ví dụ như 1 phòng ngủ master cho bố mẹ, 2 phòng ngủ cho con cái hoặc khách. Bên cạnh đó, việc xác định các không gian phụ trợ như phòng thờ, gara ô tô, phòng làm việc, kho chứa đồ cũng rất quan trọng để đưa vào bản vẽ.


Ngân sách đầu tư và vật liệu xây dựng
Ngân sách là yếu tố then chốt ảnh hưởng đến quy mô, phong cách kiến trúc và chất lượng vật liệu. Gia chủ cần xác định một khoảng ngân sách cụ thể để kiến trúc sư có thể đưa ra các giải pháp thiết kế và lựa chọn vật liệu phù hợp. Vật liệu hoàn thiện (gạch lát sàn, sơn, cửa, thiết bị vệ sinh) chiếm một phần lớn chi phí, vì vậy việc cân nhắc giữa chất lượng, độ bền và tính thẩm mỹ là cần thiết. Hơn nữa, việc tìm hiểu về các vật liệu thân thiện môi trường, tiết kiệm năng lượng cũng là xu hướng được khuyến khích hiện nay, có thể giúp giảm chi phí vận hành lâu dài cho ngôi nhà.

Yếu tố phong thủy trong thiết kế nhà
Phong thủy có ảnh hưởng sâu sắc đến đời sống và tài lộc của gia chủ. Khi lên bản vẽ thiết kế nhà 3 phòng ngủ, các yếu tố phong thủy như hướng nhà, hướng cửa chính, vị trí phòng khách, phòng bếp, phòng ngủ và đặc biệt là bàn thờ cần được xem xét kỹ lưỡng. Tránh đặt bếp đối diện cửa nhà vệ sinh, đầu giường không kê sát tường vệ sinh, và hướng giường ngủ hợp với bản mệnh của chủ nhân là những nguyên tắc cơ bản cần tuân thủ. Việc tham vấn ý kiến từ chuyên gia phong thủy sẽ giúp đảm bảo sự hài hòa, mang lại may mắn và sức khỏe cho gia đình.
Các loại hình kiến trúc phổ biến cho nhà 3 phòng ngủ


Tùy thuộc vào diện tích đất, vị trí địa lý và sở thích cá nhân, gia chủ có thể lựa chọn nhiều loại hình kiến trúc khác nhau cho căn nhà 3 phòng ngủ của mình. Mỗi loại hình đều có những đặc điểm riêng biệt về cấu trúc, công năng và phong cách thẩm mỹ.
Nhà phố và biệt thự liền kề
Đối với khu vực đô thị, nhà phố và biệt thự liền kề là lựa chọn phổ biến. Nhà phố thường có mặt tiền hẹp và chiều sâu lớn, đòi hỏi giải pháp thiết kế thông minh để tối ưu ánh sáng và thông gió. Các phòng ngủ thường được bố trí ở các tầng trên, dành tầng trệt cho không gian sinh hoạt chung. Biệt thự liền kề thường có diện tích lớn hơn, có sân vườn nhỏ, mang đến không gian sống riêng tư và sang trọng hơn. Trong thiết kế nhà phố, việc tạo giếng trời hoặc sân trong là giải pháp hiệu quả để đưa ánh sáng tự nhiên vào sâu bên trong.

Nhà cấp 4 và nhà vườn hiện đại
Nhà cấp 4 3 phòng ngủ vẫn là lựa chọn ưu tiên ở vùng nông thôn hoặc những khu vực có quỹ đất rộng. Với thiết kế một tầng, nhà cấp 4 mang lại sự tiện nghi, dễ dàng di chuyển và chi phí xây dựng hợp lý. Các mẫu nhà vườn cấp 4 thường đi kèm với sân vườn rộng rãi, tiểu cảnh, mang đến không gian sống hòa mình vào thiên nhiên. Đây là lựa chọn lý tưởng cho những gia đình yêu thích sự bình yên, muốn thoát khỏi sự ồn ào của phố thị. Phong cách thiết kế đa dạng từ truyền thống đến hiện đại, mái thái, mái nhật hay mái bằng đều rất được ưa chuộng.
Nhà ống và nhà có gác lửng
Nhà ống là kiểu nhà đặc trưng ở các đô thị lớn, với mặt tiền hẹp và chiều sâu dài. Để tối ưu hóa diện tích sử dụng, giải pháp nhà có gác lửng được nhiều gia chủ lựa chọn. Tầng lửng không chỉ tạo thêm không gian sinh hoạt hoặc làm việc mà còn có thể bố trí thêm 1-2 phòng ngủ, giúp tăng cường công năng mà vẫn giữ được sự thông thoáng cho tầng trệt. Thiết kế này đặc biệt phù hợp với những gia đình có nhu cầu sử dụng linh hoạt và muốn tiết kiệm chi phí so với việc xây nhà nhiều tầng.

Phân tích chuyên sâu các phong cách thiết kế nhà 3 phòng ngủ được ưa chuộng
Lựa chọn phong cách thiết kế là một trong những bước quan trọng nhất để tạo nên dấu ấn riêng cho ngôi nhà. Một bản vẽ thiết kế nhà 3 phòng ngủ ấn tượng không chỉ nằm ở công năng mà còn ở sự hài hòa trong phong cách.

Phong cách hiện đại: Tối giản và tiện nghi
Phong cách hiện đại tập trung vào sự tối giản, đường nét thẳng, sắc sảo và công năng. Gam màu trung tính như trắng, xám, đen thường được sử dụng làm chủ đạo, kết hợp với các vật liệu công nghiệp như bê tông, kính, thép, gỗ công nghiệp. Thiết kế này ưu tiên không gian mở, ánh sáng tự nhiên và sự tiện nghi. Nội thất được lựa chọn gọn gàng, đa năng, mang đến cảm giác rộng rãi và thông thoáng cho căn nhà 3 phòng ngủ. Phong cách hiện đại rất phù hợp với những gia chủ yêu thích sự năng động, trẻ trung và không gian sống tiện ích.
Phong cách tân cổ điển: Sang trọng và tinh tế

Phong cách tân cổ điển là sự kết hợp hài hòa giữa nét cổ điển quý phái và tinh thần hiện đại tiện nghi. Nó giữ lại những đường nét hoa văn, phào chỉ tinh xảo nhưng được tiết chế hơn, không quá cầu kỳ như cổ điển hoàn toàn. Gam màu thường là kem, be, trắng ngà, kết hợp với vật liệu cao cấp như gỗ tự nhiên, đá marble, da. Nội thất thường có chi tiết chạm khắc nhẹ nhàng, mang đến vẻ đẹp sang trọng, đẳng cấp nhưng vẫn ấm cúng. Một bản vẽ thiết kế nhà 3 phòng ngủ theo phong cách tân cổ điển sẽ tạo nên không gian sống thanh lịch và đầy chất nghệ thuật.
Phong cách Bắc Âu (Scandinavian): Ấm cúng và tự nhiên

Phong cách Scandinavian nổi bật với sự đơn giản, tinh tế, ưu tiên ánh sáng tự nhiên và vật liệu mộc mạc. Gam màu chủ đạo là trắng, xám nhạt, kết hợp với các điểm nhấn màu sắc tươi sáng. Gỗ tự nhiên, lông thú, da, vải linen là những vật liệu thường thấy, tạo cảm giác ấm cúng, gần gũi với thiên nhiên. Nội thất thường có thiết kế tiện dụng, không rườm rà, tập trung vào sự thoải mái. Phong cách này mang đến không gian sống nhẹ nhàng, thư thái và rất lý tưởng cho những ai tìm kiếm sự cân bằng và bình yên trong ngôi nhà 3 phòng ngủ của mình.
Các giải pháp bố trí đặc thù: Nhà chữ L, chữ U, gác lửng
Bên cạnh các phong cách kiến trúc, các giải pháp bố trí đặc thù cũng góp phần định hình công năng và thẩm mỹ của ngôi nhà 3 phòng ngủ.
- Nhà chữ L thường tận dụng được góc đất để tạo khoảng sân rộng hoặc gara ô tô, đồng thời các phòng ngủ có thể được bố trí liền kề theo nhánh chữ L, đảm bảo sự riêng tư.
- Nhà chữ U tạo ra một khoảng sân trong độc đáo, mang đến sự riêng tư tuyệt đối và không gian xanh mát ở trung tâm. Các phòng ngủ thường được phân bổ đều ở hai cánh chữ U.
- Nhà có gác lửng là giải pháp thông minh cho những ngôi nhà có diện tích hạn chế, giúp tăng thêm không gian sử dụng mà không làm tốn thêm diện tích xây dựng trên mặt đất.
Chi tiết bản vẽ thiết kế nhà 3 phòng ngủ theo các tiêu chí cụ thể

Một bản vẽ thiết kế nhà 3 phòng ngủ hoàn chỉnh phải bao gồm nhiều hạng mục chi tiết, từ mặt bằng công năng đến phối cảnh kiến trúc và chi tiết nội thất. Mỗi hạng mục đều có vai trò riêng biệt, đảm bảo quá trình thi công diễn ra suôn sẻ và kết quả cuối cùng đạt được như mong muốn.
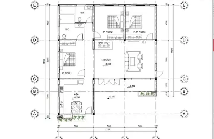
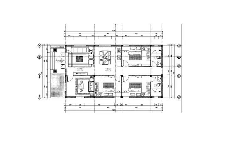
Bản vẽ mặt bằng công năng: Đảm bảo luân chuyển và riêng tư

Bản vẽ mặt bằng công năng là xương sống của mọi thiết kế, thể hiện vị trí, kích thước và mối liên hệ giữa các phòng. Với nhà 3 phòng ngủ, việc bố trí cần cân nhắc kỹ lưỡng để tối ưu không gian sinh hoạt chung và đảm bảo sự riêng tư cần thiết cho mỗi phòng ngủ.
Bố trí cho không gian nhỏ (Ví dụ: 5x20m, 6x12m)

Đối với những lô đất có diện tích hạn chế, việc bố trí cần sự khéo léo để tránh cảm giác chật chội.
- Với nhà 5x20m: Phòng khách có thể được đặt ngay sau cửa chính, tiếp đến là khu vực bếp và phòng ăn liên thông để tạo không gian mở. Ba phòng ngủ thường được bố trí dọc theo chiều dài của nhà, có thể có một phòng ngủ ở tầng trệt và hai phòng ở tầng trên hoặc gác lửng để tối ưu diện tích. Ánh sáng và thông gió cần được chú trọng thông qua giếng trời hoặc các khe thông gió.
- Với nhà 6x12m: Chiều ngang 6m mang lại lợi thế hơn để bố trí các phòng song song hoặc theo hàng ngang. Phòng khách rộng rãi, đối diện với phòng thờ (nếu có). Khu vực bếp và ăn có thể được đặt liền kề. Ba phòng ngủ thường được xếp dọc hoặc chia thành hai ở một bên và một ở phía cuối. Hệ thống mái thái hoặc mái bằng cũng tạo nên vẻ đẹp riêng cho kiến trúc tổng thể.
Bố trí cho không gian rộng (Ví dụ: 8x13m, 7x15m)
Khi có diện tích đất rộng hơn, kiến trúc sư có nhiều lựa chọn hơn để tạo ra các không gian tiện nghi và thoải mái.
- Với nhà 8x13m: Diện tích này đủ lớn để bố trí các không gian chức năng một cách linh hoạt. Phòng khách và bếp ăn có thể được tách biệt rõ ràng hoặc liên thông tùy theo sở thích. Ba phòng ngủ thường được phân bổ hợp lý, có thể bao gồm một phòng master có vệ sinh riêng. Khoảng sân hình chữ L hoặc sân trước rộng rãi có thể tận dụng làm gara hoặc khu tiểu cảnh.
- Với nhà 7x15m: Diện tích 7x15m rất lý tưởng cho nhà 3 phòng ngủ, cho phép bố trí các phòng ngủ theo một dãy hoặc song song, tạo hành lang rộng rãi. Khu vực sinh hoạt chung như phòng khách, bếp, ăn có thể thiết kế mở hoàn toàn, tạo sự kết nối. Một phần diện tích có thể dành cho sân vườn nhỏ phía sau hoặc bên hông, mang lại không gian xanh.
Tích hợp công năng đặc biệt (Gara, sân vườn, hồ bơi)

Nhiều gia chủ mong muốn tích hợp thêm các công năng đặc biệt vào ngôi nhà 3 phòng ngủ của mình.
- Gara ô tô: Thường được bố trí ở phía trước hoặc bên hông nhà, có lối vào riêng biệt để đảm bảo an toàn và thuận tiện.
- Sân vườn: Với nhà vườn cấp 4 hoặc biệt thự 1 tầng, sân vườn là yếu tố không thể thiếu, mang lại không gian thư giãn, hòa mình với thiên nhiên.
- Hồ bơi nhỏ: Một số gia đình có điều kiện và diện tích cho phép có thể thiết kế hồ bơi mini ở sân sau hoặc bên hông nhà, tạo điểm nhấn độc đáo và tăng thêm tiện ích.
Việc tích hợp các công năng này đòi hỏi sự tính toán cẩn thận trên bản vẽ để không ảnh hưởng đến bố cục chung và đảm bảo tính thẩm mỹ.
Bản vẽ phối cảnh kiến trúc: Định hình vẻ ngoài ấn tượng

Bản vẽ phối cảnh 3D giúp gia chủ hình dung được hình ảnh ngôi nhà sau khi hoàn thiện, từ hình khối, màu sắc đến vật liệu và chi tiết trang trí. Đây là bước quan trọng để thống nhất về mặt thẩm mỹ.
Thiết kế mái (Mái Nhật, Mái Thái, Mái Bằng, Mái Lệch)
Kiểu dáng mái nhà không chỉ ảnh hưởng đến chức năng thoát nước mà còn là yếu tố quan trọng tạo nên phong cách kiến trúc.
- Mái Nhật: Thường có độ dốc nhẹ, đua ra các phía, mang lại vẻ đẹp thanh lịch, hiện đại và cân đối.
- Mái Thái: Có độ dốc lớn, giúp thoát nước nhanh và tạo cảm giác cao ráo, bề thế cho ngôi nhà.
- Mái Bằng: Phù hợp với phong cách hiện đại, tối giản, có thể tận dụng làm sân thượng hoặc trồng cây xanh.
- Mái Lệch: Tạo điểm nhấn độc đáo, phá cách, thể hiện sự sáng tạo trong kiến trúc.
Mỗi loại mái đều có ưu nhược điểm riêng về chi phí và khả năng thích nghi với điều kiện khí hậu.
Thiết kế mặt tiền và tiểu cảnh
Mặt tiền là bộ mặt của ngôi nhà, cần được thiết kế ấn tượng và hài hòa. Việc sử dụng vật liệu ốp tường, gạch trang trí, hệ thống cửa sổ, ban công, và các trụ cột đều góp phần tạo nên vẻ đẹp tổng thể. Interstellas luôn chú trọng đến từng chi tiết nhỏ để tạo nên mặt tiền độc đáo và bền vững. Tiểu cảnh sân vườn, bồn hoa, cây xanh cũng là những yếu tố không thể thiếu để tăng tính thẩm mỹ và mang thiên nhiên vào không gian sống.
Bản vẽ nội thất: Tối ưu tiện ích và thẩm mỹ
Bản vẽ nội thất sẽ chi tiết hóa cách bố trí đồ đạc, lựa chọn vật liệu, màu sắc và ánh sáng cho từng không gian bên trong.
Lựa chọn vật liệu phù hợp
Vật liệu nội thất có ảnh hưởng lớn đến phong cách và cảm giác của căn phòng. Gỗ tự nhiên mang lại sự ấm cúng, sang trọng; kim loại và kính tạo vẻ hiện đại, công nghiệp; đá marble mang đến sự đẳng cấp. Việc lựa chọn vật liệu cần cân nhắc đến độ bền, tính dễ vệ sinh và khả năng phối hợp với tổng thể.
Giải pháp lưu trữ thông minh
Với 3 phòng ngủ, nhu cầu lưu trữ là rất lớn. Các giải pháp như tủ âm tường, kệ đa năng, giường có ngăn kéo sẽ giúp tối ưu không gian, giữ cho căn nhà luôn gọn gàng. Thiết kế nội thất tích hợp nhiều chức năng sẽ mang lại tiện ích tối đa cho gia đình.
Ánh sáng và màu sắc
Ánh sáng (tự nhiên và nhân tạo) cùng với màu sắc là yếu tố quan trọng tạo nên bầu không khí cho ngôi nhà. Sử dụng màu sắc hài hòa, kết hợp với hệ thống đèn chiếu sáng hợp lý sẽ làm nổi bật các chi tiết kiến trúc và nội thất, tạo cảm giác rộng rãi và thoải mái.
Những lưu ý quan trọng khi triển khai bản vẽ thiết kế nhà 3 phòng ngủ
Để biến bản vẽ thiết kế nhà 3 phòng ngủ từ ý tưởng thành hiện thực một cách hoàn hảo, gia chủ cần lưu ý một số điểm quan trọng trong quá trình triển khai. Điều này không chỉ giúp đảm bảo chất lượng công trình mà còn tránh được những rủi ro pháp lý và tài chính không đáng có.
Chọn nhà thầu thiết kế và thi công uy tín
Việc lựa chọn một công ty thiết kế và thi công có kinh nghiệm, uy tín là yếu tố then chốt quyết định chất lượng và tiến độ của dự án. Một nhà thầu chuyên nghiệp sẽ có đội ngũ kiến trúc sư, kỹ sư giỏi, am hiểu về vật liệu và quy trình xây dựng. Họ sẽ cung cấp các giải pháp tối ưu, đảm bảo công trình bền đẹp và đúng theo bản vẽ. Hãy tham khảo các dự án đã hoàn thành, đọc đánh giá từ khách hàng và yêu cầu báo giá chi tiết để đưa ra quyết định sáng suốt.
Đảm bảo tính pháp lý và quy định xây dựng
Trước khi bắt đầu thi công, gia chủ cần tìm hiểu kỹ về các quy định pháp lý liên quan đến xây dựng tại địa phương, bao gồm giấy phép xây dựng, mật độ xây dựng, chiều cao công trình và các quy định về an toàn. Việc có đầy đủ giấy tờ pháp lý hợp lệ sẽ tránh được các rắc rối về sau. Các kiến trúc sư giàu kinh nghiệm sẽ hỗ trợ bạn trong việc hoàn thiện các thủ tục này.
Giám sát chặt chẽ quá trình thi công
Dù đã có bản vẽ chi tiết và nhà thầu uy tín, việc giám sát chặt chẽ quá trình thi công là điều không thể thiếu. Gia chủ hoặc người đại diện cần thường xuyên kiểm tra vật liệu sử dụng, chất lượng thi công, và tiến độ công trình so với bản vẽ. Điều này giúp phát hiện và khắc phục kịp thời các sai sót, đảm bảo công trình được xây dựng đúng theo thiết kế và tiêu chuẩn kỹ thuật.
Cân nhắc yếu tố mở rộng trong tương lai
Trong quá trình thiết kế, hãy xem xét khả năng mở rộng hoặc thay đổi công năng ngôi nhà trong tương lai. Ví dụ, liệu có thể thêm một phòng ngủ nữa khi con cái lớn hơn, hay chuyển đổi một phần không gian thành phòng làm việc? Việc tính toán trước các yếu định này trên bản vẽ sẽ giúp việc cải tạo sau này trở nên dễ dàng và ít tốn kém hơn.
Một bản vẽ thiết kế nhà 3 phòng ngủ hoàn hảo là sự kết hợp giữa kiến trúc sáng tạo, công năng tối ưu và sự thấu hiểu sâu sắc nhu cầu của gia chủ. Hy vọng những thông tin chi tiết trên đã cung cấp cho bạn cái nhìn toàn diện và nguồn cảm hứng để bắt đầu hành trình kiến tạo tổ ấm mơ ước. Dù bạn ưu tiên phong cách hiện đại, tân cổ điển hay Scandinavian, điều quan trọng là bản vẽ đó phải phản ánh được cá tính và mang lại sự thoải mái tối đa cho cuộc sống.
Khám phá các giải pháp nội thất sáng tạo và chuyên nghiệp tại Interstellas để biến mọi ý tưởng thiết kế thành hiện thực, kiến tạo không gian sống đẳng cấp và bền vững.
















