Khi nhắc đến kiến trúc nhà ở, phong cách nhà mái Thái luôn chiếm một vị trí đặc biệt trong lòng nhiều gia chủ Việt Nam. Với vẻ đẹp độc đáo, sự sang trọng và khả năng thích ứng tốt với khí hậu nhiệt đới, bản vẽ nhà mái Thái không chỉ là một tập hợp các bản vẽ kỹ thuật mà còn là hiện thân của ước mơ về một tổ ấm lý tưởng. Tuy nhiên, để sở hữu một thiết kế nhà mái Thái vừa đẹp, vừa công năng, lại phù hợp với ngân sách, chủ đầu tư cần nắm vững những kiến thức cơ bản và quy trình thực hiện. Bài viết này sẽ cung cấp một cái nhìn toàn diện về bản vẽ nhà mái Thái, từ ý nghĩa, các yếu tố cần có, quy trình thiết kế cho đến những lưu ý quan trọng, giúp bạn tự tin hơn trong việc hiện thực hóa ngôi nhà mơ ước.
Tóm Lược Các Yếu Tố Quan Trọng Cần Có Trong Bản Vẽ Nhà Mai Thái
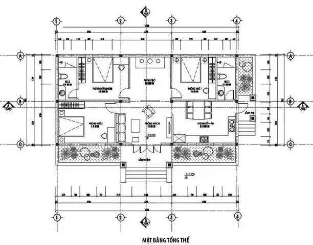
Một bản vẽ nhà mái Thái hoàn chỉnh không chỉ thể hiện ý tưởng kiến trúc mà còn bao gồm các thông tin kỹ thuật chi tiết, đảm bảo tính khả thi và an toàn cho công trình. Dưới đây là những yếu tố cốt lõi bạn cần đảm bảo có trong hồ sơ bản vẽ của mình:
- Bản vẽ Kiến trúc: Bao gồm mặt bằng các tầng, mặt đứng, mặt cắt, chi tiết cửa, cầu thang, vệ sinh… thể hiện rõ bố cục không gian, kích thước, vật liệu hoàn thiện.
- Bản vẽ Kết cấu: Xác định hệ thống dầm, cột, móng, mái, sàn… đảm bảo khả năng chịu lực và an toàn cho toàn bộ công trình.
- Bản vẽ Hệ thống Kỹ thuật (Điện, Nước, Thông gió): Chi tiết đường đi dây điện, ống nước, hệ thống thoát nước, thông gió, điều hòa… đảm bảo sự tiện nghi và an toàn trong sinh hoạt.
- Bản vẽ Quy hoạch tổng thể (nếu có): Đối với những khu đất rộng, bản vẽ này thể hiện vị trí ngôi nhà, sân vườn, lối đi, cảnh quan xung quanh.
- Chi tiết vật liệu và hoàn thiện: Liệt kê rõ chủng loại vật liệu sử dụng cho từng hạng mục (sơn, gạch, ngói, kính, gỗ…) và phương pháp thi công.
Ý Nghĩa Của Bản Vẽ Nhà Mai Thái Trong Quá Trình Xây Dựng
Bản vẽ nhà mái Thái đóng vai trò nền tảng, là kim chỉ nam cho mọi hoạt động xây dựng. Nó không chỉ là công cụ để thi công mà còn là phương tiện để chủ đầu tư hình dung rõ nét về công trình tương lai, kiểm soát ngân sách và đảm bảo tuân thủ các quy định pháp luật.
1. Định Hình Không Gian Sống Lý Tưởng
Một bản vẽ chi tiết cho phép kiến trúc sư và gia chủ thảo luận, chỉnh sửa để bố trí không gian một cách tối ưu nhất. Từ vị trí các phòng, diện tích từng phòng, hướng phòng, cho đến sự kết nối giữa các không gian chức năng, tất cả đều được thể hiện rõ ràng. Đối với nhà mái Thái, bản vẽ sẽ đặc biệt chú trọng đến việc tạo ra các không gian thoáng đãng, nhiều ánh sáng tự nhiên, phù hợp với phong cách kiến trúc đặc trưng.
2. Đảm Bảo Tính Khả Thi và An Toàn
Bản vẽ kỹ thuật do kiến trúc sư và kỹ sư xây dựng lập ra sẽ bao gồm các tính toán chi tiết về kết cấu, tải trọng, vật liệu. Điều này đảm bảo rằng ngôi nhà không chỉ đẹp về mặt thẩm mỹ mà còn vững chãi, an toàn trước các tác động của môi trường như mưa bão, động đất (tùy theo khu vực địa lý). Việc tuân thủ bản vẽ giúp hạn chế tối đa các sai sót trong quá trình thi công, tránh lãng phí vật liệu và chi phí sửa chữa phát sinh.
<>Xem Thêm Bài Viết:<>- Huỳnh Văn Nghệ là ai? Tiểu sử, sự nghiệp và những đóng góp nổi bật
- Giải mã Vị trí Màng Nhĩ Nằm Ở Đâu: Cấu Trúc và Chức Năng Thính Giác
- 1991 Cầm Tinh Con Gì: Giải Mã Vận Mệnh, Phong Cách Sống Cho Tuổi Tân Dậu
- Thông Tin Ở Đầu Trang Và Chân Trang Giúp Tài Liệu Bất Động Sản Chuyên Nghiệp
- Khám phá Chùa Địa Tạng ở đâu: Nét thanh tịnh giữa Hà Nam

Có thể bạn quan tâm: Biệt Thự Dưới 500 Triệu: Giải Pháp Nhà Ở Trong Tầm Tay
3. Kiểm Soát Ngân Sách Hiệu Quả
Trước khi khởi công, bản vẽ kiến trúc sẽ được dùng để lập dự toán chi tiết. Từ đó, chủ đầu tư có thể ước tính được tổng chi phí xây dựng, vật liệu cần thiết, nhân công… Điều này giúp bạn có kế hoạch tài chính rõ ràng, tránh vượt ngân sách và đưa ra các quyết định hợp lý về lựa chọn vật liệu, quy mô công trình.
4. Tuân Thủ Các Quy Định Pháp Luật
Các cơ quan quản lý xây dựng yêu cầu bản vẽ thiết kế chi tiết để cấp phép xây dựng. Bản vẽ cần tuân thủ các quy chuẩn, tiêu chuẩn xây dựng hiện hành của địa phương, đảm bảo an toàn cho người sử dụng và cộng đồng xung quanh.
Các Yếu Tố Cần Lưu Ý Khi Thiết Kế Bản Vẽ Nhà Mai Thái
Phong cách nhà mái Thái có những đặc trưng riêng biệt, đòi hỏi kiến trúc sư phải có sự hiểu biết sâu sắc để tạo ra những bản vẽ tối ưu.
1. Đặc Trưng Kiến Trúc Của Nhà Mái Thái
- Mái dốc đặc trưng: Mái Thái thường có độ dốc lớn, chia thành các lớp mái, tạo cảm giác bề thế, uy nghi và giúp thoát nước mưa hiệu quả, rất phù hợp với khí hậu Việt Nam. Các lớp mái chồng lên nhau tạo hiệu ứng thị giác đẹp mắt.
- Hệ thống cột kèo: Cấu trúc mái thường được hỗ trợ bởi hệ thống cột, kèo, xà gồ vững chắc, thể hiện sự tinh tế trong kỹ thuật xây dựng.
- Hoa văn, phào chỉ tinh tế: Các chi tiết trang trí trên mái, viền mái, hệ thống cột thường được chạm khắc hoa văn tinh xảo, mang đậm nét Á Đông.
- Màu sắc trang nhã: Gam màu chủ đạo thường là xanh, ghi, đỏ hoặc nâu sẫm cho mái, kết hợp với màu trắng, vàng kem cho tường để tạo sự hài hòa, sang trọng.
- Bố cục mặt bằng linh hoạt: Nhà mái Thái có thể thiết kế đa dạng về diện tích và số phòng, từ nhà cấp 4 đơn giản đến biệt thự nhiều tầng.
2. Yếu Tố Phong Thủy Trong Thiết Kế

Có thể bạn quan tâm: Bản Vẽ Cad Nhà Cấp 4 5×20 Trệt: Hướng Dẫn Chi Tiết & Ý Tưởng Thiết Kế
Phong thủy là một yếu tố quan trọng trong văn hóa Việt Nam, và nhà mái Thái cũng không ngoại lệ. Khi thiết kế bản vẽ, cần lưu ý các yếu tố sau:
- Hướng nhà: Chọn hướng nhà phù hợp với tuổi, mệnh của gia chủ để đón sinh khí tốt, tránh tà khí. Hướng nhà có thể ảnh hưởng đến ánh sáng tự nhiên, sự thông thoáng và cảm giác ấm cúng của ngôi nhà.
- Bố cục phòng: Sắp xếp các phòng chức năng hợp lý, tránh các lỗi phong thủy như cửa phòng ngủ đối diện cửa nhà vệ sinh, cửa ra vào đối diện cửa hậu…
- Vị trí bếp, bàn thờ: Bếp thường đặt ở hướng xấu để “hóa giải” và có tầm nhìn bao quát, trong khi bàn thờ cần đặt ở vị trí trang nghiêm, cao ráo, hướng tốt.
- Yếu tố nước: Hồ nước, hòn non bộ (nếu có) cần được bố trí đúng vị trí để mang lại tài lộc, may mắn.
3. Lựa Chọn Vật Liệu Phù Hợp
Việc lựa chọn vật liệu không chỉ ảnh hưởng đến thẩm mỹ mà còn đến độ bền và chi phí xây dựng.
- Ngói: Ngói đất nung, ngói bitum, ngói màu là những lựa chọn phổ biến cho nhà mái Thái. Mỗi loại có ưu nhược điểm riêng về thẩm mỹ, độ bền, khả năng cách nhiệt và giá thành.
- Sơn ngoại thất: Lựa chọn sơn có khả năng chống thấm, chống tia UV, chống bám bẩn để bảo vệ tường nhà và giữ màu sắc bền lâu.
- Vật liệu trang trí: Phào chỉ, gờ, phù điêu có thể làm từ xi măng, đá, hoặc vật liệu nhân tạo, tùy thuộc vào ngân sách và phong cách thiết kế.
- Cửa: Cửa gỗ, nhôm kính, cửa sắt với thiết kế phù hợp sẽ tăng thêm vẻ đẹp và sự tiện nghi cho ngôi nhà.
Quy Trình Thực Hiện Bản Vẽ Nhà Mai Thái Chuyên Nghiệp
Để có được một bộ bản vẽ nhà mái Thái chất lượng, bạn cần thực hiện theo một quy trình bài bản, chuyên nghiệp.
1. Tìm Kiếm và Làm Việc Với Kiến Trúc Sư/Công Ty Thiết Kế Uy Tín
Đây là bước quan trọng nhất. Hãy tìm hiểu kỹ về kinh nghiệm, phong cách thiết kế của kiến trúc sư hoặc công ty bạn định hợp tác. Xem xét các dự án họ đã thực hiện, đặc biệt là các công trình nhà mái Thái.
- Trao đổi yêu cầu chi tiết: Hãy trình bày rõ ràng mọi mong muốn của bạn về kiến trúc, công năng, số lượng phòng, phong cách, ngân sách, yếu tố phong thủy…
- Tham khảo các mẫu nhà: Dựa trên yêu cầu của bạn, kiến trúc sư sẽ đưa ra các ý tưởng, bản phác thảo ban đầu.
2. Lập Hồ Sơ Thiết Kế Sơ Bộ (Concept Design)

Có thể bạn quan tâm: Bản Vẽ Chi Tiết Thiết Kế Chung Cư Mini 5 Tầng 100m2 Cho Thuê Tại Hà Nội
Sau khi thống nhất ý tưởng ban đầu, kiến trúc sư sẽ triển khai hồ sơ thiết kế sơ bộ, bao gồm:
- Mặt bằng công năng: Bố trí các phòng, kích thước, lối đi, hướng cửa…
- Phối cảnh 3D: Mô phỏng ngoại thất ngôi nhà để bạn hình dung trực quan nhất.
- Dự trù kinh phí sơ bộ: Ước tính chi phí dựa trên ý tưởng thiết kế.
3. Triển Khai Hồ Sơ Thiết Kế Kỹ Thuật Thi Công (Construction Drawing)
Đây là giai đoạn chi tiết hóa, bao gồm toàn bộ bản vẽ cần thiết cho quá trình thi công:
- Bản vẽ kiến trúc: Chi tiết mặt bằng, mặt đứng, mặt cắt, chi tiết từng bộ phận.
- Bản vẽ kết cấu: Móng, dầm, cột, sàn, mái với các thông số kỹ thuật rõ ràng.
- Bản vẽ hệ thống kỹ thuật: Điện, nước, thông gió, điều hòa.
- Phụ lục vật liệu: Danh mục chi tiết các loại vật liệu sẽ sử dụng.
4. Xin Cấp Phép Xây Dựng
Bộ hồ sơ thiết kế kỹ thuật thi công là tài liệu bắt buộc để bạn nộp đơn xin cấp phép xây dựng tại cơ quan nhà nước có thẩm quyền.
5. Giám Sát Tác Giả Trong Quá Trình Thi Công
Kiến trúc sư đóng vai trò giám sát để đảm bảo công trình được thi công đúng theo bản vẽ thiết kế. Việc này giúp hạn chế sai sót và duy trì tính thẩm mỹ, kỹ thuật của công trình.
Những Lưu Ý Quan Trọng Khi Thực Hiện Bản Vẽ Nhà Mai Thái
- Chọn đơn vị thiết kế có kinh nghiệm về nhà mái Thái: Kiến trúc sư cần hiểu rõ đặc thù của phong cách này để đưa ra giải pháp tối ưu.
- Dự trù ngân sách hợp lý: Nhà mái Thái thường có chi phí thi công mái cao hơn so với các loại mái khác do cấu trúc phức tạp. Hãy thảo luận rõ ràng về ngân sách và các phương án vật liệu để cân đối chi phí.
- Chú trọng đến yếu tố thông gió và thoát nước: Khí hậu Việt Nam nóng ẩm, việc thiết kế mái dốc, hệ thống cửa sổ hợp lý sẽ giúp ngôi nhà thông thoáng và tránh ẩm mốc.
- Tham khảo ý kiến chuyên gia phong thủy: Nếu bạn coi trọng yếu tố phong thủy, hãy nhờ đến sự tư vấn của chuyên gia để đảm bảo bản vẽ hài hòa và mang lại may mắn cho gia đình.
- Luôn cập nhật xu hướng mới: Phong cách nhà mái Thái cũng có những biến tấu hiện đại hơn. Hãy tham khảo các mẫu thiết kế mới để có thêm ý tưởng cho ngôi nhà của mình.
Sở hữu một bản vẽ nhà mái Thái đẹp, khoa học và phù hợp với nhu cầu là bước đầu tiên để bạn xây dựng thành công tổ ấm mơ ước. Hãy đầu tư thời gian và công sức để tìm kiếm đơn vị thiết kế uy tín và trao đổi kỹ lưỡng, bởi một bản vẽ chất lượng sẽ mang lại giá trị lâu dài cho ngôi nhà của bạn.
















