Trong bối cảnh đô thị hóa ngày càng phát triển, những căn nhà phố 5 tầng trở thành lựa chọn phổ biến, đặc biệt tại các thành phố lớn nơi diện tích đất ở hạn chế. Để kiến tạo nên một không gian sống tiện nghi, thẩm mỹ và phù hợp với nhu cầu của gia đình, việc có một bản vẽ nhà 5 tầng chi tiết và khoa học là vô cùng cần thiết. Bài viết này của chúng tôi sẽ đi sâu vào những khía cạnh quan trọng nhất trong quá trình thiết kế, từ việc tối ưu hóa diện tích đến bố trí công năng từng tầng, giúp gia chủ và kiến trúc sư có cái nhìn toàn diện để biến ý tưởng thành hiện thực.
Tổng quan thiết kế bản vẽ nhà 5 tầng: Các yếu tố cần nắm vững
Thiết kế một ngôi nhà 5 tầng đòi hỏi sự cân nhắc kỹ lưỡng về nhiều yếu tố để đảm bảo công năng, thẩm mỹ và tính bền vững. Điều quan trọng là phải giải quyết bài toán tối ưu hóa không gian trên diện tích mặt bằng thường khá hạn chế, đồng thời tích hợp các tiện ích hiện đại như thang máy. Một bản vẽ nhà 5 tầng chuyên nghiệp sẽ là kim chỉ nam, giúp chủ đầu tư hình dung rõ ràng về ngôi nhà tương lai, từ cấu trúc tổng thể đến chi tiết từng không gian, đảm bảo mọi yêu cầu về sinh hoạt và thẩm mỹ đều được đáp ứng một cách hài hòa nhất.
Tại sao bản vẽ nhà 5 tầng lại quan trọng?
Thiết kế một ngôi nhà cao tầng, đặc biệt là nhà phố 5 tầng, không chỉ đơn thuần là việc vẽ ra các phòng ốc. Nó là một quá trình phức tạp đòi hỏi sự kết hợp giữa kiến thức chuyên môn, kinh nghiệm thực tiễn và khả năng thấu hiểu nhu cầu của gia chủ. Chính vì vậy, một bản vẽ nhà 5 tầng chi tiết và được nghiên cứu kỹ lưỡng đóng vai trò then chốt cho sự thành công của dự án.
Tối ưu không gian sống trên diện tích hạn chế
Đặc thù của nhà phố là diện tích mặt tiền và chiều sâu thường khá khiêm tốn. Với 5 tầng, tổng diện tích sử dụng tăng lên đáng kể, nhưng việc phân bổ không gian hợp lý trên mỗi sàn lại là thách thức. Bản vẽ giúp các kiến trúc sư sắp xếp các khu vực chức năng (phòng khách, bếp, phòng ngủ, vệ sinh, thang máy) một cách khoa học, đảm bảo không gian mở, thông thoáng và tận dụng tối đa từng mét vuông. Chẳng hạn, một mặt bằng sàn 42m² (4,35m x 8,7m) cần được tính toán tỉ mỉ để không gây cảm giác chật chội mà vẫn đầy đủ tiện nghi.

Có thể bạn quan tâm: Tổng Hợp Các Mẫu Cầu Thang Gỗ Đẹp 2015: Xu Hướng & Giá Trị Vượt Thời Gian
<>Xem Thêm Bài Viết:<>
- Thủ Tục Và **Địa Điểm Lấy Căn Cước Công Dân Ở Đâu** Chuẩn Xác
- Làng Văn Hóa 54 Dân Tộc Ở Đâu? Khám Phá Địa Điểm Đặc Sắc
- Hộ pháp Kim Cang: Hành trình theo chân Thích Minh Tuệ và bí ẩn về danh tính thực sự
- Hà Nam cách Hà Nội bao nhiêu km? Giải đáp khoảng cách chi tiết
- Kinh Nghiệm Từ A-Z Khi Mua Chung Cư Hồ Chí Minh An Toàn
Đảm bảo tính pháp lý và an toàn xây dựng
Trước khi xây dựng, mọi công trình đều phải tuân thủ các quy định về quy hoạch, chiều cao, mật độ xây dựng và an toàn kết cấu. Bản vẽ nhà 5 tầng là tài liệu pháp lý quan trọng để xin giấy phép xây dựng. Nó thể hiện rõ ràng các thông số kỹ thuật, vật liệu sử dụng, kết cấu chịu lực, hệ thống điện nước, đảm bảo công trình không chỉ đẹp mà còn vững chắc và an toàn cho người sử dụng. Các bản vẽ mặt đứng, mặt cắt chi tiết sẽ cung cấp cái nhìn tổng quan về sự tuân thủ các tiêu chuẩn này.
Nền tảng cho một không gian sống thẩm mỹ và tiện nghi
Một ngôi nhà không chỉ là nơi để ở mà còn là biểu hiện của phong cách và cá tính gia chủ. Bản vẽ là công cụ để kiến trúc sư thể hiện ý tưởng thiết kế, từ phong cách kiến trúc tổng thể (ví dụ: tân cổ điển) đến từng chi tiết nội thất. Nó giúp gia chủ hình dung về diện mạo ngôi nhà, cách ánh sáng tự nhiên len lỏi vào từng góc, hay sự hài hòa giữa màu sắc và vật liệu. Với bản vẽ, gia chủ có thể đưa ra các điều chỉnh phù hợp trước khi thi công, tránh những thay đổi tốn kém và mất thời gian sau này.

Có thể bạn quan tâm: Khám Phá Các Kiểu Cầu Thang Trong Nhà Đẹp Và Phổ Biến Nhất
Các yếu tố then chốt cần xem xét khi thiết kế nhà 5 tầng
Quá trình hình thành một bản vẽ nhà 5 tầng hoàn chỉnh là sự tổng hòa của nhiều yếu tố. Từ những đặc điểm cơ bản của khu đất đến sở thích cá nhân của gia chủ, mỗi chi tiết đều ảnh hưởng đến kết quả cuối cùng. Việc phân tích kỹ lưỡng các yếu tố này ngay từ đầu sẽ đảm bảo tính khả thi và hiệu quả của dự án.

Có thể bạn quan tâm: 20+ Mẫu Nhà Nhỏ Có Gác Lửng Đẹp Tối Ưu Diện Tích
Diện tích và hình dạng khu đất
Đây là yếu tố tiên quyết quyết định hình dáng và kích thước của ngôi nhà. Với một khu đất hẹp và dài như 4,35m x 8,7m (tổng diện tích 38m²), việc thiết kế đòi hỏi sự khéo léo để tận dụng tối đa chiều sâu và tạo cảm giác rộng rãi. Các giải pháp như giếng trời, ô thông tầng, hoặc các vách ngăn linh hoạt sẽ được cân nhắc để đảm bảo ánh sáng và thông gió tự nhiên, khắc phục nhược điểm của nhà ống.


Phong cách kiến trúc (Tân cổ điển)
Phong cách tân cổ điển mang đến vẻ đẹp sang trọng, tinh tế với những đường nét mềm mại nhưng không kém phần vững chãi. Đối với nhà phố 5 tầng, việc ứng dụng phong cách này cần được tiết chế để tránh sự rườm rà, nặng nề. Thay vào đó, tập trung vào các chi tiết phào chỉ nhẹ nhàng, màu sắc trung tính, cửa sổ vòm hoặc hình chữ nhật lớn để tạo sự thanh lịch và hút sáng. Sự kết hợp giữa cổ điển và hiện đại sẽ làm cho bản vẽ nhà 5 tầng trở nên độc đáo và vượt thời gian.

Yêu cầu về công năng sử dụng
Mỗi gia đình có một lối sống và nhu cầu riêng. Do đó, việc xác định rõ công năng cho từng tầng là cực kỳ quan trọng. Ví dụ, việc bố trí tầng 1 làm chỗ để xe máy, tầng 2 là phòng khách, tầng 3 và 4 mỗi tầng một phòng ngủ, tầng 5 là bếp ăn, và tầng tum là phòng thờ, giặt phơi, thể hiện sự sắp xếp khoa học dựa trên tần suất sử dụng và tính riêng tư. Đặc biệt, việc tích hợp thang máy trong nhà 5 tầng giúp tăng tiện ích, đặc biệt cho gia đình có người lớn tuổi hoặc trẻ nhỏ.

Quy định xây dựng và mật độ xây dựng
Mỗi địa phương đều có quy định riêng về chiều cao tối đa, khoảng lùi, mật độ xây dựng và chỉ giới đỏ. Kiến trúc sư cần nắm vững các quy định này để thiết kế bản vẽ nhà 5 tầng phù hợp, tránh vi phạm pháp luật và các vấn đề pháp lý phát sinh sau này. Mật độ xây dựng ảnh hưởng trực tiếp đến việc bố trí các không gian xanh hoặc sân thượng, trong khi khoảng lùi đảm bảo sự thông thoáng và phòng cháy chữa cháy.

Ngân sách đầu tư
Ngân sách là yếu tố quyết định đến quy mô, chất lượng vật liệu và mức độ hoàn thiện của công trình. Một bản vẽ thiết kế tốt cần phải cân bằng giữa ý tưởng sáng tạo và khả năng tài chính của gia chủ. Kiến trúc sư sẽ tư vấn các giải pháp vật liệu, trang thiết bị và phương án thi công tối ưu để đảm bảo dự án được thực hiện trong phạm vi ngân sách đã định, nhưng vẫn đạt được chất lượng và thẩm mỹ mong muốn.


Phân tích công năng điển hình trong bản vẽ nhà 5 tầng
Việc phân bổ công năng là trái tim của một bản vẽ nhà 5 tầng hiệu quả. Với đặc điểm nhiều tầng, việc sắp xếp các khu vực chức năng sao cho hợp lý, thuận tiện cho sinh hoạt và tạo dòng chảy không gian thông suốt là thách thức lớn. Dưới đây là cách bố trí công năng điển hình cho nhà 5 tầng, kèm theo những phân tích chuyên sâu.

Tầng 1: Tối ưu không gian để xe và tiện ích phụ trợ
Thông thường, tầng 1 của nhà phố sẽ được ưu tiên làm nơi để xe, đặc biệt là xe máy trong trường hợp nhà không có gara ô tô riêng. Khu vực này cần được thiết kế đủ rộng rãi, có lối đi thuận tiện và đảm bảo an ninh. Bên cạnh đó, có thể bố trí thêm một phòng vệ sinh nhỏ, khu vực giặt giũ (nếu không có không gian trên tum) hoặc một kho nhỏ để đồ đạc ít dùng. Việc tính toán độ dốc sàn và hệ thống thoát nước cho khu vực để xe cũng rất quan trọng.
Tầng 2: Không gian sinh hoạt chung (Phòng khách)
Phòng khách thường được đặt ở tầng 2 để tạo sự riêng tư hơn so với tầng 1 ồn ào, bụi bẩn. Đây là không gian quan trọng nhất trong nhà, nơi gia đình quây quần và tiếp đón khách. Thiết kế phòng khách cần chú trọng sự thông thoáng, ánh sáng tự nhiên và tầm nhìn. Với phong cách tân cổ điển, nội thất nên chọn các mẫu sofa, bàn trà có đường nét tinh xảo, màu sắc trang nhã, kết hợp với đèn chùm và các chi tiết trang trí cổ điển để tạo điểm nhấn sang trọng.






Các tầng trên (Tầng 3, 4): Bố trí phòng ngủ riêng tư
Tầng 3 và tầng 4 thường được dành cho các phòng ngủ, đảm bảo không gian riêng tư và yên tĩnh cho các thành viên. Mỗi phòng ngủ nên có cửa sổ lớn để đón ánh sáng và gió trời, mang lại cảm giác dễ chịu. Đối với nhà 5 tầng, việc bố trí mỗi tầng một phòng ngủ kèm vệ sinh riêng là một giải pháp tối ưu, mang đến sự tiện nghi và độc lập cho từng cá nhân. Thiết kế nội thất phòng ngủ theo phong cách tân cổ điển có thể tập trung vào giường ngủ, tủ quần áo và bàn trang điểm với những chi tiết chạm khắc nhẹ nhàng, tinh xảo.





Tầng áp mái/Tầng 5: Khu vực bếp ăn và sinh hoạt gia đình
Bố trí bếp ăn trên tầng cao nhất (tầng 5) là một ý tưởng độc đáo và có nhiều ưu điểm. Nó giúp tránh mùi thức ăn lan xuống các tầng dưới, đồng thời tạo ra một không gian ăn uống thoáng đãng, có thể kết nối với sân thượng nhỏ hoặc ban công để tổ chức các bữa tiệc ngoài trời. Khu vực này cần được thiết kế với hệ thống thông gió tốt, tủ bếp tiện lợi và bàn ăn đủ rộng cho cả gia đình. Với tầm nhìn cao, đây sẽ là không gian lý tưởng để gia đình cùng nhau thưởng thức bữa ăn và ngắm cảnh.
Tầng tum: Phòng thờ, giặt phơi và không gian đa năng
Tầng tum là không gian đa năng trên cùng của ngôi nhà. Nó thường được dùng làm phòng thờ, nơi linh thiêng và yên tĩnh nhất. Bên cạnh đó, khu vực giặt phơi cũng rất phù hợp để đặt ở đây, tận dụng ánh nắng và gió tự nhiên. Phần còn lại có thể thiết kế thành phòng tập gym nhỏ, kho chứa đồ hoặc một khu vườn trên mái, tạo thêm không gian xanh và thư giãn cho gia đình.
Giải pháp thang máy cho nhà phố nhiều tầng
Với một bản vẽ nhà 5 tầng, thang máy là một tiện ích không thể thiếu, đặc biệt quan trọng với gia đình có người lớn tuổi hoặc nhu cầu di chuyển nhiều. Việc tích hợp thang máy cần được tính toán kỹ lưỡng ngay từ khâu thiết kế để đảm bảo không gian hợp lý, kết cấu chịu lực và tính thẩm mỹ. Vị trí thang máy thường nằm gần thang bộ hoặc ở trung tâm ngôi nhà để thuận tiện cho việc di chuyển giữa các tầng. Kích thước và tải trọng thang máy cũng cần phù hợp với diện tích và số lượng thành viên trong gia đình.
Các loại bản vẽ chi tiết cần có cho dự án nhà 5 tầng
Để một dự án nhà 5 tầng được triển khai suôn sẻ và đạt chất lượng cao, bộ hồ sơ thiết kế cần bao gồm nhiều loại bản vẽ chi tiết khác nhau. Mỗi loại bản vẽ đóng vai trò quan trọng trong việc truyền tải thông tin từ kiến trúc sư đến đội ngũ thi công.
Bản vẽ mặt bằng công năng
Đây là bản vẽ thể hiện chi tiết bố cục từng tầng của ngôi nhà, bao gồm vị trí các phòng, kích thước, hướng cửa, cửa sổ, và các vật dụng nội thất cơ bản. Bản vẽ này giúp gia chủ hình dung rõ ràng về cách sử dụng không gian và dòng chảy sinh hoạt. Nó cũng là cơ sở để thiết kế hệ thống điện, nước và các yếu tố kỹ thuật khác.
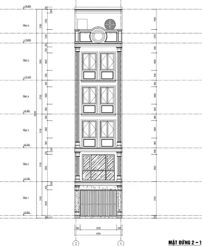
Bản vẽ mặt đứng, mặt cắt
- Mặt đứng: Thể hiện hình dáng bên ngoài của ngôi nhà từ các phía (trước, sau, hai bên). Nó mô tả chi tiết kiến trúc mặt tiền, cửa ra vào, cửa sổ, ban công, phào chỉ, mái nhà và các vật liệu hoàn thiện. Đối với phong cách tân cổ điển, bản vẽ mặt đứng là nơi thể hiện rõ nhất vẻ đẹp và sự cân đối của các chi tiết trang trí.
- Mặt cắt: Cắt dọc hoặc ngang qua ngôi nhà, cho thấy cấu trúc bên trong, chiều cao các tầng, độ dốc mái, vị trí cầu thang, giếng trời, và cách các không gian tương tác với nhau theo chiều cao. Bản vẽ này rất quan trọng để kiểm soát chiều cao và kết cấu.
Bản vẽ mặt bằng xây tường
Bản vẽ này cung cấp thông tin chi tiết về vị trí, độ dày và loại vật liệu của các bức tường ngăn chia không gian. Nó giúp đội ngũ thi công xây dựng tường chính xác theo thiết kế, đảm bảo các kích thước phòng và không gian thông thủy đúng chuẩn.
Bản vẽ chi tiết (mặt tiền, thang bộ, vệ sinh)
- Chi tiết mặt tiền: Đi sâu vào các họa tiết trang trí, phào chỉ, gờ tường, lan can ban công, cửa cổng, cửa sổ, và cách kết hợp vật liệu.
- Chi tiết thang bộ: Thể hiện kích thước bậc, chiều cao cổ bậc, chiều rộng chiếu nghỉ, lan can, tay vịn, và vật liệu hoàn thiện. Đảm bảo sự an toàn và tiện lợi khi di chuyển.
- Chi tiết vệ sinh: Cung cấp vị trí lavabo, bồn cầu, vòi sen, bồn tắm, hệ thống thoát nước, và các phụ kiện.
Bản vẽ kết cấu, điện nước
- Bản vẽ kết cấu: Bao gồm chi tiết móng, cột, dầm, sàn, cầu thang, mái. Nó là tài liệu quan trọng nhất về an toàn và độ bền của công trình, thể hiện rõ loại thép, bê tông, và cách liên kết các bộ phận chịu lực.
- Bản vẽ điện nước: Chi tiết vị trí các ổ cắm, công tắc, đèn chiếu sáng, đường dây điện, tủ điện, hệ thống cấp thoát nước, bình nóng lạnh, máy bơm… Đảm bảo hệ thống hạ tầng hoạt động hiệu quả và an toàn.
Lựa chọn vật liệu và phong cách cho nhà 5 tầng Tân cổ điển
Phong cách tân cổ điển mang đến sự giao thoa hài hòa giữa vẻ đẹp cổ điển lộng lẫy và nét hiện đại tinh tế. Khi áp dụng cho bản vẽ nhà 5 tầng, việc lựa chọn vật liệu và chi tiết trang trí là cực kỳ quan trọng để tạo nên một tổng thể sang trọng và không bị lỗi thời.
Đặc trưng phong cách Tân cổ điển trong nhà phố
Phong cách tân cổ điển trong nhà phố 5 tầng thường được thể hiện qua các đặc điểm sau:
- Mặt tiền: Tập trung vào sự cân đối, đối xứng, sử dụng các đường phào chỉ, gờ tường, cột trụ (nếu có) một cách tiết chế, không quá cầu kỳ như cổ điển hoàn toàn. Màu sắc thường là các gam trung tính như trắng, kem, be, xám nhạt.
- Cửa sổ, ban công: Cửa sổ lớn, hình chữ nhật hoặc vòm nhẹ, sử dụng kính cường lực để tối đa hóa ánh sáng. Lan can ban công thường làm bằng sắt mỹ thuật với họa tiết uốn lượn tinh tế hoặc đá hoa cương.
- Nội thất: Đồ nội thất có đường nét mềm mại, thường được bọc nệm, da, hoặc nhung cao cấp. Các chi tiết chạm khắc nhẹ nhàng trên gỗ tự nhiên hoặc gỗ công nghiệp cao cấp.
Vật liệu mặt tiền và nội thất phù hợp
- Mặt tiền: Sử dụng sơn ngoại thất cao cấp với gam màu trung tính, kết hợp với đá ốp tự nhiên (marble, granite) hoặc gạch ốp trang trí ở các vị trí như chân tường, cột trụ để tạo điểm nhấn.
- Sàn nhà: Sàn gỗ tự nhiên hoặc sàn gỗ công nghiệp cao cấp mang lại cảm giác ấm cúng, sang trọng. Gạch lát nền vân đá hoặc gạch bông họa tiết nhẹ nhàng cho khu vực bếp, vệ sinh.
- Tường: Sơn nước màu sáng, kem, kết hợp với giấy dán tường có hoa văn cổ điển hoặc tranh trang trí để tạo chiều sâu.
- Nội thất: Gỗ tự nhiên (óc chó, sồi), gỗ công nghiệp chống ẩm phủ veneer hoặc laminate cao cấp. Vải bọc sofa, rèm cửa là các chất liệu như nhung, lụa, linen.
Giải pháp ánh sáng và thông gió
Với nhà phố 5 tầng, việc đảm bảo ánh sáng tự nhiên và thông gió là cực kỳ quan trọng do đặc điểm mặt tiền hẹp.
- Ánh sáng tự nhiên: Thiết kế cửa sổ lớn, ban công ở mỗi tầng. Đặc biệt, việc bố trí giếng trời hoặc ô thông tầng xuyên suốt các tầng là giải pháp hiệu quả để đưa ánh sáng và không khí trong lành vào sâu bên trong nhà.
- Ánh sáng nhân tạo: Sử dụng đèn chùm pha lê sang trọng cho phòng khách, đèn âm trần, đèn hắt tường để tạo không gian ấm cúng và tôn lên các chi tiết kiến trúc.
- Thông gió: Kết hợp thông gió tự nhiên qua cửa sổ, giếng trời với hệ thống thông gió cơ học (quạt thông gió, hút mùi) cho các khu vực như bếp, vệ sinh.
Quy trình triển khai bản vẽ và thi công nhà 5 tầng
Việc xây dựng một ngôi nhà 5 tầng là một dự án lớn, đòi hỏi một quy trình làm việc chuyên nghiệp và sự phối hợp chặt chẽ giữa gia chủ và đơn vị thi công.
Giai đoạn tư vấn và lên ý tưởng sơ bộ
Đây là bước đầu tiên và quan trọng nhất. Gia chủ sẽ chia sẻ mong muốn, nhu cầu, ngân sách và phong cách yêu thích với kiến trúc sư. Kiến trúc sư sẽ khảo sát khu đất, phân tích các yếu tố xung quanh và tư vấn các giải pháp sơ bộ. Sau đó, một bản vẽ mặt bằng công năng phác thảo và hình ảnh phối cảnh 3D ban đầu sẽ được trình bày để gia chủ hình dung và đưa ra phản hồi.
Thiết kế kiến trúc và kết cấu chi tiết
Dựa trên ý tưởng sơ bộ và phản hồi của gia chủ, kiến trúc sư sẽ tiến hành triển khai các bản vẽ chi tiết hơn, bao gồm:
- Bản vẽ kiến trúc: Mặt bằng, mặt đứng, mặt cắt, chi tiết cửa, cầu thang, vệ sinh…
- Bản vẽ kết cấu: Móng, cột, dầm, sàn, chi tiết thép…
- Bản vẽ hệ thống M&E: Điện, nước, thông gió, điều hòa…
Tất cả các bản vẽ này sẽ được kiểm tra kỹ lưỡng về tính khả thi, an toàn và tuân thủ các tiêu chuẩn xây dựng.
Thi công xây dựng và hoàn thiện
Sau khi hoàn thiện hồ sơ thiết kế và xin phép xây dựng, giai đoạn thi công sẽ bắt đầu. Giai đoạn này bao gồm:
- Phần thô: Xây móng, khung nhà, sàn, tường, mái.
- Phần hoàn thiện: Lát sàn, ốp tường, sơn bả, lắp đặt cửa, thiết bị vệ sinh, hệ thống điện nước, nội thất.
Trong suốt quá trình này, kỹ sư giám sát sẽ theo dõi chặt chẽ để đảm bảo công trình được xây dựng đúng theo bản vẽ nhà 5 tầng và đạt chất lượng cao nhất.
Những lưu ý quan trọng khi xem xét bản vẽ nhà 5 tầng
Khi tìm kiếm hoặc đánh giá một bản vẽ nhà 5 tầng, gia chủ cần hết sức lưu ý để đảm bảo lựa chọn được phương án tối ưu và phù hợp nhất với nhu cầu thực tế của mình.
Tham khảo nhưng không sao chép
Các bản vẽ mẫu chỉ nên dùng làm nguồn cảm hứng và ý tưởng. Mỗi khu đất, mỗi gia đình đều có đặc điểm riêng. Việc sao chép nguyên bản một bản vẽ có thể dẫn đến nhiều vấn đề không phù hợp với diện tích, hướng nhà, quy định xây dựng hoặc thói quen sinh hoạt của gia đình bạn.
Tùy chỉnh theo nhu cầu riêng
Hãy xem xét kỹ lưỡng bản vẽ và đặt ra các câu hỏi: Công năng đã phù hợp chưa? Ánh sáng và thông gió có đủ không? Có cần thêm không gian riêng tư hay không gian chung không? Đừng ngần ngại yêu cầu kiến trúc sư điều chỉnh để bản vẽ thực sự “may đo” cho gia đình bạn. Chẳng hạn, với diện tích sàn 42m² và bố trí thang máy như trong ví dụ, việc tối ưu từng phòng chức năng là yếu tố then chốt.
Hợp tác với đơn vị thiết kế uy tín như Interstellas
Để có được một bản vẽ nhà 5 tầng chất lượng cao, phản ánh đúng mong muốn và đảm bảo các tiêu chuẩn kỹ thuật, việc hợp tác với một công ty thiết kế và thi công nội thất uy tín là điều không thể thiếu. Một đơn vị có kinh nghiệm sẽ lắng nghe, tư vấn chuyên sâu và đưa ra các giải pháp sáng tạo, tối ưu nhất. Với đội ngũ kiến trúc sư và chuyên gia nhiều kinh nghiệm, Interstellas cam kết mang đến những thiết kế độc đáo, bền vững và đầy giá trị, giúp bạn kiến tạo không gian sống mơ ước.
Khám phá thêm các dự án và ý tưởng thiết kế nhà 5 tầng cùng Interstellas
Thiết kế một ngôi nhà 5 tầng là một hành trình thú vị nhưng cũng đầy thử thách. Một bản vẽ nhà 5 tầng không chỉ là tập hợp các đường nét kỹ thuật, mà còn là bản đồ dẫn lối đến không gian sống lý tưởng, nơi mỗi thành viên trong gia đình tìm thấy sự thoải mái, tiện nghi và hạnh phúc. Bằng việc chú trọng vào các yếu tố từ công năng, thẩm mỹ đến tính pháp lý và an toàn, chúng ta có thể kiến tạo nên những công trình không chỉ đẹp mắt mà còn bền vững vượt thời gian. Hãy để những chuyên gia của chúng tôi đồng hành cùng bạn trong hành trình này, biến mọi ý tưởng thành hiện thực sống động. Khám phá các giải pháp nội thất sáng tạo và chuyên nghiệp tại Interstellas.com.vn ngay hôm nay!
















