Tìm hiểu về mẫu thiết kế chung cư mini 5 tầng 100m2 tại Hà Nội
Mẫu thiết kế chung cư mini 5 tầng, diện tích 100m2 tại Hà Nội là một giải pháp tối ưu cho nhu cầu nhà ở và cho thuê ngày càng tăng tại các đô thị lớn. Bài viết này sẽ đi sâu vào phân tích bản vẽ chi tiết, các yêu cầu thiết kế, cũng như đánh giá khách quan về công năng và thẩm mỹ của công trình.
Tổng quan về mẫu thiết kế chung cư mini 5 tầng 100m2
- Mã số: NP1190423
- Số tầng: 05
- Chủ đầu tư: Bà Lưu Thị Hằng
- Địa Chỉ: Phúc Tân – Hà Nội
- Mặt tiền: 5m
- Chiều sâu: 20m
- Kiến trúc sư: Kiến trúc sư Angcovat
- Năm thi công: 2023
- Kích thước lô đất: 100m2
- Kinh phí đầu tư dự kiến: Khoảng 4 tỷ đồng
Các yêu cầu của chủ đầu tư đặt ra khi thiết kế chung cư mini 100m2 cho thuê
Khi lên ý tưởng thiết kế tòa nhà chung cư mini cho thuê, gia đình bà Hằng đã đặt ra những tiêu chí quan trọng, thể hiện sự thấu hiểu về nhu cầu thị trường và người thuê:
- Phân chia không gian và số lượng phòng: Yêu cầu cốt lõi là bố trí đủ 12 phòng cho thuê, với diện tích linh hoạt từ 11m2 (cho người độc thân, sinh viên) đến 30-35m2 (cho gia đình trẻ hoặc nhóm bạn). Dù diện tích nhỏ, mỗi phòng đều phải đảm bảo đầy đủ tiện nghi cơ bản như nhà vệ sinh, khu vực nấu ăn, giường ngủ.
- Tối ưu ánh sáng và thông gió: Chủ đầu tư đặc biệt quan tâm đến khả năng lấy sáng tự nhiên cho các căn hộ. Việc thiết kế ban công rộng và logia nhỏ, sử dụng cửa nhôm kính chất lượng cao không chỉ tăng tính thẩm mỹ mà còn đảm bảo không gian sống luôn thông thoáng, mát mẻ.
- Thiết kế ngoại thất thu hút: Với mặt tiền 5m, việc tạo nên một diện mạo sang trọng, ấn tượng là yếu tố then chốt để thu hút người thuê. Phong cách kiến trúc tân cổ điển được lựa chọn với các đường nét cân đối, hài hòa, tránh các chi tiết rườm rà, mang lại vẻ đẹp vượt thời gian.
Sau khi tiếp nhận các yêu cầu này, kiến trúc sư Angcovat đã tiến hành nghiên cứu kỹ lưỡng hiện trạng, kích thước lô đất và lên phương án mặt bằng chi tiết, triển khai bản vẽ 3D phối cảnh, bản vẽ kỹ thuật thi công (kiến trúc, kết cấu, điện, nước) để hoàn thiện bộ hồ sơ thiết kế.
Phân tích các bản vẽ kiến trúc chi tiết
Mặt bằng tầng 1 mẫu thiết kế chung cư mini 100m2
Tầng 1 được phân chia hợp lý để đáp ứng nhu cầu thiết thực, vừa để xe, vừa có không gian cho thuê. Cụ thể:
- Khu vực để xe: 25.6m², đảm bảo sức chứa cho phương tiện đi lại của người thuê, an toàn và tiết kiệm diện tích.
- Phòng cho thuê số 1: Diện tích 26.2m² với nhà vệ sinh riêng, được thiết kế phù hợp cho gia đình trẻ hoặc nhóm bạn từ 3-4 người. Không gian này kết hợp khu vực phòng khách, bếp và vệ sinh, đáp ứng nhu cầu sinh hoạt cơ bản.
Mặt bằng tầng 2 mẫu thiết kế chung cư mini 5 tầng 100m2
Tầng 2 được bố trí 3 phòng cho thuê khép kín với diện tích đa dạng:
- Phòng lớn (25.3m²): Có ban công rộng, đảm bảo ánh sáng tốt và tầm nhìn đẹp, giá thuê cao hơn.
- Hai phòng nhỏ hơn (11.8m² và 12.4m²): Có cửa sổ và ô thoáng, đảm bảo sự thông thoáng cần thiết. Các phòng này phù hợp cho sinh viên hoặc người đi làm độc thân.
Mặt bằng tầng 3 và 4 mẫu thiết kế chung cư mini 5 tầng 100m2
Hai tầng này tiếp tục được chia thành các phòng cho thuê, tối ưu hóa không gian. Cụ thể:
<>Xem Thêm Bài Viết:<>- Hướng dẫn chi tiết xin giấy vệ sinh an toàn thực phẩm ở đâu
- Quãng đường Hà Nội đi Thái Nguyên bao nhiêu km: Hướng dẫn chi tiết
- Tìm Hiểu **Võ Quang Phú Đức Ở Đâu Huế**: Niềm Tự Hào Của Xứ Cố Đô
- Thiết Kế Nội Thất Căn Hộ Chung Cư 68m2: Giải Pháp Tối Ưu & Đẳng Cấp
- Làm sao để chọn giường ngủ kiểu Nhật giá rẻ mà vẫn bền đẹp?
- Tầng 3 & 4: Mỗi tầng có 3 phòng ngủ, với diện tích dao động từ 11.8m² đến 25.3m². Việc bố trí các phòng lớn và nhỏ xen kẽ nhau giúp đa dạng hóa lựa chọn cho người thuê. Các phòng đều được thiết kế có nhà vệ sinh riêng, đảm bảo sự tiện nghi và riêng tư.
Mặt bằng tầng 5 mẫu thiết kế chung cư mini 5 tầng 100m2
Tầng trên cùng được thiết kế với hai phòng cho thuê có diện tích lớn, tận dụng ưu điểm về độ cao để có không gian thoáng đãng và tầm nhìn đẹp.
- Phòng ngủ 11: 30m²
- Phòng ngủ 12: 17.4m²
- Cả hai phòng đều có nhà vệ sinh riêng, đảm bảo sự thoải mái tối đa cho người sử dụng.
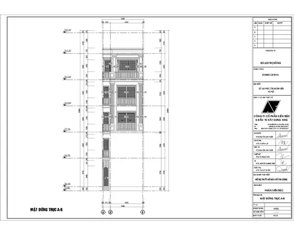
Thiết kế mặt đứng chung cư mini 5 tầng 100m2
Kiến trúc tân cổ nhẹ nhàng, thanh lịch là điểm nhấn của mặt tiền. Sự kết hợp hài hòa giữa các gam màu, các chi tiết kiến trúc tinh tế cùng vật liệu hiện đại tạo nên vẻ ngoài sang trọng, thu hút. Thiết kế mặt đứng đảm bảo tỷ lệ kiến trúc, hài hòa với cảnh quan đô thị, đồng thời đáp ứng các yêu cầu kỹ thuật về ánh sáng và công năng sử dụng.

Có thể bạn quan tâm: Bản Vẽ Cad Nhà Vệ Sinh Gia Đình: Hướng Dẫn Chi Tiết Từ A-z
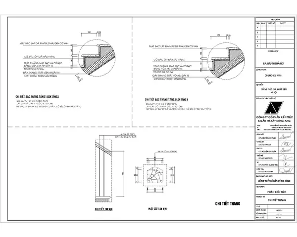
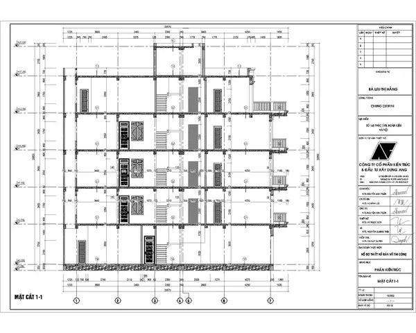
Bản vẽ mặt cắt hồ sơ thiết kế chung cư mini 5 tầng 100m2
Mặt cắt công trình cung cấp cái nhìn chi tiết về cấu trúc, hệ thống kỹ thuật, chiều cao các tầng, sự liên kết giữa các không gian. Đặc biệt, bản vẽ mặt cắt thang bộ và thang máy thể hiện rõ cách bố trí giao thông trong tòa nhà, đảm bảo sự thuận tiện cho việc di chuyển giữa các tầng.
Đánh giá về hiệu quả đầu tư và kiến trúc
Nhu cầu thuê căn hộ mini tại các thành phố lớn như Hà Nội luôn ở mức cao. Với mức đầu tư dự kiến khoảng 4 tỷ đồng cho một công trình 5 tầng trên diện tích 100m2, chủ đầu tư có thể kỳ vọng thu hồi vốn trong khoảng 5 năm và đạt lợi nhuận hấp dẫn trong các năm tiếp theo.
Kiến trúc sư Angcovat với kinh nghiệm dày dặn đã chứng minh năng lực trong việc tối ưu hóa không gian, mang đến một giải pháp thiết kế vừa đáp ứng hiệu quả kinh tế, vừa đảm bảo chất lượng sống cho người thuê. Thiết kế này không chỉ là một công trình cho thuê mà còn góp phần tạo nên một không gian sống văn minh, hiện đại tại khu vực.
Khám phá thêm các giải pháp nội thất sáng tạo tại Interstellas.

Có thể bạn quan tâm: Cách Bố Trí Quán Cafe Nhỏ: 7 Bí Quyết Tạo Không Gian Rộng Rãi

Có thể bạn quan tâm: Top 20 Mẫu Cửa Gỗ 4 Cánh Mặt Tiền Đẹp & Sang Trọng
































