Trong bối cảnh đô thị hóa ngày càng phát triển và nhu cầu về một không gian sống tiện nghi, ấm cúng nhưng vẫn đảm bảo tính kinh tế, mẫu nhà 1 tầng đơn giản đã trở thành lựa chọn hàng đầu của nhiều gia đình Việt. Những ngôi nhà này không chỉ mang đến vẻ đẹp thanh lịch, hiện đại mà còn tối ưu hóa công năng sử dụng, giúp chủ nhân tiết kiệm đáng kể chi phí xây dựng và bảo trì. Bài viết này của Interstellas sẽ cung cấp một cái nhìn tổng quan, phân tích sâu về các yếu tố thiết kế, và gợi ý những mẫu nhà 1 tầng đơn giản đang được ưa chuộng nhất hiện nay, giúp bạn kiến tạo tổ ấm mơ ước một cách hiệu quả và thông minh.
Tổng Quan Về Nhà 1 Tầng Đơn Giản: Xu Hướng Và Lợi Ích

Có thể bạn quan tâm: Gỗ Hương Đá Bao Nhiêu Tiền 1m3? Cập Nhật Giá & Yếu Tố Ảnh Hưởng
Mẫu nhà 1 tầng đơn giản là các thiết kế nhà ở chỉ có một tầng duy nhất, tập trung vào sự tối giản trong kiến trúc, tối ưu hóa công năng và mang lại cảm giác thoải mái, gần gũi cho người sử dụng. Xu hướng này ngày càng phổ biến bởi nhiều lợi ích vượt trội. Những ngôi nhà này thường được thiết kế với bố cục mở, ít vách ngăn, tận dụng tối đa ánh sáng tự nhiên và thông gió, tạo cảm giác rộng rãi và thoáng đãng hơn so với diện tích thực tế. Đồng thời, chúng cũng đặc biệt phù hợp với các gia đình có trẻ nhỏ hoặc người lớn tuổi nhờ không gian liền mạch, không cầu thang, giúp việc di chuyển dễ dàng và an toàn hơn. Sự linh hoạt trong phong cách thiết kế từ hiện đại, tối giản đến mộc mạc, tân cổ điển cũng là yếu tố quan trọng khiến các mẫu nhà 1 tầng đơn giản trở thành lựa chọn lý tưởng cho nhiều gia đình Việt Nam.
I. Tại Sao Mẫu Nhà 1 Tầng Đơn Giản Lại Trở Thành Lựa Chọn Ưu Tiên?

Có thể bạn quan tâm: Đèn Led Trang Trí Ban Công: Tạo Không Gian Lý Tưởng Với Ánh Sáng
<>Xem Thêm Bài Viết:<>
Việc lựa chọn xây dựng một ngôi nhà là một quyết định lớn, đòi hỏi sự cân nhắc kỹ lưỡng về nhiều yếu tố, từ chi phí, công năng đến thẩm mỹ. Trong số các loại hình nhà ở, mẫu nhà 1 tầng đơn giản ngày càng khẳng định vị thế của mình như một giải pháp tối ưu, đáp ứng được hầu hết các yêu cầu khắt khe của gia chủ hiện đại. Dưới đây là những lý do chính khiến loại hình này trở nên phổ biến.
Tiết Kiệm Chi Phí Xây Dựng và Vận Hành
Một trong những ưu điểm nổi bật nhất của mẫu nhà 1 tầng đơn giản là khả năng tiết kiệm chi phí. Theo các kiến trúc sư và nhà thầu xây dựng, việc thi công nhà 1 tầng thường ít tốn kém hơn so với nhà nhiều tầng. Cụ thể, không cần hệ thống móng quá phức tạp, không yêu cầu kết cấu chịu lực quá lớn cho các tầng trên, và đặc biệt là chi phí cho giàn giáo, nhân công và vật liệu phần thô sẽ được cắt giảm đáng kể. Hơn nữa, việc vận hành và bảo trì ngôi nhà cũng đơn giản hơn. Chi phí điện năng cho việc chiếu sáng và làm mát thường thấp hơn do không gian dễ dàng thông gió tự nhiên, và việc sửa chữa, bảo dưỡng các hạng mục như mái nhà, tường, hoặc hệ thống điện nước cũng thuận tiện hơn.
Dễ Dàng Thi Công và Bảo Trì
Cấu trúc nhà 1 tầng thường đơn giản, giúp quá trình thi công diễn ra nhanh chóng và ít gặp phát sinh hơn. Các đội thợ xây dựng không cần phải di chuyển vật liệu lên cao, giảm thiểu rủi ro an toàn lao động và đẩy nhanh tiến độ hoàn thành công trình. Đây là một lợi thế lớn đối với những gia đình muốn nhanh chóng ổn định chỗ ở hoặc có quỹ thời gian xây dựng hạn hẹp. Sau khi hoàn thành, việc bảo trì ngôi nhà cũng trở nên dễ dàng hơn bao giờ hết. Ví dụ, việc quét dọn, sơn sửa tường ngoài, hay kiểm tra hệ thống thoát nước đều có thể thực hiện một cách thuận tiện mà không cần đến các thiết bị chuyên dụng hay sự hỗ trợ phức tạp.
Phù Hợp Với Nhiều Đối Tượng và Lối Sống
Mẫu nhà 1 tầng đơn giản đặc biệt lý tưởng cho các gia đình có trẻ nhỏ, người lớn tuổi hoặc những người yêu thích sự tiện nghi và an toàn. Việc không có cầu thang giúp loại bỏ rủi ro té ngã, tạo không gian di chuyển liền mạch và thuận lợi cho mọi thành viên trong gia đình. Đối với các cặp vợ chồng trẻ, đây là giải pháp kinh tế để bắt đầu cuộc sống hôn nhân. Với người lớn tuổi, sự tiện lợi trong sinh hoạt hàng ngày là điều vô cùng quý giá. Hơn nữa, kiểu nhà này còn phù hợp với những gia chủ muốn tận hưởng không gian sống gần gũi với thiên nhiên, dễ dàng kết nối các phòng chức năng với sân vườn hoặc tiểu cảnh xung quanh.
Tối Ưu Không Gian Sống và Công Năng Sử Dụng
Tuy chỉ có một tầng, nhưng mẫu nhà 1 tầng đơn giản lại có thể được thiết kế để tối ưu hóa không gian một cách bất ngờ. Với bố cục mở, các khu vực như phòng khách, phòng ăn và bếp thường được kết nối liền mạch, tạo cảm giác rộng rãi và thoáng đãng. Việc sử dụng vách ngăn di động, nội thất đa năng hoặc các giải pháp lưu trữ thông minh giúp tận dụng mọi ngóc ngách, đảm bảo mỗi mét vuông đều phát huy tối đa công năng. Điều này không chỉ giúp ngôi nhà gọn gàng, ngăn nắp mà còn tăng cường sự tương tác giữa các thành viên trong gia đình, mang đến một không gian sống ấm cúng và tiện nghi.
Tính Thẩm Mỹ Cao và Đa Dạng Phong Cách
Khác với quan niệm cũ rằng nhà 1 tầng thường đơn điệu, các mẫu nhà 1 tầng đơn giản hiện nay được các kiến trúc sư thổi hồn vào với sự đa dạng về phong cách và tính thẩm mỹ cao. Từ phong cách hiện đại với đường nét khỏe khoắn, tối giản đến phong cách Indochine nhẹ nhàng, mộc mạc, hay thậm chí là phong cách Bắc Âu thanh lịch, mỗi thiết kế đều mang một vẻ đẹp riêng, phản ánh cá tính của gia chủ. Sự linh hoạt trong việc lựa chọn vật liệu, màu sắc và các chi tiết trang trí nhỏ cũng góp phần tạo nên những ngôi nhà 1 tầng độc đáo, không chỉ là nơi để ở mà còn là tác phẩm nghệ thuật kiến trúc đầy cảm hứng.
II. Các Yếu Tố Cốt Lõi Tạo Nên Mẫu Nhà 1 Tầng Đơn Giản Đẹp

Có thể bạn quan tâm: Cách Chọn Bàn Ghế Gỗ Hương Chất Lượng: Kinh Nghiệm Từ Chuyên Gia
Để kiến tạo một mẫu nhà 1 tầng đơn giản không chỉ tiện nghi mà còn đẹp mắt, hài hòa, việc chú trọng đến các yếu tố thiết kế cốt lõi là vô cùng quan trọng. Sự kết hợp tinh tế giữa kiến trúc, vật liệu và bố cục không gian sẽ mang lại giá trị thẩm mỹ và công năng sử dụng tối ưu.
Thiết Kế Mái Nhà
Mái nhà không chỉ có chức năng che mưa nắng mà còn là yếu tố quan trọng định hình phong cách kiến trúc tổng thể của ngôi nhà 1 tầng.
- Mái Thái: Nổi bật với độ dốc cao, tạo cảm giác thanh thoát, cao ráo và giúp thoát nước tốt. Mái Thái mang đến vẻ đẹp truyền thống nhưng vẫn rất sang trọng, phù hợp với khí hậu nhiệt đới gió mùa của Việt Nam.
- Mái Nhật: Có độ dốc thấp hơn mái Thái, tạo sự nhẹ nhàng, hiện đại và tinh tế. Mái Nhật thường được thiết kế mở rộng ra các phía, giúp che chắn tốt và tạo không gian sống gần gũi hơn với thiên nhiên. Theo các chuyên gia thiết kế, mái Nhật là lựa chọn lý tưởng cho những ai yêu thích sự đơn giản nhưng vẫn muốn tạo điểm nhấn độc đáo.
- Mái Bằng: Mang phong cách hiện đại, khỏe khoắn. Mái bằng phù hợp với những mẫu nhà 1 tầng đơn giản theo lối kiến trúc tối giản, giúp tạo không gian sân thượng hoặc trồng cây cảnh phía trên, tận dụng tối đa diện tích.
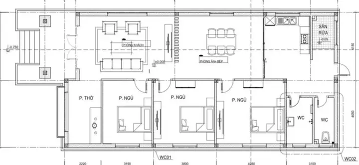
Bố Trí Mặt Bằng Công Năng
Bố trí mặt bằng hiệu quả là chìa khóa để một ngôi nhà 1 tầng trở nên tiện nghi và thoải mái. Nguyên tắc hàng đầu là tạo ra các không gian mở, liên thông giữa phòng khách, bếp và phòng ăn để tối ưu hóa diện tích và tăng cường sự kết nối giữa các thành viên. Các phòng ngủ nên được đặt ở những vị trí yên tĩnh, đảm bảo sự riêng tư. Việc phân chia khu vực chức năng hợp lý, tránh các hành lang dài và không cần thiết sẽ giúp ngôi nhà thoáng đãng hơn. Đặc biệt, với mẫu nhà 1 tầng đơn giản, việc tích hợp các khu vực đa năng như bàn ăn kiêm bàn làm việc, hoặc tủ âm tường sẽ giúp không gian luôn gọn gàng và khoa học.
Lựa Chọn Vật Liệu Xây Dựng
Vật liệu xây dựng không chỉ ảnh hưởng đến chi phí mà còn quyết định độ bền, tính thẩm mỹ và khả năng cách nhiệt của ngôi nhà. Để tạo nên một mẫu nhà 1 tầng đơn giản đẹp và tiết kiệm, việc ưu tiên các vật liệu địa phương, thân thiện môi trường và có chi phí hợp lý là rất quan trọng.
- Gạch, bê tông: Là những vật liệu cơ bản, bền vững và dễ tìm.
- Gỗ tự nhiên hoặc gỗ công nghiệp: Được sử dụng cho sàn, cửa, trần nhà hoặc nội thất, mang lại vẻ ấm cúng và sang trọng.
- Kính cường lực: Tối ưu hóa ánh sáng tự nhiên, tạo cảm giác mở rộng không gian.
- Vật liệu hoàn thiện như sơn, gạch ốp lát: Nên chọn màu sắc trung tính, dễ phối hợp và bền màu theo thời gian. Sử dụng vật liệu có nguồn gốc rõ ràng, đạt tiêu chuẩn chất lượng sẽ đảm bảo tuổi thọ cho công trình.
Ánh Sáng Tự Nhiên và Thông Gió
Ánh sáng tự nhiên và thông gió là hai yếu tố không thể thiếu để tạo nên một không gian sống khỏe mạnh và tràn đầy năng lượng. Đối với mẫu nhà 1 tầng đơn giản, việc bố trí cửa sổ lớn, cửa ra vào bằng kính, hoặc giếng trời là giải pháp hiệu quả để đưa ánh sáng vào sâu bên trong. Hệ thống thông gió tự nhiên thông qua việc sắp xếp các cửa đối diện nhau (thông gió xuyên phòng) hoặc sử dụng các khe thông gió ở mái sẽ giúp không khí trong nhà luôn lưu thông, mát mẻ, đặc biệt quan trọng trong điều kiện khí hậu nhiệt đới. Một không gian đủ ánh sáng và thoáng khí không chỉ tiết kiệm năng lượng mà còn có lợi cho sức khỏe và tinh thần của gia chủ.
Màu Sắc và Phong Cách Trang Trí
Màu sắc chủ đạo và phong cách trang trí nội thất đóng vai trò quan trọng trong việc thể hiện cá tính của gia chủ và tạo nên không khí cho ngôi nhà.
- Gam màu trung tính: Xám, trắng, be, kem thường được ưu tiên cho mẫu nhà 1 tầng đơn giản vì chúng tạo cảm giác nhẹ nhàng, rộng rãi và dễ dàng phối hợp với đồ nội thất.
- Phong cách tối giản (Minimalist): Tập trung vào những món đồ nội thất thiết yếu, đường nét gọn gàng, màu sắc hài hòa, tránh rườm rà.
- Phong cách Scandinavian: Mang đến sự ấm áp, tinh tế với vật liệu gỗ tự nhiên, gam màu sáng và nhiều cây xanh.
- Phong cách Modern: Ưu tiên sự tiện nghi, công năng với vật liệu hiện đại như kim loại, kính.
Việc chọn lựa một phong cách thống nhất và sử dụng màu sắc hài hòa sẽ giúp ngôi nhà 1 tầng đơn giản không chỉ đẹp mà còn mang một dấu ấn riêng biệt, phản ánh đúng gu thẩm mỹ của chủ nhân.
III. Tuyển Chọn Các Mẫu Nhà 1 Tầng Đơn Giản Đẹp Nhất Hiện Nay
Thị trường kiến trúc và xây dựng luôn phát triển không ngừng, mang đến vô vàn ý tưởng cho mẫu nhà 1 tầng đơn giản. Dưới đây là tuyển chọn những phong cách thiết kế được ưa chuộng, đáp ứng đa dạng nhu cầu và sở thích của các gia đình.
Mẫu Nhà 1 Tầng Đơn Giản Mái Thái
Nhà mái Thái luôn là một trong những lựa chọn hàng đầu của người Việt nhờ sự kết hợp hài hòa giữa nét truyền thống và hiện đại. Thiết kế mái Thái với độ dốc lớn không chỉ tạo hình khối đẹp mắt, uy nghi mà còn có khả năng thoát nước mưa cực tốt, chống nóng hiệu quả vào mùa hè. Kiểu nhà này thường có hình dáng chữ L hoặc chữ nhật, mang lại không gian sống tiện nghi, thoáng đãng. Về mặt phong thủy, mái Thái cũng được cho là mang lại vượng khí tốt cho gia chủ. Các mẫu nhà 1 tầng đơn giản mái Thái thường sử dụng các vật liệu quen thuộc như gạch, ngói màu, kết hợp với các chi tiết trang trí nhẹ nhàng, tạo nên vẻ đẹp thanh lịch, vượt thời gian.
Mẫu Nhà 1 Tầng Đơn Giản Mái Nhật
Nhà mái Nhật, hay còn gọi là mái lùn, là phong cách kiến trúc du nhập từ Nhật Bản, đang ngày càng được yêu thích bởi vẻ đẹp tinh tế, hiện đại và sự hài hòa với thiên nhiên. Đặc trưng của mái Nhật là độ dốc vừa phải, thường mở rộng ra các hướng, tạo cảm giác nhẹ nhàng, thanh thoát cho ngôi nhà. Các mẫu nhà 1 tầng đơn giản mái Nhật thường có kiến trúc tối giản, tận dụng tối đa ánh sáng tự nhiên và không gian xanh. Vật liệu chủ yếu là bê tông, gỗ, kính, kết hợp với các gam màu trung tính tạo nên tổng thể sang trọng và ấm cúng. Mái Nhật cũng giúp bảo vệ tường nhà khỏi mưa nắng hiệu quả, đồng thời tạo điểm nhấn kiến trúc độc đáo, phù hợp với những gia chủ yêu thích sự thanh bình và giản dị.
Mẫu Nhà 1 Tầng Hiện Đại, Tối Giản
Phong cách hiện đại và tối giản là xu hướng không bao giờ lỗi thời trong kiến trúc nhà ở, đặc biệt là với mẫu nhà 1 tầng đơn giản. Loại hình này tập trung vào các đường nét thẳng, hình khối rõ ràng, không gian mở và loại bỏ mọi chi tiết rườm rà. Mục tiêu là tạo ra một không gian sống tiện nghi, thoải mái và gần gũi với thiên nhiên. Vật liệu chủ đạo thường là bê tông, kính, thép, kết hợp với gam màu trắng, xám, đen. Nội thất được lựa chọn kỹ lưỡng, đa năng và có thiết kế gọn gàng. Ưu điểm lớn nhất của phong cách này là khả năng tối ưu hóa công năng, mang lại cảm giác rộng rãi và thoáng đãng cho ngôi nhà, đồng thời dễ dàng vệ sinh và bảo trì.
Mẫu Nhà 1 Tầng Phong Cách Rustic (Mộc mạc)
Nếu bạn là người yêu thích vẻ đẹp tự nhiên, gần gũi và muốn tìm về sự yên bình, mẫu nhà 1 tầng đơn giản phong cách Rustic chắc chắn sẽ làm hài lòng bạn. Phong cách này chú trọng vào việc sử dụng các vật liệu thô mộc, chưa qua xử lý hoặc xử lý ít như gỗ tự nhiên, đá, gạch nung. Kiến trúc ngôi nhà thường có vẻ ngoài vững chãi, chân thực, kết hợp với các chi tiết trang trí thủ công, mang đậm dấu ấn cá nhân. Không gian nội thất thường ấm cúng, có thể có lò sưởi, đồ nội thất gỗ sần, vải lanh, tạo cảm giác như đang sống giữa thiên nhiên. Đây là lựa chọn tuyệt vời cho những ngôi nhà ở nông thôn, ngoại ô hoặc những gia chủ muốn tạo một không gian nghỉ dưỡng ngay tại nhà.
Mẫu Nhà 1 Tầng Kiểu Biệt Thự Vườn Mini
Biệt thự vườn mini là sự kết hợp hoàn hảo giữa không gian sống tiện nghi và môi trường xanh mát. Với mẫu nhà 1 tầng đơn giản này, trọng tâm thiết kế không chỉ nằm ở kiến trúc ngôi nhà mà còn mở rộng ra cảnh quan sân vườn xung quanh. Ngôi nhà thường có nhiều cửa sổ lớn, cửa kính trượt để kết nối trực tiếp với khu vườn, hồ cá koi hoặc thảm cỏ xanh mướt. Kiến trúc thường không quá cầu kỳ, chú trọng vào sự hài hòa với thiên nhiên. Đây là lựa chọn lý tưởng cho những gia đình có diện tích đất rộng, mong muốn một không gian sống thư giãn, trong lành, nơi cả gia đình có thể tận hưởng không khí trong lành và cảnh quan tươi đẹp mỗi ngày.
Mẫu Nhà 1 Tầng Chữ L hoặc Chữ U (Tối ưu diện tích)
Thiết kế nhà 1 tầng theo hình chữ L hoặc chữ U là giải pháp thông minh để tối ưu hóa diện tích đất, đặc biệt là với những lô đất không vuông vắn hoặc có chiều rộng hạn chế. Hình dáng đặc biệt này giúp tạo ra một khoảng sân trong hoặc giếng trời, mang lại ánh sáng và thông gió tự nhiên cho toàn bộ ngôi nhà. Khu vực sân trong có thể được biến thành nơi thư giãn, sân chơi cho trẻ em hoặc khu vực ăn uống ngoài trời. Về công năng, nhà chữ L hoặc chữ U dễ dàng phân chia các khu vực chức năng một cách khoa học, đảm bảo sự riêng tư cho từng không gian mà vẫn duy trì sự kết nối cần thiết. Các mẫu nhà 1 tầng đơn giản dạng này thường rất linh hoạt trong thiết kế, có thể biến hóa từ hiện đại đến truyền thống.
Mẫu Nhà 1 Tầng Có Gác Lửng (Tăng không gian sử dụng)
Đối với những lô đất có diện tích hạn chế nhưng vẫn muốn tăng cường không gian sử dụng, mẫu nhà 1 tầng đơn giản có gác lửng là một giải pháp vô cùng hiệu quả. Gác lửng không chỉ tạo thêm một tầng không gian cho các chức năng phụ như phòng thờ, phòng đọc sách, phòng làm việc hoặc thậm chí là một phòng ngủ nhỏ, mà còn giúp không gian tầng trệt trở nên cao ráo, thoáng đãng hơn. Thiết kế gác lửng đòi hỏi sự tính toán kỹ lưỡng về chiều cao trần, hệ thống cầu thang và ánh sáng để đảm bảo an toàn và tính thẩm mỹ. Đây là lựa chọn thông minh để tối ưu hóa diện tích sử dụng mà vẫn giữ được đặc trưng của một ngôi nhà 1 tầng.
Mẫu Nhà 1 Tầng Kích Thước Nhỏ (Dưới 80m2)
Dù diện tích khiêm tốn, các mẫu nhà 1 tầng đơn giản dưới 80m2 vẫn có thể trở thành tổ ấm lý tưởng nếu được thiết kế khoa học và tinh tế. Chìa khóa nằm ở việc tối ưu hóa bố cục, sử dụng nội thất đa năng và các giải pháp lưu trữ thông minh. Phòng khách, bếp và phòng ăn thường được thiết kế liền mạch trong không gian mở. Các gam màu sáng, gương và vật liệu phản chiếu được sử dụng để tạo cảm giác rộng rãi hơn. Đặc biệt, việc tận dụng chiều cao trần, ánh sáng tự nhiên và thông gió tốt sẽ giúp ngôi nhà nhỏ luôn thoáng đãng và tràn đầy sức sống. Đây là lựa chọn phù hợp cho các cặp vợ chồng trẻ, người độc thân hoặc gia đình ít thành viên muốn sở hữu một không gian sống tiện nghi và ấm cúng.
Mẫu Nhà 1 Tầng Kết Hợp Kinh Doanh (Tùy biến)
Nhiều gia đình hiện nay có nhu cầu kết hợp không gian sống với mục đích kinh doanh nhỏ ngay tại nhà. Mẫu nhà 1 tầng đơn giản có thể dễ dàng đáp ứng được yêu cầu này. Phần mặt tiền hoặc một phần không gian phía trước ngôi nhà có thể được thiết kế riêng biệt để làm cửa hàng, quán cà phê nhỏ, tiệm làm tóc hoặc văn phòng mini. Việc phân chia rõ ràng giữa không gian sinh hoạt riêng tư và khu vực kinh doanh là rất quan trọng để đảm bảo sự tiện lợi và chuyên nghiệp. Thiết kế phải đảm bảo cả yếu tố thẩm mỹ cho mặt tiền kinh doanh lẫn sự thoải mái cho không gian sống phía sau. Đây là giải pháp hiệu quả giúp gia chủ vừa có nơi ở, vừa có nguồn thu nhập ngay tại gia.
IV. Bí Quyết Để Có Mẫu Nhà 1 Tầng Đơn Giản Vừa Đẹp Vừa Tối Ưu Chi Phí
Để biến ước mơ về một mẫu nhà 1 tầng đơn giản đẹp và tiết kiệm chi phí thành hiện thực, gia chủ cần có một kế hoạch rõ ràng và những bí quyết thực tiễn. Việc quản lý tốt từng khâu từ thiết kế đến thi công sẽ giúp bạn đạt được kết quả mong muốn mà không vượt quá ngân sách.
Lập Kế Hoạch Chi Tiết và Dự Toán Ngân Sách
Trước khi bắt tay vào xây dựng, việc lập một kế hoạch chi tiết và dự toán ngân sách là bước không thể thiếu. Kế hoạch này bao gồm việc xác định rõ nhu cầu sử dụng, phong cách thiết kế mong muốn, diện tích xây dựng dự kiến, và đặc biệt là ngân sách tối đa có thể chi trả. Một bản dự toán ngân sách chi tiết sẽ giúp bạn kiểm soát dòng tiền, phân bổ hợp lý cho từng hạng mục như thiết kế, vật liệu thô, vật liệu hoàn thiện, nhân công, nội thất và các chi phí phát sinh. Việc tham khảo giá thị trường của vật liệu và chi phí nhân công tại địa phương cũng là một yếu tố quan trọng giúp dự toán sát thực tế hơn. Theo các chuyên gia, việc dự trù một khoản chi phí phát sinh khoảng 10-15% tổng ngân sách là cần thiết để đối phó với những tình huống không mong muốn.
Chọn Đơn Vị Thiết Kế và Thi Công Uy Tín
Chất lượng của ngôi nhà phụ thuộc rất nhiều vào kinh nghiệm và sự chuyên nghiệp của đơn vị thiết kế và thi công. Hãy tìm kiếm các kiến trúc sư hoặc công ty xây dựng có uy tín, có nhiều kinh nghiệm trong việc thiết kế và xây dựng mẫu nhà 1 tầng đơn giản. Một đơn vị tốt sẽ không chỉ cung cấp bản vẽ đẹp mà còn tư vấn về vật liệu, giải pháp thi công hiệu quả, giúp bạn tối ưu hóa chi phí mà vẫn đảm bảo chất lượng. Việc lựa chọn một nhà thầu đáng tin cậy cũng giúp tránh được các rủi ro về chất lượng công trình, tiến độ và các vấn đề pháp lý. Bạn có thể tham khảo các dự án đã thực hiện của họ hoặc tìm kiếm lời khuyên từ những người đã có kinh nghiệm xây nhà. Đối với các giải pháp nội thất chất lượng cao, Interstellas là một lựa chọn đáng cân nhắc để biến không gian sống của bạn trở nên hoàn hảo.
Ưu Tiên Vật Liệu Địa Phương và Bền Vững
Để giảm thiểu chi phí vận chuyển và hỗ trợ kinh tế địa phương, việc ưu tiên sử dụng các vật liệu xây dựng có sẵn tại địa phương là một lựa chọn thông minh. Các vật liệu này thường có giá thành cạnh tranh hơn và dễ dàng tìm kiếm. Bên cạnh đó, hãy cân nhắc các vật liệu bền vững, thân thiện với môi trường như gạch không nung, gỗ có chứng nhận khai thác bền vững hoặc các loại sơn không độc hại. Mặc dù chi phí ban đầu có thể nhỉnh hơn một chút, nhưng về lâu dài, các vật liệu bền vững sẽ giúp ngôi nhà có tuổi thọ cao hơn, giảm chi phí bảo trì và góp phần bảo vệ môi trường.
Tối Giản Hóa Nội Thất và Trang Trí
Triết lý “đơn giản là đẹp” đặc biệt phù hợp với mẫu nhà 1 tầng đơn giản khi nói đến nội thất và trang trí. Thay vì mua sắm quá nhiều đồ đạc rườm rà, hãy tập trung vào những món đồ nội thất thiết yếu, có công năng cao và thiết kế tinh tế. Ưu tiên các đồ nội thất đa năng như sofa giường, bàn ăn có thể gấp gọn, tủ âm tường để tối ưu không gian và tạo sự gọn gàng. Màu sắc nội thất nên hài hòa với tổng thể kiến trúc, ưu tiên gam màu trung tính để tạo cảm giác rộng rãi và dễ chịu. Hạn chế các chi tiết trang trí quá cầu kỳ, thay vào đó là những điểm nhấn nhỏ, tinh tế như tranh ảnh, cây xanh, hoặc đồ thủ công mỹ nghệ.
Tận Dụng Ánh Sáng và Thông Gió Tự Nhiên
Việc tận dụng tối đa ánh sáng tự nhiên và thông gió không chỉ giúp tiết kiệm điện năng mà còn mang lại một không gian sống trong lành, tươi sáng. Thiết kế cửa sổ lớn, giếng trời ở những vị trí chiến lược, hoặc bố trí các cửa đối diện nhau để tạo luồng khí đối lưu. Sử dụng rèm cửa mỏng, màu sáng để đón nắng nhưng vẫn đảm bảo sự riêng tư. Một ngôi nhà 1 tầng được thiết kế thông minh về ánh sáng và thông gió sẽ giảm thiểu đáng kể chi phí điều hòa, quạt điện, đồng thời cải thiện chất lượng không khí bên trong, có lợi cho sức khỏe của cả gia đình.
Quy Trình Xin Giấy Phép Xây Dựng
Việc xin giấy phép xây dựng là một bước pháp lý bắt buộc và quan trọng để đảm bảo công trình của bạn hợp pháp và an toàn. Hãy tìm hiểu kỹ các quy định của địa phương về quy hoạch, mật độ xây dựng, chiều cao tối đa, và các yêu cầu khác. Chuẩn bị đầy đủ hồ sơ bao gồm bản vẽ thiết kế, giấy tờ đất đai, và các giấy tờ liên quan khác. Quá trình này có thể tốn thời gian, vì vậy hãy bắt đầu sớm để tránh làm chậm tiến độ thi công. Nếu không có kinh nghiệm, bạn có thể nhờ đơn vị thiết kế hoặc nhà thầu hỗ trợ trong việc hoàn tất các thủ tục pháp lý.
V. Thiết Kế Nội Thất Cho Mẫu Nhà 1 Tầng Đơn Giản: Nâng Tầm Không Gian Sống
Thiết kế nội thất đóng vai trò then chốt trong việc biến một mẫu nhà 1 tầng đơn giản từ một công trình kiến trúc thành một tổ ấm thực sự, nơi mọi thành viên đều cảm thấy thoải mái và hạnh phúc. Sự hài hòa giữa kiến trúc và nội thất sẽ tạo nên một không gian sống tiện nghi, thẩm mỹ và phản ánh rõ nét phong cách của gia chủ.
Phong Cách Nội Thất Phù Hợp
Để nội thất không chỉ đẹp mà còn tối ưu công năng cho mẫu nhà 1 tầng đơn giản, việc lựa chọn phong cách phù hợp là rất quan trọng.
- Phong cách Minimalist (Tối giản): Tập trung vào “ít là nhiều”, loại bỏ những thứ không cần thiết, chỉ giữ lại những món đồ công năng cao với đường nét tinh gọn. Màu sắc trung tính, không gian mở, ánh sáng tự nhiên là những đặc trưng cơ bản.
- Phong cách Scandinavian: Mang đến sự ấm áp, mộc mạc và thanh lịch. Sử dụng nhiều gỗ tự nhiên, gam màu trắng sáng, và các vật liệu dệt như len, bông. Cây xanh là yếu tố không thể thiếu để tạo không gian gần gũi thiên nhiên.
- Phong cách Modern (Hiện đại): Ưu tiên sự tiện nghi, công nghệ và tính thực dụng. Nội thất có đường nét mạnh mẽ, vật liệu hiện đại như kim loại, kính, da. Gam màu đa dạng nhưng thường có điểm nhấn mạnh mẽ.
- Phong cách Indochine nhẹ nhàng: Một biến thể của phong cách Đông Dương truyền thống, được tinh giản để phù hợp với không gian nhỏ. Vẫn giữ các họa tiết Á Đông, vật liệu gỗ, tre, mây nhưng nhẹ nhàng hơn về màu sắc và bố cục, mang lại cảm giác hoài cổ nhưng vẫn rất hiện đại và tinh tế.
Lựa Chọn Đồ Nội Thất Đa Năng
Trong không gian nhà 1 tầng, đặc biệt là các mẫu nhà 1 tầng đơn giản có diện tích khiêm tốn, đồ nội thất đa năng là giải pháp vàng.
- Sofa giường: Vừa là nơi tiếp khách, vừa có thể trở thành giường ngủ phụ khi cần.
- Bàn ăn gấp gọn: Tiết kiệm diện tích khi không sử dụng, đặc biệt hữu ích cho các căn bếp nhỏ.
- Kệ sách kết hợp vách ngăn: Vừa phân chia không gian, vừa tạo nơi lưu trữ ấn tượng.
- Giường có ngăn kéo: Tận dụng không gian dưới giường để cất giữ đồ đạc.
Việc đầu tư vào những món đồ nội thất thông minh này không chỉ giúp tiết kiệm diện tích mà còn mang lại sự tiện lợi tối đa trong sinh hoạt hàng ngày.
Tối Ưu Giải Pháp Lưu Trữ
Một không gian gọn gàng, ngăn nắp là yếu tố then chốt để mẫu nhà 1 tầng đơn giản luôn đẹp và dễ chịu. Hãy tận dụng tối đa các giải pháp lưu trữ thông minh:
- Tủ âm tường: Giúp tiết kiệm diện tích sàn và tạo vẻ đẹp liền mạch cho bức tường.
- Kệ treo tường: Sử dụng không gian chiều cao để trưng bày đồ trang trí hoặc sách.
- Hộc kéo dưới cầu thang (nếu có gác lửng): Biến khu vực trống thành nơi lưu trữ hiệu quả.
- Giỏ, hộp đựng đồ: Giúp phân loại và cất gọn những vật dụng nhỏ.
- Hệ tủ bếp thông minh: Các phụ kiện tủ bếp hiện đại giúp tối ưu không gian lưu trữ cho bát đĩa, nồi chảo và thực phẩm.
Theo lời khuyên từ các nhà thiết kế của Interstellas, việc lập kế hoạch lưu trữ ngay từ ban đầu sẽ giúp bạn có một không gian sống khoa học và tiện nghi hơn.
Ánh Sáng và Màu Sắc Trong Nội Thất
Ánh sáng và màu sắc có ảnh hưởng rất lớn đến cảm nhận về không gian. Đối với mẫu nhà 1 tầng đơn giản, hãy ưu tiên ánh sáng tự nhiên và bổ sung ánh sáng nhân tạo một cách hợp lý.
- Ánh sáng tự nhiên: Cửa sổ lớn, rèm mỏng, giếng trời.
- Ánh sáng nhân tạo: Sử dụng đèn downlight, đèn led âm trần để tạo ánh sáng đồng đều; đèn trang trí (đèn bàn, đèn sàn) để tạo điểm nhấn và không khí ấm cúng.
- Màu sắc: Các gam màu sáng như trắng, be, kem không chỉ giúp không gian trông rộng rãi hơn mà còn phản chiếu ánh sáng tốt, làm cho ngôi nhà luôn tươi sáng. Có thể kết hợp với một vài điểm nhấn màu sắc nổi bật thông qua gối tựa, tranh ảnh hoặc đồ trang trí để tạo sự sinh động.
Cây Xanh và Yếu Tố Trang Trí
Mang cây xanh vào nhà là cách tuyệt vời để tạo thêm sức sống và sự tươi mát cho không gian sống. Những chậu cây cảnh nhỏ, cây xanh nội thất không chỉ làm đẹp mà còn giúp thanh lọc không khí. Bên cạnh đó, các yếu tố trang trí như tranh ảnh, gương, thảm, rèm cửa cũng góp phần tạo nên cá tính và sự ấm cúng cho ngôi nhà. Hãy chọn những món đồ trang trí có ý nghĩa, phù hợp với phong cách chung của ngôi nhà và không làm không gian trở nên lộn xộn. Sự tinh tế trong việc lựa chọn và sắp đặt các chi tiết nhỏ sẽ tạo nên sự khác biệt lớn cho mẫu nhà 1 tầng đơn giản của bạn.
VI. Những Lưu Ý Quan Trọng Khi Xây Dựng và Hoàn Thiện
Quá trình xây dựng một mẫu nhà 1 tầng đơn giản đòi hỏi sự giám sát chặt chẽ và lưu ý đến nhiều khía cạnh để đảm bảo chất lượng, an toàn và đúng tiến độ. Việc chuẩn bị kỹ lưỡng và kiểm soát từng giai đoạn sẽ giúp bạn có được ngôi nhà ưng ý nhất.
Giám Sát Chặt Chẽ Quá Trình Thi Công
Dù đã chọn được nhà thầu uy tín, việc giám sát thi công vẫn là một yếu tố không thể bỏ qua. Nếu không có kinh nghiệm chuyên môn, bạn có thể thuê một đơn vị giám sát độc lập hoặc thường xuyên có mặt tại công trường để theo dõi tiến độ và chất lượng. Việc này giúp đảm bảo rằng công trình được thực hiện đúng theo bản vẽ thiết kế, sử dụng vật liệu đã thống nhất và tuân thủ các tiêu chuẩn kỹ thuật. Bất kỳ sai sót nào cũng cần được phát hiện và khắc phục kịp thời để tránh những hậu quả lớn về sau.
Kiểm Tra Chất Lượng Vật Liệu
Chất lượng vật liệu xây dựng quyết định trực tiếp đến độ bền và tuổi thọ của mẫu nhà 1 tầng đơn giản. Hãy yêu cầu nhà thầu cung cấp hóa đơn, chứng từ chứng minh nguồn gốc và chất lượng của vật liệu. Kiểm tra các mẫu vật liệu như xi măng, cát, đá, sắt thép, gạch, ngói… ngay khi chúng được đưa đến công trường. Đảm bảo chúng đạt tiêu chuẩn và đúng với thỏa thuận trong hợp đồng. Việc sử dụng vật liệu kém chất lượng không chỉ ảnh hưởng đến kết cấu mà còn tiềm ẩn nhiều rủi ro về an toàn trong quá trình sử dụng.
Đảm Bảo An Toàn Lao Động
An toàn lao động là yếu tố ưu tiên hàng đầu trong mọi công trình xây dựng. Nhà thầu cần trang bị đầy đủ thiết bị bảo hộ cho công nhân như mũ bảo hiểm, giày bảo hộ, găng tay và dây an toàn. Đảm bảo khu vực công trường được rào chắn cẩn thận, có biển cảnh báo nguy hiểm. Tránh để vật liệu xây dựng bừa bãi gây cản trở lối đi hoặc tai nạn. Việc tuân thủ nghiêm ngặt các quy định về an toàn lao động không chỉ bảo vệ tính mạng và sức khỏe của công nhân mà còn thể hiện sự chuyên nghiệp và trách nhiệm của chủ đầu tư và nhà thầu.
Bảo Dưỡng Định Kỳ Để Duy Trì Vẻ Đẹp
Sau khi hoàn thiện và đưa vào sử dụng, việc bảo dưỡng định kỳ là cần thiết để duy trì vẻ đẹp và độ bền cho mẫu nhà 1 tầng đơn giản của bạn. Hãy lập lịch kiểm tra và vệ sinh các hạng mục như mái nhà, hệ thống thoát nước, tường, cửa sổ và hệ thống điện nước ít nhất mỗi năm một lần. Sơn lại tường khi cần thiết, sửa chữa các vết nứt nhỏ, và xử lý kịp thời các vấn đề về thấm dột. Việc bảo dưỡng chủ động sẽ giúp phát hiện sớm các hư hỏng và khắc phục chúng trước khi trở thành vấn đề nghiêm trọng, tiết kiệm chi phí sửa chữa lớn trong tương lai và giữ cho ngôi nhà luôn như mới.
Tóm lại, việc sở hữu một mẫu nhà 1 tầng đơn giản không chỉ mang lại một không gian sống tiện nghi, thoải mái mà còn là biểu tượng của sự tinh tế và lối sống hiện đại. Từ việc tối ưu chi phí xây dựng, dễ dàng bảo trì cho đến khả năng linh hoạt trong thiết kế, những ngôi nhà này thực sự là lựa chọn lý tưởng cho nhiều gia đình Việt Nam. Bằng cách chú trọng vào các yếu tố cốt lõi như thiết kế mái nhà, bố cục công năng, lựa chọn vật liệu, và đặc biệt là sự hỗ trợ từ các chuyên gia thiết kế và đơn vị thi công uy tín như Interstellas, bạn hoàn toàn có thể biến ý tưởng về tổ ấm đơn giản nhưng đầy đủ tiện nghi thành hiện thực một cách hiệu quả nhất.
















