Việc thiết kế một căn hộ chung cư 3 phòng ngủ đòi hỏi sự tinh tế và am hiểu sâu sắc về cách tối đa hóa không gian và công năng. Đây không chỉ là việc sắp xếp đồ đạc, mà còn là tạo ra một tổ ấm hài hòa, phản ánh phong cách sống và đáp ứng nhu cầu của mọi thành viên. Bài viết này sẽ cung cấp cái nhìn toàn diện về mặt bằng chung cư 3 phòng ngủ, từ những đặc điểm cơ bản đến các giải pháp thiết kế sáng tạo, giúp bạn kiến tạo không gian sống mơ ước.
Sơ lược về mặt bằng chung cư 3 phòng ngủ
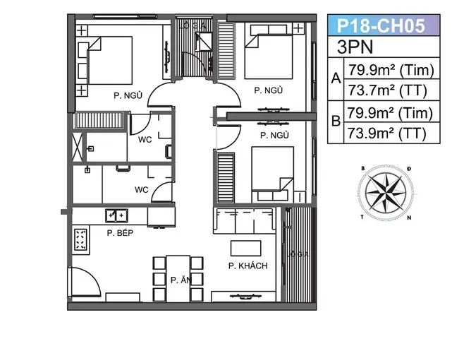
Mặt bằng chung cư 3 phòng ngủ thường được thiết kế để phục vụ các gia đình đông thành viên hoặc những ai mong muốn không gian sống rộng rãi, linh hoạt hơn. Loại hình căn hộ này thường có diện tích từ 75m² đến hơn 110m², bao gồm một phòng khách, khu vực bếp và ăn uống, ba phòng ngủ riêng biệt, và thường là hai phòng tắm. Điểm đặc trưng là sự hiện diện của logia hoặc ban công, cùng với hệ thống cửa sổ lớn, tối ưu hóa ánh sáng tự nhiên và thông gió. Với cấu trúc này, căn hộ 3 phòng ngủ mang đến sự riêng tư cho từng cá nhân đồng thời vẫn duy trì không gian chung ấm cúng, là lựa chọn lý tưởng cho cuộc sống hiện đại.
Phân tích chuyên sâu về mặt bằng chung cư 3 phòng ngủ
Căn hộ 3 phòng ngủ đại diện cho một lựa chọn phổ biến, đáp ứng nhu cầu về không gian sống linh hoạt và riêng tư cho nhiều đối tượng gia đình. Để khai thác tối đa tiềm năng của loại hình này, việc hiểu rõ các yếu tố cấu thành và cách chúng tương tác là vô cùng quan trọng.
Đặc điểm nổi bật của mặt bằng căn hộ 3 phòng ngủ
Cấu trúc cơ bản của một căn hộ 3 phòng ngủ thường bao gồm một không gian sinh hoạt chung rộng rãi, được bố trí liền mạch giữa phòng khách, khu vực ăn uống và bếp. Ba phòng ngủ được phân bổ hợp lý, đảm bảo sự riêng tư cho từng thành viên, trong đó có một phòng ngủ master thường đi kèm nhà vệ sinh riêng. Hai nhà vệ sinh được thiết kế để phục vụ nhu cầu chung và riêng. Logia hoặc ban công là điểm cộng, không chỉ giúp lấy sáng mà còn mở ra tầm nhìn đẹp, tạo không gian thư giãn. Các căn hộ này thường nằm ở vị trí góc của tòa nhà, cho phép tiếp cận nhiều mặt thoáng hơn, tăng cường lưu thông không khí và ánh sáng tự nhiên, điều mà các kiến trúc sư tại Interstellas luôn chú trọng.
Đối tượng phù hợp với căn hộ 3 phòng ngủ
Mặt bằng căn hộ 3 phòng ngủ lý tưởng cho nhiều loại hình gia đình khác nhau. Các gia đình đa thế hệ với ông bà, cha mẹ và con cái sẽ tìm thấy sự thoải mái và riêng tư cần thiết. Những gia đình có con lớn, muốn mỗi con có một không gian riêng để phát triển cũng rất phù hợp. Ngoài ra, các cặp vợ chồng trẻ có ý định có thêm thành viên trong tương lai hoặc muốn có một phòng làm việc tại nhà, phòng đọc sách, hoặc phòng đa năng cũng sẽ đánh giá cao sự linh hoạt mà căn hộ 3 phòng ngủ mang lại.
Các dạng mặt bằng 3 phòng ngủ phổ biến
Dù có chung số lượng phòng, mặt bằng chung cư 3 phòng ngủ có thể biến đổi đáng kể về cách bố trí không gian, ảnh hưởng trực tiếp đến trải nghiệm sống.
<>Xem Thêm Bài Viết:<>- Tại sao bàn ăn mặt đá chân inox là lựa chọn hàng đầu?
- Hộ Chiếu Làm Ở Đâu? Hướng Dẫn Chi Tiết A-Z Để Cấp Hộ Chiếu Mới
- Khám Phá Toàn Diện Các Dự Án Của CapitaLand Tại Việt Nam
- Lâm Thị Phấn: Cuộc đời và sự nghiệp của “Người đẹp Tây Đô” – Anh hùng lực lượng vũ trang nhân dân
- Giải Pháp An Toàn Toàn Diện: Tầm Quan Trọng Của Cửa Chống Cháy Chung Cư
- Mặt bằng tuyến tính (Linear Layout): Các phòng chức năng thường được sắp xếp theo một trục thẳng, với hành lang chạy dọc. Dạng này có ưu điểm là dễ dàng định hình các khu vực chức năng riêng biệt nhưng có thể hạn chế ánh sáng tự nhiên cho các phòng nằm sâu bên trong.
- Mặt bằng góc (Corner Layout): Thường có hai mặt tiếp xúc với không gian bên ngoài, mang lại ưu thế vượt trội về ánh sáng và thông gió. Các phòng ngủ thường được bố trí ở các góc, tối đa hóa tầm nhìn và sự riêng tư. Đây là một trong những lựa chọn được ưa chuộng nhất.
- Mặt bằng mở (Open-plan Layout): Khu vực phòng khách, bếp và ăn uống được thiết kế liên thông, tạo cảm giác rộng rãi và thoáng đãng hơn. Các phòng ngủ vẫn được giữ riêng tư. Dạng này phù hợp với phong cách sống hiện đại, đề cao sự kết nối giữa các thành viên.
Phương án thiết kế nội thất tối ưu cho mặt bằng chung cư 3 phòng ngủ
Để biến một mặt bằng trống thành một không gian sống đầy đủ tiện nghi và thẩm mỹ, việc lên phương án thiết kế nội thất là bước không thể thiếu. Mỗi khu vực chức năng đều cần được cân nhắc kỹ lưỡng để tối đa hóa công năng và vẻ đẹp.
Thiết kế nội thất phòng khách: Trung tâm của ngôi nhà
Phòng khách là nơi đầu tiên đón tiếp khách và cũng là không gian sinh hoạt chung quan trọng nhất của gia đình. Với mặt bằng chung cư 3 phòng ngủ, phòng khách thường có diện tích đủ lớn để tạo điểm nhấn.
- Bố cục: Ưu tiên bố trí sofa chữ L hoặc chữ U để tạo không gian quây quần ấm cúng. Bàn trà hình tròn hoặc oval giúp không gian mềm mại hơn, tránh cảm giác cứng nhắc.
- Nội thất: Chọn sofa có gam màu trung tính như xám, be hoặc màu xanh dịu mát để tạo sự thư giãn. Kệ tivi hiện đại, tích hợp các ngăn kéo hoặc tủ trưng bày giúp tối ưu không gian lưu trữ và thể hiện cá tính gia chủ. Tủ rượu âm tường hoặc kệ rượu nhỏ gọn cũng là một ý tưởng tuyệt vời.
- Ánh sáng: Trần thạch cao giật cấp kết hợp đèn LED âm trần tạo hiệu ứng ánh sáng đa chiều, tăng chiều sâu cho không gian. Đèn hắt trần và đèn sàn có thể được sử dụng để tạo điểm nhấn và chiếu sáng bổ trợ.
- Màu sắc và vật liệu: Sử dụng các tông màu sáng kết hợp với vật liệu gỗ công nghiệp hoặc tự nhiên để tạo cảm giác ấm áp, sang trọng. Thảm trải sàn lớn giúp định hình khu vực phòng khách và tăng tính thẩm mỹ.
Thiết kế nội thất phòng bếp và khu vực ăn uống: Nơi giữ lửa gia đình
Phòng bếp và khu vực ăn uống là trái tim của mỗi gia đình, nơi gắn kết yêu thương qua những bữa ăn.
- Tối ưu không gian: Tủ bếp kịch trần với hình dáng chữ L hoặc chữ U tận dụng tối đa không gian theo chiều dọc, tăng cường khả năng lưu trữ. Sơn trắng thanh lịch không chỉ mang lại vẻ đẹp hiện đại mà còn giúp không gian có vẻ rộng rãi và sạch sẽ hơn.
- Khu vực ăn uống: Bàn ăn cho 6 người hoặc hơn là lựa chọn phổ biến, phù hợp với gia đình đông thành viên. Chọn bàn ăn có thiết kế đơn giản, hiện đại, dễ dàng kết hợp với các loại ghế ăn khác nhau.
- Vật liệu và màu sắc: Ưu tiên các vật liệu dễ vệ sinh như đá nhân tạo cho mặt bếp, kính cường lực cho backsplash. Gam màu trung tính kết hợp với điểm nhấn màu gỗ hoặc kim loại tạo sự sang trọng.
- Ánh sáng: Đèn thả trần phía trên bàn ăn không chỉ cung cấp ánh sáng mà còn là điểm nhấn trang trí tinh tế. Đèn LED dưới tủ bếp giúp chiếu sáng khu vực làm việc hiệu quả.
Thiết kế nội thất phòng ngủ master: Tổ ấm riêng tư
Phòng ngủ master là không gian riêng tư của chủ nhân căn hộ, cần được thiết kế tỉ mỉ để mang lại sự thoải mái và thư thái tối đa.
- Tông màu: Ưu tiên tông màu sáng như trắng, be, ghi nhạt hoặc xanh pastel để tạo cảm giác nhẹ nhàng, thư giãn.
- Nội thất: Giường ngủ có ngăn kéo hoặc giường có hộc tủ là giải pháp lưu trữ thông minh, đặc biệt hữu ích cho các căn hộ chung cư. Thiết kế nội thất tối giản, hiện đại giúp không gian trở nên thanh lịch và rộng rãi hơn. Tủ quần áo âm tường hoặc tủ kịch trần giúp tiết kiệm diện tích.
- Ánh sáng: Kết hợp ánh sáng tự nhiên từ cửa sổ lớn với ánh sáng nhân tạo từ đèn ngủ đầu giường, đèn hắt trần và đèn sàn để tạo không khí ấm cúng và điều chỉnh được theo từng nhu cầu.
- Vật liệu: Gỗ tự nhiên hoặc gỗ công nghiệp cao cấp mang đến vẻ đẹp ấm áp, sang trọng cho không gian. Rèm cửa hai lớp (một lớp cản sáng, một lớp voan mỏng) giúp điều chỉnh ánh sáng linh hoạt.
Thiết kế nội thất phòng ngủ con: Không gian sáng tạo và phát triển
Phòng ngủ của trẻ em cần được thiết kế không chỉ đẹp mắt mà còn phải an toàn, kích thích sự sáng tạo và phù hợp với từng độ tuổi.
- Màu sắc: Tông màu tươi sáng, dịu dàng như hồng, xanh mint, vàng nhạt kết hợp với trắng tạo không gian vui tươi, dễ chịu.
- Trang trí: Sử dụng các hình ảnh trang trí dễ thương, bắt mắt như decal dán tường, tranh ảnh chủ đề hoạt hình, hoặc các họa tiết hình học sáng tạo.
- Nội thất đa năng: Giường tầng cho hai bé, bàn học thông minh tích hợp giá sách, tủ quần áo nhỏ gọn với các ngăn kéo tiện lợi là những lựa chọn thông minh để tối ưu hóa diện tích.
- An toàn: Đồ nội thất cần được bo tròn góc cạnh, vật liệu không độc hại và dễ dàng vệ sinh.
Thiết kế nội thất phòng ngủ nhỏ/đa năng: Linh hoạt và tiện ích
Phòng ngủ thứ ba có thể là phòng ngủ cho khách, phòng làm việc, hoặc phòng đa năng tùy theo nhu cầu của gia đình.
- Tông màu: Chọn gam màu trung tính, nhã nhặn như ghi, xanh dương đậm hoặc nâu đất để tạo sự tĩnh lặng, phù hợp cho nhiều mục đích sử dụng.
- Nội thất thông minh: Giường ngủ có thể được thiết kế dạng giường gấp, sofa bed để dễ dàng chuyển đổi công năng. Bàn làm việc tích hợp giá sách, tủ tài liệu giúp tối ưu không gian.
- Bố trí khoa học: Sắp xếp đồ nội thất sao cho tận dụng tối đa các góc chết, tạo cảm giác thông thoáng và không bị bí bách.
- Ánh sáng: Đèn bàn làm việc và đèn sàn có thể điều chỉnh độ sáng là rất quan trọng.
Thiết kế nội thất phòng tắm: Hiện đại và tiện nghi
Phòng tắm, dù diện tích nhỏ, vẫn cần được thiết kế tối ưu để đảm bảo sự tiện nghi và vệ sinh.
- Gam màu: Sử dụng gam màu sáng như trắng, be, xám nhạt cho gạch ốp tường và sàn giúp phòng tắm có vẻ rộng rãi và sạch sẽ.
- Thiết bị: Lựa chọn các thiết bị phòng tắm cao cấp, hiện đại, có thiết kế nhỏ gọn để tiết kiệm diện tích. Sen vòi âm tường, bồn rửa mặt treo tường là những gợi ý hay.
- Tối ưu lưu trữ: Kệ âm tường, tủ gương, hoặc các hộc tủ dưới bồn rửa mặt giúp lưu trữ đồ dùng cá nhân gọn gàng.
- Ánh sáng và thông gió: Hệ thống đèn chiếu sáng đủ độ và quạt thông gió hoặc cửa sổ nhỏ là cần thiết để đảm bảo không gian luôn khô thoáng.
Những nguyên tắc vàng khi thiết kế mặt bằng chung cư 3 phòng ngủ
Để đảm bảo một không gian sống không chỉ đẹp mà còn tiện nghi và bền vững, có một số nguyên tắc cơ bản mà mọi kiến trúc sư và gia chủ cần tuân thủ khi thiết kế mặt bằng chung cư 3 phòng ngủ.
Đảm bảo công năng và sự tiện lợi

Có thể bạn quan tâm: Thiết Kế Nhà Cấp 4 Đơn Giản 4 Phòng Ngủ: Hướng Dẫn Chi Tiết Để Tối Ưu Không Gian
Mỗi không gian trong căn hộ cần được thiết kế để phục vụ một mục đích rõ ràng và tiện lợi nhất cho người sử dụng. Lối đi phải thông thoáng, không bị vật cản. Đồ nội thất cần được sắp xếp hợp lý, dễ dàng tiếp cận và sử dụng. Ví dụ, trong phòng bếp, tam giác làm việc (bếp nấu – bồn rửa – tủ lạnh) cần được bố trí khoa học để tối ưu hóa hiệu quả nấu nướng.
Tối ưu hóa ánh sáng và thông gió tự nhiên
Đây là yếu tố quan trọng hàng đầu trong thiết kế căn hộ chung cư. Ánh sáng tự nhiên không chỉ giúp tiết kiệm điện mà còn có lợi cho sức khỏe và tinh thần. Sử dụng rèm cửa mỏng, hạn chế đồ đạc chắn sáng, và tận dụng tối đa các khe thoáng, cửa sổ để không khí lưu thông tốt. Thiết kế cửa ra vào logia, ban công rộng giúp căn hộ luôn thoáng đãng.

Có thể bạn quan tâm: Nhà Ống Phong Cách Hiện Đại: Đặc Điểm, Xu Hướng Và Giải Pháp Thiết Kế
Phong cách thiết kế thống nhất
Một căn hộ đẹp là một căn hộ có sự hài hòa về phong cách. Dù bạn yêu thích phong cách hiện đại, tối giản, Indochine hay Scandinavian, hãy đảm bảo sự thống nhất trong việc lựa chọn vật liệu, màu sắc và đồ nội thất cho toàn bộ không gian. Điều này tạo nên một tổng thể mạch lạc và có gu thẩm mỹ.
Ưu tiên giải pháp lưu trữ thông minh

Có thể bạn quan tâm: Thiết Kế Nhà Diện Tích Nhỏ: Tối Ưu Không Gian Sống Như Thế Nào?
Với diện tích chung cư có hạn, việc tận dụng mọi ngóc ngách để lưu trữ là rất cần thiết. Tủ âm tường, kệ kịch trần, giường có ngăn kéo, bàn trà có hộc chứa đồ là những giải pháp thông minh giúp không gian luôn gọn gàng và ngăn nắp. Điều này đặc biệt quan trọng trong các căn hộ có mặt bằng chung cư 3 phòng ngủ khi số lượng đồ đạc của các thành viên có thể khá lớn.
Lựa chọn vật liệu bền vững và an toàn
Vật liệu nội thất không chỉ ảnh hưởng đến thẩm mỹ mà còn đến độ bền và sức khỏe của gia đình. Ưu tiên các vật liệu thân thiện với môi trường, có độ bền cao, dễ vệ sinh và an toàn cho người sử dụng, đặc biệt là trẻ em. Gỗ công nghiệp đạt chuẩn E0/E1, đá nhân tạo, kính cường lực, và các loại sơn không chứa chì là những lựa chọn đáng cân nhắc.

Có thể bạn quan tâm: Sơn Tường Màu Xanh Lá Cây: Hướng Dẫn Chọn & Phối Màu Chuẩn Chuyên Gia
Cá nhân hóa không gian
Mặc dù có những nguyên tắc chung, mỗi căn hộ cần phản ánh cá tính và sở thích của gia chủ. Hãy để những bức tranh yêu thích, cây xanh, vật dụng trang trí, hoặc một góc nhỏ được thiết kế theo ý riêng của bạn làm nên sự độc đáo cho ngôi nhà.
Các yếu tố cần cân nhắc khi lựa chọn mặt bằng chung cư 3 phòng ngủ

Khi quyết định sở hữu hoặc thiết kế lại một căn hộ 3 phòng ngủ, có nhiều yếu tố cần được xem xét kỹ lưỡng để đảm bảo bạn đưa ra lựa chọn phù hợp nhất với nhu cầu và mong muốn của gia đình.
Vị trí và hướng căn hộ
- Vị trí: Căn hộ ở tầng cao thường có tầm nhìn đẹp và ít tiếng ồn hơn, trong khi căn hộ ở tầng thấp tiện lợi cho việc di chuyển. Căn góc luôn được ưu tiên vì có nhiều mặt thoáng.
- Hướng: Hướng ban công và cửa sổ ảnh hưởng đến lượng ánh sáng và gió tự nhiên. Hướng Đông Nam hoặc Tây Nam thường mát mẻ vào mùa hè, trong khi hướng Bắc có thể lạnh hơn vào mùa đông. Hướng Tây có thể nắng nóng vào buổi chiều.
Diện tích và phân bổ không gian

Diện tích là yếu tố cơ bản, nhưng cách phân bổ không gian lại quan trọng hơn. Một căn hộ 80m² với bố cục hợp lý có thể tiện nghi hơn một căn 90m² nhưng có nhiều không gian chết hoặc bố trí không khoa học. Hãy xem xét kỹ tỷ lệ các phòng ngủ, khu vực sinh hoạt chung và tiện ích phụ trợ.
Tiện ích nội khu và ngoại khu
- Nội khu: Các tiện ích như bể bơi, phòng gym, khu vui chơi trẻ em, công viên nội khu, siêu thị mini sẽ nâng cao chất lượng sống.
- Ngoại khu: Gần trường học, bệnh viện, chợ, trung tâm thương mại, và hệ thống giao thông thuận tiện là những lợi thế lớn.
An ninh và cộng đồng dân cư

Một hệ thống an ninh tốt (bảo vệ 24/7, camera giám sát) là yếu tố không thể thiếu. Cộng đồng dân cư văn minh, thân thiện cũng góp phần tạo nên một môi trường sống lý tưởng.
Ngân sách và chi phí phát sinh
Ngoài giá mua căn hộ, cần tính toán đến các chi phí phát sinh như phí quản lý, phí gửi xe, chi phí nội thất, và các khoản sửa chữa, bảo trì sau này. Lập kế hoạch tài chính chi tiết giúp bạn chủ động hơn.

Câu hỏi thường gặp về mặt bằng chung cư 3 phòng ngủ
1. Căn hộ 3 phòng ngủ phù hợp với bao nhiêu người?
Căn hộ 3 phòng ngủ lý tưởng cho gia đình từ 3-6 người, bao gồm các cặp vợ chồng có 1-2 con, hoặc gia đình đa thế hệ với ông bà. Sự linh hoạt của 3 phòng ngủ cũng cho phép một phòng được dùng làm phòng làm việc hoặc phòng cho khách.
2. Làm thế nào để phòng khách và bếp ăn trong căn hộ 3 phòng ngủ trông rộng rãi hơn?
Để tạo cảm giác rộng rãi, bạn nên áp dụng thiết kế không gian mở (open-plan) cho phòng khách và bếp ăn. Sử dụng gam màu sáng chủ đạo, nội thất có kích thước phù hợp, gương lớn để tạo hiệu ứng chiều sâu, và tối ưu ánh sáng tự nhiên. Kệ tủ âm tường hoặc đồ nội thất đa năng cũng giúp tiết kiệm diện tích hiệu quả.
3. Có nên chọn căn hộ 3 phòng ngủ có logia hay ban công không?
Có, logia hoặc ban công là yếu tố rất giá trị. Chúng không chỉ cung cấp không gian để phơi đồ, đặt cây xanh, mà còn là nơi thư giãn, hít thở khí trời và tận hưởng tầm nhìn. Đặc biệt, logia và ban công giúp tăng cường đối lưu không khí và ánh sáng tự nhiên cho căn hộ, làm cho không gian sống trong căn hộ có mặt bằng chung cư 3 phòng ngủ trở nên thoáng đãng hơn.
4. Chi phí thiết kế nội thất cho căn hộ 3 phòng ngủ khoảng bao nhiêu?
Chi phí thiết kế nội thất cho căn hộ 3 phòng ngủ phụ thuộc vào nhiều yếu tố như diện tích, phong cách thiết kế, loại vật liệu sử dụng, mức độ phức tạp của đồ nội thất, và đơn vị thiết kế. Thông thường, chi phí có thể dao động từ vài chục triệu đến vài trăm triệu đồng hoặc hơn, tùy thuộc vào sự lựa chọn của gia chủ. Để có dự toán chính xác, bạn nên tham khảo ý kiến từ các đơn vị thiết kế chuyên nghiệp.
5. Làm sao để đảm bảo tính riêng tư cho các phòng ngủ trong căn hộ?
Để đảm bảo tính riêng tư, các phòng ngủ nên được bố trí tách biệt khỏi khu vực sinh hoạt chung và không gian phòng ngủ khác. Sử dụng cửa cách âm tốt, rèm cửa dày hoặc rèm hai lớp, và cân nhắc hướng giường để tránh nhìn thẳng ra cửa chính hoặc cửa sổ lớn. Trong thiết kế mặt bằng, việc đặt các phòng ngủ ở các góc hoặc cuối hành lang cũng là một giải pháp hiệu quả.
Việc thiết kế và tối ưu mặt bằng chung cư 3 phòng ngủ là một quá trình đòi hỏi sự cân nhắc kỹ lưỡng từ kiến trúc sư và gia chủ. Từ việc phân tích các đặc điểm cơ bản đến việc lựa chọn phong cách và vật liệu nội thất, mỗi quyết định đều góp phần tạo nên một không gian sống hoàn hảo, đáp ứng tối đa nhu cầu của các thành viên. Một căn hộ được thiết kế tốt không chỉ đẹp mắt mà còn mang lại sự thoải mái, tiện nghi và cảm giác ấm cúng cho mỗi khoảnh khắc trong cuộc sống. Hãy biến những ý tưởng thành hiện thực và tận hưởng không gian sống lý tưởng của bạn. Khám phá các giải pháp nội thất sáng tạo và chuyên nghiệp tại Interstellas.com.vn.
















