Nhà cấp 4 từ lâu đã trở thành lựa chọn phổ biến cho nhiều gia đình Việt Nam bởi chi phí xây dựng hợp lý, thời gian thi công nhanh chóng và sự linh hoạt trong thiết kế. Tuy nhiên, để sở hữu một không gian sống tiện nghi, thẩm mỹ và bền vững, việc có một sơ đồ thiết kế nhà cấp 4 chi tiết và khoa học là vô cùng quan trọng. Đây không chỉ là bản vẽ kỹ thuật mà còn là kim chỉ nam định hình toàn bộ không gian, công năng và phong cách ngôi nhà của bạn. Một sơ đồ thiết kế tốt sẽ giúp bạn hình dung rõ ràng về tổ ấm tương lai, tránh phát sinh những vấn đề không mong muốn trong quá trình xây dựng và tối ưu hóa mọi nguồn lực.
Các Bước Cơ Bản Để Có Sơ Đồ Thiết Kế Nhà Cấp 4 Hoàn Chỉnh

Có thể bạn quan tâm: Hướng Dẫn Thi Công Nhà Thép Tiền Chế Dân Dụng Toàn Diện
Để sở hữu một sơ đồ thiết kế nhà cấp 4 đáp ứng tối đa nhu cầu sử dụng và phù hợp với điều kiện thực tế, bạn cần tuân thủ một quy trình chặt chẽ. Dưới đây là các bước cơ bản mà mọi chủ nhà nên nắm vững:
- Xác Định Nhu Cầu & Ngân Sách: Trước khi đặt bút vẽ, hãy liệt kê rõ ràng số lượng phòng, công năng mong muốn (phòng khách, bếp, phòng ngủ, WC, sân vườn…), phong cách kiến trúc yêu thích (hiện đại, tối giản, tân cổ điển…) và đặc biệt là ngân sách dự kiến cho toàn bộ dự án.
- Khảo Sát Hiện Trạng Đất Đai: Đo đạc chính xác diện tích, hình dạng khu đất, hướng đất, các yếu tố môi trường xung quanh (ánh sáng, gió, địa hình, các công trình lân cận) và các quy định xây dựng tại địa phương.
- Lên Ý Tưởng Sơ Bộ (Concept Design): Dựa trên nhu cầu và khảo sát, kiến trúc sư sẽ phác thảo các phương án bố trí mặt bằng, phân chia không gian, xác định vị trí các phòng chức năng, cửa ra vào, cửa sổ để tối ưu hóa ánh sáng và thông gió tự nhiên.
- Phát Triển Thiết Kế Cơ Sở (Schematic Design): Sau khi thống nhất ý tưởng sơ bộ, sơ đồ sẽ được chi tiết hóa hơn, bao gồm kích thước các phòng, vị trí nội thất cơ bản, hệ thống cửa, mái… Đây là giai đoạn quan trọng để điều chỉnh và hoàn thiện các chi tiết trước khi đi sâu vào kỹ thuật.
- Thiết Kế Kỹ Thuật (Construction Drawing): Bao gồm các bản vẽ chi tiết về kiến trúc (mặt bằng, mặt đứng, mặt cắt), kết cấu (móng, cột, dầm, sàn), điện, nước, thông tin liên lạc và cảnh quan (nếu có). Các bản vẽ này là cơ sở để nhà thầu thi công chính xác.
- Duyệt Hồ Sơ & Xin Giấy Phép: Hồ sơ thiết kế hoàn chỉnh sẽ được nộp để xin cấp phép xây dựng. Quá trình này đảm bảo công trình tuân thủ các quy định pháp luật và an toàn xây dựng.
Sơ Đồ Thiết Kế Nhà Cấp 4 Là Gì Và Tại Sao Nó Quan Trọng?

Có thể bạn quan tâm: Thiết Kế Mái Nhà Cấp 4 Đẹp: Tối Ưu Công Năng Và Nâng Tầm Thẩm Mỹ
<>Xem Thêm Bài Viết:<>
- Đất Phù Sa Phân Bố Ở Đâu Tại Việt Nam? Tổng Quan Chi Tiết
- Khu công nghiệp Tân Bình tuyển dụng: Cơ hội việc làm không ngừng mở rộng
- Cách Trang Trí Thiệp Sinh Nhật Tặng Người Yêu Đơn Giản Nhưng Đầy Cảm Xúc
- Lý Quốc Sư là ai? Vị Thiền sư huyền thoại của Đại Việt
- Khám Phá Nơi Hải Cẩu Sống Ở Đâu: San Diego – Thiên Đường Biển Cả
Sơ đồ thiết kế nhà cấp 4 là bộ tài liệu kỹ thuật bao gồm các bản vẽ, thông số và thuyết minh chi tiết về kiến trúc, kết cấu, hệ thống kỹ thuật của một ngôi nhà cấp 4 trước khi tiến hành xây dựng. Nó là cầu nối giữa ý tưởng của chủ nhà và hiện thực của công trình.
Định Nghĩa Và Các Thành Phần Cơ Bản
Một sơ đồ thiết kế nhà cấp 4 thông thường sẽ bao gồm các phần chính như:
- Bản vẽ mặt bằng: Thể hiện bố cục tổng thể của ngôi nhà từ trên cao, bao gồm vị trí các phòng, cửa ra vào, cửa sổ, kích thước từng không gian và cách bố trí nội thất cơ bản.
- Bản vẽ mặt đứng: Cho thấy hình dáng bên ngoài của ngôi nhà từ các phía (mặt tiền, mặt bên, mặt hậu), bao gồm chiều cao, hình khối kiến trúc, chi tiết trang trí, vật liệu hoàn thiện ngoại thất.
- Bản vẽ mặt cắt: Cắt xuyên qua ngôi nhà theo chiều dọc hoặc ngang, thể hiện cấu tạo bên trong, chiều cao các tầng, vị trí các bộ phận kết cấu như sàn, dầm, mái, và các chi tiết kỹ thuật khác.
- Bản vẽ kết cấu: Chi tiết về móng, dầm, cột, sàn, mái – những yếu tố cốt lõi đảm bảo sự vững chắc và an toàn cho công trình.
- Bản vẽ điện nước: Hệ thống cấp thoát nước, hệ thống điện chiếu sáng, ổ cắm, công tắc, điều hòa, internet… được bố trí khoa học, đảm bảo tiện nghi và an toàn sử dụng.
Tầm Quan Trọng Của Việc Có Sơ Đồ Thiết Kế Nhà Cấp 4
Việc đầu tư vào một sơ đồ thiết kế nhà cấp 4 chuyên nghiệp mang lại nhiều lợi ích to lớn:
- Hình dung rõ ràng về ngôi nhà: Giúp chủ nhà có cái nhìn trực quan về không gian, bố cục, màu sắc và phong cách trước khi thi công, từ đó đưa ra các điều chỉnh phù hợp.
- Tối ưu hóa công năng và thẩm mỹ: Kiến trúc sư sẽ nghiên cứu để phân chia không gian hợp lý, đảm bảo sự thông thoáng, ánh sáng tự nhiên, và tạo nên vẻ đẹp hài hòa cho tổng thể. Điều này đặc biệt quan trọng với nhà cấp 4 khi diện tích thường có giới hạn.
- Kiểm soát chi phí: Sơ đồ chi tiết giúp lập dự toán chính xác hơn, hạn chế tối đa các chi phí phát sinh do thay đổi thiết kế trong quá trình xây dựng. Các vật liệu, kích thước đều được ghi rõ, giúp tránh lãng phí.
- Đảm bảo chất lượng và an toàn: Bản vẽ kết cấu và hệ thống kỹ thuật được tính toán kỹ lưỡng, đảm bảo độ bền vững và an toàn cho công trình, đặc biệt trong điều kiện thời tiết khắc nghiệt.
- Thủ tục pháp lý: Là cơ sở để xin giấy phép xây dựng và đảm bảo công trình tuân thủ các quy định của pháp luật về xây dựng.
- Tiết kiệm thời gian thi công: Đội ngũ thợ thi công sẽ có đầy đủ thông tin để thực hiện công việc một cách nhanh chóng, chính xác, tránh sai sót.
Theo khảo sát của Hiệp hội Kiến trúc sư Việt Nam, những công trình có sơ đồ thiết kế nhà cấp 4 chuyên nghiệp thường tiết kiệm được từ 10-15% tổng chi phí xây dựng so với các công trình không có thiết kế hoặc thiết kế sơ sài. Điều này cho thấy vai trò không thể thiếu của một bản vẽ hoàn chỉnh.
Các Loại Sơ Đồ Thiết Kế Nhà Cấp 4 Phổ Biến

Có thể bạn quan tâm: Hướng Dẫn Thiết Kế Tiểu Cảnh Sân Vườn Đẹp Và Phù Hợp
Để có một ngôi nhà cấp 4 hoàn chỉnh, bạn cần hiểu rõ các loại sơ đồ khác nhau cấu thành nên bộ hồ sơ thiết kế. Mỗi loại sơ đồ phục vụ một mục đích cụ thể và đều quan trọng trong quá trình xây dựng.
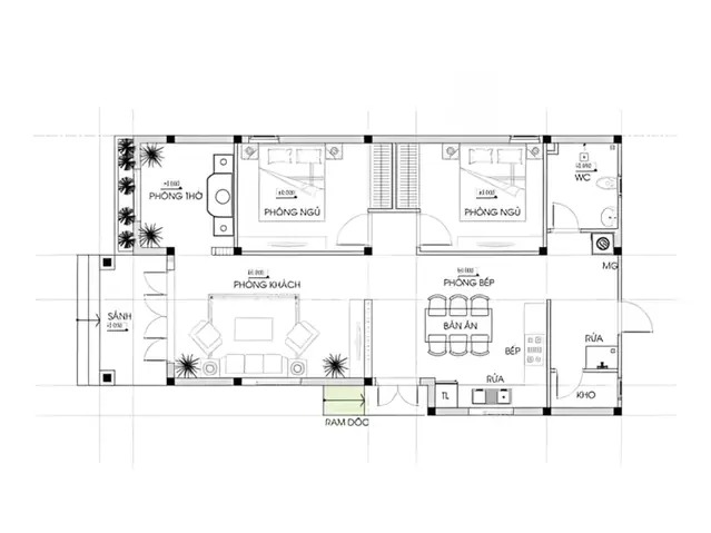
1. Sơ Đồ Mặt Bằng (Floor Plan)
Đây là loại sơ đồ quen thuộc và quan trọng nhất, thể hiện cách bố trí các phòng, cửa ra vào, cửa sổ và vị trí các đồ nội thất chính từ cái nhìn trên cao.
- Đặc điểm: Chi tiết về diện tích từng phòng, kích thước cửa, tường, cầu thang (nếu có gác lửng).
- Vai trò: Giúp chủ nhà hình dung rõ ràng về sự phân chia không gian, luồng giao thông trong nhà, và khả năng bố trí nội thất. Kiến trúc sư sẽ dựa vào đây để tối ưu hóa công năng, đảm bảo các phòng chức năng liên kết hợp lý, tạo sự thuận tiện cho sinh hoạt.
- Yếu tố cần quan tâm: Hướng gió, hướng nắng để tối ưu thông gió và chiếu sáng tự nhiên, tránh nắng gắt hoặc ẩm thấp.
2. Sơ Đồ Mặt Đứng (Elevations)
Sơ đồ mặt đứng thể hiện hình dáng bên ngoài của ngôi nhà từ các phía (trước, sau, hai bên).
- Đặc điểm: Mô tả chiều cao, hình khối kiến trúc, chi tiết trang trí ngoại thất, vật liệu ốp lát, màu sắc, vị trí cửa, ban công, mái nhà.
- Vai trò: Giúp chủ nhà và kiến trúc sư định hình phong cách kiến trúc tổng thể, từ hiện đại, tối giản đến tân cổ điển. Đây là cơ sở để chọn lựa vật liệu hoàn thiện ngoại thất, tạo nên vẻ đẹp bên ngoài cho ngôi nhà.
- Yếu tố cần quan tâm: Tỷ lệ cân đối, sự hài hòa giữa các chi tiết, vật liệu có phù hợp với khí hậu và ngân sách không.
3. Sơ Đồ Mặt Cắt (Sections)
Sơ đồ mặt cắt là hình ảnh ngôi nhà được cắt dọc hoặc cắt ngang, giúp nhìn thấy cấu tạo bên trong theo chiều thẳng đứng.
- Đặc điểm: Thể hiện chiều cao các tầng, cao độ nền, sàn, trần, mái, cấu tạo các lớp vật liệu tường, sàn, móng, dầm, cột.
- Vai trò: Cung cấp thông tin chi tiết về cấu trúc bên trong, giúp kiểm soát chiều cao không gian, đảm bảo sự thông thoáng và tỷ lệ kiến trúc. Đây cũng là bản vẽ quan trọng cho việc thi công kết cấu và hệ thống kỹ thuật.
- Yếu tố cần quan tâm: Chiều cao thông thủy của các phòng, độ dốc mái, chi tiết chống thấm…
4. Sơ Đồ Kết Cấu (Structural Drawings)
Đây là nhóm sơ đồ kỹ thuật quan trọng nhất, đảm bảo sự vững chắc và an toàn cho toàn bộ công trình.
- Đặc điểm: Bao gồm bản vẽ móng (móng băng, móng cọc, móng đơn), dầm, cột, sàn, mái với các chi tiết về kích thước, vật liệu (thép, bê tông), cách bố trí cốt thép.
- Vai trò: Là xương sống của ngôi nhà, được tính toán bởi kỹ sư kết cấu dựa trên tải trọng, địa chất khu vực và vật liệu sử dụng. Đảm bảo công trình chịu lực tốt, chống chịu được các yếu tố tự nhiên như gió bão, động đất (nếu có).
- Yếu tố cần quan tâm: Tính toán tải trọng, khả năng chịu lực của vật liệu, chi tiết nối thép, biện pháp thi công.
5. Sơ Đồ Điện Nước (MEP Drawings)
Sơ đồ MEP (Mechanical, Electrical, Plumbing) là bản vẽ chi tiết về hệ thống điện, nước và các hệ thống kỹ thuật khác.
- Đặc điểm: Vị trí ổ cắm, công tắc, đèn chiếu sáng, đường dây điện, aptomat, hệ thống cấp thoát nước, vị trí thiết bị vệ sinh, bình nóng lạnh, điều hòa, quạt thông gió.
- Vai trò: Đảm bảo hệ thống kỹ thuật hoạt động an toàn, hiệu quả và tiện nghi cho người sử dụng. Bố trí khoa học giúp tránh xung đột với kết cấu và kiến trúc, đồng thời thuận tiện cho việc bảo trì, sửa chữa sau này.
- Yếu tố cần quan tâm: Vị trí nguồn cấp, thoát nước, công suất điện, an toàn cháy nổ, tính thẩm mỹ khi lắp đặt thiết bị.
Các Yếu Tố Cần Cân Nhắc Khi Lập Sơ Đồ Thiết Kế Nhà Cấp 4
Để có một sơ đồ thiết kế nhà cấp 4 tối ưu, bạn cần xem xét kỹ lưỡng nhiều yếu tố, từ thực tế đến phong thủy, để đảm bảo ngôi nhà không chỉ đẹp mà còn tiện nghi và hài hòa.
1. Diện Tích Và Hình Dạng Đất
Đây là yếu tố tiên quyết quyết định bố cục tổng thể của ngôi nhà.
- Đất hẹp ngang, dài sâu: Cần thiết kế giếng trời, sân trong để lấy sáng và thông gió cho các không gian giữa nhà. Bố trí các phòng theo chiều dọc, tối ưu hóa hành lang.
- Đất vuông vắn: Dễ dàng bố trí các phòng đối xứng, tạo sự cân bằng và hài hòa. Có thể bố trí sân vườn xung quanh.
- Đất méo mó, không đều: Đòi hỏi sự sáng tạo của kiến trúc sư để xử lý các góc chết, biến chúng thành không gian hữu ích như kho chứa đồ, tiểu cảnh trang trí.
2. Công Năng Sử Dụng
Số lượng thành viên, thói quen sinh hoạt và nhu cầu riêng của từng người sẽ ảnh hưởng trực tiếp đến việc phân chia không gian.
- Số lượng phòng ngủ: Xác định dựa trên số thành viên và khả năng phát triển trong tương lai.
- Phòng khách, bếp ăn: Cân nhắc tích hợp không gian mở để tạo cảm giác rộng rãi, thoáng đãng hoặc phân chia riêng biệt tùy theo sở thích.
- Phòng đa năng: Có thể kết hợp phòng thờ, phòng làm việc hoặc phòng đọc sách để tối ưu diện tích.
- Không gian phụ trợ: Kho, khu giặt phơi, gara ô tô cần được bố trí hợp lý, đảm bảo tiện lợi và vệ sinh.
3. Phong Cách Kiến Trúc
Phong cách sẽ định hình tổng thể ngôi nhà, từ hình khối đến vật liệu và màu sắc.
- Hiện đại: Ưu tiên các đường nét khỏe khoắn, hình khối đơn giản, vật liệu công nghiệp (kính, thép, bê tông).
- Tối giản (Minimalism): Tập trung vào sự tinh gọn, ít chi tiết, màu sắc trung tính, tối đa hóa không gian trống.
- Tân cổ điển: Kết hợp vẻ đẹp cổ điển với nét hiện đại, sử dụng phào chỉ nhẹ nhàng, vật liệu sang trọng.
- Kiến trúc truyền thống Việt: Mái ngói, sân vườn, vật liệu gỗ tự nhiên, không gian mở hòa mình vào thiên nhiên.
- Scandinavia: Đề cao sự ấm cúng, đơn giản, ánh sáng tự nhiên, vật liệu gỗ sáng màu.
4. Phong Thủy
Đối với nhiều gia đình Việt Nam, yếu tố phong thủy có vai trò quan trọng trong việc mang lại may mắn, sức khỏe và tài lộc.
- Hướng nhà, hướng cửa chính: Lựa chọn hướng hợp mệnh gia chủ, tránh hướng xấu.
- Bố trí bếp và vệ sinh: Tránh đặt bếp đối diện cửa chính, cửa nhà vệ sinh, không đặt bếp dưới xà ngang. Nhà vệ sinh tránh đặt ở trung tâm nhà hoặc đối diện giường ngủ.
- Phòng ngủ: Giường ngủ không kê đối diện cửa ra vào, không đặt gương đối diện giường. Tránh đặt phòng ngủ phía trên bếp hoặc nhà vệ sinh.
- Giếng trời: Vị trí giếng trời nên đặt ở cung tài lộc hoặc cung sinh khí để thu hút năng lượng tốt.
5. Ngân Sách Dự Kiến
Ngân sách là yếu tố then chốt ảnh hưởng đến mọi quyết định trong thiết kế.
- Chi phí thiết kế: Tùy thuộc vào độ phức tạp, uy tín của kiến trúc sư.
- Chi phí xây dựng thô: Vật liệu, nhân công cho phần móng, khung, mái.
- Chi phí hoàn thiện: Gạch ốp lát, sơn, cửa, thiết bị vệ sinh, điện nước.
- Chi phí nội thất: Bàn ghế, giường tủ, đồ trang trí.
- Chi phí phát sinh: Luôn dự trù một khoản từ 10-15% tổng ngân sách để phòng các trường hợp bất ngờ.
Một kiến trúc sư giỏi của Interstellas sẽ giúp bạn cân bằng tất cả các yếu tố này, tạo ra một sơ đồ thiết kế nhà cấp 4 không chỉ đẹp, công năng mà còn phù hợp với khả năng tài chính và các giá trị tinh thần của gia đình.
Quy Trình Thiết Kế Sơ Đồ Nhà Cấp 4 Chuyên Nghiệp
Để có một sơ đồ thiết kế nhà cấp 4 hoàn chỉnh và hiệu quả, quy trình làm việc giữa chủ nhà và kiến trúc sư cần diễn ra theo các bước cụ thể, đảm bảo mọi yêu cầu đều được thể hiện rõ ràng trên bản vẽ.
1. Tư Vấn Và Nắm Bắt Yêu Cầu
- Gặp gỡ ban đầu: Kiến trúc sư sẽ lắng nghe tất cả các mong muốn của chủ nhà về phong cách, số lượng phòng, công năng, vật liệu yêu thích, ngân sách và thời gian dự kiến hoàn thành.
- Khảo sát thực địa: Đo đạc diện tích đất, hướng đất, các yếu tố môi trường xung quanh (ánh sáng, gió, cây xanh, công trình lân cận), địa chất (nếu cần). Đồng thời tìm hiểu các quy định về xây dựng tại địa phương.
- Phân tích và tư vấn: Dựa trên thông tin thu thập được, kiến trúc sư sẽ phân tích ưu nhược điểm của khu đất, đưa ra các phương án tối ưu và tư vấn về phong cách, vật liệu, giải pháp thiết kế phù hợp với nhu cầu và ngân sách.
2. Thiết Kế Sơ Bộ (Concept Design)
- Phác thảo ý tưởng: Kiến trúc sư sẽ đưa ra các bản vẽ phác thảo tay hoặc bản vẽ 2D đơn giản về mặt bằng bố trí công năng, hình khối tổng thể.
- Lựa chọn phương án: Chủ nhà xem xét các phương án, góp ý để kiến trúc sư điều chỉnh, từ đó thống nhất được concept thiết kế cơ bản. Giai đoạn này rất quan trọng để định hình hướng đi cho toàn bộ dự án.
3. Thiết Kế Cơ Sở (Schematic Design)
- Chi tiết hóa mặt bằng: Từ ý tưởng sơ bộ, kiến trúc sư sẽ vẽ chi tiết hơn các mặt bằng các tầng với kích thước cụ thể, vị trí cửa, cầu thang (nếu có gác lửng).
- Thiết kế mặt đứng, mặt cắt: Thể hiện hình dáng bên ngoài và cấu tạo bên trong ngôi nhà một cách rõ ràng hơn.
- Phối cảnh 3D: Thường sẽ có một số hình ảnh phối cảnh 3D đơn giản để chủ nhà có cái nhìn trực quan về không gian và hình khối.
- Thống nhất và phê duyệt: Sau khi điều chỉnh và hoàn thiện, chủ nhà sẽ phê duyệt thiết kế cơ sở để kiến trúc sư chuyển sang giai đoạn thiết kế kỹ thuật.
4. Thiết Kế Kỹ Thuật (Construction Drawing)
Đây là giai đoạn tạo ra bộ hồ sơ hoàn chỉnh để thi công, bao gồm các bản vẽ chi tiết như đã nêu ở mục “Các loại sơ đồ thiết kế nhà cấp 4 phổ biến”.
- Bản vẽ kiến trúc: Mặt bằng, mặt đứng, mặt cắt, chi tiết cửa, vệ sinh, thang…
- Bản vẽ kết cấu: Móng, cột, dầm, sàn, mái, chi tiết cốt thép.
- Bản vẽ điện nước: Sơ đồ cấp thoát nước, sơ đồ điện chiếu sáng, ổ cắm, internet, điều hòa.
- Thuyết minh và dự toán: Hồ sơ còn kèm theo thuyết minh về vật liệu sử dụng, tiêu chuẩn kỹ thuật và bảng dự toán chi phí xây dựng chi tiết.
5. Giám Sát Tác Giả Và Hỗ Trợ Xây Dựng
- Giám sát tác giả: Kiến trúc sư sẽ định kỳ kiểm tra và giám sát quá trình thi công để đảm bảo công trình được xây dựng đúng theo sơ đồ thiết kế nhà cấp 4 đã phê duyệt.
- Hỗ trợ điều chỉnh: Trong quá trình thi công, nếu có phát sinh cần điều chỉnh do điều kiện thực tế hoặc mong muốn của chủ nhà, kiến trúc sư sẽ đưa ra giải pháp phù hợp và cập nhật bản vẽ.
Một quy trình chuyên nghiệp như trên không chỉ đảm bảo chất lượng công trình mà còn giúp chủ nhà yên tâm hơn trong suốt quá trình xây dựng.
Những Lưu Ý Quan Trọng Khi Đọc Và Kiểm Tra Sơ Đồ Thiết Kế Nhà Cấp 4
Khi nhận được bộ sơ đồ thiết kế nhà cấp 4, việc đọc hiểu và kiểm tra kỹ lưỡng là rất cần thiết để đảm bảo mọi thứ đều đúng với mong muốn và không có sai sót kỹ thuật.
1. Đọc Hiểu Ký Hiệu Và Chú Giải
- Hệ thống ký hiệu: Mỗi bản vẽ đều có hệ thống ký hiệu riêng cho vật liệu, cửa, thiết bị điện nước. Hãy yêu cầu kiến trúc sư giải thích rõ ràng nếu có bất kỳ ký hiệu nào bạn không hiểu.
- Tỷ lệ bản vẽ: Kiểm tra tỷ lệ bản vẽ (ví dụ 1:100, 1:50) để ước lượng kích thước thực tế của các chi tiết.
- Chú giải và ghi chú: Đọc kỹ các chú giải và ghi chú trên bản vẽ, chúng thường chứa thông tin quan trọng về vật liệu, quy cách thi công, hoặc các lưu ý đặc biệt.
2. Kiểm Tra Kích Thước Và Bố Trí
- Kích thước tổng thể: So sánh kích thước tổng thể của ngôi nhà trên bản vẽ với diện tích thực tế của khu đất.
- Kích thước phòng: Kiểm tra chiều rộng, chiều dài, chiều cao thông thủy của từng phòng xem có phù hợp với nhu cầu sử dụng và việc bố trí nội thất không.
- Vị trí cửa ra vào, cửa sổ: Đảm bảo vị trí và kích thước cửa hợp lý, lấy sáng và thông gió tốt, không bị cản trở bởi nội thất.
- Vị trí cầu thang (nếu có gác lửng): Kiểm tra độ dốc, chiều rộng bậc thang có an toàn và thoải mái khi di chuyển không.
3. Đánh Giá Công Năng Và Lưu Thông
- Luồng giao thông: Đánh giá xem việc di chuyển giữa các không gian chức năng có thuận tiện không. Ví dụ: từ bếp ra bàn ăn, từ phòng ngủ ra nhà vệ sinh.
- Sự riêng tư: Đảm bảo các không gian riêng tư (phòng ngủ, vệ sinh) được tách biệt hợp lý khỏi không gian chung.
- Ánh sáng và thông gió: Kiểm tra vị trí cửa sổ, giếng trời có đủ để cung cấp ánh sáng và thông gió tự nhiên cho tất cả các phòng không.
4. Kiểm Tra Vật Liệu Và Chi Tiết Kết Cấu
- Vật liệu hoàn thiện: Đọc kỹ phần ghi chú vật liệu để đảm bảo đúng loại gạch, sơn, gỗ, mái mà bạn đã chọn.
- Chi tiết kết cấu: Tuy không phải chuyên gia, nhưng bạn cũng nên xem qua các bản vẽ kết cấu để nắm được tổng quan về hệ thống móng, dầm, cột. Nếu có thắc mắc về độ dày tường, loại thép, đừng ngần ngại hỏi kiến trúc sư hoặc kỹ sư.
5. So Sánh Với Yêu Cầu Ban Đầu
Cuối cùng, hãy so sánh toàn bộ bộ sơ đồ thiết kế nhà cấp 4 với danh sách các yêu cầu ban đầu của bạn. Đảm bảo mọi mong muốn về số lượng phòng, công năng, phong cách, và đặc biệt là ngân sách đều được đáp ứng hoặc có giải thích thỏa đáng nếu có sự thay đổi. Việc kiểm tra kỹ lưỡng ở giai đoạn này sẽ giúp bạn tránh được những sai sót tốn kém và mất thời gian sau này.
Các Mẫu Sơ Đồ Thiết Kế Nhà Cấp 4 Đẹp, Tối Ưu Không Gian
Nhà cấp 4 có sự đa dạng đáng ngạc nhiên trong thiết kế. Dưới đây là một số mẫu sơ đồ thiết kế nhà cấp 4 phổ biến, giúp tối ưu hóa không gian và công năng, phù hợp với nhiều nhu cầu khác nhau.
1. Sơ Đồ Nhà Cấp 4 Có 2 Phòng Ngủ
Mẫu nhà này lý tưởng cho các gia đình nhỏ (2-4 thành viên) hoặc các cặp vợ chồng trẻ.
- Đặc điểm: Bố cục thường bao gồm 1 phòng khách, 1 bếp + ăn, 2 phòng ngủ, và 1-2 nhà vệ sinh.
- Tối ưu không gian: Thường thiết kế theo dạng không gian mở cho phòng khách và bếp ăn để tạo cảm giác rộng rãi. Phòng ngủ được bố trí hai bên hoặc một bên hành lang.
- Ưu điểm: Chi phí xây dựng thấp, thời gian thi công nhanh, dễ dàng bố trí nội thất.
- Gợi ý: Có thể tận dụng gác lửng để làm phòng thờ, kho hoặc không gian làm việc nhỏ.
2. Sơ Đồ Nhà Cấp 4 Có 3 Phòng Ngủ
Đây là lựa chọn phổ biến nhất cho các gia đình Việt Nam với 4-6 thành viên.
- Đặc điểm: Bao gồm 1 phòng khách, 1 bếp + ăn, 3 phòng ngủ (có thể có 1 phòng ngủ master), 2 nhà vệ sinh.
- Tối ưu không gian: Cần sự sắp xếp khéo léo để đảm bảo sự riêng tư cho từng phòng ngủ. Thường bố trí phòng khách ở phía trước, bếp ăn ở giữa hoặc phía sau, và các phòng ngủ được sắp xếp dọc theo một bên hoặc hai bên hành lang.
- Ưu điểm: Đáp ứng tốt nhu cầu sinh hoạt của gia đình đông thành viên, có thể phân chia khu vực sinh hoạt chung và riêng rõ ràng.
- Gợi ý: Thiết kế cửa sổ lớn hoặc giếng trời ở khu vực giữa nhà để đảm bảo ánh sáng và thông gió cho các phòng ngủ bên trong.
3. Sơ Đồ Nhà Cấp 4 Có Gác Lửng
Gác lửng là giải pháp tuyệt vời để tăng thêm diện tích sử dụng mà không cần xây thêm tầng.
- Đặc điểm: Tầng trệt bao gồm các không gian sinh hoạt chính (khách, bếp, 1-2 phòng ngủ), gác lửng thường dùng làm phòng ngủ phụ, phòng thờ, phòng làm việc hoặc khu vực giải trí.
- Tối ưu không gian: Tận dụng tối đa chiều cao trần. Cầu thang lên gác lửng thường được thiết kế nhỏ gọn, sát tường.
- Ưu điểm: Tăng diện tích sử dụng hiệu quả, tạo điểm nhấn kiến trúc độc đáo, không gian đa năng.
- Gợi ý: Đảm bảo độ cao thông thủy của gác lửng và tầng trệt hợp lý để không gây cảm giác chật chội. Cần tính toán kết cấu gác lửng chắc chắn.
4. Sơ Đồ Nhà Cấp 4 Hiện Đại Kèm Sân Vườn
Dành cho những gia đình yêu thích không gian xanh, hòa mình vào thiên nhiên.
- Đặc điểm: Ngôi nhà được thiết kế mở, kết nối với sân vườn phía trước, bên hông hoặc phía sau. Sử dụng nhiều cửa kính lớn, vách kính để đón ánh sáng và view xanh.
- Tối ưu không gian: Khoảng sân vườn được tích hợp vào tổng thể kiến trúc, tạo không gian thư giãn, mở rộng tầm nhìn.
- Ưu điểm: Mang lại không gian sống thoáng đãng, gần gũi thiên nhiên, nâng cao chất lượng cuộc sống.
- Gợi ý: Bố trí cây xanh, tiểu cảnh hợp lý, chọn loại cây dễ chăm sóc và phù hợp với khí hậu.
5. Sơ Đồ Nhà Cấp 4 Chữ L
Mẫu nhà chữ L là lựa chọn thông minh cho những khu đất có chiều ngang rộng hoặc cần tạo một khoảng sân riêng tư.
- Đặc điểm: Bố cục hình chữ L tạo ra một khoảng sân trong hoặc sân bên hông, thường được dùng làm khu vực giải trí, sân phơi, hoặc gara ô tô.
- Tối ưu không gian: Khoảng sân chữ L giúp lấy sáng và thông gió cho các phòng phía trong. Các phòng chức năng có thể được bố trí dọc theo hai cánh của chữ L.
- Ưu điểm: Tạo được khoảng sân riêng tư, tận dụng góc chết của khu đất, dễ dàng phân chia không gian.
- Gợi ý: Cần chú ý đến việc chống thấm cho các khu vực tiếp giáp giữa nhà và sân trong, đồng thời thiết kế thoát nước hiệu quả.
Khi lựa chọn sơ đồ thiết kế nhà cấp 4, điều quan trọng nhất là phải phù hợp với nhu cầu của gia đình, diện tích khu đất và ngân sách cho phép. Hãy tham khảo ý kiến của các chuyên gia tại Interstellas để có được giải pháp tối ưu nhất.
Kết Luận
Việc sở hữu một sơ đồ thiết kế nhà cấp 4 chi tiết và khoa học là bước khởi đầu vững chắc cho hành trình xây dựng tổ ấm mơ ước. Từ việc định hình ý tưởng, phân tích nhu cầu, cho đến việc triển khai các bản vẽ kỹ thuật phức tạp, mỗi giai đoạn đều đóng vai trò then chốt trong việc biến một khu đất trống thành một không gian sống tiện nghi, thẩm mỹ và an toàn. Một sơ đồ thiết kế tốt không chỉ giúp bạn hình dung rõ ràng về ngôi nhà tương lai mà còn là công cụ hữu hiệu để kiểm soát chất lượng, tối ưu hóa chi phí và đảm bảo mọi yếu tố pháp lý. Đầu tư vào thiết kế chính là đầu tư vào giá trị bền vững và chất lượng cuộc sống.
















