Mặt bằng chung cư 3 phòng ngủ luôn là sự lựa chọn hàng đầu của nhiều gia đình Việt Nam hiện đại, đặc biệt là những gia đình có nhiều thế hệ cùng chung sống hoặc mong muốn có không gian riêng tư. Loại hình căn hộ này không chỉ mang đến diện tích rộng rãi, mà còn tạo điều kiện thuận lợi để kiến tạo một không gian sống tiện nghi, thoải mái và đầy đủ công năng. Việc hiểu rõ về các yếu tố cấu thành một mặt bằng tối ưu sẽ giúp bạn đưa ra quyết định sáng suốt cho tổ ấm của mình.
Ưu điểm Nổi Bật của Mặt Bằng Chung Cư 3 Phòng Ngủ
Các căn hộ có mặt bằng chung cư 3 phòng ngủ ngày càng trở nên phổ biến bởi những lợi ích vượt trội mà chúng mang lại. Đây không chỉ là một không gian sống đơn thuần mà còn là giải pháp lý tưởng cho nhu cầu đa dạng của các gia đình, từ việc mở rộng không gian cá nhân cho đến khả năng thích ứng linh hoạt với sự thay đổi trong tương lai. Nhu cầu về loại hình căn hộ này đã tăng khoảng 25% trong 5 năm gần đây tại các đô thị lớn như TP.HCM và Hà Nội, cho thấy sức hấp dẫn không nhỏ.
Không Gian Sống Đa Năng và Riêng Tư
Ưu điểm lớn nhất của căn hộ 3 phòng ngủ chính là khả năng cung cấp không gian riêng tư tối đa cho mỗi thành viên trong gia đình. Với ba phòng ngủ riêng biệt, mỗi người có thể sở hữu một không gian cá nhân để nghỉ ngơi, học tập hoặc làm việc mà không làm ảnh hưởng đến người khác. Điều này đặc biệt quan trọng đối với các gia đình có trẻ nhỏ đang ở tuổi đi học hoặc có người lớn tuổi cần sự yên tĩnh. Bên cạnh đó, các phòng chức năng như phòng khách, bếp và nhà vệ sinh thường được bố trí hợp lý, tạo nên một tổng thể hài hòa, tiện nghi, đáp ứng mọi sinh hoạt hàng ngày.
Linh Hoạt Trong Bố Trí và Sử Dụng
Với diện tích mặt bằng rộng rãi hơn so với các căn hộ 1 hoặc 2 phòng ngủ, layout căn hộ 3PN mang đến sự linh hoạt đáng kinh ngạc trong việc bố trí nội thất và tùy biến công năng. Một phòng có thể dùng làm phòng ngủ chính, một phòng cho con cái, và phòng còn lại có thể biến thành phòng làm việc, phòng đọc sách, phòng gym tại gia hoặc thậm chí là phòng thờ cúng. Sự linh hoạt này giúp gia chủ dễ dàng điều chỉnh không gian sống theo từng giai đoạn phát triển của gia đình, từ khi có thêm thành viên mới cho đến khi con cái trưởng thành và dọn ra ở riêng. Điều này giúp tối ưu hóa chi phí và hiệu quả sử dụng lâu dài cho cư dân.
Giá Trị Đầu Tư và Khả Năng Thanh Khoản
Chung cư có 3 phòng ngủ không chỉ là nơi an cư lý tưởng mà còn là một khoản đầu tư tiềm năng. Với nhu cầu ổn định và xu hướng tăng giá trị của bất động sản đô thị, các căn hộ loại này thường có khả năng thanh khoản tốt hơn so với các loại hình nhỏ hơn. Chúng hấp dẫn nhiều đối tượng khách hàng, từ gia đình trẻ đến gia đình nhiều thế hệ, đảm bảo giá trị bền vững theo thời gian. Một mặt bằng chung cư 3 phòng ngủ được thiết kế đẹp và công năng hợp lý sẽ luôn được đánh giá cao trên thị trường, thu hút nhiều người mua hoặc thuê tiềm năng trong tương lai.
Mặt bằng chung cư 3 phòng ngủ với thiết kế tiện nghi
- Khám Phá Đồng Hồ Big Bang Ở Đâu và Lý Do Gây Sốt
- Những Nguyên Nhân Cháy Chung Cư Độc Lập Phổ Biến Nhất Hiện Nay
- Kế Hoàng Hậu là ai: Giải mã bí ẩn lịch sử và ý nghĩa tâm linh
- Khám Phá Chung Cư Jamona City Quận 7: Tổng Quan Chi Tiết
- Cập Nhật Giá Bán và Cho Thuê Chung Cư An Gia Quận 7 Chi Tiết
5 Ý Tưởng Bố Trí Mặt Bằng Căn Hộ 3 Phòng Ngủ Độc Đáo
Việc lựa chọn một bản vẽ căn hộ 3 phòng ngủ phù hợp với phong cách sống và nhu cầu của gia đình là vô cùng quan trọng. Các kiến trúc sư thường đưa ra nhiều phương án thiết kế sáng tạo để tối ưu hóa diện tích và công năng sử dụng. Dưới đây là 5 ý tưởng bố trí mặt bằng căn hộ 3 phòng ngủ đẹp mắt và hiệu quả, giúp bạn có cái nhìn tổng quan và lựa chọn được phong cách ưng ý cho tổ ấm của mình.
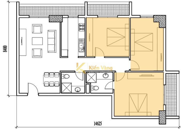
Mẫu Mặt Bằng Tối Ưu Cho Gia Đình Đa Thế Hệ
Đối với các gia đình có nhiều thế hệ cùng sinh sống, một thiết kế chung cư 3PN cần đảm bảo sự thoải mái và riêng tư cho tất cả mọi người. Mẫu mặt bằng này thường ưu tiên không gian sinh hoạt chung rộng rãi, được thiết kế theo lối kiến trúc mở, kết nối phòng khách, bếp và bàn ăn. Việc bố trí thêm ban công lớn hoặc khoảng xanh tự nhiên giúp cải thiện chất lượng không khí và mang lại cảm giác thư thái. Mỗi phòng ngủ đều có diện tích lớn, tạo điều kiện sinh hoạt tiện nghi nhất cho từng thành viên, đảm bảo mọi người đều có không gian cá nhân riêng biệt mà vẫn duy trì sự gắn kết gia đình.
Bản vẽ mặt bằng chung cư 3 phòng ngủ cho gia đình nhiều thế hệ
Mẫu Thiết Kế Gọn Gàng Cho Gia Đình Nhỏ
Mẫu mặt bằng căn hộ 3 phòng ngủ này lý tưởng cho các gia đình từ 4-5 người, đặc biệt là những gia đình sống tại các khu vực nội thành có hạn chế về diện tích. Ưu điểm nổi bật là sự gọn gàng, tối giản, giúp thời gian hoàn thiện nội thất nhanh chóng và tạo không gian sinh hoạt ấm cúng. Thiết kế thường tập trung vào việc tối ưu từng mét vuông, tránh những chi tiết rườm rà. Gia chủ có thể lựa chọn phong cách nội thất hiện đại, tối giản để không gian luôn thông thoáng và tiết kiệm chi phí. Đây là giải pháp hiệu quả cho những ai tìm kiếm sự tiện lợi và tốc độ hoàn thiện.
Mặt bằng căn hộ 3 phòng ngủ tối giản phù hợp gia đình nhỏ
Giải Pháp Tiện Nghi Với Phòng Vệ Sinh Riêng
Một trong những mẫu bố trí căn hộ 3 phòng ngủ cao cấp là việc trang bị phòng vệ sinh riêng cho mỗi phòng ngủ. Lợi thế về diện tích sử dụng cho phép thiết kế này mang lại sự tiện nghi tối đa, đặc biệt vào những giờ cao điểm. Không gian sinh hoạt chung cũng được mở rộng, bao gồm 3 phòng ngủ, khu vực khách rộng rãi, và một phòng bếp kèm bàn ăn đủ cho 6 người. Ngoài ra, mẫu này còn có thể tích hợp thêm khu vực lưu trữ đồ đạc và một phòng làm việc nhỏ riêng biệt, giúp mỗi thành viên dễ dàng bố trí không gian cá nhân theo sở thích và nhu cầu riêng của mình, nâng cao chất lượng cuộc sống.
Layout căn hộ 3 phòng ngủ có phòng vệ sinh riêng cho từng phòng
Phong Cách Cao Cấp Với Không Gian Mở Rộng
Nếu bạn đang tìm kiếm một mặt bằng chung cư 3 phòng ngủ mang phong cách cao cấp và hiện đại, mẫu thiết kế này sẽ là một lựa chọn đáng cân nhắc. Không gian được bố trí đồ đạc thông minh và logic, tạo cảm giác thông thoáng, rộng rãi. Khu vực phòng khách được tích hợp bàn ăn, tăng tính tiện lợi cho sinh hoạt gia đình. Bếp được ngăn cách tinh tế với không gian sinh hoạt chung bằng vách ngăn, vừa đảm bảo sự riêng tư vừa giữ được sự kết nối. Các phòng ngủ được thiết kế đẹp mắt với nội thất sang trọng, cao cấp. Đặc biệt, khu vực ban công ngoài trời có diện tích lớn, đủ để bạn thiết kế một khu vườn trên cao nhỏ xinh, mang thiên nhiên vào không gian sống.
Bố trí mặt bằng chung cư 3 phòng ngủ cao cấp với ban công rộng
Bố Cục Tinh Tế Cùng Ban Công Kép Thoáng Đãng
Đây là một trong những mẫu thiết kế mặt bằng căn hộ 3 phòng ngủ được bố trí vô cùng tinh tế và tối ưu ánh sáng tự nhiên. Các phòng ngủ được sắp xếp ở viền ngoài của căn hộ, trong khi khu vực trung tâm là không gian sinh hoạt chung bao gồm phòng khách, phòng bếp và bàn ăn được nối liền mạch. Điểm đặc biệt của mẫu này là sở hữu đến 2 ban công, trong đó có một ban công lớn kết nối trực tiếp với hai phòng ngủ chính, mang lại không gian vô cùng thoáng đãng. Thiết kế này giúp căn hộ luôn ngập tràn ánh sáng và gió trời, tạo cảm giác dễ chịu và mở rộng tầm nhìn, góp phần nâng cao chất lượng sống cho gia đình.
Thiết kế mặt bằng căn hộ 3PN tinh tế với 2 ban công thoáng đãng
Các Yếu Tố Quan Trọng Khi Chọn Mặt Bằng Chung Cư 3 Phòng Ngủ
Việc lựa chọn một mặt bằng chung cư 3 phòng ngủ không chỉ dừng lại ở việc xem xét các mẫu thiết kế đẹp mắt. Để đảm bảo căn hộ thực sự phù hợp với nhu cầu và mang lại cuộc sống tiện nghi, gia chủ cần cân nhắc kỹ lưỡng nhiều yếu tố quan trọng. Từ diện tích, hướng căn hộ cho đến tiện ích xung quanh, mỗi chi tiết đều đóng góp vào chất lượng sống tổng thể.
Diện Tích và Phân Bổ Công Năng
Khi tìm kiếm căn hộ 3 phòng ngủ, yếu tố diện tích là ưu tiên hàng đầu. Một căn hộ có diện tích phù hợp (thường từ 80m² đến 120m² tùy theo dự án và phân khúc) sẽ đảm bảo sự thoải mái cho các hoạt động sinh hoạt. Tuy nhiên, điều quan trọng hơn là cách phân bổ công năng bên trong. Bố trí căn hộ 3 phòng ngủ cần phải tối ưu để tránh lãng phí không gian. Các khu vực như phòng khách, bếp, khu vực ăn uống nên được liên thông hoặc có sự kết nối hợp lý để tạo cảm giác rộng rãi, thoáng đãng. Đồng thời, ba phòng ngủ cũng cần được bố trí sao cho đảm bảo sự riêng tư nhưng vẫn thuận tiện cho việc di chuyển.
Hướng Căn Hộ và Ánh Sáng Tự Nhiên
Hướng của mặt bằng chung cư 3 phòng ngủ ảnh hưởng trực tiếp đến chất lượng không gian sống, đặc biệt là ánh sáng và gió tự nhiên. Các căn hộ có hướng ban công hoặc cửa sổ đón được nắng sáng vào buổi sáng và tránh nắng gắt vào buổi chiều sẽ mang lại cảm giác dễ chịu hơn. Việc tận dụng tối đa ánh sáng tự nhiên không chỉ giúp tiết kiệm điện năng mà còn tạo ra không gian sống tràn đầy năng lượng, tốt cho sức khỏe. Ngoài ra, việc có luồng gió đối lưu tốt cũng giúp căn hộ luôn thông thoáng, tránh ẩm mốc, đặc biệt quan trọng trong khí hậu nhiệt đới của Việt Nam.
Vị Trí và Tiện Ích Xung Quanh
Vị trí của dự án chung cư và các tiện ích xung quanh cũng là yếu tố then chốt khi lựa chọn mặt bằng chung cư 3 phòng ngủ. Căn hộ nên nằm trong khu vực có giao thông thuận tiện, gần trường học, bệnh viện, siêu thị, công viên để đáp ứng nhu cầu sinh hoạt hàng ngày của gia đình. Tiện ích nội khu như hồ bơi, phòng gym, khu vui chơi trẻ em, an ninh 24/7 cũng góp phần nâng cao chất lượng cuộc sống. Việc lựa chọn một chung cư có 3 phòng ngủ không chỉ là mua một ngôi nhà mà còn là mua một môi trường sống toàn diện cho cả gia đình.
Lưu ý Thiết Kế Nội Thất Cho Mặt Bằng Chung Cư 3 Phòng Ngủ
Sau khi đã lựa chọn được mặt bằng chung cư 3 phòng ngủ ưng ý, bước tiếp theo là thiết kế và hoàn thiện nội thất. Đây là giai đoạn quan trọng để biến bản vẽ trên giấy thành không gian sống thực tế, đáp ứng cả về công năng lẫn thẩm mỹ. Với diện tích tương đối lớn, việc bố trí nội thất cho căn hộ 3 phòng ngủ đòi hỏi sự tỉ mỉ, sáng tạo để tạo nên một tổ ấm hài hòa, tiện nghi và thể hiện cá tính riêng của gia chủ.
Không gian sinh hoạt chung hiện đại trong căn hộ 3 phòng ngủ
Tối Ưu Công Năng Sử Dụng
Với một layout căn hộ 3PN có diện tích lớn, việc bố trí đồ đạc nội thất trở nên dễ dàng hơn nhưng cũng cần sự cân nhắc kỹ lưỡng để tối ưu công năng. Gia chủ nên lựa chọn một phong cách thiết kế chủ đạo và dựa theo đó để chọn phụ kiện nội thất phù hợp. Các chi tiết như giấy dán tường với màu sắc tươi sáng, phù hợp với độ tuổi của từng thành viên, hay việc bố trí cửa sổ kính lớn để đón ánh nắng tự nhiên từ ngoài vào sẽ làm tăng sự tiện nghi và rộng rãi cho căn hộ. Tủ quần áo âm tường, bàn làm việc tích hợp, hoặc thêm sofa đơn dành cho những giờ nghỉ ngơi, đọc sách trong phòng ngủ cũng là những ý tưởng tuyệt vời để tối ưu hóa không gian.
Phòng ngủ chính rộng rãi, tối ưu công năng trong căn hộ 3 phòng ngủ
Nâng Tầm Giá Trị Thẩm Mỹ
Việc bố trí nội thất cho mặt bằng chung cư 3 phòng ngủ cần đảm bảo tính hài hòa, thống nhất trong thiết kế, đồng thời không bỏ qua các điểm nhấn tạo nên sự độc đáo cho mỗi không gian riêng. Các không gian cần có sự giao thoa, cân bằng trong màu sắc, phong cách thiết kế và tính đồng nhất giữa các món đồ. Tránh sử dụng quá nhiều chi tiết trang trí rườm rà, điều này có thể khiến không gian tổng thể bị phá vỡ và trở nên chật chội. Thay vào đó, tập trung vào những món đồ nội thất thông minh, đa năng, có kiểu dáng hiện đại sẽ giúp nâng tầm giá trị thẩm mỹ của căn hộ.
Nội thất đẹp và công năng cho mặt bằng chung cư 3 phòng ngủ
Hiệu Quả Trong Thi Công và Hoàn Thiện
Với những bản vẽ mặt bằng chung cư 3 phòng ngủ được lên phương án chi tiết và cẩn thận bởi các kiến trúc sư, quá trình thi công và hoàn thiện nội thất sẽ diễn ra dễ dàng và hiệu quả hơn. Một lưu ý quan trọng là nên thi công theo đúng bản vẽ công năng và phối cảnh nội thất đã được thống nhất. Điều này không chỉ giúp bạn tiết kiệm thời gian và chi phí, mà còn đảm bảo chất lượng, giá trị thẩm mỹ và sự thuận tiện trong sinh hoạt sau này. Việc có kế hoạch rõ ràng từ đầu sẽ hạn chế tối đa những phát sinh không mong muốn trong quá trình thực hiện.
Bố trí nội thất tinh tế trong căn hộ 3 phòng ngủ
Không gian riêng tư ấm cúng và tiện nghi trong mặt bằng chung cư 3 phòng ngủ
Câu hỏi Thường Gặp về Mặt Bằng Chung Cư 3 Phòng Ngủ (FAQs)
Mặt bằng chung cư 3 phòng ngủ phù hợp với đối tượng nào?
Mặt bằng chung cư 3 phòng ngủ lý tưởng cho các gia đình trẻ có 1-2 con, gia đình đa thế hệ (ông bà, cha mẹ, con cái), hoặc những người muốn có thêm không gian làm việc, phòng giải trí riêng tại nhà. Đây là lựa chọn linh hoạt cho nhiều nhu cầu sinh hoạt khác nhau.
Diện tích tối thiểu của căn hộ 3 phòng ngủ là bao nhiêu?
Thông thường, diện tích căn hộ 3 phòng ngủ dao động từ khoảng 75m² đến hơn 120m² tùy thuộc vào từng dự án và chủ đầu tư. Tuy nhiên, một căn hộ 3 phòng ngủ có diện tích dưới 80m² thường được xem là khá nhỏ và có thể hạn chế về công năng, trong khi diện tích từ 90m² trở lên sẽ mang lại sự thoải mái và tiện nghi hơn.
Làm sao để tối ưu hóa không gian cho căn hộ 3 phòng ngủ nhỏ?
Để tối ưu hóa mặt bằng chung cư 3 phòng ngủ có diện tích hạn chế, bạn nên ưu tiên thiết kế không gian mở cho khu vực sinh hoạt chung (phòng khách – bếp – ăn), sử dụng nội thất đa năng, tích hợp (như giường gấp, bàn ăn thông minh), và tủ âm tường để tiết kiệm diện tích. Màu sắc sáng và gương lớn cũng giúp tạo cảm giác rộng rãi hơn.
Chi phí thiết kế và thi công nội thất cho căn hộ 3 phòng ngủ là bao nhiêu?
Chi phí thiết kế và thi công nội thất cho chung cư 3 phòng ngủ phụ thuộc vào nhiều yếu tố như phong cách thiết kế, chất liệu nội thất, mức độ hoàn thiện và đơn vị thi công. Mức giá có thể dao động từ vài trăm triệu đến hơn một tỷ đồng. Việc có bản vẽ thiết kế chi tiết từ đầu sẽ giúp dự trù kinh phí chính xác và tránh phát sinh.
Có nên chọn căn hộ 3 phòng ngủ có hai ban công không?
Có, việc chọn mặt bằng chung cư 3 phòng ngủ có hai ban công mang lại nhiều lợi ích. Một ban công có thể dùng để phơi đồ, trồng cây, còn ban công kia có thể làm khu vực thư giãn, đọc sách, hoặc tận hưởng tầm nhìn đẹp. Hai ban công giúp căn hộ thoáng khí hơn, đón nhiều ánh sáng tự nhiên hơn và tăng giá trị thẩm mỹ cho không gian sống.
Quá trình hoàn thiện nội thất mặt bằng chung cư 3 phòng ngủ
Căn hộ 3 phòng ngủ sau khi hoàn thiện cơ bản theo bản vẽ
Việc tìm hiểu và lựa chọn mặt bằng chung cư 3 phòng ngủ phù hợp là một quyết định quan trọng, ảnh hưởng trực tiếp đến chất lượng cuộc sống của gia đình bạn. Hy vọng những thông tin chi tiết và các gợi ý thiết kế mà Inter Stella cung cấp sẽ giúp bạn có cái nhìn toàn diện hơn, từ đó đưa ra lựa chọn tối ưu nhất cho tổ ấm của mình. Chú trọng vào công năng, thẩm mỹ và sự linh hoạt trong bố trí sẽ kiến tạo nên một không gian sống không chỉ đẹp mà còn tiện nghi, thoải mái, đáp ứng mọi nhu cầu của các thành viên.















