Trong hành trình kiến tạo tổ ấm lý tưởng, mẫu nhà đẹp 4 phòng ngủ luôn là sự lựa chọn được ưu tiên hàng đầu của nhiều gia đình Việt. Đây không chỉ là một không gian sống tiện nghi, đáp ứng đầy đủ nhu cầu sinh hoạt cho các gia đình đông thành viên hoặc đa thế hệ, mà còn là nơi thể hiện phong cách sống và gu thẩm mỹ riêng của gia chủ. Bài viết này của Interstellas sẽ cùng bạn đi sâu khám phá những ý tưởng thiết kế độc đáo, tối ưu công năng và mang lại giá trị thẩm mỹ bền vững cho những ngôi nhà 4 phòng ngủ, giúp bạn kiến tạo không gian sống mơ ước.
Mẫu Nhà Đẹp 4 Phòng Ngủ: Yếu Tố Tạo Nên Không Gian Sống Lý Tưởng
Một mẫu nhà đẹp 4 phòng ngủ được đánh giá cao không chỉ nằm ở số lượng phòng ốc mà còn ở sự hài hòa trong tổng thể kiến trúc, cách bố trí công năng khoa học và khả năng tạo ra một môi trường sống thoải mái, riêng tư cho từng thành viên. Để đạt được điều này, các kiến trúc sư và nhà thiết kế nội thất tại Interstellas luôn chú trọng đến việc tối ưu hóa diện tích, cân bằng giữa yếu tố thẩm mỹ và tính ứng dụng, đồng thời đảm bảo sự kết nối linh hoạt giữa các khu vực chức năng. Điều này giúp mỗi ngôi nhà trở thành một tác phẩm nghệ thuật, vừa đẹp mắt vừa tiện nghi, phản ánh chân thực mong muốn của gia chủ.
Nền Tảng Thiết Kế Cho Mẫu Nhà Đẹp 4 Phòng Ngủ
Việc thiết kế một ngôi nhà với 4 phòng ngủ đòi hỏi sự cân nhắc kỹ lưỡng về nhiều yếu tố, từ quy hoạch tổng thể đến chi tiết từng không gian nhỏ. Mục tiêu là tạo ra một ngôi nhà không chỉ đáp ứng nhu cầu hiện tại mà còn có khả năng thích nghi với sự thay đổi của gia đình trong tương lai.
Định Hình Phong Cách Kiến Trúc Phù Hợp
Phong cách kiến trúc là yếu tố đầu tiên quyết định vẻ đẹp và cá tính của mẫu nhà đẹp 4 phòng ngủ. Dù bạn yêu thích sự tối giản hiện đại, nét hoài cổ tân cổ điển, hay sự gần gũi của kiến trúc nông thôn, việc lựa chọn phong cách phải đồng bộ từ ngoại thất đến nội thất. Sự thống nhất này tạo nên một tổng thể hài hòa và ấn tượng. Chẳng hạn, một ngôi nhà hiện đại thường ưu tiên đường nét thẳng, vật liệu kính và thép, trong khi phong cách tân cổ điển lại chuộng các chi tiết phào chỉ, cột trụ và gam màu trung tính.
Tối Ưu Hóa Công Năng Sử Dụng & Bố Trí Mặt Bằng
Với 4 phòng ngủ, việc bố trí mặt bằng cần được tính toán kỹ lưỡng để đảm bảo sự riêng tư cho các thành viên, đồng thời duy trì không gian chung kết nối. Các khu vực sinh hoạt chung như phòng khách, bếp ăn nên được thiết kế mở, liền mạch để tạo cảm giác rộng rãi và gắn kết. Trong khi đó, các phòng ngủ cần được đặt ở vị trí yên tĩnh, tránh xa khu vực ồn ào và có đủ ánh sáng tự nhiên. Việc phân chia các khu vực ngủ theo tầng (nếu có gác lửng) hoặc theo các cánh riêng biệt là một giải pháp hiệu quả.
Vai Trò Của Ánh Sáng Tự Nhiên & Thông Gió
Ánh sáng tự nhiên và thông gió là hai yếu tố cốt lõi mang lại sức sống cho bất kỳ không gian nào. Đối với mẫu nhà đẹp 4 phòng ngủ, việc tận dụng tối đa ánh sáng mặt trời không chỉ giúp tiết kiệm năng lượng mà còn tạo cảm giác thoáng đãng, dễ chịu. Hệ thống cửa sổ lớn, cửa kính trượt, giếng trời hay các khe thông gió được bố trí hợp lý sẽ đảm bảo luồng không khí luôn lưu thông, mang lại không khí trong lành và tươi mới cho toàn bộ ngôi nhà. Các kiến trúc sư thường xem xét hướng nắng, hướng gió để đưa ra giải pháp thiết kế tối ưu nhất cho từng căn phòng, đặc biệt là phòng ngủ.
<>Xem Thêm Bài Viết:<>- Dự án Long Biên Central: Tiềm năng an cư và đầu tư vượt trội tại phía Đông Hà Nội
- Giá Bàn Làm Việc Gỗ Tự Nhiên: Yếu Tố Ảnh Hưởng & Lựa Chọn Lý Tưởng
- **Khám Phá Cơ Hội Bán Chung Cư Văn Khê: Hướng Dẫn Chi Tiết**
- Cách Trang Trí Cửa Hàng: Bí Quyết Thu Hút Khách Hàng Ngay Từ Cái Nhìn Đầu Tiên
- Mỹ Mỹ Quê Ở Đâu: Hé Lộ Hành Trình Từ Dancer Đến Ngôi Sao Đa Năng
Lựa Chọn Vật Liệu Xây Dựng & Trang Trí

Có thể bạn quan tâm: Khám Phá Các Mẫu Giường Gỗ Mdf Đẹp: Hướng Dẫn Chọn & Thiết Kế
Vật liệu không chỉ quyết định độ bền, chi phí mà còn ảnh hưởng trực tiếp đến thẩm mỹ của ngôi nhà. Việc lựa chọn vật liệu xây dựng (gạch, bê tông, thép) và vật liệu hoàn thiện (sơn, gạch ốp lát, gỗ, đá) cần phù hợp với phong cách thiết kế và điều kiện khí hậu. Các vật liệu thân thiện với môi trường, có khả năng cách nhiệt, cách âm tốt sẽ góp phần nâng cao chất lượng sống. Bên cạnh đó, các vật liệu trang trí như gỗ tự nhiên, đá nhân tạo, hoặc các tấm ốp tường hiện đại có thể tạo điểm nhấn độc đáo, mang lại vẻ đẹp sang trọng và cá tính.
Chi Phí Xây Dựng & Ngân Sách
Việc dự trù ngân sách chi tiết là bước quan trọng để đảm bảo quá trình xây dựng diễn ra suôn sẻ. Chi phí cho một mẫu nhà đẹp 4 phòng ngủ phụ thuộc vào nhiều yếu tố: diện tích, phong cách thiết kế, chất lượng vật liệu, và đơn vị thi công. Một bản kế hoạch tài chính rõ ràng, bao gồm chi phí thiết kế, xây dựng phần thô, hoàn thiện, nội thất và các chi phí phát sinh, sẽ giúp gia chủ kiểm soát tốt hơn và tránh những rắc rối không đáng có.
Các Mẫu Nhà Đẹp 4 Phòng Ngủ Ấn Tượng & Xu Hướng

Có thể bạn quan tâm: Tuyển Chọn Mẫu Gạch Lát Nền Nhà Đẹp 2018 Và Gợi Ý Ứng Dụng
Hiện nay, có rất nhiều ý tưởng và phong cách để thiết kế mẫu nhà đẹp 4 phòng ngủ, đáp ứng đa dạng nhu cầu và sở thích của gia chủ. Dưới đây là phân tích chuyên sâu về các mẫu nhà phổ biến và được ưa chuộng nhất.
Mẫu Nhà Cấp 4 Mái Nhật 4 Phòng Ngủ – Sự Giao Thoa Giữa Truyền Thống và Hiện Đại
Nhà cấp 4 mái Nhật 4 phòng ngủ là một trong những lựa chọn được yêu thích nhờ sự kết hợp hài hòa giữa nét kiến trúc Á Đông tinh tế và tính ứng dụng cao. Kiểu mái Nhật với độ dốc nhẹ, trải đều ra bốn phía, tạo cảm giác thanh thoát, gần gũi mà vẫn rất hiện đại. Sự đơn giản trong đường nét nhưng tỉ mỉ trong chi tiết giúp ngôi nhà trở nên nổi bật và bền vững theo thời gian.

Có thể bạn quan tâm: Khám Phá Các Mẫu Nhà 1 Tầng 80m2 Đẹp, Hiện Đại Và Tối Ưu Chi Phí
Đặc Điểm Nổi Bật
- Kiến trúc Mái Nhật độc đáo: Mái Nhật thường có độ dốc vừa phải, giúp thoát nước mưa hiệu quả và tạo hình khối kiến trúc ấn tượng. Chất liệu ngói (màu xám, xanh hoặc đỏ) là lựa chọn phổ biến, mang đến vẻ đẹp truyền thống nhưng vẫn toát lên sự sang trọng.
- Không gian sống rộng rãi: Với 4 phòng ngủ, ngôi nhà cấp 4 mái Nhật thường được xây dựng trên diện tích đất từ 100m² trở lên, đảm bảo không gian sinh hoạt thoải mái cho gia đình đa thế hệ.
- Công năng khoa học: Các phòng chức năng như phòng khách, bếp, phòng ăn, phòng ngủ, phòng thờ thường được bố trí một cách thông minh, tạo sự liên mạch và thuận tiện trong sinh hoạt. Các phòng ngủ được thiết kế riêng tư, đủ ánh sáng và thông gió.
- Thích nghi khí hậu Việt Nam: Độ dốc mái nhẹ giúp tản nhiệt tốt vào mùa hè, đồng thời thoát nước nhanh vào mùa mưa, chống ẩm mốc hiệu quả.
Phân Loại Nhà Mái Nhật 4 Phòng Ngủ
- Dạng mái bằng: Thiết kế mái trải rộng và bằng phẳng, mang lại cảm giác vững chãi, hiện đại. Dạng mái này được ưa chuộng nhờ khả năng chống nắng và chịu ẩm tốt, tăng cường tuổi thọ cho công trình.
- Dạng mái dốc: Gồm nhiều lớp mái xếp chồng lên nhau, tạo hiệu ứng gợn sóng mềm mại, thanh lịch. Đây là lựa chọn lý tưởng cho những gia chủ yêu thích sự hòa quyện giữa vẻ đẹp truyền thống và hiện đại.
Mẫu nhà cấp 4 mái Nhật 4 phòng ngủ là sự giao thoa giữa kiến trúc đơn giản, kiểu mái thanh thoát và sự tiện nghi, rộng rãi (Nguồn: Internet)
Mẫu nhà cấp 4 mái Nhật 4 phòng ngủ dạng mái dốc được yêu thích hiện nay (Nguồn: Internet)
Nhà cấp 4 mái Nhật 4 phòng ngủ thường được xây dựng trên mảnh đất có diện tích từ 100m2 (Nguồn: Internet)

Mẫu Nhà Cấp 4 Mái Nhật 4 Phòng Ngủ ở Nông Thôn
Ở các vùng nông thôn, mẫu nhà đẹp 4 phòng ngủ kiểu cấp 4 mái Nhật đang trở thành xu hướng nhờ khả năng tận dụng tối đa diện tích đất, tạo không gian sống rộng rãi, thoáng đãng và gần gũi với thiên nhiên. Thiết kế này thường có sân vườn rộng, là nơi lý tưởng để gia đình thư giãn và sinh hoạt ngoài trời.
Mẫu nhà cấp 4 mái Nhật 4 phòng ngủ ở nông thôn giản dị (Nguồn: Internet)
Mẫu nhà cấp 4 nông thôn mái Nhật 4 phòng ngủ đầy đủ tiện nghi (Nguồn: Internet)
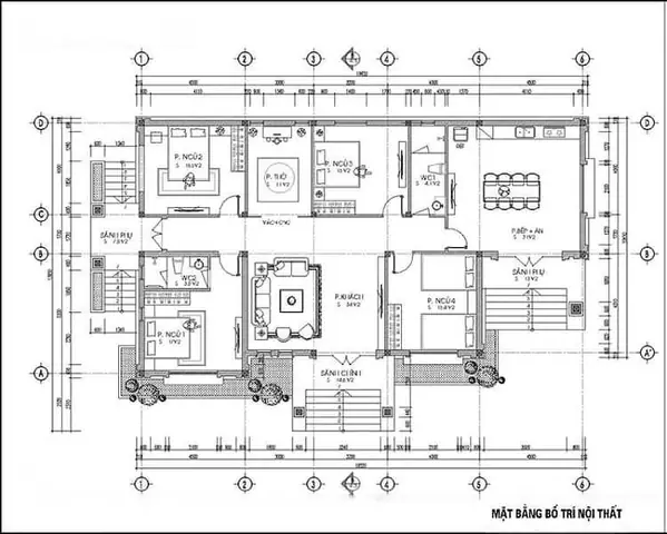
Bản vẽ mẫu nhà cấp 4 nông thôn mái Nhật 4 phòng ngủ (Nguồn: Internet)

Mẫu Nhà Mái Nhật 1 Tầng 4 Phòng Ngủ Hiện Đại

Phong cách hiện đại mang đến sự tối giản nhưng không kém phần tinh tế và sang trọng. Mẫu nhà đẹp 4 phòng ngủ hiện đại thường chú trọng vào các mảng khối rõ ràng, vật liệu hiện đại như kính, thép, bê tông trần kết hợp với hệ thống cây xanh. Hệ thống cửa sổ kính lớn là điểm nhấn, giúp tối đa hóa ánh sáng tự nhiên và mở rộng tầm nhìn, kết nối không gian bên trong với cảnh quan bên ngoài. Khu vực sân vườn, tiểu cảnh được bố trí khoa học, tạo không gian thư giãn lý tưởng.

Mẫu nhà cấp 4 mái Nhật 4 phòng ngủ, 1 phòng thờ hiện đại (Nguồn: Internet)
Xây nhà cấp 4 thiết kế mái Nhật 4 phòng ngủ hiện đại, ấn tượng (Nguồn: Internet)
Mẫu nhà cấp 4 mái Nhật 4 phòng ngủ hiện đại, ấn tượng (Nguồn: Internet)
Mẫu Nhà Cấp 4 Mái Nhật 4 Phòng Ngủ Tân Cổ Điển

Phong cách tân cổ điển là sự pha trộn tinh tế giữa vẻ đẹp cổ điển sang trọng và đường nét hiện đại phóng khoáng. Một mẫu nhà đẹp 4 phòng ngủ tân cổ điển thường được thể hiện qua các chi tiết trang trí cầu kỳ như cột trụ, phào chỉ, hoa văn tinh xảo trên mặt tiền. Gam màu trầm ấm kết hợp với ánh sáng vàng nhẹ nhàng tạo nên không gian ấm cúng, đẳng cấp. Nội thất bên trong cũng được lựa chọn tỉ mỉ, với các đồ dùng có họa tiết đối xứng, vật liệu cao cấp, tôn vinh vẻ đẹp vượt thời gian.

Mẫu nhà cấp 4 mái Nhật 4 phòng ngủ tân cổ điển có các chi tiết hoa văn tinh xảo (Nguồn: Internet)

Mẫu nhà cấp 4 đẹp 5×20 mái Nhật 4 phòng ngủ với phong cách tân cổ điển (Nguồn: Internet)
Mẫu Nhà Cấp 4 Mái Nhật 4 Phòng Ngủ theo Diện Tích
Việc tối ưu hóa không gian cho mẫu nhà đẹp 4 phòng ngủ theo từng diện tích cụ thể là chìa khóa để tạo ra một không gian sống tiện nghi và thẩm mỹ.
Nhà 12x13m (khoảng 156m²)

Với diện tích 12x13m, một mẫu nhà đẹp 4 phòng ngủ có thể được thiết kế khéo léo để đảm bảo sự riêng tư và tiện nghi cho 4-6 thành viên. Gam màu trắng thường được chọn làm chủ đạo để tạo cảm giác sang trọng và mở rộng không gian. Các kiến trúc sư sẽ bố trí các phòng ngủ xung quanh khu vực sinh hoạt chung, đảm bảo luồng di chuyển thuận tiện và ánh sáng tự nhiên cho mọi căn phòng.
Nhà mái ngói cấp 4 có 4 phòng ngủ 12x13m với thiết kế mái Nhật hiện đại (Nguồn: Internet)
Mẫu nhà cấp 4 mái Nhật 4 phòng ngủ diện tích 12x13m bề thế, sang trọng (Nguồn: Internet)
Nhà 12x15m (khoảng 180m²)
Trên diện tích 12x15m, mẫu nhà đẹp 4 phòng ngủ có thể được thiết kế với không gian rộng rãi hơn, có thể tích hợp thêm phòng thờ hoặc khu vực làm việc riêng. Phòng khách thường là trung tâm, liên thông với bếp và phòng ăn để tối ưu hóa không gian chung. Với mặt tiền rộng 12m, ngôi nhà dễ dàng đón ánh sáng và gió trời, tạo cảm giác thoáng đãng. Hệ thống cửa sổ kính lớn là giải pháp hiệu quả để làm bừng sáng mọi ngóc ngách.
Mẫu nhà cấp 4 mái Nhật 4 phòng ngủ, 1 phòng thờ diện tích 12x15m (Nguồn: Internet)

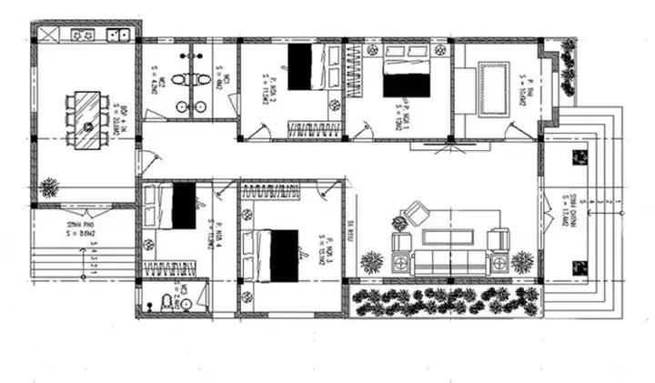
Bản vẽ thiết kế nhà cấp 4 có 4 phòng ngủ kích thước 12x15m (Nguồn: Internet)

Nhà 100m²
Với 100m², một mẫu nhà đẹp 4 phòng ngủ thường có hình dáng chữ nhật và ưu thế hai mặt tiền, rất phù hợp với lô đất rộng hoặc lô góc. Thiết kế này không chỉ mang đến vẻ đẹp hiện đại mà còn tối ưu khả năng đón nắng và gió. Các phòng ngủ được bố trí khoa học, đảm bảo sự riêng tư và tiện nghi cho gia đình.
Mẫu nhà cấp 4 mái Nhật 4 phòng ngủ 100m2 độc đáo, mới nhất (Nguồn: Internet)
Mẫu nhà cấp 4 đẹp giá rẻ mái Nhật 4 phòng ngủ đơn giản (Nguồn: Internet)
Nhà 120m²

Trên diện tích 120m², mẫu nhà đẹp 4 phòng ngủ kiểu cấp 4 mái Nhật trở thành tổ ấm lý tưởng cho gia đình 4-5 thành viên. Thiết kế hiện đại chú trọng tối đa hóa không gian, mang lại sự tiện nghi và thoải mái. Các khu vực chức năng được bố trí hợp lý, đảm bảo sự riêng tư cho từng phòng ngủ và sự kết nối cho không gian sinh hoạt chung.

Mẫu nhà cấp 4 mái Nhật 4 phòng ngủ 120m2 với thiết kế thanh lịch, hiện đại (Nguồn: Internet)
Mẫu nhà cấp 4 mái Nhật 4 phòng ngủ 120m2 rộng rãi, hài hòa với thiên nhiên (Nguồn: Internet)
Nhà 150m²

Với 150m², mẫu nhà đẹp 4 phòng ngủ mái Nhật là lựa chọn lý tưởng cho các gia đình đông thành viên, mang đến không gian sống rộng rãi, hiện đại và đầy đủ tiện nghi. Mỗi khu vực từ phòng khách, bếp, phòng ăn đến phòng ngủ và phòng tắm đều được bố trí hợp lý. Đặc biệt, ngôi nhà thường có sân vườn lớn, tạo không gian xanh mát và yên bình, là nơi thư giãn hoàn hảo cho cả gia đình.

Mẫu nhà 1 tầng 4 phòng ngủ mái Nhật 150m2 đẹp, hiện đại, thông thoáng (Nguồn: Internet)

Mẫu nhà 1 tầng 4 phòng ngủ mái Nhật 150m2 có sân vườn xinh xắn (Nguồn: Internet)
Mẫu Nhà Cấp 4 Mái Nhật 4 Phòng Ngủ Có Gác Lửng
Thiết kế gác lửng là giải pháp thông minh để tối ưu hóa không gian sử dụng, đặc biệt phù hợp với những lô đất có diện tích hạn chế. Mẫu nhà đẹp 4 phòng ngủ có gác lửng giúp tăng thêm không gian sinh hoạt mà không làm thay đổi chiều cao tổng thể của ngôi nhà. Khu vực gác lửng thường được tận dụng làm phòng thờ, phòng ngủ phụ, hoặc phòng làm việc, mang lại sự linh hoạt và tiện nghi.
Mẫu nhà gác lửng mái Nhật 4 phòng ngủ giá 500 triệu (Nguồn: Internet)

Mẫu nhà cấp 4 mái Nhật 4 phòng ngủ tận dụng không gian gác lửng làm phòng thờ (Nguồn: Internet)

Nhà cấp 4 gác lửng mái Nhật 4 phòng ngủ hiện đại (Nguồn: Internet)
Mẫu Nhà Cấp 4 Mái Nhật 4 Phòng Ngủ Có Sân Vườn
Sự kết hợp giữa mẫu nhà đẹp 4 phòng ngủ và sân vườn mang đến không gian sống trong lành, gần gũi với thiên nhiên. Khu vực sân vườn có thể được thiết kế với cây xanh, thảm cỏ, lối đi lát đá tự nhiên, tạo điểm nhấn thư giãn. Phần hiên nhà mở rộng cùng hệ cửa kính lớn giúp tối đa hóa ánh sáng tự nhiên và tạo sự liên kết hài hòa giữa không gian bên trong và bên ngoài. Đây là lựa chọn lý tưởng cho những gia đình yêu thích cuộc sống xanh.
Mẫu nhà cấp 4 mái Nhật 4 phòng ngủ đẹp có sân vườn rộng (Nguồn: Internet)

Mẫu nhà cấp 4 mái Nhật 4 phòng ngủ nổi bật với không gian sân vườn xanh mát (Nguồn: Internet)

Mẫu Nhà Cấp 4 Mái Nhật 4 Phòng Ngủ Có Gara
Tích hợp gara là một giải pháp tiện ích và hiện đại cho mẫu nhà đẹp 4 phòng ngủ, đặc biệt đối với các gia đình có ô tô. Gara có thể được đặt cạnh nhà với mái che hoặc thiết kế liền khối với kiến trúc chính, giúp tiết kiệm diện tích và thuận tiện khi sử dụng. Thiết kế gara không chỉ bảo vệ phương tiện mà còn góp phần tăng giá trị thẩm mỹ tổng thể cho ngôi nhà.
Mẫu nhà cấp 4 mái Nhật 4 phòng ngủ tích hợp gara xe tiện nghi, hiện đại (Nguồn: Internet)
Mẫu nhà cấp 4 mái Nhật 4 phòng ngủ có gara xe đặt bên hông nhà (Nguồn: Internet)
Mẫu Nhà Cấp 4 Mái Nhật 4 Phòng Ngủ 1 Phòng Thờ

Đối với các gia đình Việt, việc có một phòng thờ riêng là vô cùng quan trọng. Mẫu nhà đẹp 4 phòng ngủ kết hợp 1 phòng thờ thường được thiết kế để tối ưu hóa không gian và công năng sử dụng. Phòng thờ được tách biệt hoàn toàn với các khu vực sinh hoạt khác, thường mang phong cách truyền thống với gam màu trầm ấm và ánh sáng dịu nhẹ, tạo không gian trang nghiêm và yên bình. Các phòng ngủ được phân chia khoa học, đảm bảo riêng tư, trong khi khu vực bếp và phòng ăn được bố trí liền kề, tạo sự ấm cúng và thuận tiện cho sinh hoạt chung.

Mẫu nhà cấp 4 có 4 phòng ngủ 1 phòng thờ với thiết kế mái Nhật sang trọng (Nguồn: Internet)
Bản vẽ nhà cấp 4 nông thôn 4 phòng ngủ đầy đủ công năng (Nguồn: Internet)
Mẫu Nhà Cấp 4 Mái Nhật 4 Phòng Ngủ 2 Mặt Tiền
Những lô đất có lợi thế 2 mặt tiền là điều kiện lý tưởng để thiết kế mẫu nhà đẹp 4 phòng ngủ theo phong cách hiện đại và ấn tượng. Với hai mặt tiền rộng, ngôi nhà dễ dàng bố trí nhiều cửa sổ lớn và cửa chính ở cả hai phía, tối ưu hóa khả năng đón gió và ánh sáng tự nhiên. Điều này tạo ra một không gian sống sáng sủa, thoáng đãng và tràn đầy năng lượng. Bên trong, các phòng ngủ được sắp xếp hợp lý để đảm bảo sự riêng tư, trong khi khu vực phòng khách và bếp thường được kết nối liền mạch, tạo cảm giác rộng rãi và mở. Gia chủ cũng có thể tận dụng lợi thế 2 mặt tiền để tạo thêm sân vườn hoặc bãi đỗ xe, tăng tiện ích và giá trị thẩm mỹ cho ngôi nhà.

Mẫu nhà cấp 4 mái Nhật 4 phòng ngủ 2 mặt tiền thiết kế độc đáo, nổi bật (Nguồn: Internet)
Mẫu Nhà Vườn Cấp 4 Mái Nhật 4 Phòng Ngủ
Mẫu nhà đẹp 4 phòng ngủ kiểu nhà vườn cấp 4 mái Nhật được thiết kế nhằm mang lại không gian sống hài hòa với thiên nhiên, tạo cảm giác trong lành và yên tĩnh. Sân vườn rộng rãi được trang trí bởi cây xanh, thảm cỏ, hồ nước nhỏ, mang đến khung cảnh thư giãn lý tưởng. Bên trong, các phòng được bố trí khoa học, phòng khách và bếp thường liên thông để tối ưu không gian chung. Thiết kế mái Nhật với độ dốc nhẹ giúp thoát nước tốt, giữ cho ngôi nhà luôn khô ráo và bền đẹp.
Mẫu nhà vườn cấp 4 nông thôn mái Nhật 4 phòng ngủ có không gian xanh mát (Nguồn: Internet)

Mẫu nhà vườn nhỏ đẹp cấp 4 mái Nhật 4 phòng ngủ nổi bật với dàn hoa rực rỡ (Nguồn: Internet)

Mẫu Biệt Thự Cấp 4 Mái Nhật 4 Phòng Ngủ
Nếu bạn có diện tích đất rộng và mong muốn một không gian sống đẳng cấp, sang trọng, mẫu nhà đẹp 4 phòng ngủ dạng biệt thự cấp 4 mái Nhật là một lựa chọn tuyệt vời. Kiểu nhà này thường được xây dựng trên diện tích lớn, bố trí đầy đủ các phòng chức năng cao cấp như phòng khách rộng, phòng ăn, bếp đảo, 4 phòng ngủ tiện nghi, và phòng tắm hiện đại. Ngoại thất biệt thự được chú trọng với sân vườn rộng, tiểu cảnh xanh mát, và hệ thống cửa kính lớn để tối ưu ánh sáng tự nhiên. Biệt thự còn có thể tích hợp gara ô tô và khu vực thư giãn riêng như hồ bơi mini, khu BBQ, đáp ứng mọi nhu cầu sống của gia đình.
Mẫu biệt thự nhà vườn cấp 4 mái Nhật 4 phòng ngủ sang trọng, đẳng cấp (Nguồn: Internet)

Mẫu biệt thự mini cấp 4 mái Nhật 4 phòng ngủ đẹp, lộng lẫy (Nguồn: Internet)

Lưu Ý Quan Trọng Khi Thiết Kế và Xây Dựng Mẫu Nhà Đẹp 4 Phòng Ngủ
Để hiện thực hóa một mẫu nhà đẹp 4 phòng ngủ ưng ý, gia chủ cần đặc biệt lưu tâm đến những yếu tố sau đây nhằm đảm bảo tính thẩm mỹ, công năng tối ưu và tiết kiệm chi phí hiệu quả.
Lựa Chọn Vật Liệu Xây Dựng Chất Lượng
Chất lượng vật liệu là nền tảng cho sự bền vững và thẩm mỹ của ngôi nhà. Hãy ưu tiên các vật liệu có nguồn gốc rõ ràng, đạt tiêu chuẩn kỹ thuật và phù hợp với điều kiện khí hậu. Bên cạnh các vật liệu cơ bản như gạch, xi măng, sắt thép, hãy cân nhắc các giải pháp vật liệu hiện đại có tính năng cách âm, cách nhiệt, chống thấm tốt để nâng cao chất lượng công trình và giảm chi phí vận hành sau này. Việc tìm hiểu và lựa chọn vật liệu kỹ càng sẽ giúp ngôi nhà giữ được vẻ đẹp và tuổi thọ theo thời gian.

Xác Định Thời Gian Khởi Công Hợp Lý

Lên kế hoạch thời điểm khởi công có ảnh hưởng lớn đến tiến độ và chất lượng công trình. Tránh những tháng mưa bão kéo dài có thể làm chậm trễ tiến độ, ảnh hưởng đến chất lượng vật liệu và gây phát sinh chi phí. Việc chọn thời điểm khô ráo, thuận lợi sẽ giúp công việc thi công diễn ra nhanh chóng, hiệu quả và đảm bảo chất lượng tốt nhất.
Dự Trù Ngân Sách Chi Tiết và Minh Bạch
Một bản dự trù ngân sách chi tiết là kim chỉ nam cho toàn bộ dự án. Ngân sách cần bao gồm tất cả các khoản mục từ chi phí thiết kế, xây dựng phần thô, hoàn thiện (nội thất, ngoại thất), đến các chi phí phát sinh không lường trước (khoảng 10-15% tổng chi phí). Việc minh bạch hóa các khoản mục giúp gia chủ dễ dàng kiểm soát tài chính, tránh vượt quá ngân sách và đảm bảo chất lượng công trình theo đúng mong muốn ban đầu.
Cần dự trù ngân sách và thời gian xây nhà cấp 4 mái Nhật 4 phòng ngủ (Nguồn: Internet)

Lựa Chọn Đơn Vị Thiết Kế và Thi Công Uy Tín

Đây là yếu tố then chốt quyết định sự thành công của dự án. Một nhà thầu uy tín, có kinh nghiệm trong thiết kế và thi công mẫu nhà đẹp 4 phòng ngủ sẽ đảm bảo chất lượng công trình, tuân thủ các tiêu chuẩn kỹ thuật, và giúp gia chủ tiết kiệm thời gian, công sức. Họ sẽ có đội ngũ kiến trúc sư và kỹ sư lành nghề, cung cấp giải pháp tối ưu và xử lý các vấn đề phát sinh một cách chuyên nghiệp. Việc tham khảo các dự án đã thực hiện và đánh giá từ khách hàng trước là cách tốt để lựa chọn đối tác đáng tin cậy.
Ý Tưởng Thiết Kế Nội Thất Hiện Đại Cho Mẫu Nhà Đẹp 4 Phòng Ngủ
Để mẫu nhà đẹp 4 phòng ngủ không chỉ cuốn hút từ bên ngoài mà còn tiện nghi, thẩm mỹ từ bên trong, việc áp dụng các ý tưởng thiết kế nội thất hiện đại là điều không thể thiếu.
Sử Dụng Các Tông Màu Sáng và Trung Tính
Các gam màu sáng như trắng, be, xám nhạt không chỉ giúp không gian có vẻ rộng rãi, thoáng đãng hơn mà còn mang đến cảm giác bình yên, nhẹ nhàng. Việc phối hợp tinh tế các tông màu này tạo nên nét thanh lịch, tối giản đặc trưng, đặc biệt phù hợp với phong cách kiến trúc hiện đại và mái Nhật. Những màu sắc này cũng dễ dàng kết hợp với các món đồ nội thất và trang trí, tạo nên sự linh hoạt trong việc thay đổi phong cách.

Bố Trí Không Gian Phòng Hợp Lý & Đa Năng
Đối với mẫu nhà đẹp 4 phòng ngủ, việc phân chia các khu vực chức năng khoa học, tối ưu hóa không gian là yếu tố quan trọng để đáp ứng nhu cầu sinh hoạt đa dạng. Các khu vực chung như phòng khách, bếp, ăn nên được thiết kế mở, liền mạch để tăng cường sự kết nối gia đình. Các phòng ngủ cần đảm bảo sự riêng tư, có đủ ánh sáng và thông gió tự nhiên. Đặc biệt, việc tích hợp nội thất đa năng (giường kết hợp tủ kéo, bàn gấp) có thể giúp tối ưu hóa diện tích cho những phòng ngủ có không gian vừa phải.
Mẫu nhà cấp 4 mái Nhật 4 phòng ngủ có thiết kế thông minh, tiện nghi, đáp ứng mọi nhu cầu sinh hoạt của gia đình (Nguồn: Internet)

Tối Ưu Hệ Thống Cửa Sổ để Thông Gió và Ánh Sáng Tự Nhiên

Thiết kế hệ cửa thông gió và ánh sáng là ưu tiên hàng đầu để tận dụng tối đa nguồn năng lượng tự nhiên, tạo không gian sống thoáng đãng và thoải mái. Cửa sổ nên được bố trí hợp lý ở phòng khách, phòng ngủ và các khu vực chức năng khác để tăng cường độ sáng. Ưu tiên các mẫu cửa sổ mở rộng, cửa lùa hoặc cửa quay giúp tối ưu sự thông gió, đồng thời mang lại cảm giác gần gũi với thiên nhiên bên ngoài.
Lựa Chọn Nội Thất Đơn Giản, Tinh Tế
Trong thiết kế nội thất cho mẫu nhà đẹp 4 phòng ngủ, việc ưu tiên những mẫu nội thất có đường nét đơn giản, gọn gàng, đa năng sẽ giúp không gian trở nên tinh tế và hiện đại. Những món đồ nội thất tối giản không chỉ mang lại cảm giác thoáng đãng mà còn dễ dàng vệ sinh, bảo quản và kết hợp với nhiều phong cách khác nhau. Tránh các đồ vật quá cồng kềnh hoặc nhiều chi tiết rườm rà có thể làm không gian bị nặng nề.

Trang Trí Họa Tiết Tường Đơn Giản nhưng Ấn Tượng

Để tạo điểm nhấn cho mẫu nhà đẹp 4 phòng ngủ, gia chủ có thể cân nhắc các giải pháp trang trí tường đơn giản nhưng hiệu quả. Thay vì các họa tiết phức tạp, việc sử dụng các mảng màu đối lập, vách ốp vật liệu tự nhiên như gỗ hoặc đá, hoặc các tấm ốp tường hiện đại với vân gỗ, vân đá sẽ mang đến vẻ đẹp sang trọng, cá tính. Những vật liệu này không chỉ có tính thẩm mỹ cao mà còn có thể cải thiện khả năng cách âm, cách nhiệt, nâng cao chất lượng sống.
Mẫu nhà cấp 4 mái Nhật 4 phòng ngủ sử dụng tấm DURAwood để lót sàn nhà (Nguồn: Internet)
Câu Hỏi Thường Gặp Về Mẫu Nhà Đẹp 4 Phòng Ngủ
Để giúp bạn có cái nhìn toàn diện hơn về mẫu nhà đẹp 4 phòng ngủ, chúng tôi đã tổng hợp và giải đáp một số câu hỏi phổ biến.

Nhà cấp 4 mái Nhật 4 phòng ngủ giá bao nhiêu?
Chi phí xây dựng mẫu nhà đẹp 4 phòng ngủ phụ thuộc vào nhiều yếu tố như diện tích, phong cách thiết kế, chất lượng vật liệu, và khu vực địa lý. Hiện nay, chi phí phần thô dao động khoảng 4 – 4,5 triệu đồng/m². Nếu lựa chọn gói hoàn thiện trọn gói, mức giá có thể từ 5,5 triệu đồng/m² trở lên, tùy thuộc vào yêu cầu vật liệu và độ phức tạp của thiết kế. Để có báo giá chính xác, bạn nên tham khảo ý kiến từ các kiến trúc sư và nhà thầu uy tín để có bản dự toán chi tiết.
Cần lưu ý gì khi thi công nhà cấp 4 mái Nhật 4 phòng ngủ?
Khi thi công mẫu nhà đẹp 4 phòng ngủ, gia chủ cần lưu ý nhiều yếu tố quan trọng:
- Kích thước và mục đích sử dụng: Xác định rõ ràng diện tích từng phòng và công năng cụ thể để tối ưu hóa bố cục.
- Kế hoạch tài chính: Dự trù ngân sách chi tiết và có khoản dự phòng cho các chi phí phát sinh.
- Thời gian thi công: Lựa chọn thời điểm xây dựng phù hợp, tránh mùa mưa bão để đảm bảo tiến độ và chất lượng.
- Lựa chọn vật liệu: Ưu tiên vật liệu chất lượng, bền bỉ và phù hợp với phong cách kiến trúc.
- Đơn vị thi công: Chọn nhà thầu uy tín, có kinh nghiệm để đảm bảo chất lượng và tính thẩm mỹ của công trình.
Nhà cấp 4 mái Nhật 4 phòng ngủ, 1 phòng thờ có ưu điểm gì?
Mẫu nhà đẹp 4 phòng ngủ với 1 phòng thờ là lựa chọn lý tưởng cho các gia đình đa thế hệ, mang lại nhiều ưu điểm nổi bật. Thiết kế này cho phép bố trí hợp lý các khu vực chức năng: phòng khách rộng rãi, bếp ăn ấm cúng, 4 phòng ngủ riêng tư và một phòng thờ tách biệt, trang nghiêm. Sự phân chia rõ ràng này đảm bảo tiện lợi trong sinh hoạt hằng ngày, đồng thời tạo không gian riêng tư cho từng thành viên, giữ gìn nét văn hóa truyền thống của gia đình Việt.

Thiết kế một mẫu nhà đẹp 4 phòng ngủ là một quá trình đòi hỏi sự cân nhắc tỉ mỉ từ ý tưởng đến thực thi. Từ việc lựa chọn phong cách kiến trúc, tối ưu công năng, đến việc chú trọng vật liệu và ánh sáng, mỗi quyết định đều góp phần kiến tạo nên một không gian sống không chỉ đẹp mắt mà còn tiện nghi, bền vững. Hy vọng những thông tin chuyên sâu từ Interstellas đã cung cấp cho bạn cái nhìn toàn diện và nguồn cảm hứng phong phú để bắt đầu hành trình xây dựng tổ ấm mơ ước của mình. Khám phá các giải pháp nội thất sáng tạo và nhận tư vấn chuyên nghiệp tại Interstellas để biến mọi ý tưởng thành hiện thực.

















