Trong bối cảnh đô thị hóa ngày càng phát triển, việc tối ưu hóa không gian sống và kinh doanh trở thành một nhu cầu cấp thiết. Mô hình nhà phố 5×20 có tầng lửng kết hợp kinh doanh nổi lên như một giải pháp thông minh, giúp các gia chủ vừa có được tổ ấm tiện nghi, vừa tận dụng lợi thế mặt tiền để tạo ra nguồn thu nhập ổn định. Bài viết này của Interstellas sẽ đi sâu vào phân tích, hướng dẫn chi tiết cách thiết kế để tối đa hóa công năng và giá trị thẩm mỹ cho loại hình nhà ở đặc biệt này, đảm bảo một không gian sống hài hòa và kinh doanh hiệu quả.
Các Bước Chính Để Thiết Kế Nhà Phố 5×20 Tầng Lửng Kết Hợp Kinh Doanh
- Phân tích vị trí và loại hình kinh doanh: Xác định rõ đối tượng khách hàng, loại hình kinh doanh và đặc điểm khu vực để lên ý tưởng thiết kế mặt tiền và không gian trưng bày phù hợp.
- Tối ưu hóa công năng tầng trệt và tầng lửng: Bố trí linh hoạt khu vực kinh doanh chính, quầy tiếp tân, kho hàng và khu vực phụ trợ, đồng thời đảm bảo sự chuyển tiếp hài hòa với không gian sinh hoạt chung nếu tầng lửng được sử dụng cho gia đình.
- Đảm bảo sự riêng tư và an ninh: Sử dụng các giải pháp kiến trúc, nội thất và công nghệ để phân tách rõ ràng khu vực kinh doanh với không gian sống riêng tư, giảm thiểu tiếng ồn và tăng cường an ninh.
- Tận dụng ánh sáng tự nhiên và thông gió: Thiết kế giếng trời, cửa sổ lớn và vật liệu lấy sáng để mang lại sự thông thoáng, tiết kiệm năng lượng cho cả khu vực kinh doanh và sinh hoạt.
- Lựa chọn vật liệu và phong cách thiết kế: Đồng bộ phong cách giữa ngoại thất và nội thất, chọn vật liệu bền vững, dễ bảo trì và phản ánh đúng tinh thần thương hiệu kinh doanh cũng như sở thích cá nhân của gia chủ.
Nhà Phố 5×20 Có Tầng Lửng Kết Hợp Kinh Doanh: Giải Pháp Tối Ưu Cho Đô Thị

Có thể bạn quan tâm: Giải Mã Chi Phí Đóng La Phông Trần Nhà Bao Nhiêu Tiền?
Mô hình nhà phố có tầng lửng kết hợp kinh doanh không chỉ là một xu hướng kiến trúc mà còn là sự phản ánh nhu cầu thực tế của cuộc sống hiện đại. Đặc biệt với kích thước 5x20m, đây là một diện tích phổ biến trong quy hoạch đô thị, đủ rộng để sáng tạo nên những không gian đa năng, vừa phục vụ mục đích an cư, vừa mở ra cơ hội kinh doanh tại chính ngôi nhà của mình. Việc tích hợp tầng lửng đóng vai trò như một cầu nối linh hoạt, gia tăng diện tích sử dụng mà không làm ảnh hưởng đến chiều cao tổng thể hay phá vỡ cảnh quan đô thị.
Kiến trúc nhà phố 5×20 có tầng lửng kết hợp kinh doanh mang đến một lợi thế kép: tối ưu hóa diện tích sử dụng trên một khu đất giới hạn và tạo ra một nguồn thu nhập ổn định từ mặt bằng kinh doanh. Điều này đặc biệt phù hợp với những gia đình mong muốn sự tiện lợi, tiết kiệm thời gian di chuyển giữa nơi làm việc và nơi ở. Bên cạnh đó, việc có mặt tiền rộng 5m giúp không gian kinh doanh có đủ sự bề thế để thu hút khách hàng, đồng thời vẫn đảm bảo mặt thoáng cho các tầng trên.
Phân Tích Ưu và Nhược Điểm của Nhà Phố 5×20 Có Tầng Lửng Kết Hợp Kinh Doanh
Mỗi loại hình kiến trúc đều đi kèm với những lợi thế và thách thức riêng, và nhà phố có tầng lửng kết hợp kinh doanh cũng không ngoại lệ. Việc hiểu rõ các khía cạnh này sẽ giúp gia chủ có cái nhìn toàn diện hơn, từ đó đưa ra quyết định thiết kế và xây dựng phù hợp với nhu cầu và mong muốn của mình. Đây là bước quan trọng để đảm bảo sự hài lòng lâu dài với không gian sống và kinh doanh.
<>Xem Thêm Bài Viết:<>- Giá 1 Bộ Bàn Ghế Gỗ: Yếu Tố Nào Định Hình và Lựa Chọn Phù Hợp?
- 92 là biển ở đâu? Khám phá biển số xe Quảng Nam chi tiết
- Tuyển chọn 200+ hình nền điện thoại đẹp full HD
- Labubu Chính Hãng Mua Ở Đâu? Hướng Dẫn Chi Tiết Từ A-Z
- Làm sao để bố trí phòng ngủ nhỏ 9m2 vừa đẹp, vừa tiện nghi?
Ưu điểm vượt trội về công năng và kinh tế
Ưu điểm nổi bật nhất của loại hình nhà này là khả năng tối ưu hóa không gian. Với mặt tiền 5m và chiều sâu 20m, diện tích này đủ rộng để bố trí một khu vực kinh doanh rộng rãi ở tầng trệt và một phần tầng lửng. Điều này không chỉ giúp tăng cường hiệu quả sử dụng đất mà còn tạo ra một mặt bằng lý tưởng cho nhiều loại hình kinh doanh khác nhau như cửa hàng, văn phòng nhỏ, quán cà phê hoặc showroom. Việc tích hợp kinh doanh tại nhà giúp giảm chi phí thuê mặt bằng, tiết kiệm thời gian di chuyển, mang lại sự thuận tiện tối đa cho gia chủ.
Tầng lửng đóng vai trò quan trọng trong việc tăng diện tích sử dụng mà không cần xây thêm một tầng nguyên vẹn, giúp tiết kiệm chi phí xây dựng và rút ngắn thời gian thi công. Đồng thời, nó tạo ra một điểm nhấn kiến trúc độc đáo, mang lại cảm giác rộng rãi, thông thoáng cho không gian. Tầng lửng có thể được sử dụng linh hoạt làm khu vực tiếp khách của cửa hàng, văn phòng làm việc riêng tư, hoặc thậm chí là không gian sinh hoạt chung của gia đình như phòng khách, phòng ăn, giúp phân tách rõ ràng khu vực kinh doanh và sinh hoạt riêng tư.
Những thách thức cần cân nhắc khi thiết kế
Bên cạnh những ưu điểm, việc thiết kế nhà phố 5×20 có tầng lửng kết hợp kinh doanh cũng đặt ra một số thách thức nhất định. Thách thức lớn nhất là làm thế nào để phân chia không gian một cách rõ ràng giữa khu vực kinh doanh và khu vực sinh sống, đảm bảo sự riêng tư cho gia đình. Nếu không được xử lý khéo léo, tiếng ồn từ hoạt động kinh doanh, sự ra vào của khách hàng có thể ảnh hưởng đến cuộc sống riêng tư của gia chủ.
Việc thiết kế cần đặc biệt chú ý đến hệ thống cách âm giữa các khu vực, cũng như các giải pháp an ninh như camera giám sát, cửa khóa bảo mật. Ánh sáng và thông gió cũng là yếu tố quan trọng. Một mặt tiền quá lớn cho kinh doanh có thể làm giảm lượng ánh sáng tự nhiên và thông gió cho các phòng ở phía sau và các tầng trên. Do đó, việc kết hợp giếng trời, khe thông tầng hoặc sân trong là cần thiết để đảm bảo không gian sống luôn thoáng đãng và đủ sáng.
Các Yếu Tố Cốt Lõi Khi Thiết Kế Kiến Trúc và Nội Thất
Để tối đa hóa tiềm năng của nhà phố 5×20 có tầng lửng kết hợp kinh doanh, việc chú trọng vào các yếu tố cốt lõi trong thiết kế kiến trúc và nội thất là vô cùng quan trọng. Sự cân nhắc kỹ lưỡng từ mặt tiền đến bố trí công năng từng tầng, cũng như việc lựa chọn vật liệu và ánh sáng, sẽ quyết định tính thẩm mỹ, tiện nghi và hiệu quả kinh tế của công trình.
Tối ưu hóa mặt tiền và không gian kinh doanh
Mặt tiền là bộ mặt của ngôi nhà và cũng là điểm nhấn thu hút khách hàng đầu tiên. Với diện tích 5m, mặt tiền cần được thiết kế ấn tượng, phù hợp với loại hình kinh doanh và phong cách chung của ngôi nhà. Các vật liệu như kính cường lực, lam gỗ, gạch ốp, hoặc hệ thống đèn LED chiếu sáng ban đêm có thể được sử dụng để tạo điểm nhấn. Bảng hiệu và logo thương hiệu cũng cần được tích hợp một cách hài hòa, dễ nhìn.
Phong cách thiết kế mặt tiền: Hiện đại, tối giản, tân cổ điển

Có thể bạn quan tâm: Sơn Trần Thạch Cao Giá Bao Nhiêu? Phân Tích Chi Phí Toàn Diện

Có thể bạn quan tâm: Giá Vách Ngăn Hoa Văn: Yếu Tố Nào Ảnh Hưởng Đến Chi Phí?
- Hiện đại: Tập trung vào các đường nét thẳng, mảng khối rõ ràng, sử dụng vật liệu như kính, thép, bê tông trần. Phong cách này mang lại vẻ trẻ trung, năng động và chuyên nghiệp, phù hợp với nhiều loại hình kinh doanh.
- Tối giản (Minimalist): Giảm thiểu chi tiết, ưu tiên công năng, sử dụng màu sắc trung tính. Mặt tiền tối giản tạo cảm giác thanh lịch, tinh tế và không gian mở, dễ dàng tùy biến cho thương hiệu.
- Tân cổ điển: Kết hợp vẻ đẹp cổ điển với sự tiện nghi hiện đại. Sử dụng các chi tiết phào chỉ nhẹ nhàng, ban công sắt mỹ thuật, màu sắc trang nhã, tạo nên vẻ sang trọng, đẳng cấp.
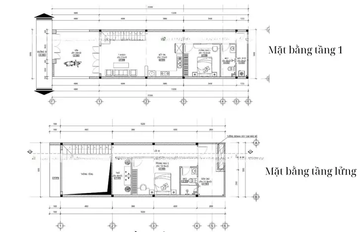
Bố trí khu vực kinh doanh tầng trệt và tầng lửng
Tầng trệt thường là khu vực trưng bày sản phẩm chính, quầy giao dịch hoặc không gian dịch vụ tiếp xúc trực tiếp với khách hàng. Cần đảm bảo lối đi rộng rãi, dễ tiếp cận và có tầm nhìn thông thoáng. Tầng lửng có thể được sử dụng làm khu vực trưng bày bổ sung, phòng VIP, khu vực chờ hoặc văn phòng quản lý. Việc kết nối giữa tầng trệt và tầng lửng bằng cầu thang mềm mại, hoặc giếng trời lớn sẽ tạo cảm giác liên thông, mở rộng không gian và thu hút ánh nhìn.





Thiết kế tầng lửng đa năng: Từ phòng khách đến không gian làm việc
Tầng lửng là điểm nhấn độc đáo, giúp gia tăng đáng kể diện tích sử dụng mà vẫn giữ được sự thông thoáng, không bị bí bách như một tầng nguyên vẹn. Tùy thuộc vào nhu cầu, tầng lửng có thể được biến hóa thành nhiều không gian khác nhau, đóng vai trò quan trọng trong việc cân bằng giữa mục đích kinh doanh và sinh hoạt.
Vai trò của tầng lửng trong không gian sống và kinh doanh



Nếu gia chủ muốn tầng lửng thuộc về không gian kinh doanh, nó có thể là khu vực tiếp khách VIP, phòng họp nhỏ, hay một kho chứa đồ gọn gàng. Ngược lại, nếu ưu tiên không gian sống, tầng lửng có thể trở thành phòng khách ấm cúng, khu vực đọc sách yên tĩnh, hoặc thậm chí là một phòng làm việc tại nhà, cách biệt với sự ồn ào của khu vực kinh doanh phía dưới. Việc thiết kế cầu thang lên tầng lửng cần đảm bảo an toàn, tiện lợi và hài hòa với tổng thể kiến trúc.
Chiều cao và kết cấu tầng lửng theo quy định và thẩm mỹ
Chiều cao tầng lửng cần tuân thủ các quy định xây dựng địa phương, thường dao động từ 2.2m đến 2.8m tính từ sàn tầng trệt lên đến trần tầng lửng. Chiều cao này đủ để tạo cảm giác thoải mái khi sử dụng mà không làm không gian trở nên chật chội. Về kết cấu, tầng lửng thường được xây dựng bằng hệ khung thép hoặc bê tông cốt thép, đảm bảo độ vững chắc và khả năng chịu lực. Lan can bằng kính cường lực hoặc sắt mỹ thuật sẽ giúp không gian tầng lửng thêm phần sang trọng và thông thoáng.
Bố trí công năng các tầng: Sống tiện nghi, kinh doanh hiệu quả
Việc phân chia công năng hợp lý cho từng tầng là chìa khóa để một nhà phố 5×20 có tầng lửng kết hợp kinh doanh hoạt động hiệu quả. Mục tiêu là tạo ra sự hài hòa giữa không gian sống riêng tư và khu vực kinh doanh năng động, đồng thời tối ưu hóa từng mét vuông đất.
Tầng trệt: Khu vực kinh doanh chính và phụ trợ
Tầng trệt là nơi hoạt động kinh doanh diễn ra sôi nổi nhất. Cần có đủ không gian cho việc trưng bày sản phẩm, quầy thu ngân, khu vực tiếp khách hoặc khu vực dịch vụ chính. Phía sau có thể bố trí kho nhỏ, toilet chung cho khách hàng và nhân viên. Đảm bảo lối vào rộng rãi, dễ dàng tiếp cận từ mặt đường là yếu tố tiên quyết.
Tầng lửng: Kết nối hoặc phân tách không gian
Như đã đề cập, tầng lửng có tính linh hoạt cao. Nó có thể là phần mở rộng của không gian kinh doanh hoặc là ranh giới đầu tiên của không gian sống. Nếu là không gian sống, phòng khách hoặc bếp ăn gia đình có thể được đặt tại đây, tận dụng tầm nhìn thông thoáng xuống tầng trệt qua khoảng thông tầng. Việc này tạo cảm giác kết nối nhưng vẫn có sự riêng tư nhất định.
Các tầng trên: Không gian sống riêng tư (phòng ngủ, bếp, sinh hoạt chung)
Các tầng cao hơn thường dành hoàn toàn cho không gian sống của gia đình. Đây là nơi bố trí các phòng ngủ master, phòng ngủ phụ, phòng làm việc riêng, phòng thờ, phòng giặt phơi, và các khu vực sinh hoạt chung khác như phòng sinh hoạt gia đình, thư viện nhỏ. Việc tách biệt hoàn toàn không gian sống ở các tầng trên giúp đảm bảo sự yên tĩnh, riêng tư và an toàn tuyệt đối cho các thành viên trong gia đình. Cần chú ý thiết kế các ban công hoặc sân thượng nhỏ để tăng cường không gian xanh và lấy sáng.
Giải pháp ánh sáng và thông gió tự nhiên
Trong một ngôi nhà phố có chiều sâu 20m, việc đưa ánh sáng tự nhiên và luồng khí tươi vào sâu bên trong là thách thức lớn. Thiết kế giếng trời ở giữa nhà hoặc cuối nhà là giải pháp hiệu quả để giải quyết vấn đề này. Giếng trời không chỉ cung cấp ánh sáng và thông gió cho các phòng ở giữa mà còn tạo điểm nhấn kiến trúc độc đáo, kết nối các không gian theo chiều dọc. Các ô cửa sổ lớn, cửa đi ra ban công ở các tầng trên cũng cần được tận dụng tối đa.
Sử dụng vật liệu kính cường lực cho cửa đi, cửa sổ, lan can không chỉ giúp lấy sáng tối đa mà còn tạo cảm giác không gian rộng mở, hiện đại. Hệ thống thông gió cơ học cũng có thể được xem xét bổ sung ở những khu vực khó tiếp cận ánh sáng tự nhiên hoặc cần kiểm soát nhiệt độ, độ ẩm tốt như bếp, nhà vệ sinh hoặc khu vực kho.
Vật liệu và màu sắc trong thiết kế nội thất
Lựa chọn vật liệu và màu sắc phù hợp sẽ góp phần định hình phong cách, tạo cảm giác thoải mái và nâng cao giá trị thẩm mỹ của nhà phố 5×20 có tầng lửng kết hợp kinh doanh. Các vật liệu hiện đại như gỗ công nghiệp, đá nhân tạo, kính, kim loại kết hợp với gạch ốp, bê tông trần đang rất được ưa chuộng.
- Vật liệu: Ưu tiên vật liệu bền, dễ vệ sinh và bảo trì, đặc biệt là ở khu vực kinh doanh. Gạch men, sàn gỗ công nghiệp, đá tự nhiên hoặc nhân tạo là những lựa chọn phổ biến cho sàn. Tường có thể sử dụng sơn, giấy dán tường hoặc tấm ốp trang trí.
- Màu sắc: Sử dụng bảng màu trung tính như trắng, be, xám làm chủ đạo để tạo cảm giác rộng rãi, sạch sẽ và dễ dàng phối hợp với đồ nội thất. Các màu sắc nổi bật có thể được dùng làm điểm nhấn thông qua đồ trang trí, nội thất hoặc một mảng tường đặc biệt để tạo cá tính riêng cho không gian kinh doanh hoặc phòng khách.
Các Phong Cách Thiết Kế Phù Hợp Cho Nhà Phố 5×20 Tầng Lửng
Việc lựa chọn phong cách thiết kế phù hợp không chỉ định hình vẻ đẹp tổng thể mà còn tối ưu hóa công năng và thể hiện cá tính của gia chủ, cũng như định vị thương hiệu kinh doanh. Với nhà phố 5×20 có tầng lửng kết hợp kinh doanh, một số phong cách nổi bật thường được ứng dụng nhờ khả năng linh hoạt và tính thẩm mỹ cao.
Phong cách Hiện đại
Phong cách hiện đại là lựa chọn hàng đầu cho nhà phố vì sự tiện nghi, thông thoáng và vẻ đẹp không lỗi thời. Đặc trưng bởi các đường nét thẳng, mảng khối rõ ràng, không gian mở và việc sử dụng vật liệu công nghiệp như kính, kim loại, bê tông. Màu sắc chủ đạo thường là các gam trung tính như trắng, xám, đen, kết hợp với các điểm nhấn màu sắc táo bạo. Phong cách này phù hợp với nhiều loại hình kinh doanh, từ cửa hàng thời trang, quán cà phê đến văn phòng startup, mang lại vẻ chuyên nghiệp và tinh tế. Nội thất được thiết kế đơn giản, gọn gàng, đa năng, giúp tối đa hóa diện tích sử dụng.
Phong cách Tối giản (Minimalist)
Tối giản là xu hướng được yêu thích nhờ vẻ đẹp thanh lịch, tinh tế và sự tập trung vào công năng. “Less is more” (ít là nhiều hơn) là triết lý cốt lõi. Trong nhà phố 5×20, phong cách này giúp không gian trở nên rộng rãi, thông thoáng hơn, tránh cảm giác chật chội. Màu sắc thường là trắng, be, ghi, với rất ít đồ đạc, mỗi vật dụng đều có mục đích rõ ràng. Đối với khu vực kinh doanh, sự tối giản giúp làm nổi bật sản phẩm hoặc dịch vụ, tạo ấn tượng về sự chuyên nghiệp và gọn gàng. Đối với không gian sống, nó mang lại sự yên bình, thư thái.
Phong cách Công nghiệp (Industrial)
Lấy cảm hứng từ các nhà máy và xưởng cũ, phong cách Industrial mang đến vẻ đẹp thô mộc, mạnh mẽ và cá tính. Đặc trưng bởi việc để lộ các vật liệu kết cấu như gạch thô, bê tông trần, ống dẫn điện, dầm thép. Màu sắc thường là gam tối như xám, đen, nâu, kết hợp với ánh sáng vàng ấm. Phong cách này rất phù hợp với các quán cà phê, bar, cửa hàng thời trang nam, hoặc không gian làm việc sáng tạo. Nó tạo ra một không gian độc đáo, năng động và đầy sức sống.
Phong cách Bắc Âu (Scandinavian)
Phong cách Scandinavian nổi bật với sự ấm cúng, gần gũi với thiên nhiên, nhưng vẫn giữ được nét hiện đại và tinh tế. Đặc trưng bởi việc sử dụng gỗ sáng màu, tông màu trắng và be, kết hợp với các vật liệu tự nhiên như da, len, đá. Ánh sáng tự nhiên được ưu tiên tối đa. Phong cách này mang lại cảm giác thoải mái, thư giãn, rất phù hợp cho các quán sách, cửa hàng thủ công mỹ nghệ, hoặc không gian sống của gia đình trẻ. Nó tạo ra một không gian tươi sáng, thoáng đãng và tràn đầy năng lượng tích cực.
Những Lưu Ý Quan Trọng Khi Triển Khai Xây Dựng và Thiết Kế
Để biến ý tưởng về nhà phố 5×20 có tầng lửng kết hợp kinh doanh thành hiện thực một cách suôn sẻ và đạt hiệu quả cao nhất, gia chủ cần lưu ý đến nhiều yếu tố quan trọng từ pháp lý đến kỹ thuật thi công. Sự chuẩn bị kỹ lưỡng sẽ giúp tránh được những rủi ro không đáng có và đảm bảo chất lượng công trình.
Đảm bảo pháp lý và quy định xây dựng
Trước khi bắt tay vào thiết kế và thi công, việc tìm hiểu kỹ các quy định pháp lý về xây dựng là điều tối quan trọng. Mỗi địa phương có thể có những quy định riêng về chiều cao tầng, diện tích xây dựng, mật độ xây dựng, khoảng lùi so với chỉ giới đường đỏ, và đặc biệt là quy định về tầng lửng. Việc đảm bảo công trình tuân thủ đúng pháp luật sẽ tránh được các rắc rối về giấy phép xây dựng, phạt hành chính và các tranh chấp về sau. Hãy tham khảo ý kiến của kiến trúc sư hoặc chuyên gia pháp lý để có thông tin chính xác nhất.
Giải pháp cách âm và an ninh cho khu vực kinh doanh
Sự hài hòa giữa kinh doanh và sinh hoạt đòi hỏi phải có giải pháp cách âm hiệu quả. Sử dụng vật liệu cách âm cho tường, trần, cửa sổ giữa khu vực kinh doanh và khu vực sống sẽ giảm thiểu tiếng ồn. Cửa kính cường lực hai lớp hoặc cửa gỗ đặc là những lựa chọn tốt. Về an ninh, cần lắp đặt hệ thống camera giám sát cho cả khu vực kinh doanh và các lối ra vào của gia đình. Cửa cuốn, cửa kính cường lực có khóa an toàn và hệ thống báo động sẽ giúp bảo vệ tài sản và sự riêng tư của gia chủ.
Lựa chọn đơn vị thiết kế và thi công uy tín
Đây là yếu tố quyết định chất lượng và sự thành công của dự án. Một đơn vị thiết kế và thi công chuyên nghiệp, có kinh nghiệm trong việc xây dựng nhà phố 5×20 có tầng lửng kết hợp kinh doanh, sẽ giúp gia chủ hiện thực hóa ý tưởng một cách tốt nhất. Họ sẽ tư vấn về mặt pháp lý, đưa ra các giải pháp thiết kế tối ưu, kiểm soát chất lượng vật liệu và giám sát thi công chặt chẽ. Việc tìm hiểu kỹ thông tin, xem các dự án đã thực hiện và tham khảo ý kiến từ khách hàng cũ là cần thiết trước khi đưa ra quyết định.
Dự trù kinh phí và quản lý chi phí hiệu quả
Việc lập dự toán chi phí chi tiết từ giai đoạn ban đầu là rất quan trọng. Dự toán cần bao gồm chi phí thiết kế, chi phí vật tư thô, chi phí vật tư hoàn thiện, chi phí nhân công, và các chi phí phát sinh dự phòng. Quản lý chi phí hiệu quả đòi hỏi sự minh bạch trong hợp đồng, theo dõi sát sao tiến độ thi công và các hạng mục phát sinh. Việc lựa chọn vật liệu thông minh, không nhất thiết phải đắt tiền nhưng phải đảm bảo chất lượng và phù hợp với ngân sách, cũng là một cách để tối ưu chi phí.
Ví Dụ Thực Tế & Ý Tưởng Thiết Kế
Để hình dung rõ hơn về tiềm năng của nhà phố 5×20 có tầng lửng kết hợp kinh doanh, chúng ta có thể tham khảo một số mô hình thiết kế phổ biến, mỗi mô hình đều có cách bố trí công năng riêng biệt, phù hợp với các nhu cầu khác nhau của gia chủ.
Mô hình nhà 2 tầng + lửng
Trong mô hình này, tầng trệt được dành trọn vẹn cho khu vực kinh doanh với mặt tiền mở, thoáng đãng. Tầng lửng có thể được sử dụng làm văn phòng nhỏ, khu vực tiếp khách của cửa hàng, hoặc chuyển tiếp lên không gian sống riêng tư. Ở tầng 2, toàn bộ không gian sẽ là nơi sinh hoạt của gia đình, bao gồm phòng khách, bếp, phòng ăn và 1-2 phòng ngủ. Cách bố trí này giúp tối đa hóa diện tích kinh doanh và giữ sự riêng tư cho không gian sống ở tầng trên. Đặc biệt phù hợp với các loại hình kinh doanh cần diện tích trưng bày lớn hoặc dịch vụ khách hàng liên tục.
Mô hình nhà 3-4 tầng + lửng
Với những gia chủ có nhu cầu kinh doanh đa dạng hoặc gia đình đông thành viên, mô hình 3-4 tầng kết hợp tầng lửng sẽ là lựa chọn lý tưởng. Tầng trệt và tầng lửng có thể được tối ưu cho các loại hình kinh doanh khác nhau như cửa hàng, spa, hoặc văn phòng. Các tầng trên sẽ là không gian sống rộng rãi hơn, có thể bố trí nhiều phòng ngủ, phòng làm việc riêng, phòng thờ, và các khu vực giải trí khác. Sự linh hoạt trong việc phân chia công năng ở các tầng cao giúp đáp ứng mọi nhu cầu từ kinh doanh đến sinh hoạt, tạo nên một không gian sống và làm việc đa năng, hiện đại.
Câu Hỏi Thường Gặp (FAQs)
Gia chủ thường có nhiều băn khoăn khi lên kế hoạch xây dựng nhà phố 5×20 có tầng lửng kết hợp kinh doanh. Dưới đây là một số câu hỏi thường gặp và giải đáp chi tiết.
Tầng lửng nên cao bao nhiêu?
Chiều cao của tầng lửng thường dao động từ 2.2m đến 2.8m tính từ sàn tầng trệt. Tuy nhiên, chiều cao cụ thể còn phụ thuộc vào tổng chiều cao của ngôi nhà và quy định xây dựng tại địa phương. Một tầng lửng có chiều cao phù hợp sẽ đảm bảo sự thông thoáng cho cả tầng trệt và không gây cảm giác bí bách khi sử dụng không gian tầng lửng. Kiến trúc sư sẽ tư vấn kích thước tối ưu dựa trên thiết kế tổng thể và các tiêu chuẩn kỹ thuật.
Làm sao để đảm bảo riêng tư cho không gian sống?
Để đảm bảo sự riêng tư, có một số giải pháp hiệu quả. Thứ nhất, phân tách không gian rõ ràng bằng cách đặt khu vực sống từ tầng lửng trở lên và khu vực kinh doanh ở tầng trệt. Thứ hai, sử dụng vật liệu cách âm cho tường, cửa giữa các khu vực. Thứ ba, thiết kế lối đi riêng cho khu vực sống nếu có thể, hoặc ít nhất là một sảnh đệm. Cuối cùng, việc bố trí nội thất thông minh, sử dụng rèm, vách ngăn di động cũng góp phần tạo ra các khu vực riêng tư cần thiết.
Chi phí xây dựng nhà phố 5×20 có tầng lửng là bao nhiêu?
Chi phí xây dựng nhà phố 5×20 có tầng lửng kết hợp kinh doanh phụ thuộc vào nhiều yếu tố như vị trí, phong cách kiến trúc, vật liệu sử dụng, chất lượng hoàn thiện, và kinh nghiệm của đơn vị thi công. Thông thường, chi phí sẽ được tính dựa trên mét vuông xây dựng, dao động tùy theo gói thầu (thô, hoàn thiện cơ bản, hoàn thiện trọn gói). Để có dự toán chính xác nhất, gia chủ nên làm việc trực tiếp với các kiến trúc sư và nhà thầu uy tín để nhận báo giá chi tiết dựa trên bản vẽ thiết kế cụ thể.
Với những kiến thức chuyên sâu và sự tư vấn tận tình từ các kiến trúc sư giàu kinh nghiệm, việc sở hữu một căn nhà phố 5×20 có tầng lửng kết hợp kinh doanh không còn là điều xa vời. Đây là giải pháp hoàn hảo để tạo dựng một không gian sống đa năng, hiện đại và khai thác tối đa tiềm năng kinh tế tại chính ngôi nhà của mình. Đừng ngần ngại khám phá và biến những ý tưởng sáng tạo thành hiện thực.
















