Thị trường bất động sản Hà Nội luôn sôi động với nhiều dự án nổi bật, trong đó, chung cư Intracom Trung Văn là một cái tên thu hút sự quan tâm đặc biệt. Nằm tại vị trí chiến lược, dự án không chỉ mang đến không gian sống hiện đại mà còn tiềm ẩn giá trị đầu tư bền vững, trở thành lựa chọn lý tưởng cho nhiều gia đình đang tìm kiếm tổ ấm tại thủ đô.
Tổng Quan Dự Án Intracom Trung Văn: Vị Thế Đắc Địa
Dự án Intracom 1 Trung Văn tọa lạc tại phường Trung Văn, quận Nam Từ Liêm, Hà Nội, do Công ty Cổ phần Đầu tư Xây dựng Hạ tầng và Giao thông (Intracom) làm chủ đầu tư. Với tổng vốn đầu tư lên đến 523 tỷ đồng và tổng diện tích khu đất 23.800 m2, dự án thể hiện quy mô và tầm vóc đáng kể trong phân khúc chung cư tại khu vực. Công trình được khởi công vào năm 2010 và hoàn thành vào năm 2014, hiện đang là sản phẩm thứ cấp trên thị trường.
Quy mô dự án bao gồm 350 căn hộ chung cư trong một tòa tháp cao tầng và 100 căn liền kề, biệt thự, tạo nên một quần thể đa dạng loại hình nhà ở. Mật độ xây dựng của chung cư Intracom Trung Văn chỉ khoảng 38%, đảm bảo không gian sống thông thoáng và hài hòa với thiên nhiên. Các căn hộ tại đây sở hữu hình thức sổ hồng vĩnh viễn, mang lại sự an tâm tuyệt đối cho cư dân và nhà đầu tư.
Lý Do Nổi Bật Lựa Chọn Căn Hộ Intracom Trung Văn
Việc lựa chọn một nơi an cư không chỉ dừng lại ở vị trí mà còn cần xét đến nhiều yếu tố khác. Chung cư Intracom Trung Văn đã và đang khẳng định giá trị của mình thông qua hàng loạt ưu điểm vượt trội, tạo nên sức hút khó cưỡng đối với khách hàng và nhà đầu tư tại khu vực phía Tây Hà Nội.
Vị Trí Giao Thông Thuận Tiện
Một trong những ưu điểm hàng đầu của dự án Intracom Trung Văn chính là vị trí địa lý đắc địa. Dự án nằm gần các tuyến đường huyết mạch như Tố Hữu và Lương Thế Vinh, tạo điều kiện thuận lợi cho việc di chuyển đến các khu vực trung tâm và các tỉnh lân cận. Khả năng kết nối giao thông linh hoạt này không chỉ tiết kiệm thời gian mà còn mở ra nhiều cơ hội phát triển kinh tế cho cư dân sống tại đây. Sự thông thương dễ dàng góp phần nâng cao giá trị bất động sản theo thời gian.
Hệ Thống Tiện Ích Đa Dạng
Cư dân tại Intracom Trung Văn được thừa hưởng một hệ thống tiện ích được trang bị đầy đủ và vô cùng hiện đại, đáp ứng mọi nhu cầu từ cơ bản đến nâng cao. Từ các tiện ích nội khu như hồ bơi thư giãn, khu vui chơi trẻ em, phòng gym, spa cho đến các dịch vụ thiết yếu, tất cả đều được tích hợp để mang lại trải nghiệm sống tiện nghi nhất. Sự đa dạng này đảm bảo mỗi thành viên trong gia đình đều có không gian riêng để giải trí, học tập và rèn luyện sức khỏe.
<>Xem Thêm Bài Viết:<>- Khám phá từ Sài Gòn đi Măng Đen bao nhiêu km và hành trình đáng nhớ
- Nổi mẩn đỏ ở đầu dương vật: Nguyên nhân, triệu chứng và cách xử lý
- Giải đáp: Biển số xe 19 ở đâu và những thông tin cần biết
- Nội Thất Phố Xinh TP HCM: Đánh Giá Chi Tiết Và Lời Khuyên Chọn Mua
- Tìm Hiểu Địa Chỉ Nâng Mũi Đẹp Nhất Sài Gòn
An Ninh Đảm Bảo và Chủ Đầu Tư Uy Tín
An ninh là yếu tố then chốt khi lựa chọn một khu dân cư. Tại chung cư Intracom Trung Văn, hệ thống an ninh được đảm bảo 24/24 với đội ngũ bảo vệ chuyên nghiệp và hệ thống camera giám sát hiện đại, mang lại sự yên tâm tuyệt đối cho cư dân. Bên cạnh đó, chủ đầu tư Công ty Cổ phần Đầu tư Xây dựng Hạ tầng và Giao thông là một cái tên uy tín trên thị trường, đã triển khai nhiều dự án thành công, khẳng định chất lượng và cam kết về tiến độ, pháp lý của dự án. Điều này củng cố niềm tin của khách hàng vào một môi trường sống bền vững.
Vị trí đắc địa của chung cư Intracom Trung Văn trên bản đồ Hà Nội
Vị Trí Chiến Lược Của Chung Cư Intracom Trung Văn Tại Nam Từ Liêm
Vị trí là yếu tố quyết định giá trị của một dự án bất động sản và Intracom Trung Văn sở hữu một trong những vị trí đắc địa nhất tại quận Nam Từ Liêm, Hà Nội. Nằm trên đường Trung Văn, phường Trung Văn, dự án này được đánh giá cao nhờ tọa lạc tại khu vực trung tâm đang phát triển mạnh mẽ và thuộc khu đô thị mở rộng. Sự kết nối thuận tiện với các tuyến đường chính như Tố Hữu và Lương Thế Vinh là một điểm cộng lớn.
Từ vị trí này, cư dân dễ dàng tiếp cận với các tiện ích hiện hữu của quận mà không mất nhiều thời gian di chuyển. Sự thuận lợi trong giao thông không chỉ giúp cuộc sống hàng ngày trở nên dễ dàng hơn mà còn làm tăng giá trị của dự án căn hộ Intracom Trung Văn trong tương lai. Nơi đây hứa hẹn sẽ là một trung tâm kết nối quan trọng, mang lại lợi nhuận cao cho các nhà đầu tư và môi trường sống lý tưởng cho mọi gia đình.
Bản đồ quy hoạch khu vực dự án chung cư Intracom Trung Văn
Tiện Ích Nội Khu Đẳng Cấp Tại Dự Án Intracom Trung Văn
Dự án Intracom Trung Văn được chủ đầu tư chú trọng trang bị một hệ thống tiện ích nội khu phong phú và hiện đại, nhằm đáp ứng tối đa nhu cầu sinh hoạt, giải trí và thư giãn của cư dân. Mỗi tiện ích đều được thiết kế để mang lại trải nghiệm sống trọn vẹn và đẳng cấp.
Cư dân có thể tận hưởng những giây phút sảng khoái tại hồ bơi, giải tỏa căng thẳng sau những ngày làm việc dài. Khu vui chơi trẻ em được quy hoạch an toàn và sáng tạo, tạo điều kiện cho các bé phát triển toàn diện cả về thể chất lẫn tinh thần. Bên cạnh đó, khu spa và phòng gym hiện đại là nơi lý tưởng để rèn luyện sức khỏe và chăm sóc sắc đẹp. Hệ thống internet tốc độ cao, phòng cháy chữa cháy được trang bị kỹ lưỡng, cùng với quán cà phê yên tĩnh và hệ thống cây xanh rộng khắp, tạo nên một không gian sống hài hòa, trong lành và thư thái. Tất cả những tiện ích này cùng nhau kiến tạo nên một cuộc sống hoàn hảo và tiện nghi tại khu đô thị Intracom Trung Văn.
Hồ bơi tại khu tiện ích nội khu chung cư Intracom Trung Văn
Khu vui chơi trẻ em hiện đại tại chung cư Intracom Trung Văn
Liên Kết Vùng Hoàn Hảo Cùng Tiện Ích Ngoại Khu Của Intracom Trung Văn
Ngoài hệ thống tiện ích nội khu đa dạng, chung cư Intracom Trung Văn còn nổi bật với khả năng liên kết vùng mạnh mẽ, cho phép cư dân dễ dàng tiếp cận hàng loạt tiện ích ngoại khu quan trọng. Vị trí đắc địa này mang lại lợi thế lớn trong việc di chuyển và hưởng thụ các dịch vụ công cộng, giáo dục, y tế và thương mại.
Cụ thể, dự án cách Bến xe Mỹ Đình chỉ khoảng 3.5 km, thuận lợi cho việc đi lại liên tỉnh. Trung tâm Hội nghị Quốc gia với khoảng cách 1.8 km là điểm đến cho các sự kiện lớn. Sân bay Nội Bài cách khoảng 23 km, phục vụ nhu cầu đi lại bằng đường hàng không. Khu đô thị Trung Văn sầm uất nằm ngay liền kề, mang đến nhiều lựa chọn về dịch vụ và giải trí. Về giáo dục, Đại học Khoa học Xã hội và Nhân văn chỉ cách 2.5 km, và trường Quốc tế Olympic School cách 2 phút đi bộ. Các trung tâm thương mại lớn như Big C Thăng Long cách 1200m và Bệnh viện 103 cách 3km, đảm bảo mọi nhu cầu mua sắm và chăm sóc sức khỏe của cư dân. Những tiện ích này tạo nên một môi trường sống năng động và đầy đủ, nâng cao chất lượng cuộc sống cho cư dân Intracom Trung Văn.
Mặt Bằng Tổng Thể và Thiết Kế Căn Hộ Intracom Trung Văn
Công ty Cổ phần Đầu tư Xây dựng Hạ tầng và Giao thông đã quy hoạch dự án Intracom Trung Văn với sự tính toán kỹ lưỡng, đảm bảo cả chất lượng xây dựng lẫn giá trị thẩm mỹ cho toàn bộ quần thể. Với tổng diện tích 23.800 m2 và mật độ xây dựng chỉ 38%, dự án tạo ra không gian sống thoáng đãng, nhiều mảng xanh, mang lại cảm giác thư thái cho cư dân.
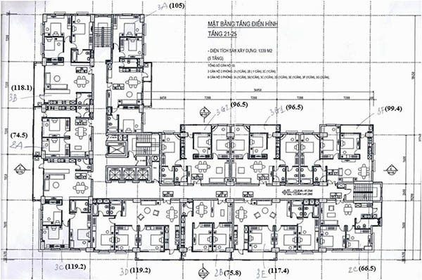
Các căn hộ Intracom Trung Văn được thiết kế thông minh với diện tích đa dạng, chủ yếu từ 66m2 đến 120m2, phân bố trong tòa tháp cao 29 tầng. Tổng cộng 350 căn hộ được bố trí khoa học, từ căn 2 phòng ngủ 1 vệ sinh đến 3 phòng ngủ 2 vệ sinh. Thiết kế kiến trúc hình chữ L không chỉ tối ưu hóa ánh sáng tự nhiên và luồng gió mát mà còn mang đến tầm nhìn rộng mở, bao quát khung cảnh thành phố. Mỗi căn hộ đều có ban công rộng rãi, là nơi lý tưởng để thư giãn và tận hưởng không khí trong lành, góp phần tạo nên một môi trường sống hiện đại và tiện nghi.
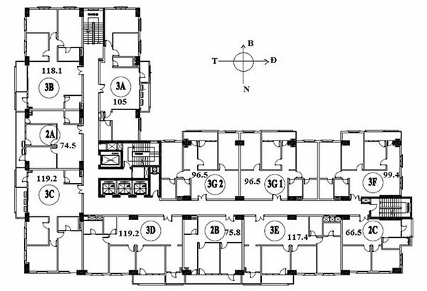
Mặt bằng tổng thể và quy hoạch dự án chung cư Intracom Trung Văn
Thiết kế căn hộ 2 phòng ngủ tại chung cư Intracom Trung Văn
Bố trí nội thất căn hộ mẫu tại chung cư Intracom Trung Văn
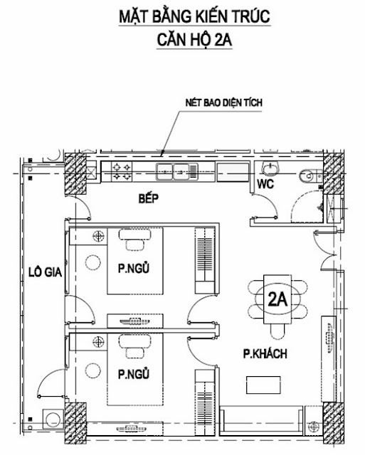
Chi tiết mặt bằng căn 2A chung cư Intracom Trung Văn
Chi tiết mặt bằng căn 2B chung cư Intracom Trung Văn
Chính Sách Bán Hàng và Bảng Giá Chung Cư Intracom Trung Văn
Dự án Intracom Trung Văn không chỉ thu hút khách hàng bởi vị trí và tiện ích mà còn ở chính sách bán hàng linh hoạt và mức giá cạnh tranh. Chủ đầu tư đã đưa ra một lộ trình thanh toán được chia thành 4 đợt, tạo điều kiện thuận lợi cho khách hàng trong việc quản lý tài chính. Cụ thể, đợt 1 thanh toán 50% khi ký Hợp đồng Mua Bán, đợt 2 là 20% khi xây thô đến tầng 10, đợt 3 tiếp tục 20% khi xây thô đến tầng 20, và 10% còn lại sẽ thanh toán khi nhận bàn giao căn hộ.
Về mức giá, căn hộ chung cư Intracom Trung Văn được chào bán với mức từ 18.5 đến 24 triệu đồng/m2. Mức giá này đã bao gồm thuế giá trị gia tăng (VAT), nội thất cơ bản và 2% phí bảo trì, mang lại sự minh bạch và tổng thể chi phí cho người mua. Đây được xem là một mức giá hấp dẫn trong bối cảnh thị trường bất động sản khu vực Nam Từ Liêm, đặc biệt khi xét đến vị trí đắc địa và các tiện ích nội/ngoại khu phong phú của dự án. Với chính sách và giá bán này, Intracom Trung Văn không chỉ là một lựa chọn an cư mà còn là một cơ hội đầu tư tiềm năng.
FAQs – Câu Hỏi Thường Gặp Về Chung Cư Intracom Trung Văn
Chung cư Intracom Trung Văn là dự án gì?
Chung cư Intracom Trung Văn là dự án tổ hợp căn hộ chung cư, liền kề và biệt thự do Công ty CP Đầu tư Xây dựng Hạ tầng và Giao thông (Intracom) làm chủ đầu tư, tọa lạc tại phường Trung Văn, quận Nam Từ Liêm, Hà Nội. Dự án được hoàn thành vào năm 2014.
Vị trí chính xác của Intracom Trung Văn ở đâu?
Dự án nằm trên đường Trung Văn, phường Trung Văn, quận Nam Từ Liêm, Thành phố Hà Nội. Đây là khu vực có khả năng kết nối giao thông thuận tiện đến các tuyến đường lớn và tiện ích xung quanh.
Ai là chủ đầu tư của dự án Intracom Trung Văn?
Chủ đầu tư của chung cư Intracom Trung Văn là Công ty Cổ phần Đầu tư Xây dựng Hạ tầng và Giao thông (Intracom), một đơn vị uy tín với nhiều năm kinh nghiệm trong lĩnh vực bất động sản.
Các loại hình căn hộ và diện tích tại Intracom Trung Văn như thế nào?
Dự án cung cấp 350 căn hộ chung cư với diện tích đa dạng, chủ yếu từ 66m2 đến 120m2, được thiết kế với 2 hoặc 3 phòng ngủ, phù hợp với nhiều nhu cầu an cư khác nhau. Ngoài ra còn có 100 căn liền kề và biệt thự.
Mức giá bán của căn hộ Intracom Trung Văn là bao nhiêu?
Giá bán các căn hộ Intracom Trung Văn dao động từ 18.5 – 24 triệu đồng/m2. Mức giá này đã bao gồm VAT, nội thất cơ bản và 2% phí bảo trì, mang lại sự rõ ràng về chi phí cho người mua.
Chung cư Intracom Trung Văn không chỉ là một dự án bất động sản đơn thuần mà còn là biểu tượng cho cuộc sống hiện đại và tiện nghi tại trung tâm Nam Từ Liêm. Với vị trí đắc địa, tiện ích đa dạng và chính sách bán hàng hấp dẫn, đây thực sự là một lựa chọn đáng cân nhắc cho những ai đang tìm kiếm một nơi an cư lý tưởng hoặc cơ hội đầu tư sinh lời. Inter Stella tin rằng những thông tin chi tiết này sẽ giúp bạn có cái nhìn toàn diện hơn về dự án tiềm năng này.















