Trong bối cảnh đô thị hóa ngày càng phát triển, nhu cầu về một không gian sống tiện nghi, đẹp mắt mà vẫn tối ưu chi phí luôn là ưu tiên hàng đầu của nhiều gia đình Việt. Bản vẽ nhà cấp 4 8x10m nổi lên như một giải pháp lý tưởng, đáp ứng hài hòa giữa diện tích vừa phải, công năng linh hoạt và tính thẩm mỹ cao. Với kích thước 8x10m, loại hình nhà ở này không chỉ dễ dàng triển khai ở cả khu vực thành thị lẫn nông thôn mà còn mang đến vô vàn tiềm năng để kiến tạo một tổ ấm đầy đủ tiện nghi, phản ánh phong cách sống của gia chủ. Bài viết này của chúng tôi sẽ đi sâu vào phân tích các khía cạnh quan trọng, từ ý tưởng thiết kế, lựa chọn vật liệu cho đến những lưu ý khi thi công, giúp bạn có cái nhìn toàn diện nhất về cách biến một bản vẽ thành hiện thực.
Bản Vẽ Nhà Cấp 4 8x10m: Tổng Quan Các Yếu Tố Chính

Có thể bạn quan tâm: Bảng Màu Sơn Nhà Đẹp Nhất: Hướng Dẫn Chọn Và Phối Sắc Chuẩn Chuyên Gia
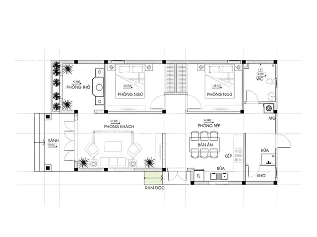
Bản vẽ nhà cấp 4 8x10m thể hiện sự linh hoạt đáng kinh ngạc trong thiết kế, cho phép kiến trúc sư và gia chủ thỏa sức sáng tạo để tối ưu hóa từng mét vuông không gian. Với tổng diện tích sàn 80m2 (chưa tính các phần mở rộng như sân vườn hay mái hiên), loại hình nhà này thường được thiết kế với 2 đến 3 phòng ngủ, một phòng khách liên thông bếp và khu vực ăn uống, cùng các tiện ích vệ sinh. Điểm mấu chốt là cách bố trí công năng hợp lý để tạo cảm giác rộng rãi, thoáng đãng, đồng thời đảm bảo sự riêng tư và tiện lợi trong sinh hoạt. Từ việc lựa chọn phong cách kiến trúc hiện đại, tối giản cho đến việc tích hợp các giải pháp xanh, bản vẽ kích thước 8x10m đều có thể hiện thực hóa, mang đến một tổ ấm không chỉ đẹp về hình thức mà còn tối ưu về công năng sử dụng.
Tại sao bản vẽ nhà cấp 4 8x10m lại được ưa chuộng?

Có thể bạn quan tâm: Chiều Cao Kệ Tivi Phòng Ngủ Chuẩn: Hướng Dẫn Chọn Cho Mọi Không Gian
<>Xem Thêm Bài Viết:<>
- Bàn Ăn Cao Cấp Hiện Đại: Nâng Tầm Không Gian Sống Với Phong Cách Tinh Tế
- Đánh Giá Toàn Diện Cơ Hội **Bán Chung Cư CT1 Yên Nghĩa** Hiện Nay
- Kích thước bàn thờ treo tường theo thước Lỗ Ban: Hướng dẫn chi tiết
- Cơ hoành nằm ở đâu: Khám phá vị trí và vai trò hô hấp thiết yếu
- Gan Nằm Ở Đâu Trên Cơ Thể? Vị Trí và Tầm Quan Trọng
Diện tích 8x10m mang đến nhiều ưu điểm khiến các bản vẽ nhà cấp 4 8x10m trở thành lựa chọn phổ biến cho nhiều gia đình, đặc biệt là các cặp vợ chồng trẻ hoặc gia đình có 1-2 con. Kích thước này đủ lớn để bố trí các không gian chức năng cần thiết mà không gây cảm giác chật chội, đồng thời không quá rộng để dẫn đến chi phí xây dựng và bảo trì quá cao.
Một trong những lý do hàng đầu là sự linh hoạt trong thiết kế. Với mặt tiền 8m, ngôi nhà có thể dễ dàng tiếp cận ánh sáng tự nhiên và thông gió tốt từ phía trước. Chiều sâu 10m đủ để bố trí các phòng chức năng theo chiều dài, tạo sự liền mạch hoặc phân chia rõ ràng tùy theo nhu cầu. Theo các chuyên gia từ tạp chí Kiến trúc & Đời sống, “nhà cấp 4 với diện tích 80m2 là một trong những loại hình lý tưởng để khai thác tối đa công năng và vẻ đẹp thẩm mỹ, đặc biệt phù hợp với lối sống hiện đại, ưu tiên sự đơn giản và tiện lợi”.
Bên cạnh đó, chi phí xây dựng tối ưu cũng là một yếu tố quan trọng. Nhà cấp 4 thường có kết cấu đơn giản hơn nhà tầng, rút ngắn thời gian thi công và giảm thiểu vật liệu. Điều này giúp gia chủ dễ dàng quản lý ngân sách mà vẫn sở hữu một ngôi nhà chất lượng. Khả năng tùy biến cao cũng là điểm cộng, từ việc lựa chọn phong cách kiến trúc đến vật liệu hoàn thiện, gia chủ có thể cá nhân hóa không gian sống của mình một cách dễ dàng. Hơn nữa, với sự phát triển của công nghệ xây dựng, việc tạo ra một bản vẽ nhà cấp 4 8x10m không chỉ dừng lại ở công năng mà còn hướng đến những giải pháp năng lượng hiệu quả và bền vững.
Phân tích các yếu tố quan trọng trong bản vẽ nhà cấp 4 8x10m

Có thể bạn quan tâm: Kích Cỡ Giường Phổ Biến: Hướng Dẫn Chi Tiết Từ A-z
Để có một ngôi nhà cấp 4 kích thước 8x10m hoàn hảo, việc phân tích và tối ưu từng yếu tố trong bản vẽ là cực kỳ quan trọng. Mỗi chi tiết, dù nhỏ nhất, đều ảnh hưởng đến tính thẩm mỹ, công năng và trải nghiệm sống của gia đình bạn.
Cấu trúc và phân chia không gian
Với diện tích 8x10m, việc phân chia không gian cần được tính toán kỹ lưỡng để đảm bảo sự tiện nghi và hài hòa. Thông thường, một ngôi nhà cấp 4 sẽ bao gồm:
- Phòng khách: Thường được bố trí ngay sau cửa chính, tận dụng ánh sáng tự nhiên từ mặt tiền. Để tạo cảm giác rộng rãi, phòng khách có thể được thiết kế liên thông với khu vực bếp và phòng ăn. Theo Kiến trúc sư Nguyễn Thị Thu Hà, “Thiết kế không gian mở là giải pháp tối ưu cho nhà cấp 4 có diện tích vừa phải, giúp tăng cường sự kết nối giữa các thành viên và tạo luồng không khí lưu thông tốt hơn.”
- Phòng bếp và ăn: Nên được đặt gần cửa sổ hoặc có hệ thống thông gió tốt để loại bỏ mùi thức ăn. Bếp hình chữ L hoặc chữ I thường phù hợp với không gian này, kết hợp bàn ăn nhỏ gọn hoặc bàn ăn đa năng.
- Phòng ngủ: Tùy vào nhu cầu, có thể bố trí 2 hoặc 3 phòng ngủ. Phòng ngủ master thường rộng hơn và có thể có vệ sinh riêng. Các phòng ngủ phụ nên được thiết kế đủ ánh sáng và không khí, đảm bảo sự yên tĩnh.
- Nhà vệ sinh (WC): Tùy thuộc vào số lượng phòng ngủ và nhu cầu, có thể có 1 hoặc 2 WC. WC chung nên được đặt ở vị trí thuận tiện cho cả phòng khách và các phòng ngủ phụ. Ưu tiên các thiết bị vệ sinh nhỏ gọn và tiết kiệm không gian.
- Các không gian phụ trợ: Bao gồm khu vực giặt phơi, kho nhỏ (nếu có), và hành lang. Các khu vực này cần được thiết kế gọn gàng, không chiếm dụng quá nhiều diện tích chính.
Thiết kế mặt tiền và mái nhà
Mặt tiền là bộ mặt của ngôi nhà, thể hiện phong cách và cá tính của gia chủ. Với bản vẽ nhà cấp 4 8x10m, mặt tiền 8m cho phép nhiều lựa chọn thiết kế. Phong cách hiện đại thường ưu tiên các đường nét thẳng, mảng khối đơn giản, kết hợp vật liệu như kính, bê tông, gỗ. Mặt tiền có thể có các lam che nắng, ban công nhỏ (nếu có tầng lửng) hoặc hệ thống cây xanh trang trí.
Về mái nhà, nhà cấp 4 thường sử dụng các loại mái sau:
- Mái Thái: Phổ biến ở Việt Nam, mang lại vẻ đẹp truyền thống, khả năng thoát nước tốt và chống nóng hiệu quả. Mái Thái tạo điểm nhấn kiến trúc và giúp ngôi nhà trông cao ráo hơn.
- Mái Nhật: Có độ dốc vừa phải, ít chi tiết hơn mái Thái, tạo vẻ đẹp thanh lịch, hiện đại và tối giản. Rất phù hợp với những ngôi nhà theo phong cách Nhật Bản hoặc Scandinavian.
- Mái bằng: Mang đến vẻ đẹp hiện đại, mạnh mẽ. Mái bằng có thể tận dụng làm sân thượng nhỏ hoặc đặt bồn nước, tấm năng lượng mặt trời. Tuy nhiên, cần chú ý đến hệ thống thoát nước để tránh đọng nước.
Yếu tố ánh sáng tự nhiên và thông gió
Ánh sáng và thông gió là hai yếu tố cực kỳ quan trọng, ảnh hưởng trực tiếp đến sức khỏe và tinh thần của người ở. Một bản vẽ nhà cấp 4 8x10m tối ưu cần khai thác triệt để ánh sáng tự nhiên và luồng khí lưu thông:
- Hướng nhà và cửa: Nên ưu tiên hướng nhà đón gió mát và tránh nắng gắt trực tiếp vào buổi chiều. Cửa chính và các cửa sổ lớn nên được bố trí hợp lý để tối đa hóa lượng ánh sáng đi vào. Theo nghiên cứu từ Viện Kiến trúc Quốc gia, “thiết kế nhà ở cần ưu tiên các giải pháp thụ động để giảm thiểu năng lượng tiêu thụ, trong đó việc tận dụng ánh sáng và thông gió tự nhiên là cốt lõi.”
- Kính và vật liệu xuyên sáng: Sử dụng cửa sổ lớn, vách kính cường lực hoặc gạch kính ở những vị trí chiến lược giúp đưa ánh sáng vào sâu bên trong nhà.
- Giếng trời: Đối với những ngôi nhà sâu hoặc thiếu ánh sáng tự nhiên ở khu vực trung tâm (như hành lang, bếp), giếng trời là một giải pháp hiệu quả. Giếng trời không chỉ mang ánh sáng mà còn giúp đối lưu không khí, làm mát ngôi nhà.
- Sân trước/sân sau: Dù diện tích 8x10m là tương đối, việc dành một phần nhỏ cho sân trước hoặc sân sau, dù là ban công hay tiểu cảnh, cũng giúp tăng cường ánh sáng và thông gió.
Bố trí công năng theo số lượng phòng ngủ
Tùy vào nhu cầu sử dụng, bản vẽ nhà cấp 4 8x10m có thể được thiết kế với các số lượng phòng ngủ khác nhau, mỗi cách bố trí đều có những ưu và nhược điểm riêng.
-
Bản vẽ nhà cấp 4 8x10m 2 phòng ngủ:
- Ưu điểm: Tạo không gian sống rộng rãi hơn cho phòng khách, bếp và các khu vực sinh hoạt chung. Mỗi phòng ngủ có thể có diện tích lớn hơn, thoải mái hơn. Dễ dàng bố trí thêm phòng làm việc hoặc phòng đọc sách nhỏ nếu cần.
- Bố trí gợi ý: Phòng khách và bếp liên thông ở phía trước, 2 phòng ngủ bố trí song song hoặc đối diện nhau ở giữa/cuối nhà, kèm 1-2 WC chung/riêng. Ví dụ, một phòng ngủ master có WC riêng và một phòng ngủ nhỏ hơn.
- Phù hợp với: Các cặp đôi mới cưới, gia đình trẻ có 1 con, hoặc người độc thân yêu thích không gian rộng.
-
Bản vẽ nhà cấp 4 8x10m 3 phòng ngủ:
- Ưu điểm: Đáp ứng nhu cầu cho gia đình đông người hơn (có 2-3 con hoặc sống chung với cha mẹ). Đảm bảo sự riêng tư cho từng thành viên.
- Bố trí gợi ý: Để có 3 phòng ngủ trong diện tích 8x10m, các phòng thường sẽ có diện tích vừa phải. Có thể bố trí 2 phòng ngủ ở một bên nhà và phòng khách, bếp ở bên còn lại, hoặc sắp xếp các phòng ngủ theo chiều dài ngôi nhà, với một phòng ngủ ở phía trước và hai phòng ngủ ở phía sau. Thường sẽ có 1 WC chung và có thể có 1 WC riêng nhỏ trong phòng master.
- Phù hợp với: Gia đình có 2-3 con, hoặc gia đình đa thế hệ nhưng số lượng thành viên không quá nhiều.
Việc tối ưu không gian để có đủ số lượng phòng ngủ mà vẫn đảm bảo sự thông thoáng, ánh sáng là một thách thức. Kiến trúc sư sẽ cần có kinh nghiệm để đưa ra các giải pháp sáng tạo như sử dụng cửa lùa, vách ngăn thông minh, nội thất đa năng để giải quyết bài toán này.
Các phong cách kiến trúc phù hợp cho nhà cấp 4 8x10m
Với kích thước 8x10m, ngôi nhà cấp 4 có thể linh hoạt ứng dụng nhiều phong cách kiến trúc khác nhau, từ hiện đại, tối giản đến các phong cách mang hơi hướng truyền thống hoặc gần gũi với thiên nhiên.
Phong cách hiện đại
Phong cách hiện đại là lựa chọn hàng đầu cho bản vẽ nhà cấp 4 8x10m bởi sự tiện nghi, tinh tế và khả năng tối ưu không gian hiệu quả. Đặc trưng của phong cách này là:
- Đường nét: Các đường thẳng, mảng khối rõ ràng, dứt khoát. Hạn chế tối đa các chi tiết rườm rà, hoa văn phức tạp.
- Vật liệu: Ưu tiên các vật liệu hiện đại như bê tông trần, kính cường lực, thép, gạch, gỗ công nghiệp. Sự kết hợp các vật liệu này tạo nên vẻ đẹp mạnh mẽ, vững chãi.
- Màu sắc: Thường sử dụng các gam màu trung tính như trắng, xám, đen, be. Điểm xuyết bằng các màu sắc nổi bật thông qua đồ nội thất hoặc trang trí.
- Không gian: Thiết kế mở, liên thông giữa các khu vực chức năng như phòng khách, bếp, phòng ăn để tạo cảm giác rộng rãi và thoáng đãng.
- Ánh sáng: Tận dụng tối đa ánh sáng tự nhiên thông qua các cửa sổ lớn, vách kính. Hệ thống chiếu sáng nhân tạo cũng được thiết kế đơn giản, tập trung vào công năng.
Một ví dụ điển hình là các mẫu nhà mái bằng hiện đại, với mặt tiền có các mảng tường giật cấp, kết hợp lam chắn nắng hoặc vật liệu ốp tường giả gỗ.
Phong cách tối giản (Minimalist)
Phong cách tối giản đặc biệt phù hợp với những ngôi nhà có diện tích vừa phải như 8x10m, bởi nó tập trung vào việc loại bỏ những yếu tố không cần thiết, giữ lại những gì cốt lõi nhất.
- Nguyên tắc “Less is More”: Giảm thiểu đồ đạc, chi tiết trang trí. Mỗi vật dụng đều có công năng rõ ràng và được chọn lựa kỹ càng.
- Màu sắc: Phổ biến là các gam màu đơn sắc như trắng, be, xám. Sự tương phản nhẹ nhàng hoặc một vài điểm nhấn màu sắc sẽ tạo chiều sâu cho không gian.
- Vật liệu: Thường sử dụng các vật liệu tự nhiên như gỗ, đá, bê tông hoặc vật liệu có bề mặt nhẵn, ít họa tiết.
- Ánh sáng: Là một yếu tố quan trọng trong thiết kế tối giản, giúp định hình không gian và tạo điểm nhấn. Ánh sáng tự nhiên được tận dụng tối đa, kết hợp với hệ thống chiếu sáng ẩn để làm nổi bật các đường nét kiến trúc.
- Không gian: Luôn thông thoáng, sạch sẽ, gọn gàng. Các giải pháp lưu trữ thông minh được ưu tiên để giữ cho không gian không bị lộn xộn.
Phong cách nhiệt đới (Tropical)
Đối với những ai yêu thích sự giao hòa với thiên nhiên và muốn mang hơi thở của vùng đất nhiệt đới vào không gian sống, phong cách Tropical là một lựa chọn tuyệt vời cho bản vẽ nhà cấp 4 8x10m.
- Cây xanh: Là yếu tố cốt lõi, từ cây cảnh trong nhà, giàn hoa leo, đến sân vườn nhỏ hoặc tiểu cảnh.
- Vật liệu tự nhiên: Gỗ, tre, nứa, đá tự nhiên, gạch nung, mái lá (hoặc mái giả lá) thường được sử dụng.
- Màu sắc: Các gam màu tươi mát của thiên nhiên như xanh lá cây, xanh ngọc bích, nâu đất, trắng ngà.
- Thông gió và ánh sáng: Đặc biệt chú trọng đến việc tạo luồng gió tự nhiên, hạn chế nắng gắt. Hệ thống cửa sổ lớn, cửa lá sách, và mái hiên rộng là những đặc điểm thường thấy.
- Đồ nội thất: Thường làm từ vật liệu mộc, cói, mây tre đan, tạo cảm giác gần gũi, thư thái.
- Hồ nước/tiểu cảnh: Nếu có không gian, một hồ nước nhỏ hoặc thác nước mini sẽ làm tăng thêm vẻ đẹp và sự mát mẻ cho ngôi nhà.
Mỗi phong cách đều mang đến một trải nghiệm sống độc đáo. Việc lựa chọn phong cách phù hợp phụ thuộc vào sở thích cá nhân, khí hậu địa phương và ngân sách đầu tư của gia chủ.
Lựa chọn vật liệu xây dựng và nội thất thông minh
Lựa chọn vật liệu xây dựng và nội thất có vai trò quyết định đến chất lượng, độ bền, thẩm mỹ và chi phí của ngôi nhà. Với bản vẽ nhà cấp 4 8x10m, việc chọn lựa thông minh sẽ giúp tối ưu hóa không gian và ngân sách.
Vật liệu thô (móng, tường, mái)
- Móng: Đối với nhà cấp 4, móng băng hoặc móng đơn là các lựa chọn phổ biến, tùy thuộc vào điều kiện địa chất và tải trọng công trình. Cần có khảo sát địa chất cụ thể để đưa ra quyết định phù hợp, đảm bảo sự vững chắc cho ngôi nhà.
- Tường: Gạch nung truyền thống vẫn là lựa chọn phổ biến do giá thành hợp lý và khả năng cách âm, cách nhiệt tương đối. Tuy nhiên, các loại gạch không nung (gạch nhẹ, gạch bê tông khí chưng áp) ngày càng được ưa chuộng do trọng lượng nhẹ, thi công nhanh, và khả năng cách nhiệt tốt hơn, giúp tiết kiệm năng lượng cho ngôi nhà.
- Mái: Như đã đề cập, mái Thái, mái Nhật và mái bằng đều là những lựa chọn tốt. Vật liệu lợp mái bao gồm ngói (đất nung, xi măng màu), tôn giả ngói, hoặc bê tông cốt thép đối với mái bằng. Việc chọn vật liệu mái cần cân nhắc khả năng chống nóng, thoát nước và yếu tố thẩm mỹ. Theo một báo cáo từ Hội Vật liệu Xây dựng Việt Nam, “xu hướng sử dụng vật liệu nhẹ và có tính năng cách nhiệt cao đang dần chiếm ưu thế trong các công trình nhà ở dân dụng, góp phần giảm thiểu tác động đến môi trường và nâng cao hiệu quả năng lượng”.
Vật liệu hoàn thiện (sàn, sơn, gạch ốp)
- Sàn:
- Gạch ceramic/porcelain: Bền, dễ vệ sinh, đa dạng mẫu mã, giá cả phải chăng. Phù hợp cho hầu hết các không gian.
- Sàn gỗ công nghiệp/tự nhiên: Mang lại vẻ ấm cúng, sang trọng. Sàn gỗ công nghiệp có giá thành phải chăng hơn, dễ lắp đặt. Sàn gỗ tự nhiên bền đẹp nhưng chi phí cao và cần bảo dưỡng kỹ hơn.
- Bê tông mài/đánh bóng: Phong cách công nghiệp, hiện đại, bền và chi phí thấp.
- Sơn: Sơn nước là lựa chọn chính cho tường và trần nhà. Nên chọn loại sơn có khả năng chống thấm, chống nấm mốc, dễ lau chùi và có hàm lượng VOC thấp để đảm bảo sức khỏe. Màu sắc sơn nên hài hòa với phong cách tổng thể.
- Gạch ốp tường: Thường dùng cho khu vực bếp và nhà vệ sinh để tăng khả năng chống thấm, dễ vệ sinh và tạo điểm nhấn trang trí. Có thể sử dụng gạch men, gạch mosaic hoặc đá tự nhiên.
Nội thất cho không gian 8x10m
Đối với một không gian có diện tích 8x10m, việc lựa chọn nội thất cần ưu tiên sự thông minh, đa năng và gọn gàng. Đây là lúc thương hiệu Interstellas có thể mang đến các giải pháp độc đáo, giúp tối ưu hóa không gian một cách hiệu quả nhất.
- Nội thất đa năng: Sofa giường, bàn ăn mở rộng, tủ âm tường, giường có ngăn kéo lưu trữ là những món đồ lý tưởng. Chúng giúp tiết kiệm diện tích và tăng cường công năng sử dụng.
- Màu sắc nội thất: Nên chọn các gam màu sáng, trung tính để tạo cảm giác rộng rãi và thoáng đãng. Tránh các màu quá tối hoặc quá sặc sỡ, có thể khiến không gian trở nên chật chội.
- Chất liệu: Gỗ công nghiệp (MDF, HDF), gỗ tự nhiên, kim loại, kính là những vật liệu phổ biến. Gỗ công nghiệp có giá thành phải chăng, đa dạng về màu sắc và kiểu dáng. Gỗ tự nhiên bền đẹp nhưng chi phí cao hơn.
- Thiết kế thông minh: Bàn trà nhỏ gọn, kệ treo tường, tủ tivi tích hợp là những lựa chọn giúp tối ưu hóa diện tích sử dụng. Tránh các món đồ cồng kềnh, không cần thiết.
- Gương và ánh sáng: Sử dụng gương lớn ở phòng khách hoặc hành lang để tạo ảo giác không gian rộng hơn. Hệ thống đèn LED âm trần, đèn hắt tường giúp tăng cường ánh sáng và tạo chiều sâu cho căn phòng.
Dự toán chi phí và kế hoạch tài chính
Xây dựng một ngôi nhà là một khoản đầu tư lớn, và việc dự toán chi phí chính xác là bước không thể thiếu. Đối với bản vẽ nhà cấp 4 8x10m, chi phí có thể dao động khá nhiều tùy thuộc vào nhiều yếu tố.
Các hạng mục chi phí chính
Thông thường, chi phí xây dựng một ngôi nhà được chia thành các hạng mục lớn:
- Chi phí thiết kế: Bao gồm chi phí thuê kiến trúc sư, kỹ sư kết cấu để tạo ra bản vẽ kiến trúc, kết cấu, điện nước. Mức phí này thường tính theo m2 sàn xây dựng (khoảng 80.000 – 150.000 VNĐ/m2).
- Chi phí xin giấy phép xây dựng: Các khoản phí hành chính liên quan đến việc cấp phép.
- Chi phí xây dựng phần thô: Bao gồm vật liệu thô (xi măng, sắt thép, cát, đá, gạch) và nhân công cho phần móng, khung, tường, mái. Đây là phần chiếm tỷ trọng lớn nhất (khoảng 50-60% tổng chi phí).
- Chi phí hoàn thiện: Bao gồm vật liệu hoàn thiện (sơn, gạch ốp lát, thiết bị vệ sinh, cửa, kính) và nhân công cho các công tác này.
- Chi phí nội thất: Bao gồm các món đồ nội thất (giường, tủ, bàn ghế, sofa), thiết bị gia dụng (bếp, tủ lạnh, máy giặt).
- Chi phí phát sinh: Luôn nên dự trù một khoản chi phí phát sinh (khoảng 10-15% tổng chi phí dự kiến) để đề phòng những vấn đề ngoài kế hoạch.
Theo kinh nghiệm của các nhà thầu xây dựng tại Việt Nam, đơn giá xây dựng nhà cấp 4 trọn gói (từ phần thô đến hoàn thiện cơ bản) thường dao động từ 4.5 triệu đến 6 triệu VNĐ/m2, tùy thuộc vào chất lượng vật liệu và mức độ phức tạp của thiết kế. Như vậy, với diện tích 80m2, chi phí có thể từ 360 triệu đến 480 triệu VNĐ, chưa bao gồm nội thất.
Cách tối ưu ngân sách
Để có thể xây dựng một ngôi nhà đẹp mà vẫn trong tầm ngân sách, gia chủ có thể áp dụng một số cách sau:
- Lựa chọn vật liệu phù hợp: Không nhất thiết phải sử dụng vật liệu đắt tiền nhất. Có nhiều loại vật liệu có chất lượng tốt, bền mà giá cả phải chăng. Ví dụ, thay vì gỗ tự nhiên hoàn toàn, có thể kết hợp gỗ công nghiệp cho một số hạng mục nội thất.
- Thiết kế đơn giản: Các mẫu bản vẽ nhà cấp 4 8x10m với thiết kế đơn giản, ít chi tiết phức tạp sẽ giảm thiểu chi phí thi công và vật liệu.
- Giám sát chặt chẽ: Tự mình hoặc thuê người giám sát xây dựng chuyên nghiệp để đảm bảo nhà thầu thi công đúng bản vẽ, tránh lãng phí vật tư và phát sinh lỗi cần sửa chữa.
- Tìm hiểu thị trường: Tham khảo giá vật liệu và nhân công từ nhiều nguồn khác nhau để có cái nhìn tổng quan và lựa chọn đối tác phù hợp nhất.
- Thanh toán theo tiến độ: Chia nhỏ khoản thanh toán theo từng giai đoạn hoàn thành công việc để dễ dàng kiểm soát dòng tiền và chất lượng.
- Tận dụng nội thất có sẵn hoặc đồ DIY: Nếu có thể, tái sử dụng nội thất cũ hoặc tự tay làm một số món đồ trang trí cũng là cách tiết kiệm chi phí hiệu quả.
Việc lập kế hoạch tài chính chi tiết và dự trù kỹ lưỡng sẽ giúp quá trình xây nhà diễn ra suôn sẻ, tránh được những rắc rối không đáng có.
Những lưu ý quan trọng khi triển khai bản vẽ
Để biến bản vẽ nhà cấp 4 8x10m từ trên giấy thành ngôi nhà thực tế, có một số lưu ý quan trọng mà gia chủ cần nắm vững để đảm bảo quá trình diễn ra suôn sẻ, đúng pháp luật và đạt chất lượng tốt nhất.
Xin giấy phép xây dựng
Đây là bước pháp lý bắt buộc và quan trọng hàng đầu trước khi khởi công bất kỳ công trình nào. Việc xin giấy phép xây dựng không chỉ đảm bảo công trình hợp pháp mà còn giúp bạn tuân thủ các quy định về quy hoạch, an toàn xây dựng của địa phương. Hồ sơ thường bao gồm:
- Đơn xin cấp phép xây dựng.
- Bản sao giấy tờ chứng minh quyền sử dụng đất.
- Bản vẽ thiết kế thi công (có chữ ký và đóng dấu của đơn vị thiết kế).
- Giấy phép kinh doanh của đơn vị thiết kế (nếu có).
Thời gian và quy trình xin cấp phép có thể khác nhau tùy theo từng địa phương, do đó, gia chủ nên tìm hiểu kỹ hoặc nhờ sự tư vấn của kiến trúc sư, công ty xây dựng để chuẩn bị đầy đủ hồ sơ và thủ tục. Tránh việc xây dựng không phép, có thể dẫn đến các khoản phạt hành chính và yêu cầu tháo dỡ.
Giám sát thi công
Giám sát thi công là yếu tố then chốt quyết định chất lượng và tiến độ của công trình. Dù bạn thuê nhà thầu trọn gói hay tự tổ chức thi công, việc giám sát chặt chẽ là cần thiết.
- Kiểm tra vật liệu: Đảm bảo vật liệu được sử dụng đúng chủng loại, chất lượng và số lượng như đã cam kết trong hợp đồng.
- Theo dõi tiến độ: Đảm bảo công trình được thực hiện theo đúng tiến độ đã thỏa thuận, tránh kéo dài thời gian thi công gây tốn kém.
- Kiểm tra kỹ thuật: Đảm bảo các công đoạn thi công (đổ móng, dựng cột, xây tường, đổ sàn, lợp mái) tuân thủ đúng bản vẽ kỹ thuật và tiêu chuẩn xây dựng. Ví dụ, kiểm tra độ phẳng của sàn, độ thẳng của tường, chất lượng mối hàn thép.
- An toàn lao động: Đảm bảo an toàn cho công nhân và khu vực xung quanh công trình.
- Giải quyết phát sinh: Kịp thời phát hiện và phối hợp với nhà thầu để giải quyết các vấn đề phát sinh trong quá trình thi công.
Nếu không có kinh nghiệm, việc thuê một đơn vị giám sát độc lập hoặc kiến trúc sư thiết kế kiêm giám sát là một giải pháp thông minh, giúp bạn yên tâm hơn về chất lượng công trình.
Yếu tố phong thủy
Phong thủy là một yếu tố được nhiều gia chủ Việt Nam quan tâm khi xây dựng nhà cửa, với niềm tin rằng nó sẽ mang lại tài lộc, sức khỏe và may mắn cho gia đình.
- Hướng nhà: Lựa chọn hướng nhà phù hợp với tuổi của gia chủ (mệnh trạch) hoặc hướng đón gió mát, tránh nắng gắt.
- Bố trí cửa chính và cửa phụ: Tránh cửa chính đối diện cửa hậu hoặc các góc cạnh sắc nhọn chiếu thẳng vào cửa.
- Vị trí bếp và nhà vệ sinh: Bếp nên đặt ở vị trí vượng khí, tránh đối diện cửa chính hoặc cửa nhà vệ sinh. Nhà vệ sinh nên đặt ở vị trí hung khí, tránh đặt ở trung tâm nhà.
- Phòng ngủ: Giường ngủ nên đặt ở vị trí vượng khí, tránh đặt dưới xà ngang, đối diện cửa ra vào hoặc gương.
- Màu sắc và vật liệu: Lựa chọn màu sắc, vật liệu hài hòa với mệnh của gia chủ.
Tuy nhiên, việc áp dụng phong thủy cần có sự cân bằng với các yếu tố công năng, thẩm mỹ và khoa học. Không nên quá sa đà vào phong thủy mà bỏ qua những nguyên tắc thiết kế cơ bản, khiến ngôi nhà trở nên bất tiện hoặc kém thẩm mỹ. Tốt nhất là tham khảo ý kiến của cả kiến trúc sư và chuyên gia phong thủy để có một bản vẽ nhà cấp 4 8x10m hài hòa mọi mặt.
Liên hệ chuyên gia để có bản vẽ nhà cấp 4 8x10m hoàn hảo
Thiết kế và xây dựng một ngôi nhà, dù là nhà cấp 4 với kích thước 8x10m, cũng là một quá trình phức tạp đòi hỏi sự chuyên môn và kinh nghiệm. Để đảm bảo ngôi nhà của bạn không chỉ đẹp, tiện nghi mà còn tối ưu về công năng và chi phí, việc tìm đến các kiến trúc sư, nhà thiết kế nội thất chuyên nghiệp là điều vô cùng cần thiết.
Các chuyên gia sẽ giúp bạn:
- Phân tích nhu cầu: Hiểu rõ mong muốn, lối sống và ngân sách của gia đình để đưa ra các giải pháp thiết kế phù hợp nhất.
- Tối ưu hóa không gian: Với kinh nghiệm và kiến thức chuyên môn, họ có thể khai thác tối đa diện tích 8x10m, tạo ra một không gian sống thông thoáng, khoa học và đầy đủ tiện ích.
- Tư vấn vật liệu và phong cách: Đưa ra các lựa chọn vật liệu xây dựng và phong cách nội thất phù hợp, đảm bảo chất lượng và tính thẩm mỹ.
- Đảm bảo tính pháp lý: Hỗ trợ trong việc hoàn thiện hồ sơ xin cấp phép xây dựng, đảm bảo công trình tuân thủ các quy định pháp luật.
- Giám sát và quản lý dự án: Giúp bạn kiểm soát chất lượng thi công, tiến độ và ngân sách, tránh các rủi ro phát sinh.
Hãy nhớ rằng, một bản vẽ nhà cấp 4 8x10m được thiết kế bởi chuyên gia không chỉ là một kế hoạch xây dựng, mà còn là một khoản đầu tư vào chất lượng cuộc sống và giá trị bền vững của ngôi nhà bạn.
Interstellas với đội ngũ chuyên gia giàu kinh nghiệm trong lĩnh vực thiết kế nội thất và giải pháp không gian sống, luôn sẵn sàng lắng nghe và biến những ý tưởng của bạn thành hiện thực, kiến tạo nên một tổ ấm lý tưởng.
Kết luận
Việc sở hữu một ngôi nhà cấp 4 với diện tích 8x10m là mơ ước của nhiều gia đình, đặc biệt là những ai yêu thích sự đơn giản, tiện nghi và hiệu quả. Từ việc lựa chọn phong cách kiến trúc phù hợp, tối ưu hóa công năng trong từng không gian, đến việc dự toán chi phí và tuân thủ các quy định pháp luật, mỗi bước trong quá trình thiết kế và thi công đều đòi hỏi sự tìm hiểu kỹ lưỡng và quyết định thông minh. Một bản vẽ nhà cấp 4 8x10m được thực hiện bởi các chuyên gia sẽ không chỉ là nền tảng vững chắc cho một công trình chất lượng, mà còn là chìa khóa để kiến tạo một tổ ấm thật sự lý tưởng, nơi mọi thành viên trong gia đình đều cảm thấy thoải mái và hạnh phúc.
















